
The word “Platys” means “wide” in Greek. This name, which is also the etymology of the word Platanus, means that the space can be used widely despite being small.
Due to the development boom, new buildings are built in old neighborhoods and the streets are becoming restless. The planned site was located in an alley a short distance away from the main street. When the first step to change the streetscape was taken with a white building being built on the neighboring site just before the project was carried out, a new trend where the other owners of the surrounding lots also wanted to construct new buildings. If everyone only tried to stand out in such an atmosphere, a reckless development that doesn’t consider the environment would have been inevitable. In order to minimize the damage to the alley landscape, we carried on with the approach of greatly considering the standard of simplifying the form as well as aiming for the harmonization with surrounding buildings. Since commercial buildings must stand out due to their characteristics, we boldly planned a strategy to make the building seem bigger with a similar form and color to the white building next to it. The power of a group would obviously be stronger than that of an individual.
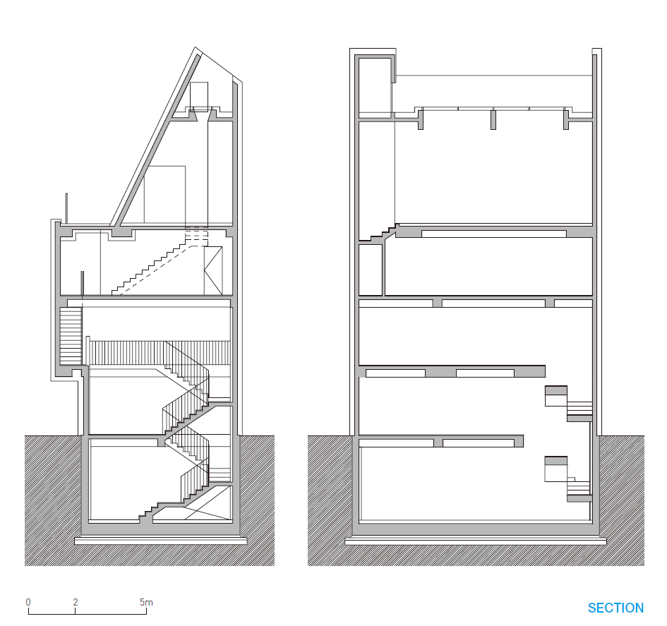
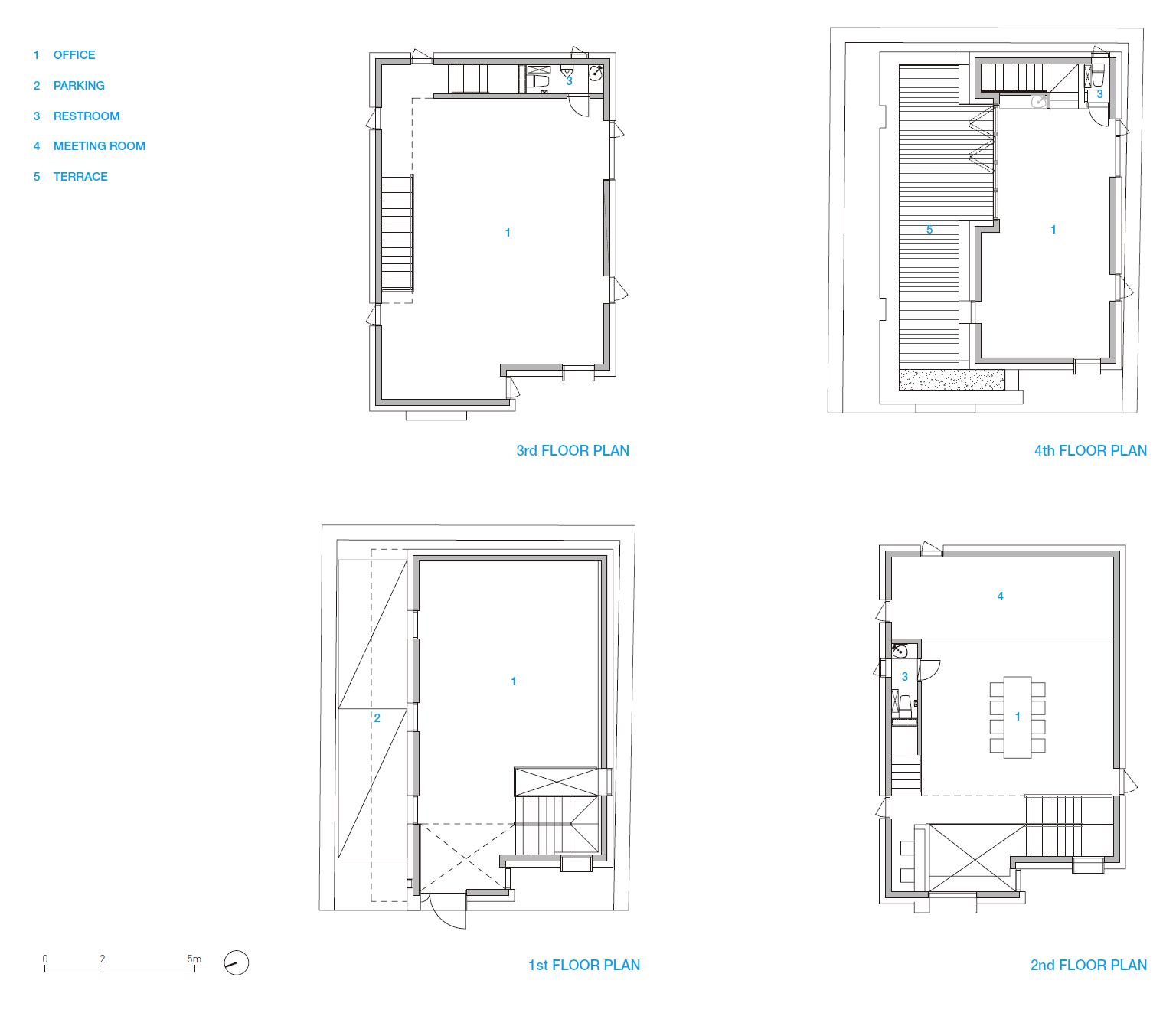
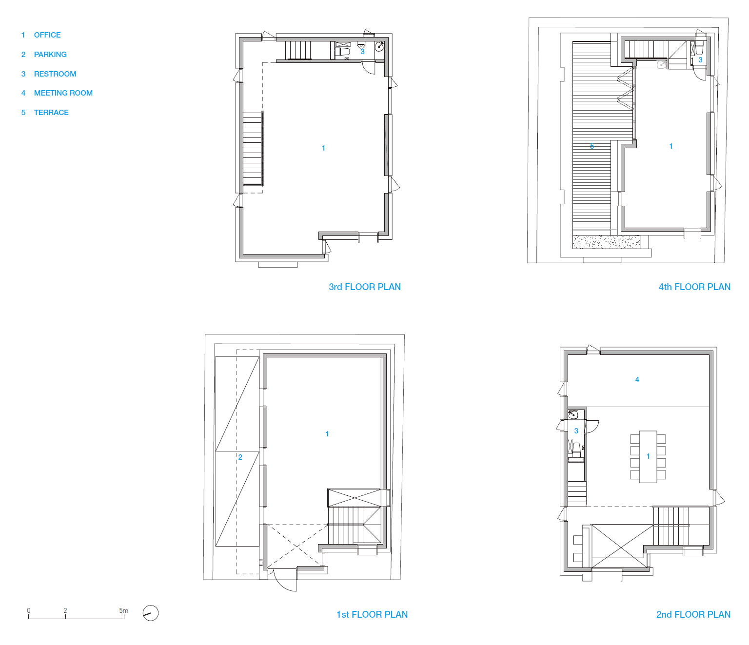
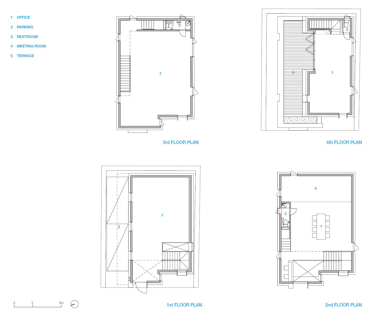
It was inevitable that the building have diagonal walls because of the restriction of the architectural slant line for sunlight, and this restriction forced the creation of a uniform alley landscape. Platys actively uses natural elements, such as trees and grass, and reveals them in the streetscape to offset the feeling of a unified street. Naturally, green leaves are a part of the building’s interior instead of a bleak wall surface of the neighboring building, and they have a free circulation that spans five floors as if walking on a trail in the forest. The different sights created from the flexible circulation make the space seem more colorful and spacious. This sense of space allows the flow of designing, fitting, photo shooting, having conferences and storing materials, as a fashion design company’s headquarters, to create a creative and efficient work environment, while maximizing the merits of communication on each floor.

플래티스(Platys)는 그리스어로 ‘넓다’는 뜻이다. 플라타너스(Platanus)의 어원이기도 한 이 이름은 비록 작은 공간이지만 넓게 사용할 수 있다는 의미를 지닌다.
개발 붐으로 오래된 동네에 새로운 건축물들이 들어오고 거리가 들썩인다. 계획 대지는 주 가로에서 조금 떨어진 골목에 있다. 프로젝트 진행 직전, 옆 대지에 흰색의 건축물로 거리 풍경 변화의 첫 단추가 꿰어지자, 주변 필지의 소유주들 역시 신축하려는 분위기가 조성되는 상황이었다. 이러한 분위기에서 서로 튀려고만 한다면 난개발이 될 것이 뻔했다. 골목 풍경을 조금이라도 덜 망치는 방법은 형태를 단순화 하고 주변 건축물과 조화를 꾀하는 것이라 생각했다. 상업 건축물의 특성상 돋보여야 하기 때문에 과감하게 옆의 흰색 건축물과 비슷한 형태와 색채로서 건축물이 더 커 보이도록 착각하게 하는 전략을 구상했다. 군집의 힘은 분명히 개별 보다는 강하기 때문이다.
일조사선의 제약으로 인해 건축물은 사선 벽이 필연적일 수 밖에 없었고, 이러한 제약으로 획일화된 골목 풍경을 만들 수밖에 없는 한계가 있었다. 플래티스는 나무와 풀과 같은 자연요소를 적극적으로 활용하여, 가로 풍경에 드러내며 통일된 가로의 느낌을 상쇄한다. 자연스럽게 건축물 안에서도 삭막한 옆 건축물의 벽면이 아닌 푸르른 나뭇잎이 함께하며, 숲속 오솔길을 걷듯 5개 층을 아우르는 자유로운 동선을 지닌다. 유연한 동선에서 생겨나는 각기 다른 시선들은 공간을 더욱 다채롭고 넓게 보이도록 만든다. 이러한 공간감은 의상디자인사무소 사옥으로서 디자인, 피팅, 촬영, 회의, 자재보관의 플로우가 창의적이며 효율적인 업무 환경을 마련할 수 있도록 함과 동시에 각 층 소통의 장점을 극대화한다.









Architects CIID
Location Eoulmadang-ro, Mapo-gu, Seoul, Republic of Korea
Program Neighbourhood living facility
Site area 134.5m2
Building area 80.21m2
Gross floor area 326.77m2
Building scope B1, 4F
Building to land ratio 59.63%
Floor area ratio 193.31%
Completion 2020. 4
Principal architect Ikhyeon Joo
Project architect Ikhyeon Joo
Construction RAWOO Construction
Photographer Yousub Song
해당 프로젝트는 건축문화 2021년 7월호(Vol. 482)에 게재 되었습니다.
The project was published in the July, 2021 issue of the magazine(Vol. 482).
July 2021 : vol. 482
Contents: RECORDS 2021 SEOUL LIVING DESIGN FAIR : NEWS / COMPETITION / BOOKS : SKETCH BETWEEN PERSON AND ARCHITECTURE / NIKITA BATRAKOV
anc.masilwide.com
'Architecture Project > Office' 카테고리의 다른 글
| LE MONDE GROUPE HEADQUARTERS (0) | 2021.09.13 |
|---|---|
| RCC HEADQUARTERS (0) | 2021.09.10 |
| CARLSBERG CENTRAL OFFICE (0) | 2021.06.15 |
| STEELFORM (0) | 2021.05.21 |
| IMEX BUILDING (0) | 2021.03.11 |
마실와이드 | 등록번호 : 서울, 아03630 | 등록일자 : 2015년 03월 11일 | 마실와이드 | 발행ㆍ편집인 : 김명규 | 청소년보호책임자 : 최지희 | 발행소 : 서울시 마포구 월드컵로8길 45-8 1층 | 발행일자 : 매일



