
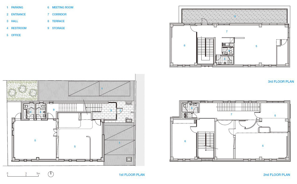
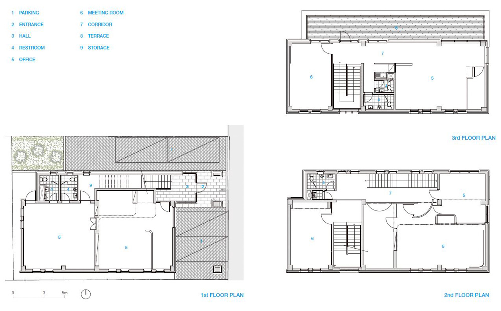
IMEX BUILDING Recently, there have been many cases that want to express their own unique spaces and buildings, where many office spaces of professional companies are built on the back roads. The IMEX Building is an office of a trading company that specializes in import and export logistics and its partners located on an 8m road. It was a unique project for me who came to the business in the form of rental and wanted to create a company building with its own color. At first, they wanted variety, but due to the problem of realistic space, they had to find a functional compromise. However, I always look forward to the directing of what I thought of myself at first, and so is the client. I think they will gather together to create a better architectural space.

Due to the sunlight in the general residential area, the long east-west site was a big blow to the design plan, unlike our desired density. There was no choice but to follow the shape of the upper layer becoming smaller. If you park your car in the front of the building and in the north-right direction and head toward the entrance, there is a straight staircase leading to the second floor. The first and second floors are used by partners, and the main company uses part of the second and third floors.

If you enter the office from the second floor, you can meet the second floor interview and conference room, and there is a nude-like steel staircase with all windows to the third floor. The office space on the 3rd floor from the entrance hall on the 2nd floor is a space that is not large, but it looks a little more expanded by creating a vertical space at least a little, and it is a space that can distinguish the hierarchy. The external deck space on the third floor gives a more open external space in the office space, giving an open value at work. The project, based on red brick, created a space that was as simple as possible, but deep and valuable.

이맥스 빌딩 이면 도로에서의 전문 업체의 사옥공간이 많이 지어지는 최근, 각자 개성 있는 공간 및 건축물을 표현하고자 하는 사례들이 많이 보인다. 이맥스 빌딩은 8m 이면 도로에 위치한 수입, 수출 물류를 전문으로 하는 무역회사와 그 협력업체를 포함하고 있는 무역 전문 회사의 사옥이다. 임대 형태로 사업을 하다가 자기만의 색깔을 가진 사옥을 만들고 싶다고 찾아온 나에게는 특이한 케이스의 프로젝트였다. 처음에는 다양함을 원했지만 현실적인 공간의 문제로 인해 기능적 타협점을 찾을 수밖에 없었다. 그러나 항상 처음에 생각했던 어떠한 내 것의 연출을 기대하고 건축주 또한 그렇다. 그것들이 모여 좀 더 나은 건축공간이 만들어지지 않을까 생각한다.

일반주거지역의 일조권으로 인해 동서로 긴 대지는 우리가 원하는 밀도와 달리 설계계획에 큰 타격을 줬다. 어쩔 수 없이 상부층이 작아지는 형태를 따라갈 수밖에 없었다. 건물 전면과 우측 정북 방향에 주차장을 두고 출입구로 향하면 일자로 길게 뻗은 2층으로 향하는 계단이 있다. 1층과 2층의 일부는 협력업체가 사용을 하고 메인 회사는 2층의 일부와 3층을 사용한다.

2층에서 사무실로 들아가면 2층 접견 및 회의실을 맞이할 수 있고 그리고 3층으로 가는 전면이 모두 창으로 되어 있는 철골 계단이 있다. 2층 출입구 홀에서 3층의 사무실 공간은 조금이라도 수직적으로 공간을 연출하여 크지 않는 규모지만 좀 더 확장되어 보이고, 위계를 구분할 수 있는 공간이다. 3층에서의 외부 데크공간은 사무실 공간에서 좀 더 개방적인 외부공간을 부여하여 직장에서의 개방적인 가치를 준다. 붉은 벽돌을 기본으로 한 이 프로젝트는 최대한 단순하지만 깊이 있고 가치 있는 공간을 만들어냈다.





Architect INTER ARCHITECTURE
Location Deulan-ro, Suseong-gu, Daegu, Republic of Korea
Program Office
Site area 287.70㎡
Building area 172.38㎡
Gross floor area 441.12㎡
Building scope 3F
Building to land ratio 59.92%
Floor area ratio 153.33%
Design period 2018. 6 - 10
Construction period 2018. 10 - 2019. 4
Completion 2019. 4
Principal architect Sunngyong Yang
Project architect Sungyoug Yang, Sungahn Baek
Architectural design team Unseong Park, Jiyun Yang, Taeyeon Kim
Structural engineer BUM engineering
Mechanical engineer DONGNAM engineering
Electrical engineer SHILLA engineering
Photographer Donggyu Yoon
해당 프로젝트는 건축문화 2021년 1월호(Vol. 476)에 게재 되었습니다.
The project was published in the January, 2021 issue of the magazine(Vol. 476).
'Architecture Project > Office' 카테고리의 다른 글
| CARLSBERG CENTRAL OFFICE (0) | 2021.06.15 |
|---|---|
| STEELFORM (0) | 2021.05.21 |
| 2HYUN BUILDING (0) | 2021.03.10 |
| BLACKBOX (0) | 2021.02.15 |
| BUILDING AN (0) | 2021.01.04 |
마실와이드 | 등록번호 : 서울, 아03630 | 등록일자 : 2015년 03월 11일 | 마실와이드 | 발행ㆍ편집인 : 김명규 | 청소년보호책임자 : 최지희 | 발행소 : 서울시 마포구 월드컵로8길 45-8 1층 | 발행일자 : 매일



