
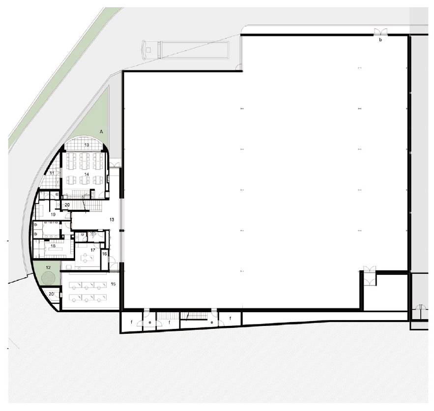
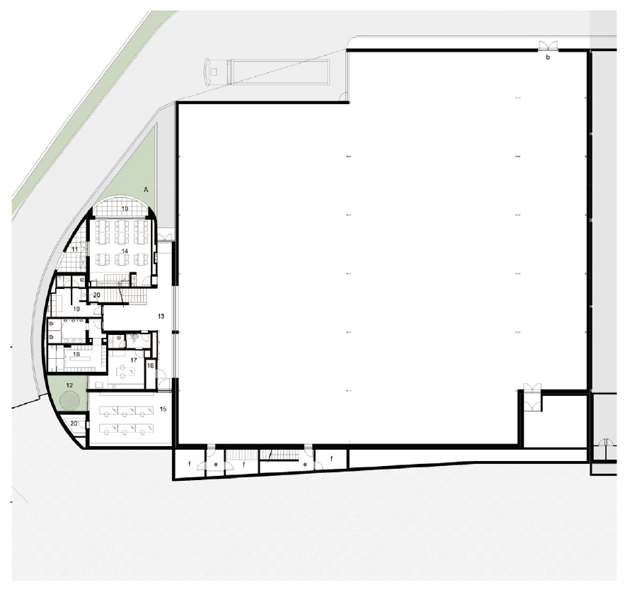
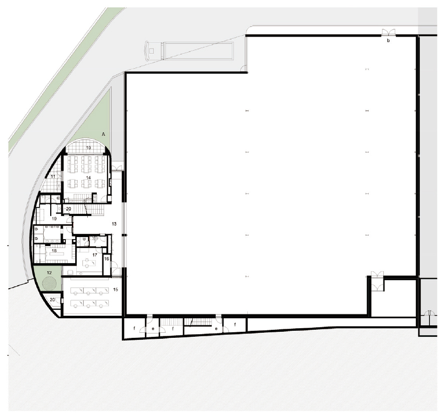
The project consists of expanding the existing factory unit to the west and south, with the construction of a new pavilion and an administrative building.

The site’s configuration contributed to the adopted solution, which sought to maximize the area of the industrial nave, leaving the southern part of the site for the administrative area. This area lies along the new proposed street, giving rise to a curved concrete building, marked by vertical aluminum profiles, which sought to differentiate itself from the industrial volume, highlighting its function as an administrative area. The east corridor, which covers the industrial nave, connects the administrative area to the existing building. With a strong plastic component, relating to the mold industry, it sought, by means of its language, to convey a concept of contemporaneity while associating the company’s brand.

스틸폼은 기업의 새로운 파빌리온과 행정용 건물이자, 기존 공장단위를 서쪽과 남쪽으로 확대하는 사업으로 지어졌다. 부지의 배치는 산업용 면적을 최대화하기 위해 채택된 아이디어가 반영됐고, 남부는 행정 영역으로 남겨졌다. 이 공간은 새로 조성된 도로를 따라 놓여 있으며, 수직 알루미늄으로 둘러싸인 곡선형의 콘크리트 건물을 만들어 산업용 건물과 차별화를 꾀하며 행정 영역의 기능을 부각한다. 공업지대를 아우르는 동쪽 통로는 행정영역과 기존 건물을 연결한다. 금형 산업과 관련된 강력한 플라스틱 부품을 활용한 건축적 언어를 통해 회사의 브랜드를 연관시키면서 동시대의 개념을 전달한다.













Architect Atelier Lopes da Costa
Location São Roque, Oliveira de Azeméis, Aveiro, Portugal
Gross floor area 2,300m2
Principal architect José A., Tiago Meireles
Collaborator Arquitecta Rita Gonçalves
Completion 2020
Photographer Ivo Tavares Studio
해당 프로젝트는 건축문화 2021년 3월호(Vol. 478)에 게재 되었습니다.
The project was published in the March, 2021 issue of the magazine(Vol. 478).
March 2021 : vol. 478
Contents: RECORDS THE EXPERIMENT TO FACE A REALITY IN AN INFINITE GRIDMAESTRO SOFA COMPETITION: NEWS / COMPETITION / BOOKS: SKETCH VILLA MAIREA, FINLAND / ASHWIN SWAMINATHAN : RECENT PROJECT ARIJUJIN / PROF. BEOMKWAN KIM(UNIV. OF ULSAN)
anc.masilwide.com
'Architecture Project > Office' 카테고리의 다른 글
| PLATYS (0) | 2021.09.06 |
|---|---|
| CARLSBERG CENTRAL OFFICE (0) | 2021.06.15 |
| IMEX BUILDING (0) | 2021.03.11 |
| 2HYUN BUILDING (0) | 2021.03.10 |
| BLACKBOX (0) | 2021.02.15 |
마실와이드 | 등록번호 : 서울, 아03630 | 등록일자 : 2015년 03월 11일 | 마실와이드 | 발행ㆍ편집인 : 김명규 | 청소년보호책임자 : 최지희 | 발행소 : 서울시 마포구 월드컵로8길 45-8 1층 | 발행일자 : 매일



