
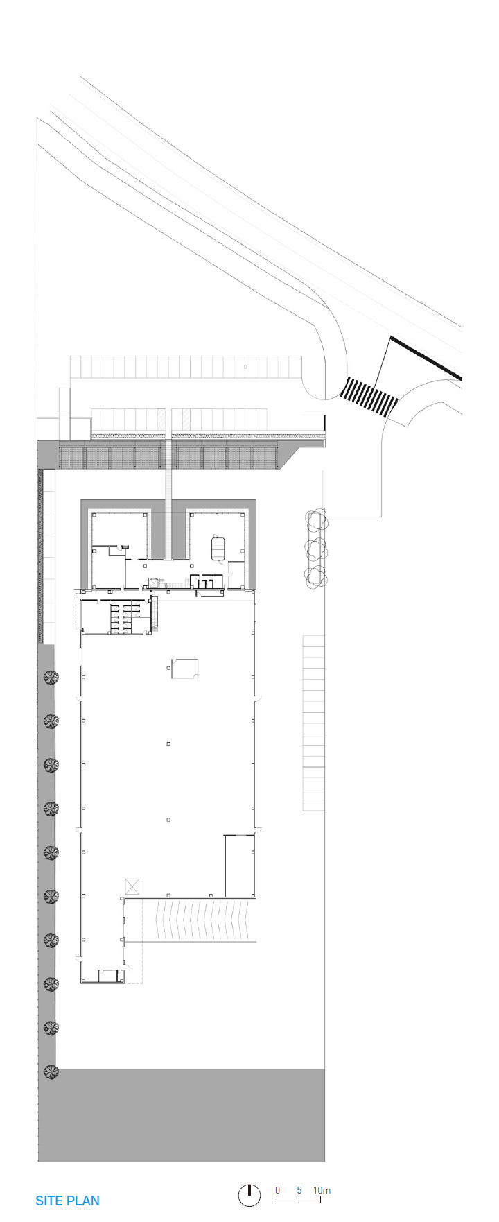
The new headquarters built by Studio Bocchi for Flash Battery in Sant’Ilario d’Enza, in the province of Reggio Emilia, in Northern Italy, support the young company in its rapid and lively growth. The leap forward made by the start-up company, which in just a few years has become an internationally active and a leader in Italy for the production of lithium batteries equipped with advanced controls, with 60 employees and a yearly turnover of 14 million Euros, suggested the creation of new administrative and production headquarters capable of interpreting the identity and characteristics of the production.
For Studio Bocchi, the design group based in Parma with over 40 years of extensive experience in the industrial sector, the key points of the project were clear and required a pragmatic approach: structural simplicity to ensure flexibility, cost efficiency and speed of execution, attention to the aesthetic definition of the building and the creation of a pleasant and functional working environment. Hence the design of a structure that, while reinterpreting a traditional layout, has given rise to an integrated system in which the management office is configured as a smart office and the production quarters as a complementary extension.
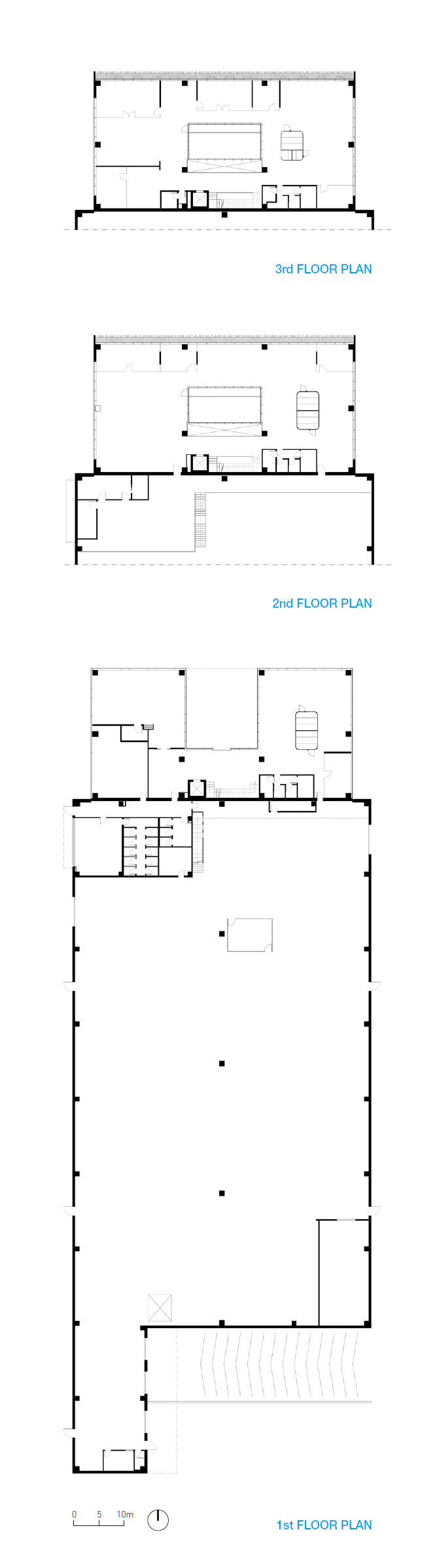
The office building has been “hollowed out” in the middle to obtain a glazed patio around which the interior spaces are arranged. On the ground floor, the courtyard welcomes visitors. The vertical distribution system with stairs and suspended walkways increases the sense of lightness and brightness. On the outside, the entire ground floor is glazed, which visually detaches the other two floors from the ground. The latter are characterized by a glass façade screened by a protruding metal sunshade that creates a new volume, defined by a pattern that almost dematerializes the building. The interiors of the offices are designed as open-space, where workstations are interspersed with communal areas, zones for collaboration, phone booths, meeting rooms and relaxation lounges, with the aim of creating a dynamic and collaborative environment.

플래시 배터리는 고급 제어 기능을 갖춘 리튬 배터리를 생산하는 신생 기업으로, 불과 몇 년 만에 60명의 직원과 1,400만 유로의 연간 매출액을 창출하며 빠르게 성장하고 있는 젊은 기업이다. 이 기업은 이탈리아 북부 레지오 에밀리아 지방에 새로운 본사 사옥을 세웠다. 빠르고 활발하게 성장을 뒷받침할 본사 사옥은 그들의 국제적 활동과 이탈리아에서 정체성 및 특성을 드러내는 새로운 행정, 생산 본부이다.
건축가는 유연성, 효율성 및 시공성을 보장하기 위한 구조적 단순성, 건물의 미적 가치 쾌적하고 기능적인 작업 환경을 만드는 것에 신경쓰며 실용적인 측면으로 접근하여 설계를 진행했다. 따라서 전통적인 배치를 재해석하는 구조의 설계는 관리 사무실을 스마트 오피스로 구성하고 생산 구역을 보완 확장으로 구성하는 통합 시스템으로 이어졌다.
사무동은 내부 공간의 유리 파티오를 둘러싼 형태를 얻기 위해 중간이 비어있다. 1층에는 안뜰이 방문객을 맞이한다. 계단과 매달린 통로가 있는 수직 분배 시스템은 공간을 가볍고 밝게 만들어준다. 외부에는 1층 전체가 유리로 되어 있어 다른 2개 층을 시각적으로 분리한다. 새로운 매스를 생성하는 튀어나온 금속 차양으로 가려진 유리 파사드가 특징이며, 매스는 건물을 비물질화하는 듯한 패턴이 특징적이다. 사무실 내부는 워크스테이션이 공동 공간, 협업 구역, 전화 부스, 회의실 및 휴게실이 사이사이에 배치된 개방형 공간으로 설계되어 역동적이고 협업할 수 있는 환경을 조성한다.



















Architects STUDIO BOCCHI
Location Sant’Ilario d’Enza, Italy
Gross floor area 5,500m2
Design period 2018. 9 - 2019. 2
Construction period 2019 - 2020
Completion 2020
Design team Francesco Bocchi, Carlo Bocchi, Dario Bocchi, Andrea Baldi
Construction Ale Spa, Tesi System Srl, Montedil Srl
Client Flash Battery Srl
Photographer Atelier XYZ
해당 프로젝트는 건축문화 2021년 7월호(Vol. 482)에 게재 되었습니다.
The project was published in the July, 2021 issue of the magazine(Vol. 482).
July 2021 : vol. 482
Contents: RECORDS 2021 SEOUL LIVING DESIGN FAIR : NEWS / COMPETITION / BOOKS : SKETCH BETWEEN PERSON AND ARCHITECTURE / NIKITA BATRAKOV
anc.masilwide.com
'Architecture Project > Office' 카테고리의 다른 글
| ANTİK DANTEL HQ (0) | 2021.09.17 |
|---|---|
| LSB REGIONAL HEADQUARTERS (0) | 2021.09.16 |
| LE MONDE GROUPE HEADQUARTERS (0) | 2021.09.13 |
| RCC HEADQUARTERS (0) | 2021.09.10 |
| PLATYS (0) | 2021.09.06 |
마실와이드 | 등록번호 : 서울, 아03630 | 등록일자 : 2015년 03월 11일 | 마실와이드 | 발행ㆍ편집인 : 김명규 | 청소년보호책임자 : 최지희 | 발행소 : 서울시 마포구 월드컵로8길 45-8 1층 | 발행일자 : 매일



