
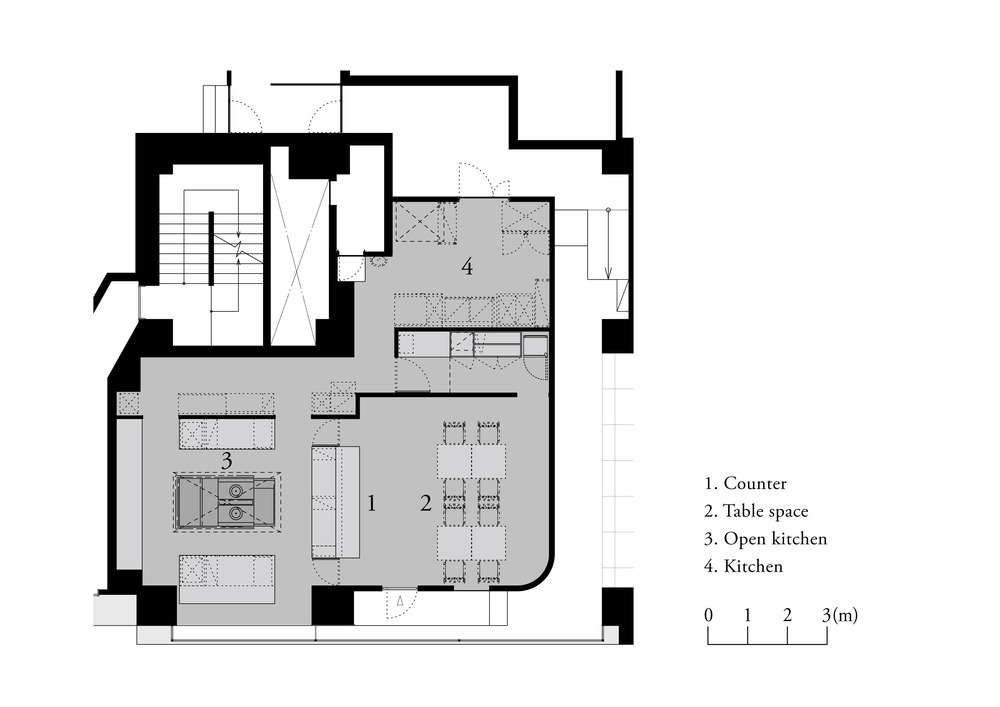
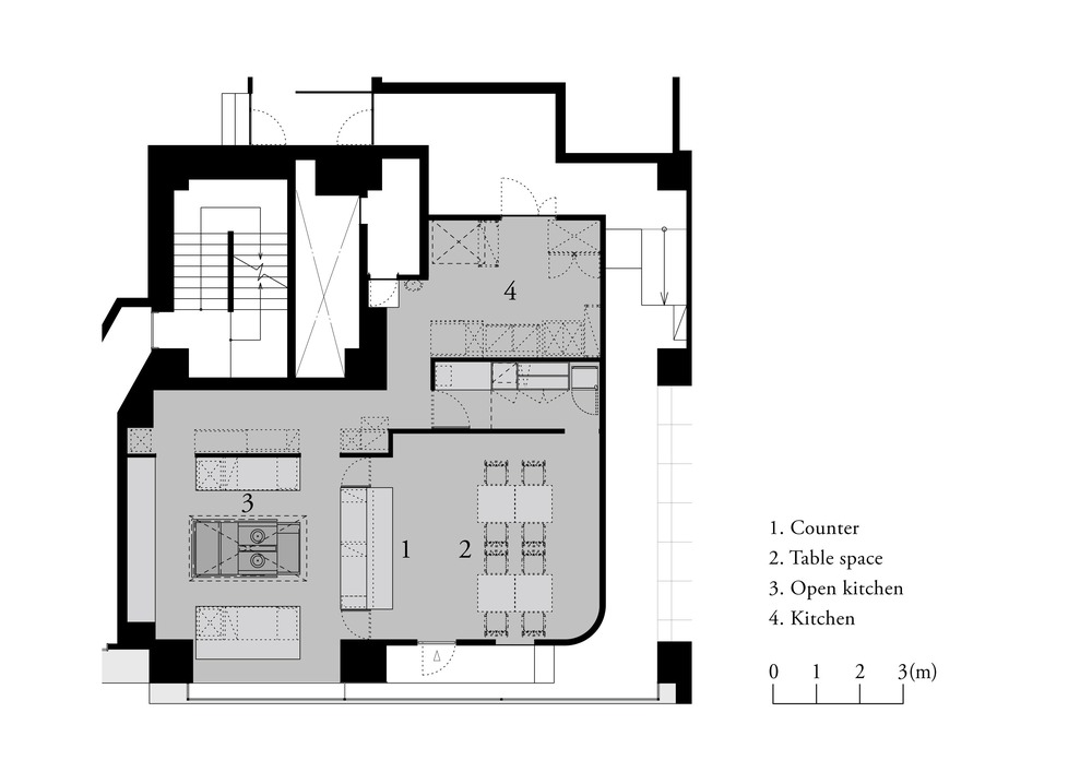
Located on the ground level, “nôl” is a restaurant atelier with a distinct concept. Functioning as an experimental kitchen, nôl can also be considered as a flexible space freed from the physical restraints of a classical restaurant. A place where talented chefs can use for catering preparation or for irregular dinner events. Thus compared to the spacious kitchen, this restaurant has only eight table seats. Though it is compact, the goal was to create an atmosphere that suits the extraordinary dishes that will be prepared. Since the name of this facility comes from the French term “non-usuel (non-usual)” and “noir (black)” the space was designed with black as its key-color, and the idea was to create a restaurant with a special feeling which is not fully open to the public considering the stance and characteristics of the space. The dining area was finished with a matte, dark-toned lysine from floor to ceiling. To create depth, the space was painted in a gradation from grey to dark grey. Pendant lights above the tables were newly designed to fit the space, and the shade of the lightings were finished with the same lysine material to maintain a common tone and to exaggerate the contrast between the light and the ceiling. The kitchen was mainly finished with stainless-steel, in order to create a brighter image and a space which functions like a stage in contrast to the black dining area.

상층에 위치한 "nôl"은 독특한 콘셉트의 레스토랑 아틀리에다. 실험적인 주방으로 기능하는 nôl은 클래식 레스토랑의 물리적 구속에서 해방된 유연한 공간으로도 볼 수 있다. 유능한 셰프가 케이터링 준비나 불규칙한 저녁 행사에 사용할 수 있는 곳이다. 따라서 넓은 주방에 비해 이 식당은 테이블 석이 8개뿐이다. 콤팩트 하지만 준비될 특별한 요리에 어울리는 분위기를 만드는 것이 목표였다. 이 시설의 이름은 프랑스어 "non-usuel(비정상적)"과 "noir(검은색)"에서 따온 것이므로 공간은 검은색을 주 컬러로 디자인했으며, 공간의 입장과 특성을 고려한 완전히 공개되지 않는 특별한 느낌을 준다. 다이닝 공간은 바닥부터 천장까지 매트하고 어두운 톤의 라이신으로 마감했다. 깊이감을 주기 위해 공간은 그레이에서 다크 그레이로 그러데이션을 주었다. 테이블 위의 펜던트 조명은 공간에 맞게 새롭게 디자인했고, 조명의 쉐이드를 동일한 라이신 소재로 마감하여 공통적인 톤을 유지하고 조명과 천장의 대비를 과감하게 연출했다. 주방은 주로 스테인리스 스틸로 마감하여 더 밝은 이미지를 연출하고 블랙 다이닝 공간과 대비되는 무대와 같은 공간을 연출했다.










Architects CASE-REAL
Location Tokyo, Japan
Program Kitchen Studio
Floor area 127㎡
Design period 2017. 10 – 2019. 3
Design team Koichi Futatusmata, Koichi Shimohira(CASE-REAL), Yasushi Arikawa(Partner)
Cooperation TANK, Tanabe Kensetsu
Lighting plan BRANCH lighting design (Tatsuki Nakamura)
Manufacture of furniture E&Y
Direction Aid Inc
Sign design Aid Inc
Paint Nakamura paint
Client MARUTAYA Co., Ltd.
Photographer Daisuke Shima
'Interior Project > Cafe&Restaurant' 카테고리의 다른 글
| Das Bier (0) | 2021.09.13 |
|---|---|
| PRO espresso (0) | 2021.09.08 |
| Banu Restaurant (0) | 2021.09.01 |
| Basic Space Coffee (0) | 2021.08.30 |
| Burleigh Pavilion (0) | 2021.08.25 |
마실와이드 | 등록번호 : 서울, 아03630 | 등록일자 : 2015년 03월 11일 | 마실와이드 | 발행ㆍ편집인 : 김명규 | 청소년보호책임자 : 최지희 | 발행소 : 서울시 마포구 월드컵로8길 45-8 1층 | 발행일자 : 매일



