
Australia is known for its vast coastline, surfing spots, and beach culture. Oceanfront pavilions are of equal architectural and design importance and were built to provide shelter and amenity to bathers and surfers who flocked to the beaches when the ban on daytime ocean bathing was lifted in 1903.
The Burleigh Pavilion at Burleigh Heads on Australia’s Gold Coast, (a metropolitan area south of Brisbane in Queensland) is one such iconic beach ‘Pavilion’ structure. The important ocean-facing building with panoramic views of the world-renowned surfing point break is historically significant, originally an indigenous meeting area and then built on top of a popular 1950s swimming pool.
Sydney-based architectural practice Alexander &CO. was commissioned to renovate and expand the dilapidating structure. The design had to be a robust and easily maintained multipurpose venue that would appeal equally to guests who walked straight off the beach to those enjoying a smart lunch or dinner.
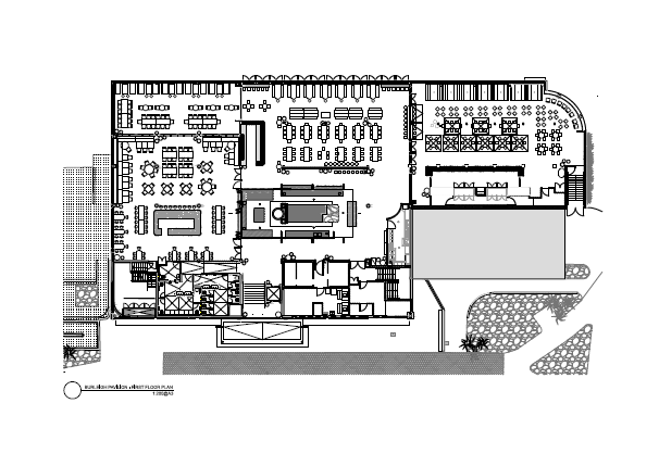
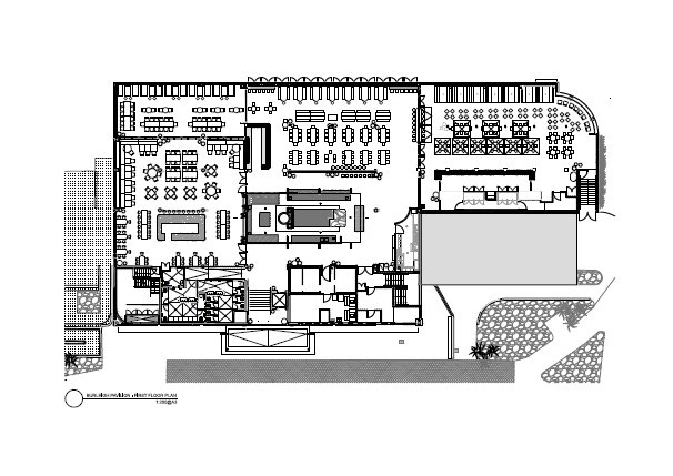
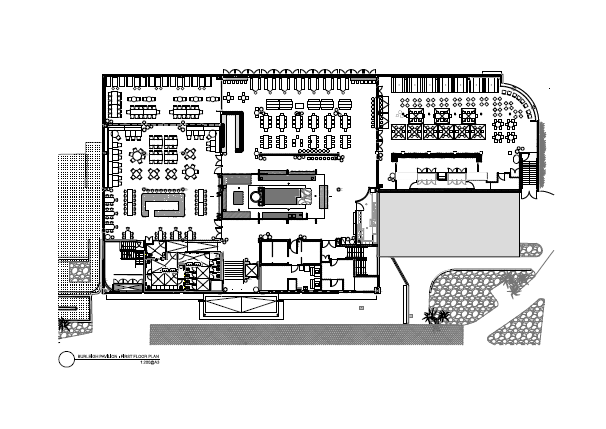
Built upon the rock, the works also had to accommodate storm surges and prevent flooding. The resolution was a 1200 sqm venue; robust, sun-drenched and faded, a study in scale and simplicity. Divided into three spaces; an a la carte restaurant (‘The Tropic’), a coastal brasserie (‘The Pavilion’) and a main outdoor beach bar. Creatively the client wanted the project to evoke memories of his childhood spent holidaying in Burleigh Heads; a 70’s Gold Coast beach nostalgia.
The project explores a design that is both elegant and enduring. Beautiful volumes and architectural shapes are accented with faded pastels, corbeled clockwork, and bold awnings. These materials were selected for not only their aesthetic value but their unique ability to withstand heavy wear from the elements.
Outside, the building envelope gently reveals itself from behind a fenestrated entry elevation and under a great concrete canopy. Two palm trees and extruded metal letters announce its presence. A hint of its retro DNA is seen in circular breeze block whilst tropical gardens flank the entry doors.
Inside, a large central open kitchen with two pizza ovens and a fire pit pushes patrons toward an ever-reaching view where various furnishings encourage them to eat, stand and drink. It is a hive of gastronomic energy built within a curving masonry arbor, a nod to past pavilion structures once dotted up and down the coast.
From this kitchen, the three portions of the venue radiate; an unobstructed 50-meter expanse of oceanfront view looks North to the Gold Coast and South to the Burleigh beach point break. The Tropic restaurant marks itself clearly with its rattan ceiling, crazy paved floor and pink and brass highlights. A coastal brasserie; this is the sexy older sister to the main beach bar and Pavilion terrace bar. The Pavilion bar to the south is an open expanse with painted concrete block detailing and ample seating. High bar seating cascades down to the tiled window nooks which perch over the water's edge. The main beach bar has in scale and simplicity what the Tropic has in detail and intimacy. It is a vast open volume with expressed structures, views in every direction and robust energy underneath an umbrella canopy.
Through its careful restoration, the Burleigh Pavilion has reinvigorated the headland, community engagement, and local amenity; offering patrons of all demographics a place to gather, celebrate and enjoy the abundance of the Burleigh Heads horizon.

호주는 광활한 해안선, 서핑 장소, 해변 문화로 유명하다. 해변의 파빌리온은 1903년 주간 해수욕 금지가 해제됐을 때 해수욕장에 몰려든 해수욕객과 서퍼들에게 쉼터와 편의시설을 제공하기 위해 건축됐다.
오스트레일리아 골드 코스트의 Burleigh Heads(퀸즐랜드 브리즈번 남쪽의 대도시 지역)에 있는 Burleigh Pavilion은 이러한 상징적인 해변 'Pavilion(파빌리온)' 구조 중 하나이다. 세계적으로 유명한 서핑 포인트 휴식처의 탁 트인 전망을 제공하는 중요한 바다를 마주 보고 있는 이 건물은 역사적으로 의미가 있으며, 원래는 원주민 만남의 장소였으며 이후 인기 있는 1950년대 수영장 위에 지어졌다.
시드니에 기반을 둔 건축사무소 Alexander & CO.는 노후화된 구조물을 보수하고 증축을 하기 위해 의뢰됐다. 해변을 곧장 걸어가는 손님들에게 스마트한 점심이나 저녁을 즐기는 손님들에게 똑같이 어필할 수 있는 견고하고 쉽게 유지되는 다목적 장소가 디자인되어야 했다.
바위 위에 세워진 이 프로젝트는 폭풍 해일을 수용하고 홍수를 막아야 했다. 대지면적은 1,200평방미터 규모로, 고급 레스토랑(트로픽), 해안 브래지어리(파빌리온), 주요 야외 비치 바로 총 세 공간으로 나뉜다. 건축주는 이 프로젝트가 70년대 골드코스트 해변의 향수인 Burleigh Heads에서 보낸 어린 시절의 추억을 불러일으키기를 원했다.
이 프로젝트는 우아하면서도 지속적인 디자인을 탐구한다. 빛바랜 파스텔, 코르벨로 장식된 시계, 대담한 차양으로 아름다운 볼륨과 건축양식이 강조된다. 이러한 재료들은 미적 가치뿐만 아니라 외부 요소에서 오는 심한 마모를 견딜 수 있는 독특한 능력 때문에 선택됐다.
건물 외벽은 구멍이 뚫린 입구와 거대한 콘크리트 캐노피 아래에서 부드럽게 모습을 드러낸다. 두 그루의 야자수와 돌출된 금속 문자가 그 존재를 나타낸다. 원형 블록에 레트로의 흔적이 보이는 반면, 열대 정원은 출입문 옆에 있다.
내부에는 피자 오븐 2개와 화덕이 있는 대형 중앙 오픈 키친이 손님들에게 먹고, 서고, 마실 수 있는 다양한 가구들이 펼쳐진 전망으로 이어진다. 굽어진 석재 수목 내에 지어진 미식 에너지의 집하체로으로, 한때 해안 위아래로 흩어져 있던 과거 파빌리온 구조에 대한 경의를 표한다.
이 주방에서는 행사장의 3부분이 방사형으로 펼쳐져 있으며, 50m의 넓은 바다 전경이 골드코스트 북쪽과 남쪽에서 벌리 해변 지점까지 보인다. 트로피컬 레스토랑은 등나무 천장, 포장된 바닥, 핑크와 황동 하이라이트가 선명하게 눈에 띈다. 남쪽에 있는 파빌리온 바는 콘크리트 블록이 상세하게 칠해져 있고 좌석이 넉넉한 탁 트인 넓은 공간이다. 높은 바의 좌석은 물가에 자리 잡은 타일로 된 창 구석까지 계단식으로 이어져 있다. 메인 비치 바는 규모와 단순함이 트로피컬의 세부사항과 친밀감을 그대로 가지고 있다. 그것은 우산 캐노피 아래에 표현된 구조, 탁 트인 조망, 강력한 에너지를 가진 열린 볼륨이다.
신중한 복원을 통해 Burleigh Pavilion은 지역 사회의 참여 및 지역 편의 시설에 활력을 불어넣었다. 모두가 모여 축하와 풍요로움을 즐길 수 있는 장소를 제공한다.










Architects Alexander &CO.
Location Burleigh Heads, Australia
completion 2018. 12
Principal architects Jeremy Bull, Sophie Harris, Samantha Birtles
Interior designers Alexander &CO.
Interior design team Charlene Cong, Jay Sethasastrakorn, Madison Fay, Lucy Forlico
Photographer Anson Smart
'Interior Project > Cafe&Restaurant' 카테고리의 다른 글
| Banu Restaurant (0) | 2021.09.01 |
|---|---|
| Basic Space Coffee (0) | 2021.08.30 |
| The Zentral Kitchen (0) | 2021.08.20 |
| MAAT Coffee Brewers (0) | 2021.08.18 |
| WINE & BISTRO OOMPH (0) | 2021.08.17 |
마실와이드 | 등록번호 : 서울, 아03630 | 등록일자 : 2015년 03월 11일 | 마실와이드 | 발행ㆍ편집인 : 김명규 | 청소년보호책임자 : 최지희 | 발행소 : 서울시 마포구 월드컵로8길 45-8 1층 | 발행일자 : 매일



