
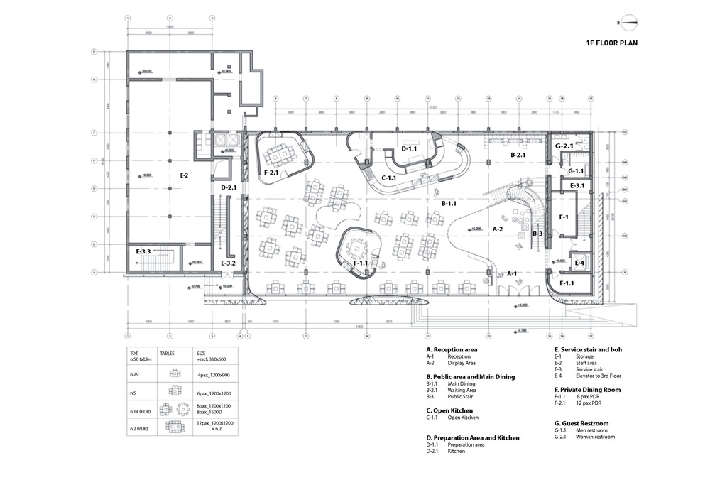
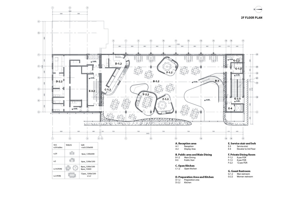
The Banu Restaurant design project includes the replacement of the interiors and façade of a 2100sm building in Zhengzhou China. As the Flagship restaurant for a growing and innovative franchise, it was important to the client that the project create a recognizable landmark along the main axis road, and that it be welcoming to the community.
The design sought to honor Banu, the riverman’s history, but creating a space formed from a natural, yet turbulent flow, marked by the sinuous lines of rope pull lattices. The design first breaks down the large-scale, and orthogonal structural grid of the existing building, reframing the space into a fluid organization system with a series of sculptural cones shaped for private dining and open kitchens. Additionally, two vertical conical voids are introduced at the lobby and the main seating area to tie two dining levels together. A third strategy involved the design of an organic lattice ceiling that varies in. Through varying the density, height, and size, we were able to transform the transparency of the ceiling panels, creating a sense of depth to the space as you move through it.
The interior design elements were extended to the exterior facade, which is pulled up at the entry and is connected along the ceiling, providing continuity between the exterior and interior envelopes. Through the unity of interior and exterior, the effect is a constantly changing dynamic to the street, where the public is enticed to view and join in the activities of the restaurant.

Banu Restaurant 디자인 프로젝트는 중국 Zhengzhou에 있는 2,100㎡의 건물의 인테리어와 외관을 리모델링하는 프로젝트이다. 프랜차이즈의 성장과 혁신을 위한 플래그십 레스토랑으로서, 건축주에게는 이 프로젝트가 주 도로를 따라 눈에 띄는 랜드마크를 조성하고, 지역사회를 환영하는 것이 중요했다.
디자인은 리버맨의 역사 Banu를 기리기 위한 디자인으로, 구불구불한 격자가 늘어서 자연스러우면서도 격렬한 흐름으로 형성된 공간을 만들었다. 이 디자인은 먼저 기존 건물의 대규모, 직교 구조 그리드를 해체하여 개인 식당과 오픈 키친을 위한 일련의 원형 구조로 공간을 유동적인 조직 체계로 재구성한다. 또한 로비 및 메인 좌석 공간에는 두 개의 수직 원뿔형 보이드가 도입되어 두 개의 식당 레벨을 함께 연결한다. 세 번째 전략은 변화무쌍한 유기적인 격자 천장의 디자인이다. 밀도, 높이, 크기 등을 다양하게 함으로써 천장 패널의 투명도를 변화시켜 공간 이동에 따른 깊이감을 만들어 낸다.
내부 디자인 요소는 입구에서 위로 이어지고 천장을 따라 연결된 외부 파사드로 확장되어 외부와 내부 사이의 연속성을 제공한다. 내부와 외부의 통일성을 통해 거리에 끊임없이 변화하는 역동성을 부여하며, 대중들은 이를 보고 함께하도록 유도된다.













Architects Studio Link-Arc, LLC
Location Zhengzhou Shi, China
Building area 2,100㎡
Principal architect Yichen Lu, Ted Kane(Kane AUD)
Project team Sanhoi Lam(Kane AUD), Vivianna Wang, Mariarosa Doardo
Lighting design Chen Chen
Client Banu Hotpot Restaurant Co., Ltd
Photographer Qingshan Wu
'Interior Project > Cafe&Restaurant' 카테고리의 다른 글
| PRO espresso (0) | 2021.09.08 |
|---|---|
| NÔL (0) | 2021.09.03 |
| Basic Space Coffee (0) | 2021.08.30 |
| Burleigh Pavilion (0) | 2021.08.25 |
| The Zentral Kitchen (0) | 2021.08.20 |
마실와이드 | 등록번호 : 서울, 아03630 | 등록일자 : 2015년 03월 11일 | 마실와이드 | 발행ㆍ편집인 : 김명규 | 청소년보호책임자 : 최지희 | 발행소 : 서울시 마포구 월드컵로8길 45-8 1층 | 발행일자 : 매일



