
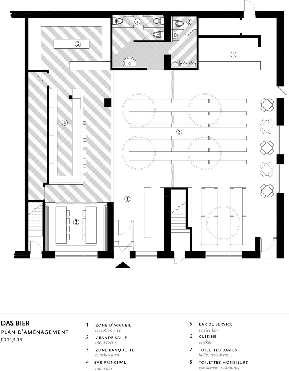
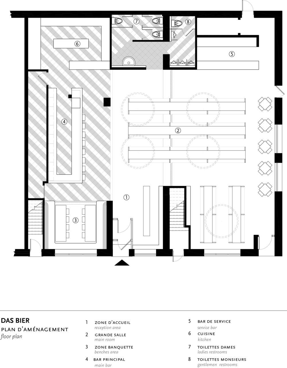
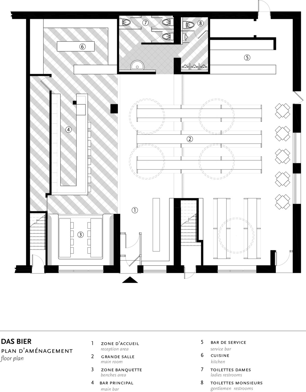
Das Bier enhanced the premises of a former show bar, by implanting the industrial style German "Bierhall" concept, meeting point between the European cult for great beers and the Rosemont neighborhood lifestyle.
Our first intervention was to open the space, composed of three buildings with three different ground floor levels, to create one single large hall. Then, we custom-designed oversized communal tables, which evolve through the space, going from table height to countertop height tables, linking the different levels, weaving the space. The main bar serves as a stage for the "Steins", large typical Bavarian beer mugs, which are glorified in their own unique locker on the white back bar wall, where 20 draft lines were passed through the wall for a clean minimalistic effect.
Towering the space, large interpretations of the typical "Bierhall" traditional chandeliers hang above the communal tables. These large circular fixtures made of perforated hot rolled steel, diffuse gently the light through their perforations. We then declined this language into a family of similar elements, such as the exterior overhung façade and the steps transition between the different levels inside the space, all made of crude steel.
During the demolition, the removal of some materials exposed original high quality long hidden elements; Layers of history with which we’ve decided to work, such as the terrazzo floors and the original stone façade of the building. To the existing materials, is grafted the warmth of wood walls upholstering and the sobriety of crude steel elements, enhanced by a contrasted black and white palette to heighten the mood.
Das Bier is primarily a place for beer lovers and there are several subtle and less subtle allusions of it throughout the project. We’ve designed the restroom’s entrance wall with a composition of 7500 white and gold beer caps assembled into a pattern that reflects light and shines through the space. In addition, the ceiling in the lounge area is made of an assemblage of aluminum beer barrels on which we’ve added lighting fixtures, bringing down the ceiling for a more casual effect.

Das Bier는 훌륭한 맥주를 위한 유럽의 숭배와 Rosemont 지역 생활 방식 사이의 만남의 지점인 인더스트리얼 스타일의 독일 "Bierhall(비어홀)" 개념을 도입하여 이전 쇼 바의 건물을 리모델링한 프로젝트이다.
건축가의 첫 번째 개입은 높이가 서로 다른 3개의 건물로 구성된 공간을 하나의 큰 홀을 만드는 것이었다. 먼저, 대형 공용 테이블을 맞춤 디자인했다. 테이블 높이에서 카운터 높이 테이블로, 서로 다른 층을 연결하여 공간을 엮고, 공간을 통해 발전한다. 메인 바는 Bavarian Stein Mug(독일 전통 맥주잔)의 무대 역할을 한다. 20개의 드래프트 라인은 깔끔한 미니멀리즘 효과를 위해 흰색 벽을 통과하여 설치되어 있다.
공간을 우뚝 솟은 전형적인 "Bierhall"의 전통 샹들리에가 공용 테이블 위에 매달려 있다. 구멍이 뚫린 열연강으로 만들어진 이 커다란 원형 고정 장치는 구멍을 통해 빛을 부드럽게 확산시킨다. 그리고, 외부의 돌출 파사드와 조강으로 만들어진 공간 내부의 다른 층 사이의 단계적 전환과 같은 유사한 요소들의 계열로 바꾸었다.
철거 과정에서 일부 재료의 제거로 테라조(Terrazzo) 바닥과 건물의 원래 석조 파사드와 같은 숨겨진 고품질의 요소들이 드러났다. 기존 재료에 목재 벽의 보온성과 조강의 절제된 요소를 접목하여 흑백의 대비되는 색상이 분위기를 고조시킨다.
Das Bier는 주로 맥주 애호가를 위한 장소이며 프로젝트 전반에 걸쳐 미묘하고 덜 미묘한 암시가 있다. 7,500개의 흰색과 금색 맥주 뚜껑을 조합하여 빛을 반사하고 공간을 비추는 패턴을 구성하여 화장실 입구 벽을 디자인했다. 또한 라운지 공간의 천장은 알루미늄 맥주 통으로 구성되어 있으며 조명 기구를 추가하여 천장을 낮추어 보다 캐주얼한 효과를 주었다.











Architects Humà design + architecture
Location Montreal, Canada
Completion 2015
Clients Kald Chaaban
Photographer Adrien Williams
'Interior Project > Cafe&Restaurant' 카테고리의 다른 글
| Memory of the old days (0) | 2021.10.05 |
|---|---|
| Place Carmin (0) | 2021.09.29 |
| PRO espresso (0) | 2021.09.08 |
| NÔL (0) | 2021.09.03 |
| Banu Restaurant (0) | 2021.09.01 |
마실와이드 | 등록번호 : 서울, 아03630 | 등록일자 : 2015년 03월 11일 | 마실와이드 | 발행ㆍ편집인 : 김명규 | 청소년보호책임자 : 최지희 | 발행소 : 서울시 마포구 월드컵로8길 45-8 1층 | 발행일자 : 매일



