
The Museum Fantapia M newly opened in Gangneung was a long-awaited plan of the Director Jang Gil-hwan. The museum was initially located at the foot of the mountain behind the motorway toward Sacheon, and now it has been relocated to the entrance of Anmok Port. The Gangneung has a lot of potentials. The mountains, sea, and its culture bring great emotion and precious memories to many tourists visiting there.

The natural environment is a very grateful gift to the local people and those who visit Gangneung. It can be a venue where you can recover both your body and mentality by shouting over the ocean and breathing the cleanest air from the mountain. However, the thing that impress your mind might be the cultural spaces around the city.

The Museum Fantapia M will be the guidance that directs the cultural upgrade of the city Gangneung. The world’s finest cups and rare cups that Director Jang has collected throughout his life whilst traveling around the world are on display, and you can appreciate masterpieces that expressed his own art world, as a painter.

Due to the shape of the building area which is narrow-long triangular, it became a considerable task that we needed to tackle as designers. In a way, it was a classical consideration in between form and function which will be expressed in a certain geometry that contains the story of the land and the programmatic needs.

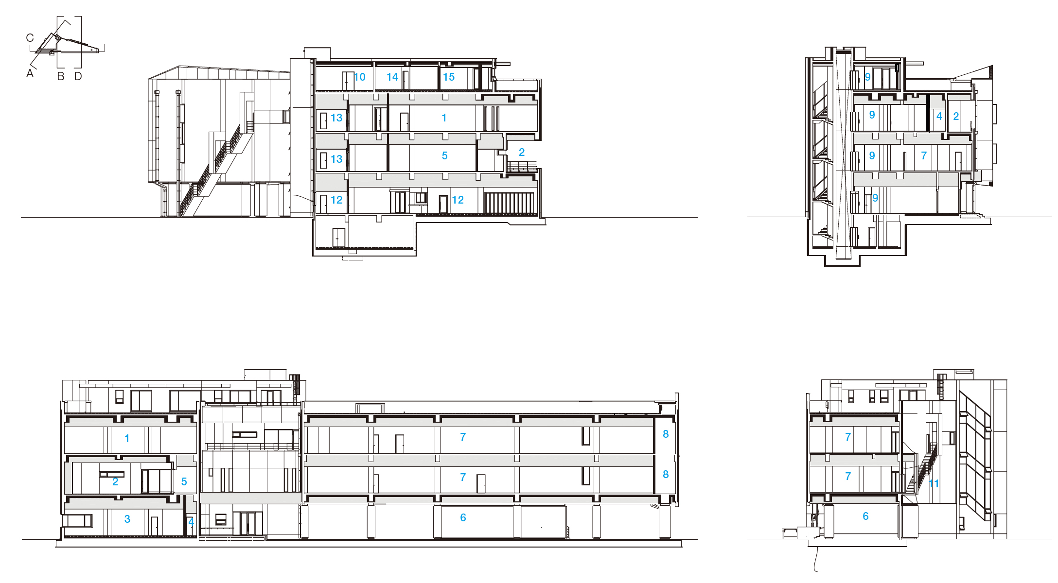
We started to create some iteration of models to support the initial design ideas. The iteration shows how the programs along with the exhibition area which is the main purpose of the overall architecture are circulating and communicating with each other. The building was planned as a total of 4 floors, and the first floor was composed of the parking lot with a piloti design, main entrance, and cafe, ensuring convenient access for visitors. The second floor consists of a cup exhibition hall and a space for children’s experiences and seminars.

The 3rd floor consists of a special exhibition area and an art gallery, displaying the works of artist Gil-Hwan Jang. The 4th floor and rooftop are planned as storage, residential, and outdoor exhibition area, and various event spaces where people can enjoy the beautiful scenery of the ocean.


As for the facility plan of the building, temperature and humidity facilities were used to manage expensive masterpieces, and appropriate air-conditioning and ventilation facilities were reflected to maintain a pleasant indoor environment for visitors. In particular, by airing elevator facilities and toilet facilities in consideration of the elderly and the disabled, they approached the barrier-free building environment more closely.

강릉 Fantapia M 박물관은 장길환 관장의 오랜 숙원으로 탄생됐다. 당초, 강릉 사천 방향 대로 뒤편 산자락에 위치하여 방문객의 접근성과 인지도가 다소 떨어지는 곳인데, 지난해 가을 커피거리로 유명한 안목항 입구에 새롭게 신축 이전함으로써 비로소 그 진가를 세상에 보이게 되었다.

강릉은 산, 바다 그리고 문화로 이곳을 찾는 많은 관광객들에게 큰 감동과 소중한 추억을 안겨준다. 천혜의 자연환경은 강릉 사람과 강릉을 찾는 사람들에게 참으로 고마운 선물이다. 우울할 때는 드넓은 바다를 향해 힘껏 소리치며 기분을 전환할 수 있고, 피곤할 때는 푸른 산 맑은 공기를 마시면서 심신을 회복한다. 하지만 이와 더불어 강릉 주변에 산재한 문화적 공간들은 강릉을 더 깊이 감동시키는 요소다.

이번에 새롭게 탄생한 Fantapia M 박물관은 강릉 문화를 한층 업그레이드하는 견인차 역할을 한다. 박물관 관장이 세계 여러 지역을 여행하며 평생에 걸쳐 수집한 세계적 명품 컵과 진귀한 컵들이 다양하게 전시되어 있고, 화가로서 자신만의 미술 세계를 표현하는 명작들을 감상할 수 있다.

설계 초기 건축 부지 현장조사를 조사하면서 대로를 따라 좁고 기다란 삼각형 모양의 부지 위에 어떤 형태의 건축이 가능할까? 하는 많은 고민이 있었다. 대지에 순응하면서도 박물관 고유의 이미지를 표현하기란 여간 고민스러운 일이 아닐 수 없었다.

디자인 초반, 건축물의 주 용도인 전시공간과 이를 뒷받침하는 지원 공간들의 위치를 이리저리 고민하며 모형을 통해 몇 가지 결과를 도출했다. 건축물은 전체 4층으로, 1층은 필로티 주차장과 주 진입구 및 카페로 구성하여 방문객의 편리한 접근성을 확보했다. 2층에는 컵 전시관과 어린이 체험 및 세미나를 할 수 있는 공간으로 구성했으며, 3층은 특별전시실과 미술관으로 구성하여 장길환 화가의 작품을 전시한다. 4층 및 옥상은 수장고, 주거공간 및 야외 전시공간으로 계획하여 바다 조망을 가진 다양한 이벤트 공간으로 활용된다.

건축물의 설비계획으로는 고가의 작품 관리를 위해 항온, 항습설비를 하였고 방문객을 위한 쾌적한 실내환경을 유지할 수 있도록 적절한 냉난방 및 환기설비를 반영하였다. 특히, 노약자와 장애인을 고려한 승강설비, 화장실 설비를 반영함으로써 무장애 건축환경에 더 가깝게 접근했다.

아름다운 건축물은 도시를 살리고 도시에 생명력을 공급하는 원천이다. 인간은 태어나서부터 공간을 넘나들고 공간 속에 살다가 죽는다. 다양한 형태, 다양한 용도의 건축물과 함께 인간들의 삶이 평온해지길 소망해 본다. 글: 최성두


Architect Architect ArchiLine
Location Haean-ro, Gangneung-si, Gangwon-do, Republic of Korea
Program Museum
Site area 1,430m2
Building area 845m2
Gross floor area 2,287m2
Building scope B1, 4F
Building to land ratio 59%
Floor area ratio 153%
Design period 2019. 9 - 2020. 3
Construction period 2020. 3 - 11
Completion 2020. 11
Principal architect Sungdoo Choi
Project architect Jaeseong Hwang
Design team Jongho Lee, Soyun Lee, Jeonggil An
Structural engineer Minsu Lee
Mechanical engineer Changyeon Seo
Electrical engineer Jeongyeong Kim
Construction Olrae Construction
Client Fantapia Museum
Photographer Junghun Lee
해당 프로젝트는 건축문화 2021년 5월호(Vol. 480)에 게재 되었습니다.
The project was published in the May, 2021 issue of the magazine(Vol. 480).
May 2021 : vol. 480
Contents : SPECIAL ARTICLE BRIEF CONSIDERATIONS ON CONGLOMERATE FIRMS / HYUNTAE JUNG : RECORDS VENICE BIENNALE 2021 TO OPEN MAY : NEWS / COMPETITION / BOOKS : SKETCH THE GATE IN TRAVELLING / MARGARITA ZHDANOVA
anc.masilwide.com
'Architecture Project > Cultural' 카테고리의 다른 글
| GALLERY SIMON (0) | 2021.10.18 |
|---|---|
| GUNG-DONG ART CENTER (0) | 2021.09.01 |
| DANGJIN SENIOR CENTER (0) | 2021.07.05 |
| THE FIELD (0) | 2021.06.10 |
| TAN ALLEY·WUZHEN ECO AND CULTURAL COMMUNITY (0) | 2021.06.09 |
마실와이드 | 등록번호 : 서울, 아03630 | 등록일자 : 2015년 03월 11일 | 마실와이드 | 발행ㆍ편집인 : 김명규 | 청소년보호책임자 : 최지희 | 발행소 : 서울시 마포구 월드컵로8길 45-8 1층 | 발행일자 : 매일



