
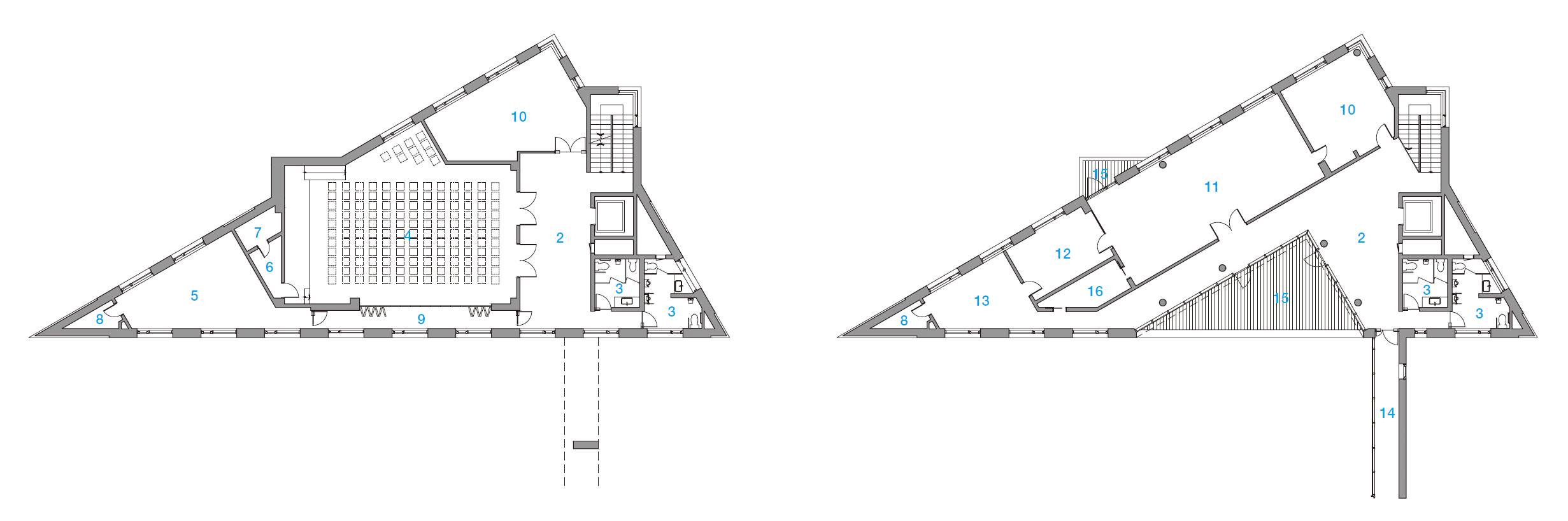
The Dangjin Senior Center, which will be expanded in Dangjin City’s General Welfare Town, is a project that takes into consideration the psychological and social aspects of forming a local elderly community in the town, not just creating an accumulation of facilities. It serves its function as a business facility, harmoniously connects to the existing building and the site, and provides a comfortable living environment with minimal changes because of the expansion. In addition, it aimed at an integrated expansion of the existing building through an active linkage with the existing programs.

The shape of the building has been optimized into a naturally triangular volume while maintaining a sufficient distance from the existing building located on the southeast side and following the boundary of the park on the north side. The three vertices of the triangle are revealed as a volume of space even in the interior area. I hope the Dangjin Senior Center will be used as it was originally intended, in conformity with the existing order, rather than revealing it to the outside.

당진시 종합복지타운 내 증축되는 ‘당진시 노인회관’은 단순한 시설의 집적을 넘어 마을 어르신들과의 지역 커뮤니티 형성에 이르는 심리적, 사회적 측면까지 배려된 프로젝트다. 업무시설로서 기능을 만족시키면서 기존 건물과 대지와 조화롭게 관계 맺으며, 증축으로 인한 최소한의 변화와 쾌적한 거주환경을 제공한다. 또한, 기존 프로그램과 적극적인 연계를 통해 기존 건물을 전체적으로 확장한다.

건물의 형태는 남동 측에 위치한 기존 건물과의 충분한 이격 거리를 확보하고 북측 공원의 경계에 대응하면서 자연스럽게 삼각형의 볼륨으로 최적화됐다. 삼각형의 세 꼭짓점은 내부 공간에서도 공간의 볼륨이 드러나도록 했다. ‘당진시 노인회관’이 밖으로 드러나기 보다 기존 질서에 순응하여 원래 그곳에 있었던 것처럼 이용되길 바란다.








Architect Bold architects + Sosol architects
Location Sicheong1-ro, Dangjin-si, Chungcheongnam-do, Republic of Korea
Program Geriatric Institutions
Site area 12,441.60m2
Building area 348.71m2
Gross floor area 672.74m2
Building scope 3F
Building to land ratio 2.80%
Floor area ratio 5.41%
Design period 2019. 6 - 12
Construction period 2020. 1 - 11
Completion 2020. 11
Principal architect (Bold architects)Sungjin Shin , Sunghan Wang
Design team Bold architects, Sosol architects
Structural engineer Eun Structural Engineering Co.
Mechanical engineer Jinwon Engineering Co.
Electrical engineer Jinwon Engineering Co.
Construction Daelim Construction Co.
Client Dangjin City Hall
Photographer Yousub Song
해당 프로젝트는 건축문화 2021년 5월호(Vol. 480)에 게재 되었습니다.
The project was published in the May, 2021 issue of the magazine(Vol. 480).
May 2021 : vol. 480
Contents : SPECIAL ARTICLE BRIEF CONSIDERATIONS ON CONGLOMERATE FIRMS / HYUNTAE JUNG : RECORDS VENICE BIENNALE 2021 TO OPEN MAY : NEWS / COMPETITION / BOOKS : SKETCH THE GATE IN TRAVELLING / MARGARITA ZHDANOVA
anc.masilwide.com
'Architecture Project > Cultural' 카테고리의 다른 글
| GUNG-DONG ART CENTER (0) | 2021.09.01 |
|---|---|
| FANTAPIA MUSEUM (0) | 2021.07.06 |
| THE FIELD (0) | 2021.06.10 |
| TAN ALLEY·WUZHEN ECO AND CULTURAL COMMUNITY (0) | 2021.06.09 |
| U.S. OLYMPIC AND PARALYMPIC MUSEUM (0) | 2021.04.16 |
마실와이드 | 등록번호 : 서울, 아03630 | 등록일자 : 2015년 03월 11일 | 마실와이드 | 발행ㆍ편집인 : 김명규 | 청소년보호책임자 : 최지희 | 발행소 : 서울시 마포구 월드컵로8길 45-8 1층 | 발행일자 : 매일



