
Gung-dong Art Center is a public facility designed as part of an urban revitalization base strategy that induces the energization of urban regeneration leading areas by capturing the cultural potential and memories of the old city center in Dong-gu, Gwangju.
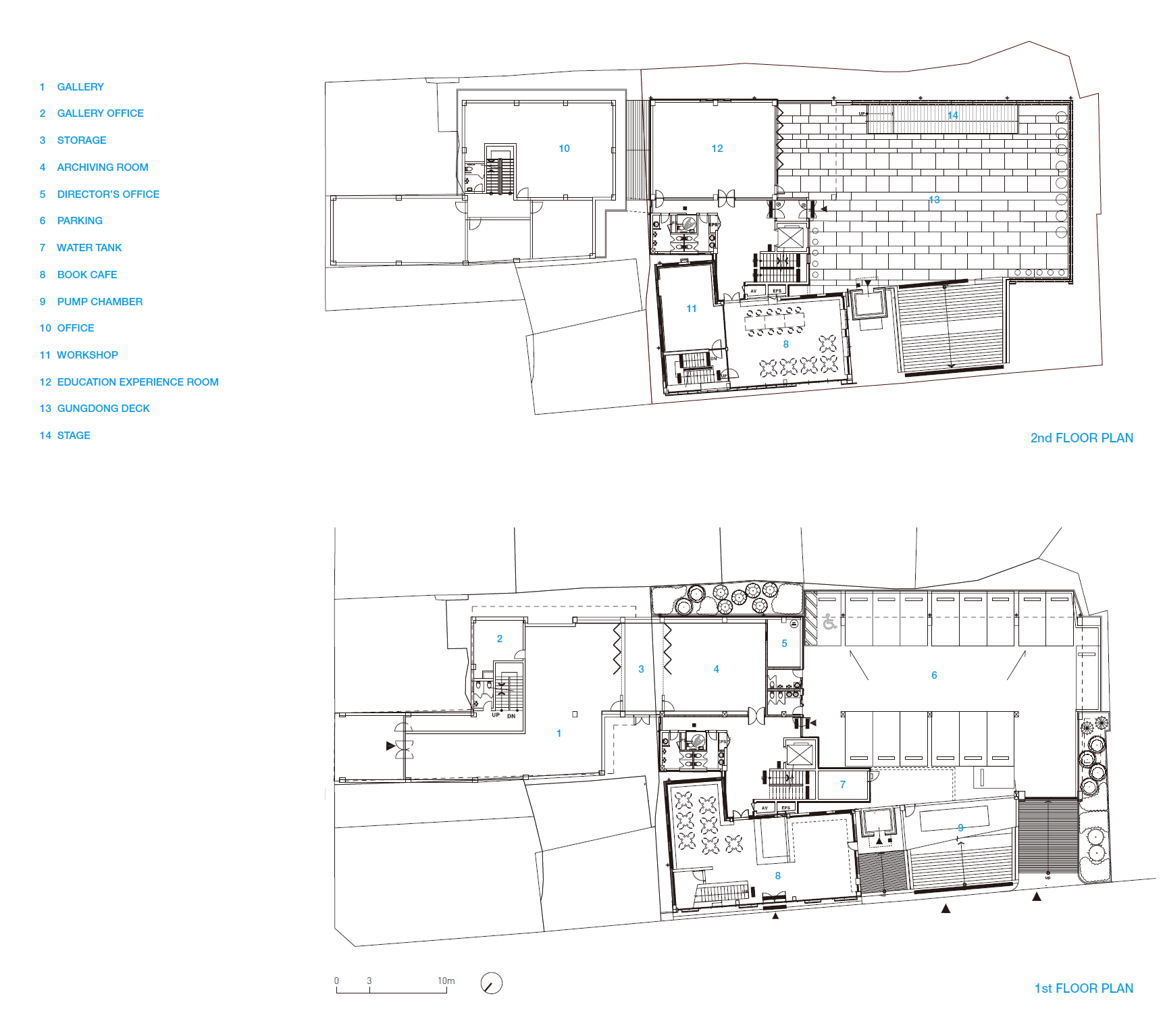
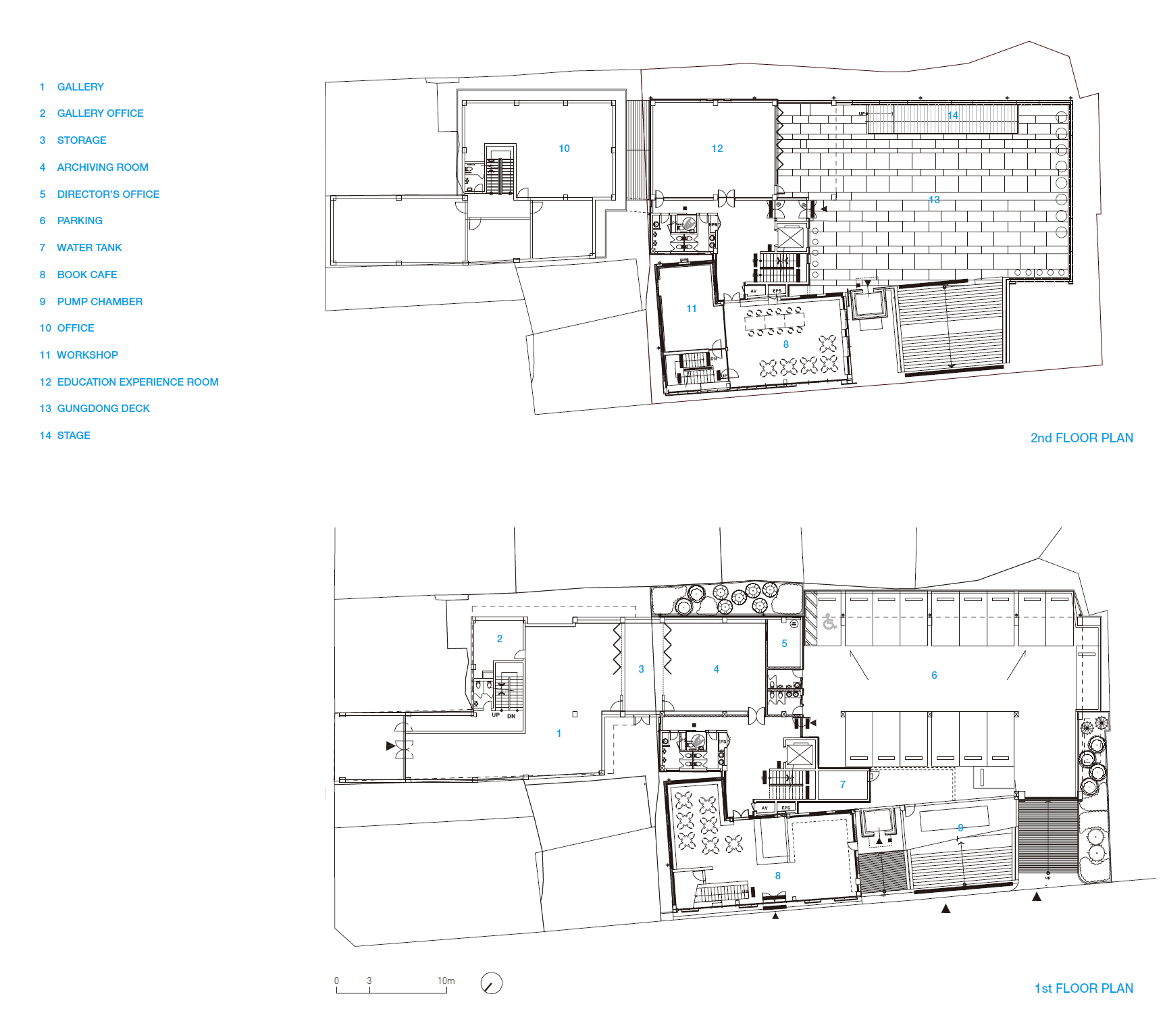
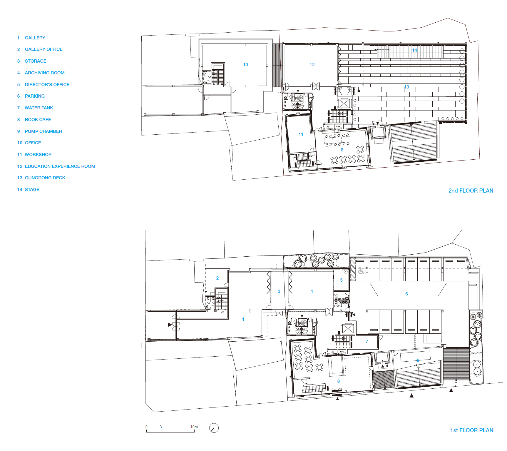
The emptied boundaries that allow communication in a chaotic urban landscape, the so-called “art frames”, will become a cultural communication space for citizens visiting the street of art within the new city where the past and present coexist and fuse with the traces of the city. The open plaza of the “art frame” planned on the upper floor of the above-ground parking lot is a space that stretches out into the sky. The wide plaza is a space where the urban residents can come across art and be healed in the middle of the city, and it is also a space that solves the challenging parking issues in the city. The “Gung-dong Maru”, an oasis space in the city where history, culture and art converge, will welcome visitors here. The architect looked around the surrounding environment and concentrated on capturing the program through a void space before designing a solid space. Consequently, each cultural and artistic space was planned with a size and form of the space that maximized the function of the program. The book cafe and gallery were placed on the main road on the northwest side and the northest side, and they were arranged this way in accordance with the direction of entry from the nearby roads as well as the Gung-dong Art Theater. Furthermore, the book cafe/workshop studio and the education experience room on the second floor, the creative space and the performance hall on the third floor, and the multipurpose space on the fourth floor are all connected with the open plaza “Gung-dong Maru”.
In addition, the space that is connected to the Gung-dong Art Center is accompanied by a newly renovated space using the existing building. As a free-curved facade is added onto the image of the old city, the space continues the historicity of the art street and becomes the face of the cultural and artistic base in the new city center.

궁동예술두레마당은 광주 동구 구도심의 문화적 잠재력과 기억을 플랫폼 안에 담아 도시재생선도지역의 활성화를 유도하는 도시활성화 거점 전략의 일환으로 마련된 공공시설이다.
무질서한 도시풍경에서 소통 가능한 비워진 경계, 일명 “아트프레임”은 예술의 거리를 찾아온 시민들에게 도시의 흔적과 함께 융합되고 과거와 현재가 공존하는 새로운 도시 속 문화소통 공간으로 자리매김하게 될 것이다. 지상 주차장의 상층에 계획된 “아트프레임”의 열린 광장은 하늘로 펼쳐진 공간이다. 넓은 광장은 도심 속에서 해결하기 어려운 주차 문제를 해결하는 동시에 도시민들이 도심 한가운데서 예술을 접하며 힐링할 수 있는 공간이다. 도심 속의 역사, 문화, 예술이 융합된 오아시스 공간인 “궁동마루”가 이곳의 방문객들을 반겨줄 것이다. 건축가는 주변 환경을 둘러보며 솔리드한 공간을 계획하기에 앞서 보이드 공간을 통해 프로그램을 담아내는 것에 집중했다. 그 결과 각각의 문화예술 공간은 프로그램의 기능을 최대화한 공간의 크기와 형태로 계획됐다. 북카페, 갤러리는 북서 측 메인도로 및 북동에 배치됐는데, 주변 도로와 궁동예술극장에서의 진입 방향에 따라 배치된 결과물이다. 또한, 2층의 북카페/공방, 교육체험실, 3층의 창작공간실, 공연장, 4층의 다목적 공간은 열린 광장 “궁동마루”와 연계된다.
또한, 궁동예술두레마당과 이어지는 공간은 기존의 건축물을 활용하여 새롭게 정비된 공간이 함께 한다. 옛 도시의 이미지에 자유로운 곡선 파사드가 덧대지며, 예술 거리의 역사성을 잇고 새로운 도심 속의 문화예술거점의 얼굴이 되는 공간이다.














Architects Yongsun Joo(Honam Univ.) + Architecture Urban Design Research Association
Location Jungang-ro, Dong-gu, Gwangju, Republic of Korea
Program Public facility, Square
Site area 1,223.10m2
Building area 978.48m2
Gross floor area 1,337.57m2
Building scope 4F
Building to land ratio 68.95%
Floor area ratio 109.36%
Completion 2021
Principal architect Yongsun Joo
Design team Architecture Urban Design Research Association
Photographer Yongsu Kim(MasilWIDE)
해당 프로젝트는 건축문화 2021년 7월호(Vol. 482)에 게재 되었습니다.
The project was published in the July, 2021 issue of the magazine(Vol. 482).
July 2021 : vol. 482
Contents: RECORDS 2021 SEOUL LIVING DESIGN FAIR : NEWS / COMPETITION / BOOKS : SKETCH BETWEEN PERSON AND ARCHITECTURE / NIKITA BATRAKOV
anc.masilwide.com
'Architecture Project > Cultural' 카테고리의 다른 글
| MATSUBARA CIVIC LIBRARY (0) | 2021.10.22 |
|---|---|
| GALLERY SIMON (0) | 2021.10.18 |
| FANTAPIA MUSEUM (0) | 2021.07.06 |
| DANGJIN SENIOR CENTER (0) | 2021.07.05 |
| THE FIELD (0) | 2021.06.10 |
마실와이드 | 등록번호 : 서울, 아03630 | 등록일자 : 2015년 03월 11일 | 마실와이드 | 발행ㆍ편집인 : 김명규 | 청소년보호책임자 : 최지희 | 발행소 : 서울시 마포구 월드컵로8길 45-8 1층 | 발행일자 : 매일



