
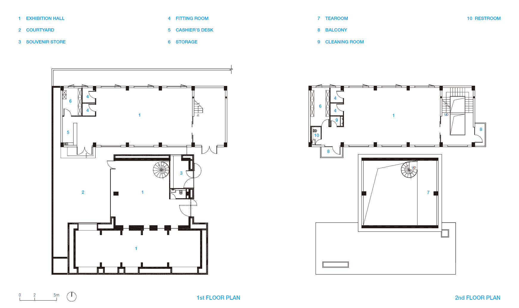
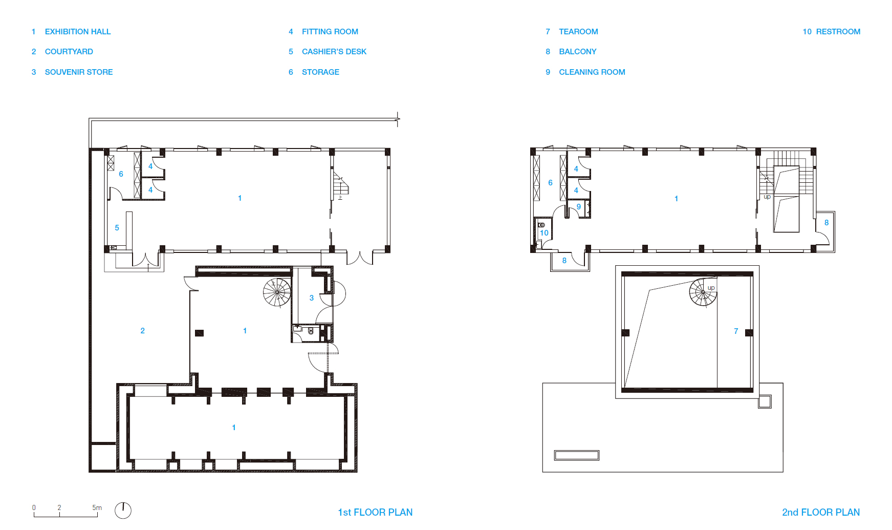
The project is located at the former site of an aluminum factory in Xiamen City. The building was originally a public bath of the factory. This time we were commissioned by the Buddhist artist Jiang Sheng to renovate the building into a new studio and exhibition space called “The Field”. After communication with the client, we reached an agreement on the design concept: a hidden and even invisible architecture. The building is merely an intermedium to carry the statues of Buddha and contain the essence of Buddhism, and is a “residence” for Buddha in the mundane world. Based on the architectural concept of “the residence of Buddha”, we renovated the building from the inside out.

First, we blocked up the windows on the façade of Building 1 and 2, and remove the internal walls of Building 1, thus creating a relatively integrated “darkroom”, emphasizing an introvert, enclosed atmosphere. Afterwards, we rearrange and simplified the exterior of the building, weakening the building’s original form. The exterior of the building is painted with the same sandalwood yellow color as the interior, thus making the three buildings regain the remarkable integrity and recognition.

Xiamen is characterized by strong sunshine and heavy rain. Inspired by this, we added 31 skylights on top of the building, either round or square, in arrays or isolated. The 28 circular skylights at the top of the main hall are recessed upwards, appearing as flat spots of light when the sunlight is oblique, and as dense “rain of light” when the sun is direct.

We opened two square skylights of different sizes at the top of the dark room and a horizontal strip window at the bottom of one wall. So the light in the dark room is more diffuse and hazy. When we first surveyed the site, we were amazed by the huge magnolia tree on the east side of the building. Now the magnolia tree is like a dharma-vessel of the “The Field”. The magnolia tree guides and speaks within the circulation, which is both the start and the end of the circulation.

이 프로젝트는 샤먼의 알루미늄 공장이었던 부지에 자리하고 있다. 기존 건물은 공장의 공중 목욕탕이었다. 불교 예술가 Jiang Sheng이 건물을 ‘The Field’라는 새로운 스튜디오와 전시 공간으로 바꿔 달라는 의뢰를 했다. 고객과의 대화를 통해 숨겨져 보이지 않는 건축이라는 디자인 개념에 대한 합의점을 찾았다. 건물은 단지 부처상을 나르는 매개의 역할을 하고 불교의 본질을 담고 있는 곳이다. 그리고 평범한 세계에서 부처의 ‘거처’다. ‘부처의 거처’라는 건축 개념을 바탕으로 건물을 내부에서 외부로 개조했다.

처음으로 건물1과 2의 파사드에 있는 창문을 막고 건물1의 내부 벽을 제거함으로써 통합된 “암실”을 만들어 내향적이고 밀폐된 분위기를 강조했다. 그 후 건물 외관을 재정비하고 단순화하여 건물의 기존 형태를 약화시켰다. 건물의 외부는 내부와 동일한 샌달우드 노란빛의 색으로 칠했다. 이로써 3개의 건물이 두드러질 만큼의 무결성과 인식을 되찾았다.

샤먼은 강한 햇빛과 폭우가 특징이다. 이에 영감을 받아 건물 꼭대기에 31개의 원형 또는 정사각형의 채광창을 배열하거나 따로 달아 놓았다. 중앙 홀 상단에 있는 28개의 원형 채광창은 위쪽으로 움푹 들어간 채로 있는데 햇빛이 비스듬하게 들어올 때는 평평한 빛의 점으로 보이고 바로 들어올 때는 조밀한 빛의 비로 보인다.

어두운 방의 상단에는 크기가 다른 두 개의 정사각형 채광창을 달고 벽면 한쪽의 하단에는 수평의 스트립 창을 달았다. 이로 인하여 어두운 방의 빛은 보다 더 분산되고 흐릿해진다. 처음 부지를 조사했을 때, 건물 동쪽에 있는 거대한 목련나무에 놀랐다. 이제 이 목련 나무는 ‘The Field’의 달마 그릇과 같다. 목련나무는 순환의 시작이자 끝이 되고, 순환이 무엇인지 안내하고 말해준다.










Architect TEAM_BLDG
Location Xiamen, Fujian, China
Program Exhibition, Office & Retail
Building area 842m2
Design period 2019. 11 - 2020. 2
Construction period 2020. 2 - 6
Completion 2020. 6
Project architect Xiao Lei, Yang Yuqiong, Lin Wenjun, Wang Han
Client JIANGJIABAN
Photographer Jonathan Leijonhufvud
해당 프로젝트는 건축문화 2021년 4월호(Vol. 479)에 게재 되었습니다.
The project was published in the April, 2021 issue of the magazine(Vol. 479).
April 2021 : vol. 479
Contents: RECORDS THE WINNERS OF THE 2021 PRITZKER PRIZE: NEWS / COMPETITION / BOOKS: SKETCH ROBIE HOUSE, CHICAGO / LAPIN
anc.masilwide.com
'Architecture Project > Cultural' 카테고리의 다른 글
| FANTAPIA MUSEUM (0) | 2021.07.06 |
|---|---|
| DANGJIN SENIOR CENTER (0) | 2021.07.05 |
| TAN ALLEY·WUZHEN ECO AND CULTURAL COMMUNITY (0) | 2021.06.09 |
| U.S. OLYMPIC AND PARALYMPIC MUSEUM (0) | 2021.04.16 |
| HE ART MUSEUM (0) | 2021.04.15 |
마실와이드 | 등록번호 : 서울, 아03630 | 등록일자 : 2015년 03월 11일 | 마실와이드 | 발행ㆍ편집인 : 김명규 | 청소년보호책임자 : 최지희 | 발행소 : 서울시 마포구 월드컵로8길 45-8 1층 | 발행일자 : 매일



