
Hwaseong is a city near Seoul. Hwaseoung is a pronoun, but shares the same sound as Mars in Korean, Thus the name “Mars” for the project. The Building is located in the middle of new urban development within Hwaseong city. This part is relatively new and vacant, almost barren, with a stretch of imagination, evoking some kind of foreign landscape in the planet of Mars.

The Client is sometimes very pivotal in the design direction. He is indeed an individual with a distinct desire to have something that is not ordinary or ubiquitous. He desired a multi-purpose building that contains his house, two houses for rental usage and commercial space also for rent. His demand was focused on coming up with a design that does not show any kind elements of conventional housing.

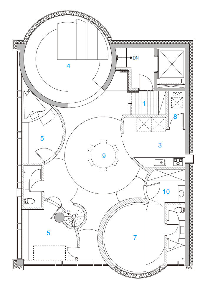
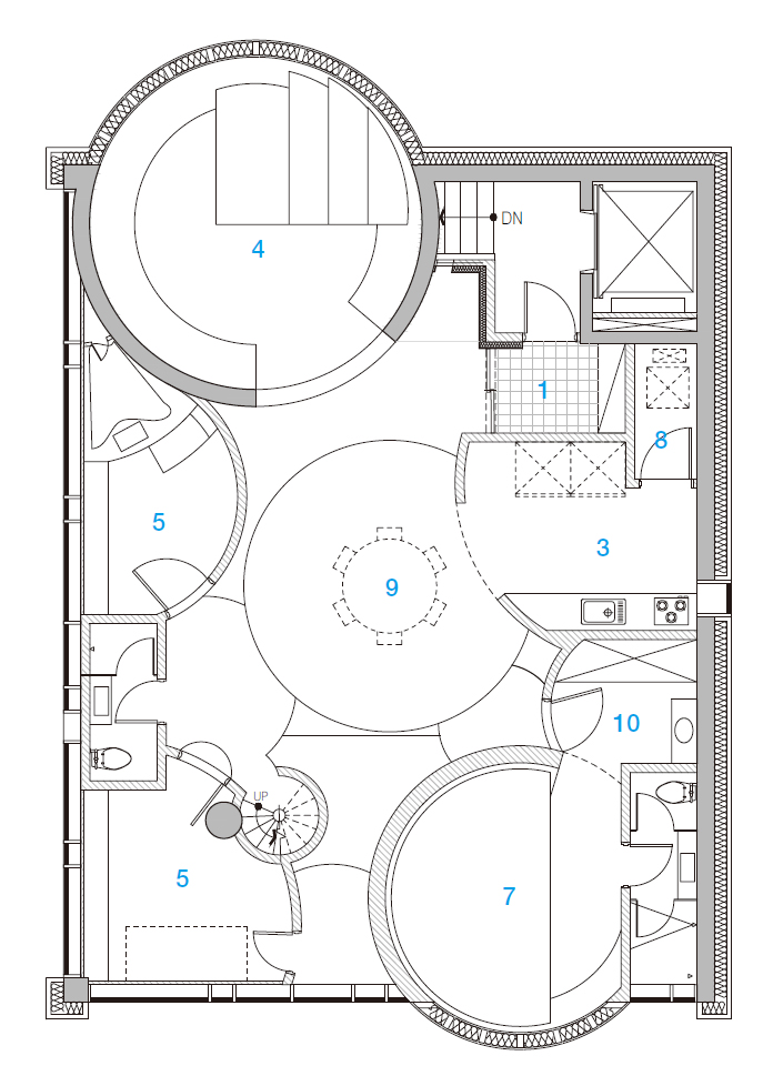
The mobile Habitat(Mars Station) with caterpillar became the initial design concept. Each floor is independent and has unique geometry evoking movement and imaginary context. They are stacked and conjoined like 3D puzzles, especially angled floor slabs which also behave as rooves provide illusory experience of different gravity.

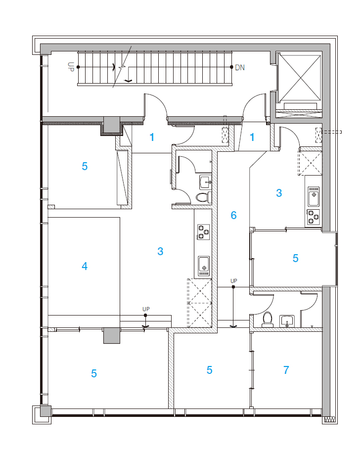
The 1st floor is rectangular and open, providing flexibility for commercial users. The 2nd floor contains Two houses. One has three bedrooms, while the other is one bedroom apartment. The 3bedroom house provides much flexibility and transparency through sliding doors. The 3rd floor for the client is where, there is most freedom in the design and organization of rooms. The house was looked at as a small and symbolic universe where spaceships and planets are mingled haphazardly, evoking some kind of strange universe.

The 2nd, and 3rd floor slab, which are also the roof of 1st floor and 2nd floor respectively are not flat but angled and folded, which is very uncommon in general architecture. It strives to provide two things, firstly dynamic spatial experience beyond the rectangular box, in spite of being in the vertically stacked space, secondly providing illusory spatial experience, where folded floors, provide false sensation of gravity. The Sphere space on the 3rd floor mimics mini Pantheons or Boulle’s Spheres, which provide extra ordinary spatial experiences, within the context of a house.

Fantasies and Imaginations: The utilitarian aspect of Architecture is not ignored, but fulfilled. Where else can you go from there? The Special client with the right architect can travel to the land of fantasies and imaginations, where names denote other things, and where shapes evoke other dimensions and time. I believe we have been doing this, by erecting houses for gods and other entities all throughout history. The collective urges and desires have given way to individual inclinations and understandings, which can somehow expand the boundary of architecture to a whole new level of lightness and seriousness.

경기도에는 화성이라는 불리는 곳이 있다. 꽤나 넓은 면적을 차지하고 있는 신도시를 위한 넓은 분할필지 단지가 자리 잡고 있다. 고양시는 고양이가 마스코트이고, 영월군의 캐치프레이즈가 ‘영월드’이듯 화성에 지어질 건물은, 설계가 마무리되기 전부터 나름 지구와 가까운 “화성”(MARS)으로 이름을 짓고, 그 사막하고 낯선 탐험에 어울릴듯한 공간과 형태를 상상하기 시작했다. 모 두부를 잘라 놓은 듯 일정한 크기로 분할한 땅의 크기와 의뢰인의 건물면적 최대치 욕망을 더하면, 다양한 건축가들의 노력에도 불구하고, 비슷비슷하면서도 부조화한 마을이 형성되기 일쑤다. 물론, 스스로도 개성이 강한 건물을 설계하는 사람이 하는 말로 어색하게 들릴 수 있겠지만, 단 한마디는 분명하게 말하고 싶은 구석이 있다. 즉, 마을의 통일성을 갖추기 위해서는 형태의 다채로움에 제약을 가하는 것보다는 전체적으로 한 톤으로 귀속시키는 것이 유리하다.

찾아보지도 아니하고, 막연히 기억에 기대어 화성 탐사기지, 혹은 탐사선을 떠올려 본다. 붉은빛이 반사되는 마감재로 감싸진 변형된 육각형 공간들이 서로에게 맞물려 중첩되어 있고, 언제든지 떠날 수 있는 공간, 땅과의 관계에서도 최소한의 접점을 유지하는 공간.

경사진 바닥 슬라브들은 여기저기 펼쳐져 있다. 다른 중력장에 와 있는 듯한 생각을 하듯이 말이다. 경사진 바닥과 경사진 지붕을 통해 다양하고 작은 레벨의 변화를 느껴본다. 1층에는 상업공간을 목표로 평평하고 직사각형 공간으로 이루어져 있고, 2층에 오르면 두 세대가 각자 다른 공간 형식을 이룬다. 3룸의 경우 다양한 레벨차와 더불어, 거실 공간이 실내이지만 마치 외부의 중정 마당처럼 계획됐다. 의뢰인 가족의 거주하는 3층 공간은 처음부터 소우주라는 아이디어로 기획되었다. 미니 판테온 혹은 불레의 공간을 상기시키는 구 공간이 거실 및 영화감상실로 존재하고, 안방 겸 침실 또한 구의 형태다. 식당 주방, 그리고 아이들 방마저, 원형의 행성처럼 각자 독립되어 있고, 그 사이 공간들은 레벨 차이로 구분된다. 어두운 원형 계단을 통해 다락 공간을 오르면, 그제야 투명 망토를 둘러 눈에 들어오지 않았던, 우주선 혹은 다리가 모습을 드러낸다.

건축은 대체적으로 일상생활에 불편이 없는 공간구성을 제공하는 역할을 한다. 그래서 많은 경우 공간의 질과 재료 디테일의 수준으로 건축의 수준 혹은 질을 말한다. 이야기(DNA)로 이루어진 우리의 몸, 매 순간의 경험, 그리고, 그 기억의 이야기로 이루어진 우리의 삶은, 우리들을 이야기 중독자로 이끈다. 건축을 가지고 어떤 이야기를 할 수 있을까? 무슨 이야기를 할 수 있을까의 지점에서 내가 지향하는 건축의 방향성이 난파선처럼 서성이고 있다. 무한한 가능성을 품는 다곤 하지만, 결국은 의뢰인으로부터 출발하고, 건축가의 편견의 편린 속에 가두어져 있다. 그래도 그렇게 하는 것이 의뢰인 건축가, 그리고 사용자에게 가끔은 신선함을 제공한다고 믿고 싶다. 상상계를 향하여 건배를 또 한 번 하고 만다.











Architect Moonbalsso + Mooyuki
Location Dongtansunhwan-daero, Hwaseong-si, Gyeonggi-do, Republic of Korea
Program Neighborhood living facility
Site area 264m2
Building area 151.09m2
Gross floor area 432.71m2
Building to land ratio 57.23%
Floor area ratio 163.91%
Building scope 3F
Design period 2019. 10 - 2020. 1
Construction period 2020. 3 - 12
Structure RC structure
Project team Seongbong Yun, Sanghyeok Park, Kibum Park, Jiwon Park, Sangmin Choi
Structure engineer SDM
Mechanical, Electrical engineer Chung-hyo
Client Hongjun Na
Construction CNC CONSTRUCTION
Photographer Changmook Kim
해당 프로젝트는 건축문화 2021년 5월호(Vol. 480)에 게재 되었습니다.
The project was published in the May, 2021 issue of the magazine(Vol. 480).
May 2021 : vol. 480
Contents : SPECIAL ARTICLE BRIEF CONSIDERATIONS ON CONGLOMERATE FIRMS / HYUNTAE JUNG : RECORDS VENICE BIENNALE 2021 TO OPEN MAY : NEWS / COMPETITION / BOOKS : SKETCH THE GATE IN TRAVELLING / MARGARITA ZHDANOVA
anc.masilwide.com
'Architecture Project > Commercial' 카테고리의 다른 글
| ACRE (0) | 2021.07.21 |
|---|---|
| Den Da Coffee Shop (0) | 2021.07.08 |
| GREEN PEA (0) | 2021.06.11 |
| URBAN SPACE (0) | 2021.06.04 |
| ARIM TOWER (0) | 2021.06.03 |
마실와이드 | 등록번호 : 서울, 아03630 | 등록일자 : 2015년 03월 11일 | 마실와이드 | 발행ㆍ편집인 : 김명규 | 청소년보호책임자 : 최지희 | 발행소 : 서울시 마포구 월드컵로8길 45-8 1층 | 발행일자 : 매일


