
The site where the bakery cafe is to be built is located on the border going from downtown Cheongju to the outskirts. Mipyeongcheon Stream flows in front, and the fields of Yongpyong are spread out behind. However, the site surroundings are busy with an indoor golf course, cathedral, church, auto shop, factory, and restaurants. Instead of looking at the surrounding landscape, one must focus on the interior space.

Just as the taste of coffee can differ depending on the cup containing it, the space containing users delivers a variety of experiences. Instead of creating a space woven by small spaces in the city center, it creates a wide space in the outskirts, providing a relaxed experience.

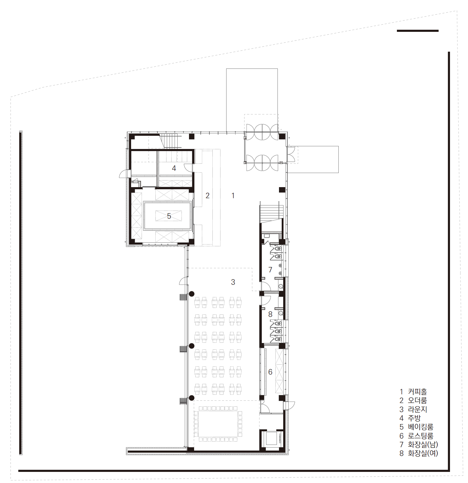
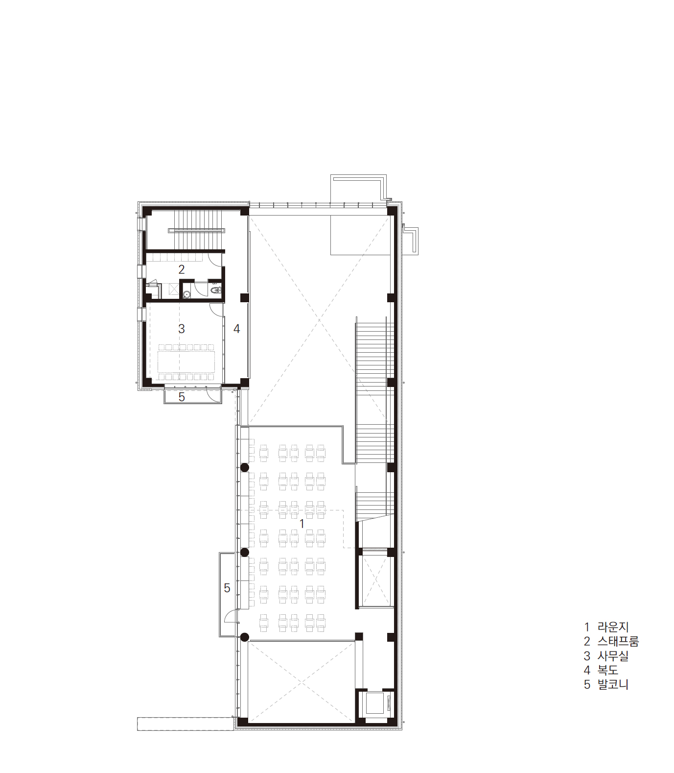
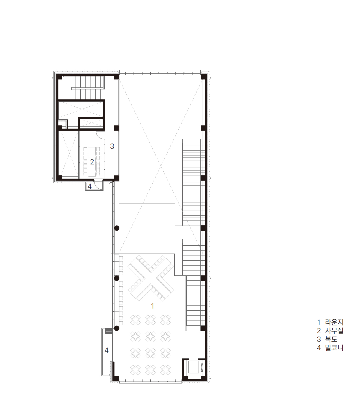
The whole is empty as one space, and the floor is located differently on each floor. Three floors on the north, two floors on the south, one floor in the middle, and the gable on the top floor creates spaces of various volumes, and a staircase that runs through them connects the spaces. In a simple spatial structure, we imagine the space being filled with diverse stories of users as they experience various spaces.

베이커리 카페가 들어서게 될 대지는 청주 도심에서 외곽으로 이어지는 경계에 위치하고 있다. 앞으로는 미평천이 흐르고 있고, 뒤로는 용평들이 펼쳐져 있다. 하지만, 대지 주변은 복잡하다. 실내골프장, 성당, 교회, 카센터, 공장, 그리고 다양한 음식점들까지. 주변 풍경을 바라보기보다는 내부 공간에 집중해야 한다.

커피를 담는 잔이 커피의 맛을 다르게 전달해주듯이, 이용자들을 담는 공간이 다양한 경험을 전달해준다. 도심 속 작은 공간들로 조직된 공간이 아닌, 외곽의 드넓게 펼쳐지고, 여유를 안겨줄 수 있는 느슨한 경험을 주는 공간을 만든다.

전체는 하나의 공간으로 비워져 있고, 바닥은 층마다 다르게 위치한다. 북쪽은 3개층, 남쪽은 2개층, 가운데는 1개층, 맨위층은 박공으로 다양한 볼륨의 공간들을 만들고, 모두를 관통하는 계단으로 공간을 연결한다. 단순한 공간구조 속에서, 다양한 공간을 경험하며, 이용자들의 다양한 이야기들로 채워져 갈 수 있기를 상상한다.







Architect WHITE GROUND
Location Younpyeong-ro, Seowon-gu, Cheongju-si, Chungcheongbuk-do, Republic of Korea
Program Neighborhood living facility
Site area 2,551m2
Building area 504.28m2
Gross floor area 994.56m2
Building scope 3F
Building to land ratio 19.77%
Floor area ratio 38.99%
Design period 2019. 11 - 2020. 3
Construction period 2020. 4 - 2020. 12
Completion 2021. 2
Principal architect Yongmin Bang, Eungyung Shin
Structural engineer SDM Structural Engineer Office
Mechanical engineer Codam Technology Co., Ltd.
Electrical engineer Codam Technology Co., Ltd.
Construction Daeyeon Construction Co., Ltd.
Client Sunchan Kwon, Yeongsuk Lee
Photographer Hongro Youn
'Architecture Project > Commercial' 카테고리의 다른 글
| SEOKWOONDONG NEIGHBOURHOOD LIVING FACILITY_LEE YANG-JI'S KITCHEN SCHOOL (0) | 2021.08.06 |
|---|---|
| LEEDO SAU (0) | 2021.07.23 |
| Den Da Coffee Shop (0) | 2021.07.08 |
| MARS (0) | 2021.07.02 |
| GREEN PEA (0) | 2021.06.11 |
마실와이드 | 등록번호 : 서울, 아03630 | 등록일자 : 2015년 03월 11일 | 마실와이드 | 발행ㆍ편집인 : 김명규 | 청소년보호책임자 : 최지희 | 발행소 : 서울시 마포구 월드컵로8길 45-8 1층 | 발행일자 : 매일



