
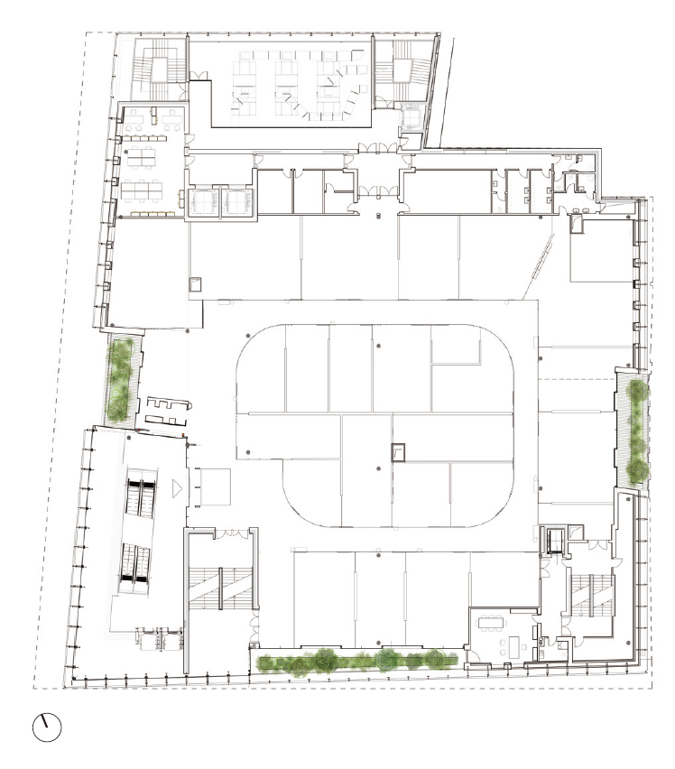
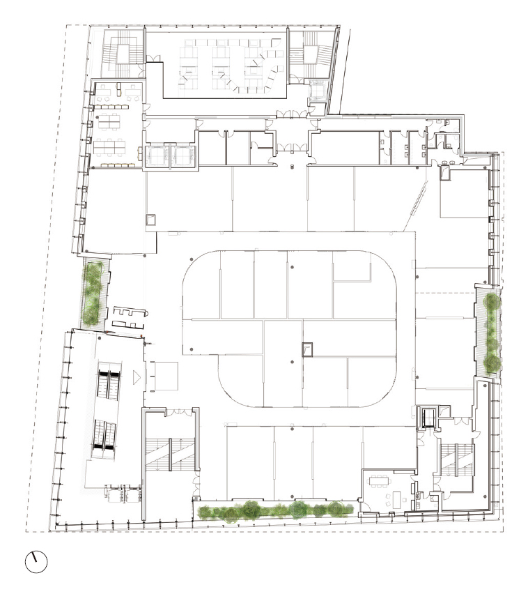
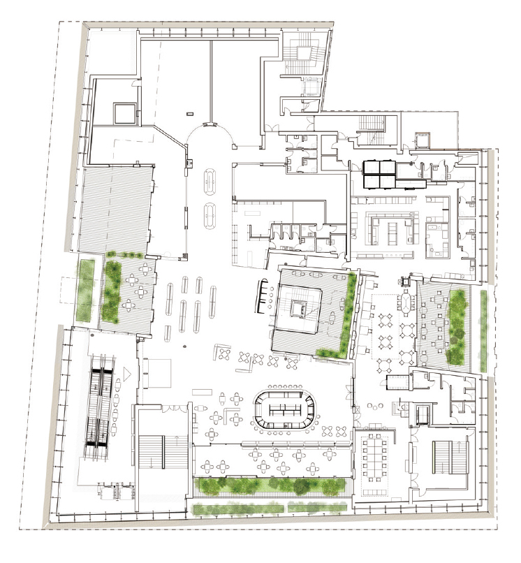
Green Pea fits into the context of the great transformation of the historic industrial area of Turin grown up around Fiat Lingotto. The regeneration started in the 1990s with the transformation of the factory into a multifunctional center signed by Renzo Piano, followed by the first Eataly headquarters in the former Carpano area in 2007, designed by the same architects of Green Pea. From the industrial development of the twentieth century to the tertiary sector, the area is now facing the challenge of the future, that of sustainable architecture. Green Pea is a retail park dedicated to conscious and sustainable consumption, a manifesto built with new technologies and natural materials to convey the idea of respect for the environment and nature. Designed as an organic shape permeated with light and greenery, the building is defined by a web of sunshades in spruce wood, coming from the forests cut down by the storm Vaia in 2018.

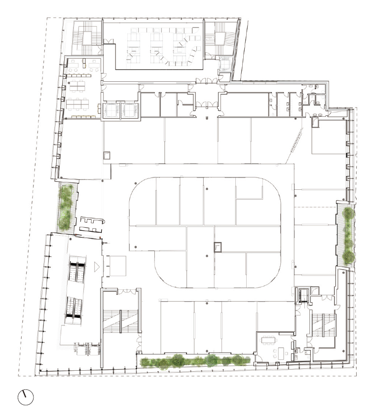
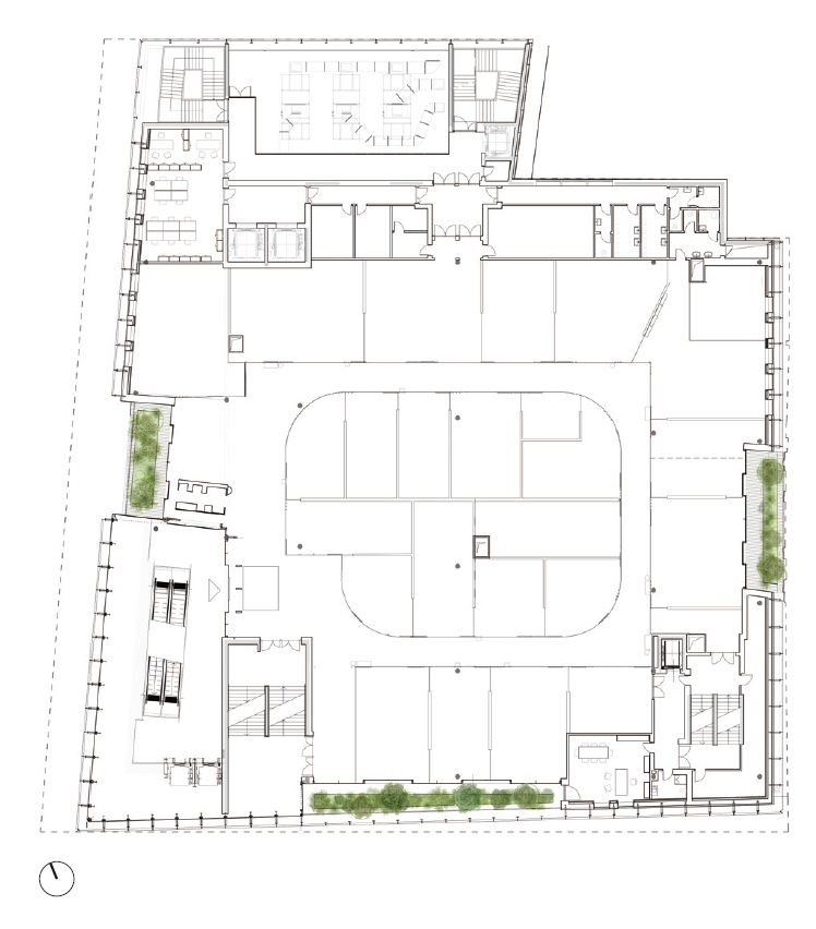
The volume, north-south oriented, is carved out by planted terraces and lightened by a central cut that leaves room for greenery. The bioclimatic greenhouse roof is a large hanging garden that becomes the fifth facade of the building.

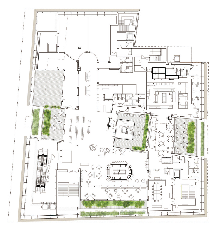
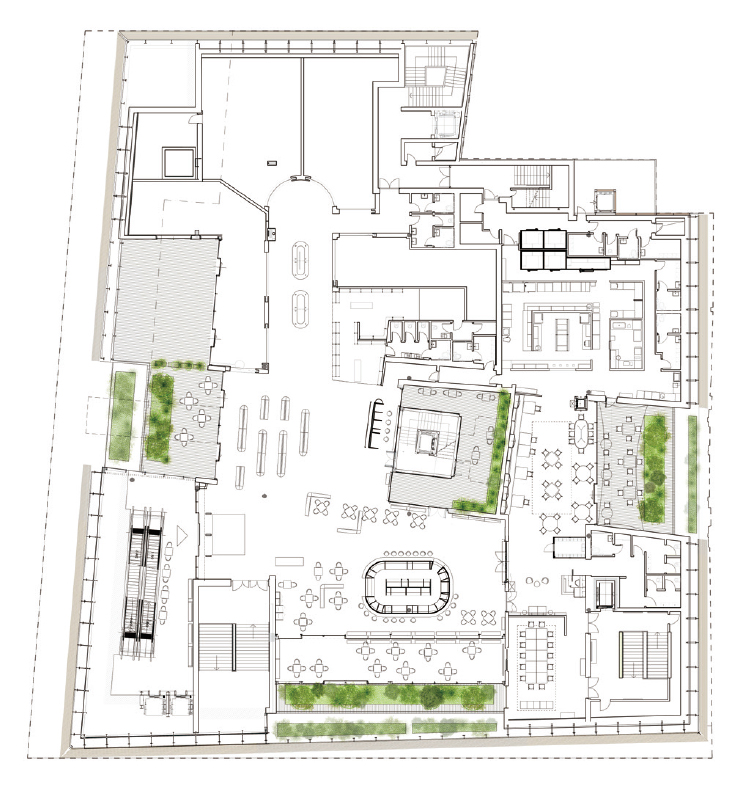
Green Pea’s sustainability criteria are also the basis of the landscape project. Greenery follows the spatial complexity of the building, inserts itself through the organic texture of the facades and becomes a real building part to dampen urban densification. Greenery, inserted in different combinations (basins, hanging gardens, green in the ground and draining pavements), develops vertically from the ground floor to the roof. The arboreal specimens, even large ones, proceed from one floor to the other and their bearing evokes the shapes of plants in their natural environment. In the interior, tall trees and shrubs are instead perceived through large windows and terraces and select the external views. By filtering the sunlight they also create a vibrant effect. The roof garden, in addition to mitigating the surface temperature and contributing to thermal insulation, is an extraordinary aesthetic experience amplified by the surprising views of the city.

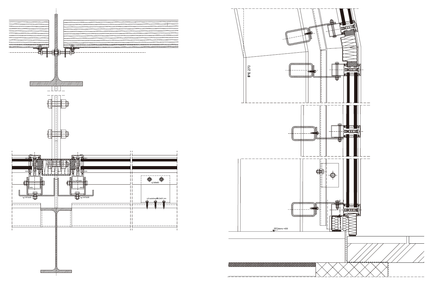
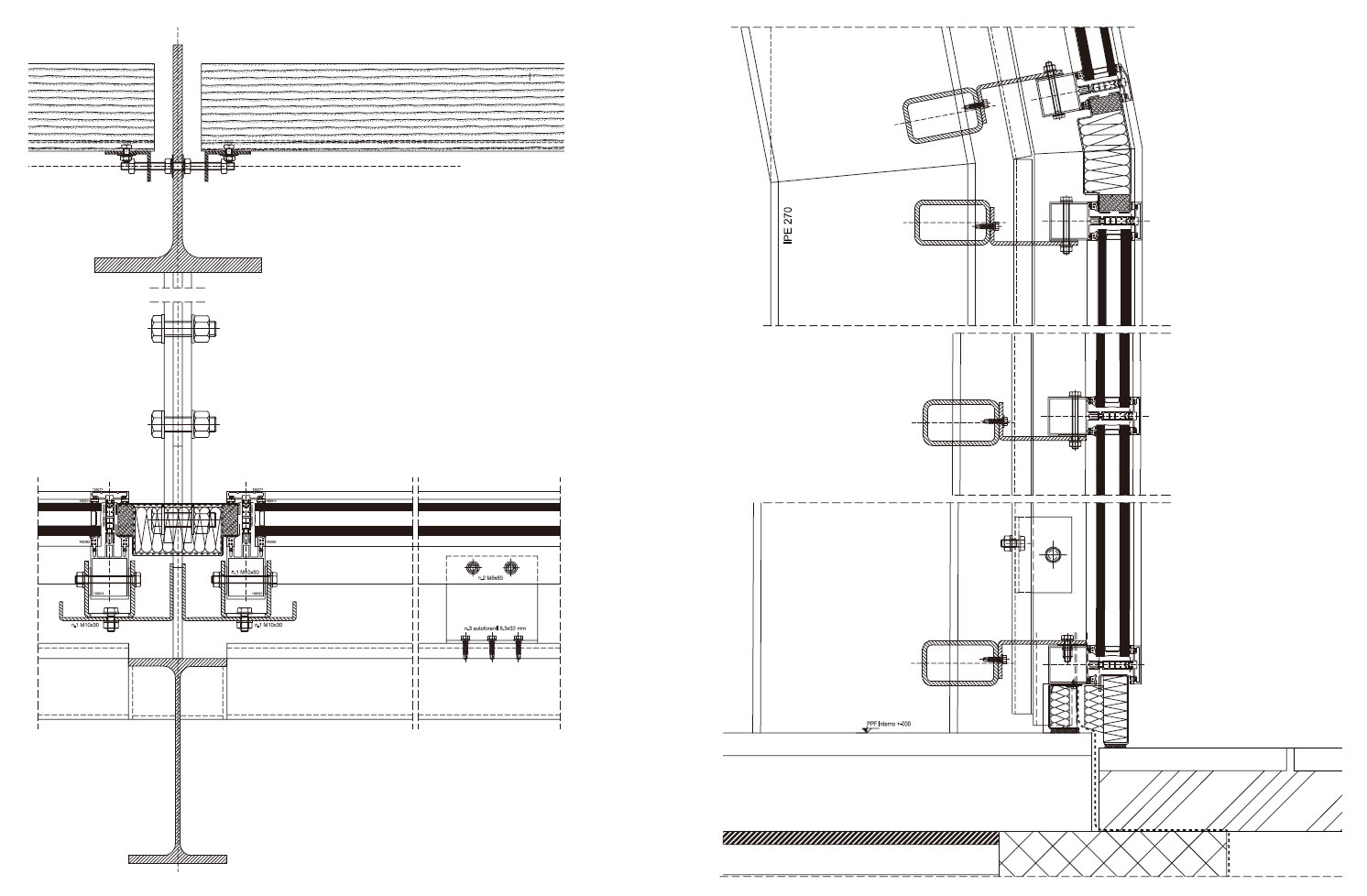
The development of the plants in the façade tanks and on the roof garden is guaranteed by the application of stratigraphy with an anti-root waterproofing, protection and accumulation felt, a Harpo type drainage and ventilation layer protected by a filter cloth and a lightened substrate to guarantee the best chemical-physical conditions for the plants. The continuous Harpo drainage applied to the roof allows movement of the usable space and guarantees a correct water flow even in particular climatic events.

From the plant engineering point of view, Green Pea offers a broad panorama of the different ways of producing energy through renewable sources: geothermal wells, photovoltaic panels, solar panels, mini wind turbines, smart flowers, up to piezoelectric floors capturing kinetic energy generated by the passage of users. The plants are intentionally left visible to recall the industrial origins of the site. The combination of these active and passive environmental strategies, aimed at achieving maximum energy efficiency and reducing CO2 emissions, has made it possible to obtain a score of the Italian Itaca Protocol of 3.5 and create a NZEB (Nearly Zero Energy Building) in class A3.

At the foot of the building, on the south and west sides, a square and green areas have been created. The zigzagging composition surrounds the pedestrian areas with soft green walls made up of tall trees alternating with perennial shrubs and herbaceous plants. Paving and pedestrian paths testify to the urban dimension and the connection with the building, while the green spaces offer a shady, intimate and protected environment. In line with the educational dimension that identifies Green Pea, spheres of solar panels, flowers with photovoltaic petals and a suggestive mini wind turbine define an “energy garden” from natural sources. Green Pea’s project aims to be a stimulus to live in harmony with nature as an ode to plants and their regenerative power.



그린피 쇼핑센터(Green Pea)는 피아트 링고토(Fiat Lingotto) 인근 도시인 투린(Turin) 지역의 상업 시설이다. 이 건물의 재건은 렌조 피아노(Renzo Piano)가 1990년대에 계획한 다기능 센터로 전환한 후, 2007년 이전 카르파노(Carpano) 지역의 첫 번째 이탈리(Eataly)의 본사가 그린피(Green Pea)와 동일한 건축가에 의해 설계되면서 시작됐다. 20세기의 산업 발전에서 3차 산업혁명과 마주한 이 도시는 현재 지속가능성에 대한 건축적 모색을 드러내고 있다. 그린피는 지속가능성을 가지고 있는 건축물이면서, 방문자들의 쇼핑과 휴식을 위한 공간이다. 공간의 대부분은 환경과 자연에 대한 존중을 기반으로 신기술, 천연 자재로 건립됐다는 것이 큰 특징이다. 빛과 녹지가 스며든 유기적인 형태로 설계된 이 건물은 2018년 폭풍에 의해 일부 파괴된 숲에서 가져온 가문비나무로 된 루버 파사드를 가지고 있다.

남북 방향의 볼륨은 나무가 식재된 테라스에 의해 형태가 깎이고 비워내며 녹지 공간을 남긴다. 생태 기후를 고려한 온실 지붕은 건물의 다섯 번째 정면이 되는 커다란 매달려 있는 정원이다.

그린피(Green Pea)의 지속가능성 기준은 또한 경관사업의 기초가 되고 있다. 녹지는 건물의 공간적 복잡성을 따르고, 입면의 유기적인 질감을 통해 건물에 삽입되고, 도시의 밀도를 줄이는 건물의 일부분이 된다. 다양한 조합(분지, 매달린 정원, 지면의 녹지 및 배수 포장)으로 삽입된 녹지는 1층에서 지붕까지 수직으로 연결된다. 수목 표본들, 심지어 큰 것들도 한 층에서 다른 층으로 옮겨가고 그에 따라 건물 안에서 식물의 모양을 환기시킨다. 내부에서는 큰 창문과 테라스를 통해 키 큰 나무와 관목이 인식되고 외부 경관을 선택한다. 햇빛을 걸러냄으로써 또한 생생한 효과를 만들어낸다. 옥상 정원은 표면 온도를 완화하고 단열에 기여하는 것 외에도 도시의 놀라운 전망으로 확장된 특별한 미적 경험을 제공한다.

파사드와 옥상 정원의 식물 개발은 뿌리 방지 방수, 보호 및 축적 펠트, 하포형 배수 및 환기층, 경량화된 재료의 적용으로 가능하게 하며, 식물에게 최상의 화학적, 물리적 조건을 보장하기 위해 필터 천과 가벼운 기질에 의해 보호된다. 지붕에 적용된 지속적인 하포형 배수는 사용 가능한 공간의 이동을 허용하고 특정 기후 상황에서도 물의 흐름을 보장한다.

식물 공학적인 관점에서 그린피는 재생 가능한 에너지원을 통해 에너지를 생산하는 다양한 방법을 가지고 있다. 지열 우물, 태양광 패널, 태양열 패널, 미니 풍력 터빈, 스마트 플라워, 압전 바닥까지 사용자들의 통행에 의해 생성된 운동 에너지를 전환하여 사용한다. 이러한 것들은 이 부지의 산업적 기원을 상기하기 위해 의도적으로 남겨져 있다. 최대 에너지 효율을 달성하고 CO2 배출량을 줄이기 위한 이러한 능동 및 수동 환경 전략의 조합으로 제로에너지빌딩(Nearly Zero Energy Building)에 가깝게 만드는 것이 가능해졌다.

건물의 경사진 부분과 남쪽, 서쪽에 광장과 녹지가 만들어졌다. 녹지 공간은 그늘지고 친밀하며 보호된 환경을 제공한다. 태양 전지판의 구체, 태양광 꽃잎이 있는 꽃, 미니 풍력 터빈은 천연 자원의 “에너지 정원”을 정의한다. 그린피(Green Pea) 프로젝트는 식물과 그 재생력에 대한 정점로서 자연과 조화를 이루며 살아가는 자극제가 되는 것을 목표로한다.









Architect ACC NATURALE ARCHITETTURA, NEGOZIO BLU ARCHITETTI
Location Lingotto, Torino, Italy
Gross floor area 10,500m2
Design period 2016
Construction period 2018. 12 - 2020. 11
Project architect (ACC Naturale Architettura)Cristiana Catino / (Negozio Blu Architetti)Gustavo Ambrosini, Paola Gatti, Carlo Grometto
Architectural works supervision Cristiana Catino, Carlo Grometto
Structural and Geotechnical design Ceas
Landscape ACC Naturale Architettura Cristiana Catino / (Negozio Blu Architetti)Associati with agronomists studio associato Vigetti, Merlo
Energy project, Plants Sapi
Construction supervision Samep
Construction Novara company, Officine Costruzioni Metalmeccaniche Lombarde, Rosso Officine, Ghemar, Geonovis, Aditec, Sermeca, Brondello, Artegiardini, Costa Group, Lisart
Client Eataly Real Estate/Green Pea
Photographer Fabio Oggero
해당 프로젝트는 건축문화 2021년 4월호(Vol. 479)에 게재 되었습니다.
The project was published in the April, 2021 issue of the magazine(Vol. 479).
April 2021 : vol. 479
Contents: RECORDS THE WINNERS OF THE 2021 PRITZKER PRIZE: NEWS / COMPETITION / BOOKS: SKETCH ROBIE HOUSE, CHICAGO / LAPIN
anc.masilwide.com
'Architecture Project > Commercial' 카테고리의 다른 글
| Den Da Coffee Shop (0) | 2021.07.08 |
|---|---|
| MARS (0) | 2021.07.02 |
| URBAN SPACE (0) | 2021.06.04 |
| ARIM TOWER (0) | 2021.06.03 |
| THE FILLET (0) | 2021.05.17 |
마실와이드 | 등록번호 : 서울, 아03630 | 등록일자 : 2015년 03월 11일 | 마실와이드 | 발행ㆍ편집인 : 김명규 | 청소년보호책임자 : 최지희 | 발행소 : 서울시 마포구 월드컵로8길 45-8 1층 | 발행일자 : 매일



