
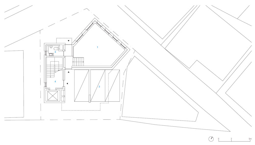
It is an alley inside the intersection of Sangsu Station, less than 200m2, but it faces three roads and has commercial potential. Again, the client’s requirements for rental buildings were clear. In order to secure the maximum rental area for maximum consumption,” the parking lot had to be secured on the North’s front road and the building had to be retreated in the southern direction to avoid restrictions on the line.” However, it was not possible to give up the elevation of the north corner, which has both architectural and commercial properties, and instead took the form of placing the mass in front and stepping down in a stepped manner in accordance with the limit of the sunlight.

The spaces created by retreating from each floor were made to have an external balcony for each floor. The external spaces created by the laws and regulations contributed to the improvement of the environment of the rental space and the increase in rental fees, and these parts were limited to the number of balconies in the building according to the bylaws of Mapo-gu(Mapo-gu restricts the form of terraced buildings in order to prevent illegal buildings). The overall shape of the two masses in the lower layer and the upper layer was largely twisted and stacked while arranging according to’. The mass at the lower level faced the main road while responding to the surrounding commercial context, and the upper level was set to look at the Hongdae area in the distance instead of the adjacent context.

The material was a tool to make it stand out even more. Harmony with the street was given to the lower floor and the role of revealing the architecture to the upper mass. The concrete-based tile on the lower floor is a material selected mainly by reflecting the context of the surrounding buildings, which gives a sense of weight and lumps. On the other hand, the transparent glass windows through which the mass is pierced and the balcony opening on the second-floor contrast with the heavy material and become a show window facing the commercial street. The upper part was finished with specially painted thin ceramic tiles. The paint finish that feels like a seashell changes color depending on the intensity and direction of sunlight. In the upper part of the office use, vertically long windows are repeatedly arranged to increase the sense of openness from the inside while blocking the gaze from the outside.

Low-reflective glass is applied to the narrow and high windows of the upper floor, but since it reflects the sky as it is during the day, it gives the illusion that there is no glass. Because of this, the pillars of the area except the glass looks like a white colonnade of temple. The building is the architect’s interpretation of the design process that had been contemplating a rental space in the city.

어반 스페이스는 전체적으로 하층부와 상층부 두 개의 매스가 크게 비틀려 쌓인 도심형 근린생활시설이다. 상수역 사거리 안쪽 골목, 200m2가 채 안되지만 3개의 도로를 마주하며 상업적 가능성을 갖는 대지에 어반 스페이스가 들어섰다. 건축가는 건축주의 요구에 따라 ‘최소비용으로 최대한의 임대면적을 확보’하기 위해서 일조사선제한을 피해 북측 전면도로 쪽에 주차장을 확보하고 건물은 남쪽 방향으로 후퇴 배치하려고 했으나, 건축적 정면성과 상업성을 모두 갖는 북측 코너쪽 입면의 중요성을 부각시키기로 했다. 이렇게 매스는 전면배치하고 일조사선제한에 따라 계단식으로 물러나는 형식으로 설계됐다.

각 층이 물러나고 쌓이면서 만들어지는 공간들은 자연스럽게 층마다 외부 발코니를 만들어냈다. 뿐만 아니라 법규에 따라 생긴 층별 외부공간은 임대공간의 환경개선 및 임대료 증가에 기여하는데, 이는 마포구 내규의 ‘건축물의 발코니 개수 제한(마포구에서는 불법건축물 예방 차원에서 계단식 건물의 형태를 제한하고 있다)’에 해당된다. 하층부 매스는 주변의 상업적 컨텍스트에 대응하며 주 도로를 마주하고, 상층부는 근접한 컨텍스트 대신 멀리 홍대지역 일대를 바라보는 방향으로 틀어져 있다.

어반 스페이스에서 재료는 건축물을 돋보이게 만드는 도구다. 하층부에는 거리와의 조화를, 상층부 매스에는 건축물을 드러낸다. 하층부의 콘크리트 계열 타일은 무게감 있는 덩어리 느낌으로 주변 건물 속에서도 묵직한 존재감을 드러낸다. 반면, 매스를 뚫어낸 투명유리 창들과 2층의 발코니 개구부는 무거운 느낌의 재료와 대비를 이루며 상업거리에 면하고, 상층부는 특수도장한 박판 세라믹 타일이 세련된 느낌을 준다. 조개껍질 같은 도장마감은 햇빛의 강도와 방향에 따라 색을 바꿔간다. 사무소 용도의 상층부에는 외부로부터의 시선을 막아주면서 내부에서의 개방감은 높일 수 있는 수직으로 긴 창을 반복적으로 배치되어 있다.

상층부의 좁고 높은 창들에는 저반사 유리가 낮에는 하늘을 그대로 비춰 마치 유리가 없는 듯한 착각을 준다. 이런 모습은 유리를 제외한 나머지 부분이 마치 신전 속 흰색 열주처럼 보이기도 한다. 어반 스페이스는 도심 속에서 이끌어낸 임대공간에 대한 건축가의 해석이 건축물 구석구석에 담겨있는 프로젝트다.















Architect SOBO architects
Location Wausan-ro, Mapo-gu, Seoul, Republic of Korea
Program Neighbourhood facility
Site area 195.47m2
Building area 109.46m2
Gross floor area 388.14m2
Building scope 5F
Building to land ratio 56.00%
Floor area ratio 198.57%
Design period 2017. 8 - 2018. 3
Construction period 2018. 3 - 2019. 1
Completion 2019. 3
Principal architect Hyunbo Shin, Sohyun Jeon
Project architect Hyunbo Shin
Design team Suzi Lee
Structural engineer Eden engineering
Mechanical engineer Jungyeon engineering
Electrical engineer Jungyeon engineering
Construction LAWOO
Photographer Kyoung Roh
해당 프로젝트는 건축문화 2021년 4월호(Vol. 479)에 게재 되었습니다.
The project was published in the April, 2021 issue of the magazine(Vol. 479).
April 2021 : vol. 479
Contents: RECORDS THE WINNERS OF THE 2021 PRITZKER PRIZE: NEWS / COMPETITION / BOOKS: SKETCH ROBIE HOUSE, CHICAGO / LAPIN
anc.masilwide.com
'Architecture Project > Commercial' 카테고리의 다른 글
| MARS (0) | 2021.07.02 |
|---|---|
| GREEN PEA (0) | 2021.06.11 |
| ARIM TOWER (0) | 2021.06.03 |
| THE FILLET (0) | 2021.05.17 |
| ARIJUJIN (0) | 2021.05.14 |
마실와이드 | 등록번호 : 서울, 아03630 | 등록일자 : 2015년 03월 11일 | 마실와이드 | 발행ㆍ편집인 : 김명규 | 청소년보호책임자 : 최지희 | 발행소 : 서울시 마포구 월드컵로8길 45-8 1층 | 발행일자 : 매일



