
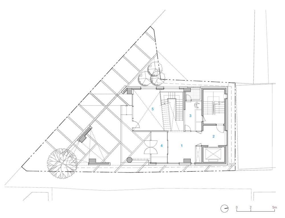
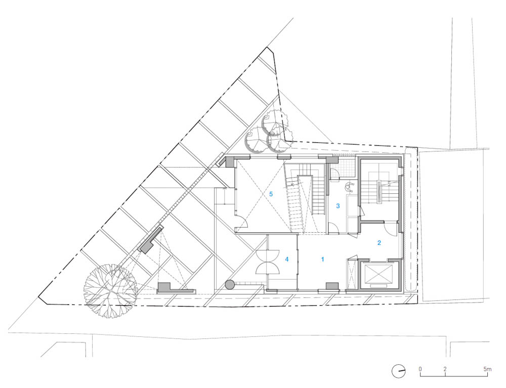
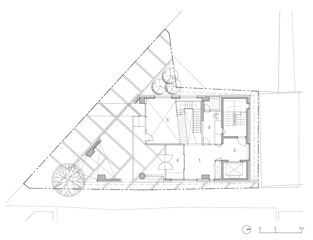
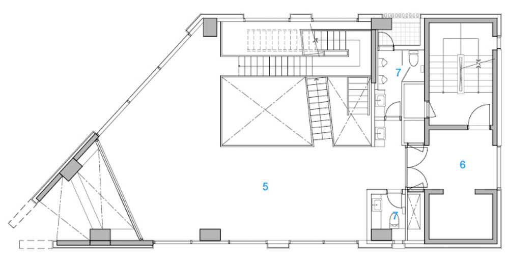
Located at Yangnam intersection, the 300m² site had a severely irregular shape as it had a strong corner of about 45 degrees to the roadside and five vertices. The physical scale within the legally permitted limits was reviewed, but it had a smaller height limit compared to the surrounding buildings.

As a plan to have a similar size to that of the nearby hospital and hotel, the floor height was increased and the ground area was divided as much as possible into amenity spaces, expanding it to 40m with an eight-story scale including the rooftop floor. The legal standards, the shape of the site, and the surrounding buildings all acted as guides of the plan and led to a 10m wide, 13m~22m long and 40m tall cube form with a high slenderness ratio, and the building gained a form that is revealed unintentionally.

The 45-degree corner had both a flaw in planar usability and the potential for a visual point seen from the exterior. The solid walls were made to meet each other yet have an open form, and variety was given to the vertical linearity to ease the shape of the corners. The splendid hornbeam between the open space of the two elevations was made to diffuse the directionality of the corners of the site and the building to the surroundings and disappear, revealing the design intention more strongly.

Although Yangpyeong-dong’s location itself has unique morphological characteristics, we found that it can differ greatly depending on the adjustment and portrayal of the design, and it was a valuable time that allowed us to experience the need for adjustment and balance between the intentional and unintentional, and between revealing and being revealed.

양남사거리에 위치한 300m2의 대지는 대로변과 약 45도의 강한 모서리와 5개의 꼭짓점으로 요철이 심한 형상이었으며, 법적인 허용범위에서 물리적인 규모를 검토했으나 주변 건물에 비해 왜소한 높이의 한계를 갖고 있었다.

인근 병원과 호텔의 높이와 비슷한 규모를 갖는 방안으로 층고를 높이고 지상 면적을 어메니티 공간으로 최대한 분절하여 8층 규모에 옥탑층을 포함하여 40m까지 확장했다. 법적 기준, 대지 형상, 주변 건물은 계획의 길잡이처럼 폭 10m, 길이 13m~22m, 높이 40m의 요철이 강한 큐브와 세장비가 높은 형태에 이르게 해주었고 의도하지 않은 상태에서 드러나는 형태를 갖게 됐다.


45도 모서리는 평면적인 사용성의 결함과 외부에서 보이는 시각적인 포인트의 가능성을 함께 갖고 있었다. 솔리드한 벽체는 서로 만나지만 열린 형태가 되게 했고 수직의 선형도 변화를 주어 모서리의 형태가 완화되도록 했다. 두 입면의 열린 공간 사이에 있는 화려한 서어나무는 대지와 건물이 갖는 모서리의 방향성을 주변으로 확산시키고 소실되도록 하여 디자인 의도를 보다 강하게 드러내도록 했다.

양평동의 입지는 그 자체로도 독특한 형태적 특성을 갖고 있지만 디자인의 조정과 연출에 따라 매우 달라질 수 있음을 보여줬고 의도한 것과 의도하지 않은 것, 드러남과 드러냄 사이에서 조정과 균형의 필요성을 경험하게 해준 소중한 시간이었다.









Architect PILOTIS Architects
Location Yeongdeungpo-ro, Yeongdeungpo-gu, Seoul, Republic of Korea
Program Commercial
Site area 302.00m2
Building area 169.15m2
Gross floor area 1,264.79m2
Building scope B1, 9F
Building to land ratio 56.01%
Floor area ratio 385.48%
Design period 2017. 12 - 2019. 4
Construction period 2018. 9 - 2019. 12
Completion 2019. 12
Principal architect Bon, H. Lee
Project architect Hyeongsoo Park
Design team Hyeongsoo Park, Sangwon Lee, Chanmi Kim
Structural engineer Harmonyeng
Mechanical engineer MKcheonghyo
Electrical engineer MKcheonghyo
Construction ETERN D.C
Client Miraecredit
Photographer Namsun Lee
해당 프로젝트는 건축문화 2021년 4월호(Vol. 479)에 게재 되었습니다.
The project was published in the April, 2021 issue of the magazine(Vol. 479).
April 2021 : vol. 479
Contents: RECORDS THE WINNERS OF THE 2021 PRITZKER PRIZE: NEWS / COMPETITION / BOOKS: SKETCH ROBIE HOUSE, CHICAGO / LAPIN
anc.masilwide.com
'Architecture Project > Commercial' 카테고리의 다른 글
| GREEN PEA (0) | 2021.06.11 |
|---|---|
| URBAN SPACE (0) | 2021.06.04 |
| THE FILLET (0) | 2021.05.17 |
| ARIJUJIN (0) | 2021.05.14 |
| PAUL BASSET DT 1ST STORE (0) | 2021.04.05 |
마실와이드 | 등록번호 : 서울, 아03630 | 등록일자 : 2015년 03월 11일 | 마실와이드 | 발행ㆍ편집인 : 김명규 | 청소년보호책임자 : 최지희 | 발행소 : 서울시 마포구 월드컵로8길 45-8 1층 | 발행일자 : 매일



