
Kirin Road, which runs from Jeonju City Hall, is the oldest road in the city. The site located on Kirin Road is a place with a large amount of traffic and good accessibility due to the surrounding bus terminal, stadium, and university. The Paul Bassett store provides a spatial experience tailored to the two types of users. First, users who access only the exterior of the building by taking a vehicle, and second, users who experience space through time within the building. The first floor is composed of a vehicle passage of a specific length according to the waiting time between orders and goods ready for users accessing through external drive-throughs.

The arch-shaped outer wall exposed on the elevation from the first floor to the second floor forms an eaves above the drive-through vehicle flow line to increase user awareness and at the same time, external factors that can occur in the process of ordering and receiving products (rainy weather, etc.) to minimize discomfort. In addition, the vehicle passage, which inevitably occupies most of the external space in the site, is actively accepted as a component of the building’s shape, and the user’s experience of using the vehicle is incorporated as a part of the building.

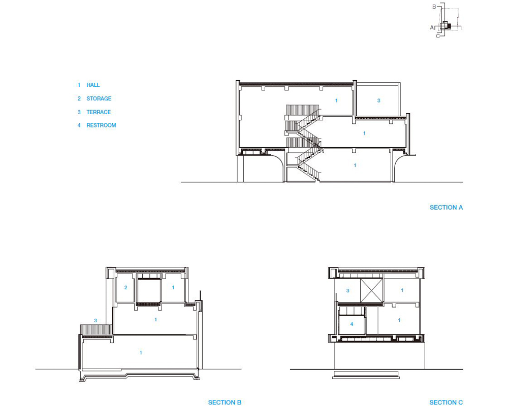
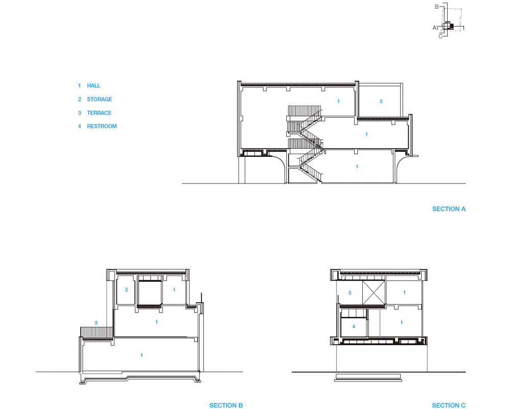
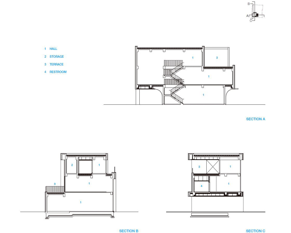
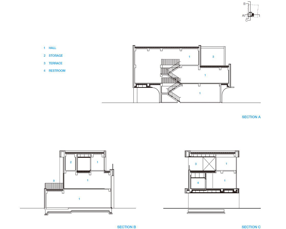
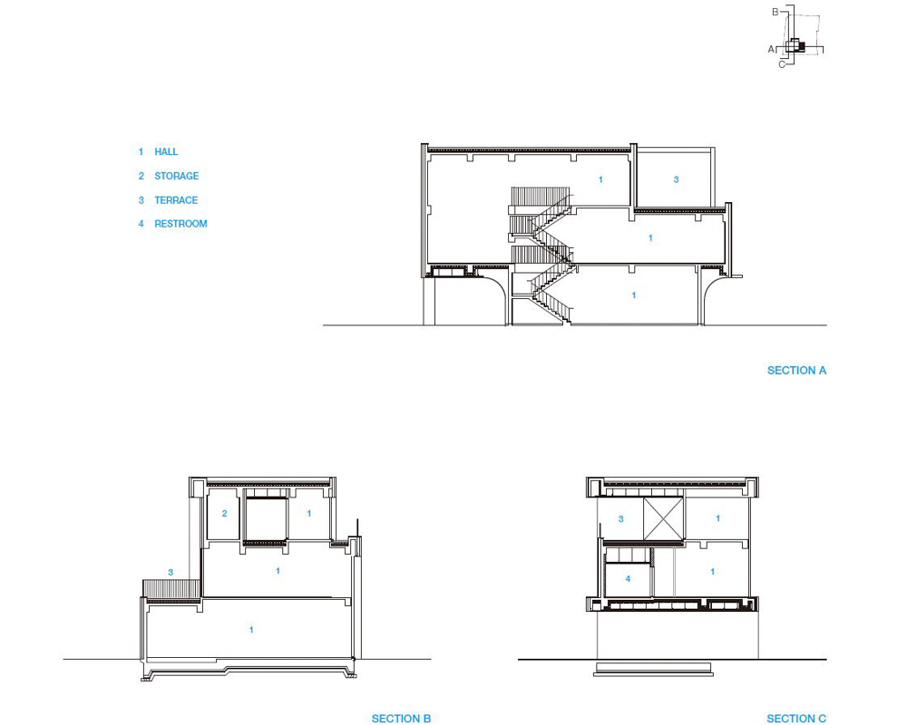
Considering the recognition of commercial buildings, it has an elevation that is as open as possible to the north. The first floor is intended as a main access space for services such as a cafe hall and kitchen, and the second floor interior and the third floor external terrace are intended as spaces where users can mainly stay. From the interior of the 1st floor to the exterior of the 3rd floor, the space where the gaze is directed according to the user’s movements adds a sense of depth of the horizontal space with the brick walls stacked alternately. These walls change the way light is received into the room. The vertical space formed with a high ceiling along the stairs empirically and visually overlaps the spacious cafe space on the second floor and the terrace space on the third floor. The terrace space on the third floor is largely divided into two spaces centered on a staircase, and is open to the south and west sides of the site.

While planning a coffee shop, it was an opportunity to reconsider how uniform the spaces we meet in our daily life are. The anonymity of the space provides the user with a unified experience, and the user gets tamed. By adding new proposals to a space that can be accessed closely, I hope that it will become a space that can be perceived as a new and colorful space to users.

전주시청부터 이어지는 기린대로는 이 도시에서 가장 오래된 도로다. 기린대로에 자리한 대지는 주변에 버스터미널, 종합경기장, 대학교 등이 위치해 많은 차량 통행량과 좋은 접근성을 가진 곳이다. 이 카페는 크게 두 부류의 사용자에 맞는 공간적 경험을 제공한다. 첫째, 차량을 타고 접근하여 건축물의 외부만 경험하는 사용자와 둘째, 건축물 안에서 시간을 두고 공간을 경험하는 사용자다. 1층은 외부 드라이브 스루를 통해 접근하는 사용자가 주문 후 상품이 준비되기까지 대기 시간에 맞춘 특정 길이의 차량 통행로로 구성된다.

1층에서 2층으로 이어지는 입면에 드러나는 아치 형태의 외벽은 드라이브 스루 차량의 동선을 따라 처마를 형성하여 사용자의 인지성을 높임과 동시에 주문하고 상품을 전달받는 과정에서 생길 수 있는 외부적 요인(우천 등)에 의한 불편함을 최소화한다. 또한, 대지 내 외부 공간의 대부분을 차지할 수 밖에 없는 차량 통행로를 건물의 형태를 구성하는 요소로 적극 받아들이고, 차량을 이용하는 사용자의 경험을 건축물의 일부로 편입한다.

상업건물의 인지성을 감안하여 북측으로 최대한 개방된 입면을 가진다. 1층은 카페 홀 및 주방 등 서비스를 위한 주 진입 공간, 2층 실내 및 3층 외부 테라스는 사용자가 주로 머무를 수 있는 공간으로 의도됐다. 1층 실내부터 3층의 외부 공간까지 사용자의 동선에 따라 시선이 향하는 공간에는 엇갈려 쌓인 벽돌 벽으로 수평적 공간의 깊이감을 더한다. 이러한 벽은 실내로 빛을 받아들이는 방식에 변화 준다. 계단을 끼고 높은 천장고와 함께 형성된 수직적 공간은 2층의 넓은 카페 공간과 3층의 테라스 공간을 경험적, 시각적으로 중첩한다. 3층의 테라스 공간은 계단을 중심으로 크게 두 공간으로 나뉘며 대지의 남측과 서측으로 열려 있다.

커피 전문점을 계획하면서 우리가 일상에서 만나는 공간들이 얼마나 획일화되어 있는가 다시금 생각하게 된 계기였다. 공간의 익명성은 사용자에게 단일화된 경험을 제공하고 사용자는 이에 길들여진다. 가깝게 접할 수 있는 공간에 새로운 제안을 더하여, 사용자에게 새롭고 다채로운 공간으로 인식될 수 있는 공간이 되길 바란다.








Architects SHINEUNHO ATCHITECTS
Location Girin-daero, Deokjin-gu, Jeonju-si, Jeollabuk-do, Republic of Korea
Program Commercial facilities
Site area 1,707.5m2
Building area 249.26m2
Gross floor area 498.28m2
Building scope 3F
Building to land ratio 14.59%
Floor area ratio 29.18%
Design period 2020. 5 - 7
Construction period 2020. 8 - 11
Completion 2020. 11
Principal architect Eunho Shin Project architect Eunho Shin, Doohyeong Lee
Design team Yujung Park, Jonghun Cha, Taesang Lee
Structural engineer Delta Structure
Mechanical engineer Dodam Engineering
Electrical engineer Dodam Engineering
Construction Gunwoo Construction
Client Taejun Kim
Photographer Sangin Nam
해당 프로젝트는 건축문화 2021년 2월호(Vol. 477)에 게재 되었습니다.
The project was published in the February, 2021 issue of the magazine(Vol. 477).
February 2021 : vol. 477
Contents : RECORDS THE EXPERIMENT TO FACE A REALITY IN AN INFINITE GRID : NEWS / COMPETITION / BOOKS : SKETCH PINK PAVILION IN PAVLOVSK / NEVEROVA OLESYA : RECENT PROJECT GLAMTREE RESORT EMBRACES N..
anc.masilwide.com
'Architecture Project > Commercial' 카테고리의 다른 글
| THE FILLET (0) | 2021.05.17 |
|---|---|
| ARIJUJIN (0) | 2021.05.14 |
| CAFE CREDO (0) | 2021.03.09 |
| VOID LINE (0) | 2021.02.17 |
| INTERACTING CUBE (0) | 2021.02.16 |
마실와이드 | 등록번호 : 서울, 아03630 | 등록일자 : 2015년 03월 11일 | 마실와이드 | 발행ㆍ편집인 : 김명규 | 청소년보호책임자 : 최지희 | 발행소 : 서울시 마포구 월드컵로8길 45-8 1층 | 발행일자 : 매일



