
Nude Project Rome
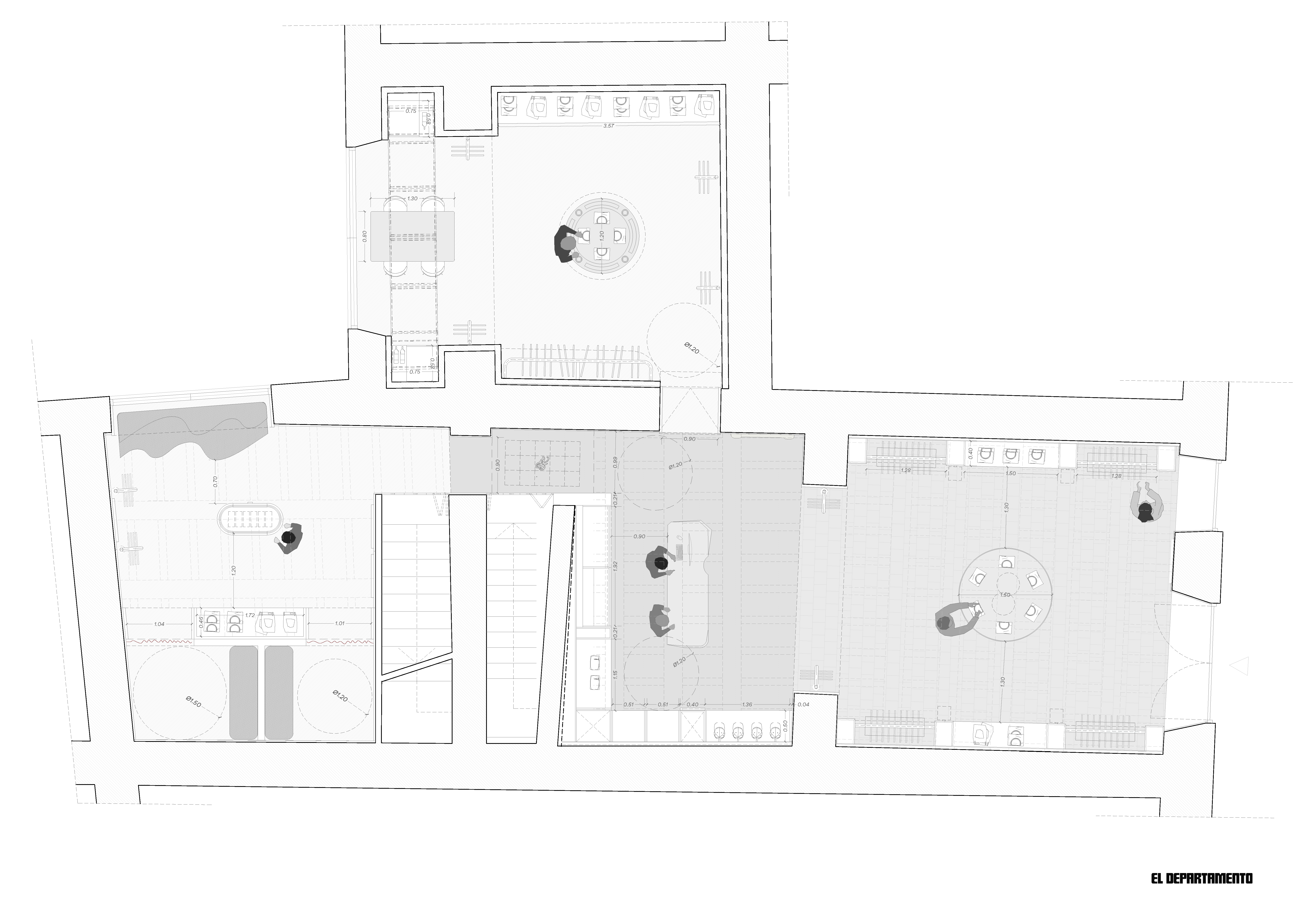
Nude Project의 새로운 플래그십 스토어는 기존 리테일 공간의 문법을 전복한다. 엘 데파르타멘토는 이 100㎡ 규모의 공간을 단순한 매장이 아닌, 브랜드 문화를 체험할 수 있는 공간으로 재구성했다. 설계 개념은 ‘La Dolce Villa’다. 전통적인 ‘La Dolce Vita’를 현대적으로 재해석해, 이탈리아 저택의 우아함에 여름의 쾌락적 감각과 스트리트 브랜드의 반항성을 겹쳐 놓았다. 공간은 빌라의 방 구성처럼 순차적으로 전개된다.
입구는 전이 공간으로 작동하며, 어두운 목재와 오브제들이 결합된 메인 공간이다. 입구를 지나면 게임 테이블과 와인셀러가 있는 라운지로 이어지며, 마지막에는 피팅룸이 하나의 워크인 클로짓처럼 구성된다. 인테리어 재료는 이탈리아의 여름을 떠올릴만한 재료들을 사용했다. 블루 톤의 마이크로시멘트를 사용했고, 로커는 석회암과 월넛의 묵직함과 대비를 이룬다. 이 상반된 물성이 여름의 가벼운 이미지를 보여준다.
가장 극적인 장면은 베란다에 들어서는 순간 펼쳐진다. 모자이크 기법으로 마감된 거울로 이루어진 볼트 천장은 빛과 반사를 증폭시키며 디스코볼 같은 역할을 한다.
가구와 오브제는 조형적 장치로 기능한다. 소파가 피팅 공간을 크게 차지하고 있고, 천장에서 매달린 거대한 체리 오브제와 쇼윈도의 대형 와인병은 브랜드의 상징을 과장된 스케일로 드러낸다. 이 공간은 ‘By Artists, For Artists’라는 브랜드 슬로건에 맞춰 예술적인 개입을 적극적으로 수용한다. Mago Dovjenko의 핸드 페인팅 프레스코 벽화, Román de Castro와 Iván Floro의 작품이 공간과 결합된다.
이 프로젝트는 상업 공간을 소비의 장소에서 정체성과 공동체의 서사를 담는 무대로 전환되며, 쇼핑은 하나의 공간적 퍼포먼스로 재해석된다.





건축가 엘 데파르타멘토 (El Departamento)
위치 이탈리아, 로마
연면적 100㎡
대표건축가 Alberto Eltini, Marina Martín
시공 Citanias
가구디자인 El Departamento
조명 Ilumisa
사진 Gabriele Granata
'Interior Project > Retail' 카테고리의 다른 글
| 차분함 속에서 빛나는 브랜드의 가치 / 링제 에이알.디자인 (0) | 2026.04.10 |
|---|---|
| 금속으로 만드는 미래 지향적인 공간 디자인 / 동치디자인 (0) | 2026.03.30 |
| 덜어낼수록 채워지는 공간, Coor 성수 플래그십 스토어 / 아뜰리에 케이에이치제이 (0) | 2026.03.24 |
| 아케이드를 보존한 식당, 리스본 바익사의 캡슐 네오 비스트로 / 아틀리에 레알리테 (0) | 2026.01.22 |
| 흐름으로 다시 설계된 쇼핑몰, 맥스시티 / 헬로 우드 (0) | 2026.01.21 |
마실와이드 | 등록번호 : 서울, 아03630 | 등록일자 : 2015년 03월 11일 | 마실와이드 | 발행ㆍ편집인 : 김명규 | 청소년보호책임자 : 최지희 | 발행소 : 서울시 마포구 월드컵로8길 45-8 1층 | 발행일자 : 매일



