
Belo Horizonte, Brazil
이 프로젝트는 벨루오리존치의 가파른 경사지에 자리한 산맥과 도시 스카이라인을 향해 열린 주택이다. 주택은 네 개의 층을 수직으로 쌓아 올린 구조로 구성되며, 각 층은 하나의 ‘도시 전망대’처럼 기능한다.
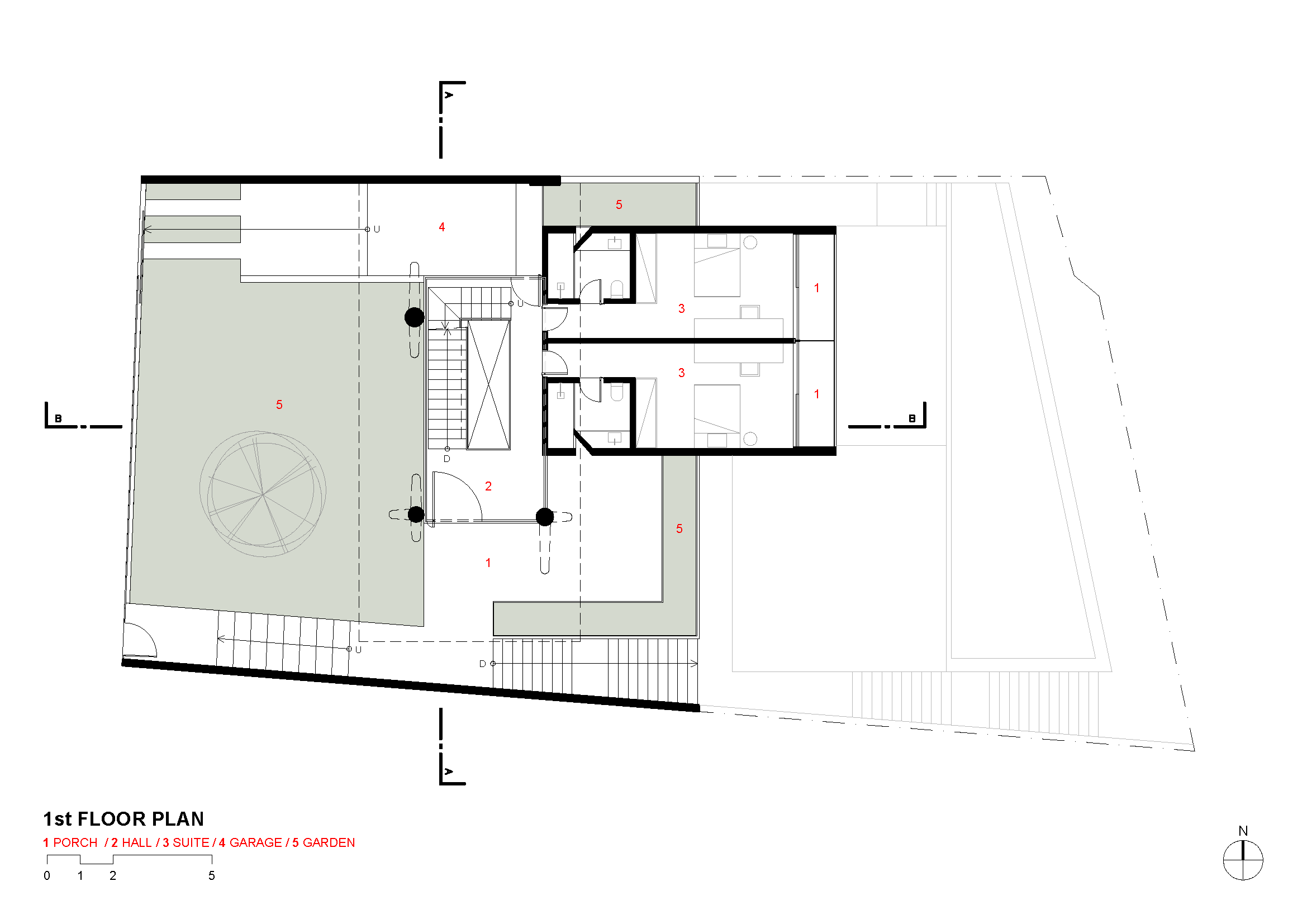
주택으로의 진입은 도로 레벨에서 이루어진다. 유리로 둘러싸인 공간은 밀집된 주변 맥락 속에서 잠시 숨을 고르는 아트리움 역할을 하며, 도착과 동시에 풍경의 깊이를 드러낸다. 이 공간은 수직 동선을 조직하고, 상부의 프라이빗 영역과 연결된다. 상부 블록에는 마스터 스위트와 침실이 배치되었으며, 가족 프로그램을 완성하는 두 개의 방이 함께 구성됐다.
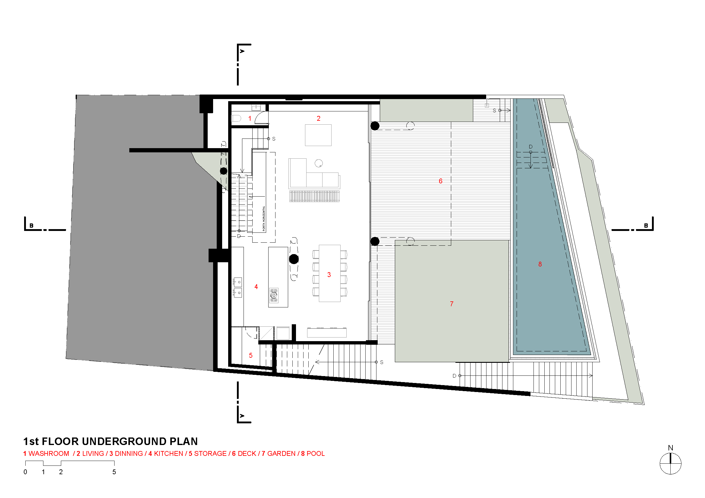
건축가는 그 아래층에 거실과 주방을 계획했다. 실내 공간은 데크와 수영장으로 자연스럽게 확장되며, 내부와 외부의 경계를 흐린다. 최하층에는 서비스 공간과 서재가 배치되어 보다 차분한 분위기를 이루면서도 여전히 조망과의 관계를 유지한다.
구조는 이 집의 정체성이라 말 할 수 있다. 상부의 블록은 네 개의 콘크리트 기둥 위에 얹혀 있으며, 이는 나무를 연상시키는 형상으로 건축물이 지면 위에 가볍게 놓인 듯한 인상을 준다. 외부는 금속으로 제작된 브리즈 솔레이유로 감싸져 외관에서는 하나의 매스로 보이지만, 내부에서는 빛을 걸러내며 시간에 따라 변화하는 그림자를 만든다.












건축가 테트로 아키텍처 (Tetro Architecture)
대표건축가 Carlos Maia, Débora Mendes, Igor Macedo
위치 브라질, 벨루오리존치, 미나스제라이스
용도 단독주택
대지면적 477㎡
연면적 455㎡
규모 지하 2층, 지상 2층
시공 2025
디자인팀 Gregório Magno, Bianca Carvalho, Bruno Bontempo, Giovanna Giacomo, Luisa Lage, Carolina Amaral
조경 Nativa
구조 MVE Estruturas
기계설비 Alexandre José Gonçalves
전기 Antonio Sergio de Carvalho (FASE ENGENHARIA E PROJETOS LTDA)
조명 Gilza Carvalho
시공 Real Construtora
사진 Luisa Lage
'Architecture Project > Single Family' 카테고리의 다른 글
| 시간의 흐름을 간직하는 입면, 그 흐름을 품는 공간 / 에이치피에이 아르키테투라 에 인베스티멘투스 (0) | 2026.04.20 |
|---|---|
| 나주 하얀집 / 플랜 건축사사무소 (0) | 2026.04.16 |
| 단(段)으로 만드는 일상의 풍경 / 엘2씨 아키텍투라 (0) | 2026.04.15 |
| 지키기 위해 덜어내는 것, 코리도 하우스 단독주택 / 아이2에이 아키텍츠 스튜디오 (0) | 2026.04.10 |
| 열과 바람을 다루는 집 / 에이치.에이 (0) | 2026.04.07 |
마실와이드 | 등록번호 : 서울, 아03630 | 등록일자 : 2015년 03월 11일 | 마실와이드 | 발행ㆍ편집인 : 김명규 | 청소년보호책임자 : 최지희 | 발행소 : 서울시 마포구 월드컵로8길 45-8 1층 | 발행일자 : 매일



