
Between the Rock and the River
사자바(Sázava) 강변에 자리한 이 오두막은 화재로 소실된 기존 건물을 대체해 같은 자리에 새롭게 세워졌다. 불길 이후 남은 것은 단단한 석조 기단뿐이었다. 새 건축물은 이 기단을 자연스럽게 흡수하며, 홍수로부터 보호 기능을 확보하는 동시에 강을 향한 조망의 기반으로 삼았다. 기단 위에 선 오두막은 일상의 속도를 잠시 멈추게 하는 장치처럼 작동한다.
강을 향한 창을 열면 물결 소리와 소나무 숲의 바람이 공간을 채운다. 물 위를 스치는 물총새와 암반을 부딪히는 급류의 흐름이 내부와 직접적으로 연결된다. 저녁이 되면 다락 침실로 향하는 짧은 동선 속에서 시선은 강에서 절벽으로 이동한다. 이
건물은 견고한 석조 기단 위에 경량 목구조로 세워졌다. 내부는 패널로 마감했고, 외부는 탄화목으로 마감했다. 탄화 목재는 내구성을 높이는 동시에, 이전 건물의 화재를 은유적으로 표현하는 장치다. 후면 경사면을 향한 부분은 지붕에서 흐르는 물에 대응하기 위해 금속패널로 마감했다. 자연의 물성을 띄는 목재와 블랙 메탈은 마치 하나의 ‘동굴 같은 공간’으로 만든다.
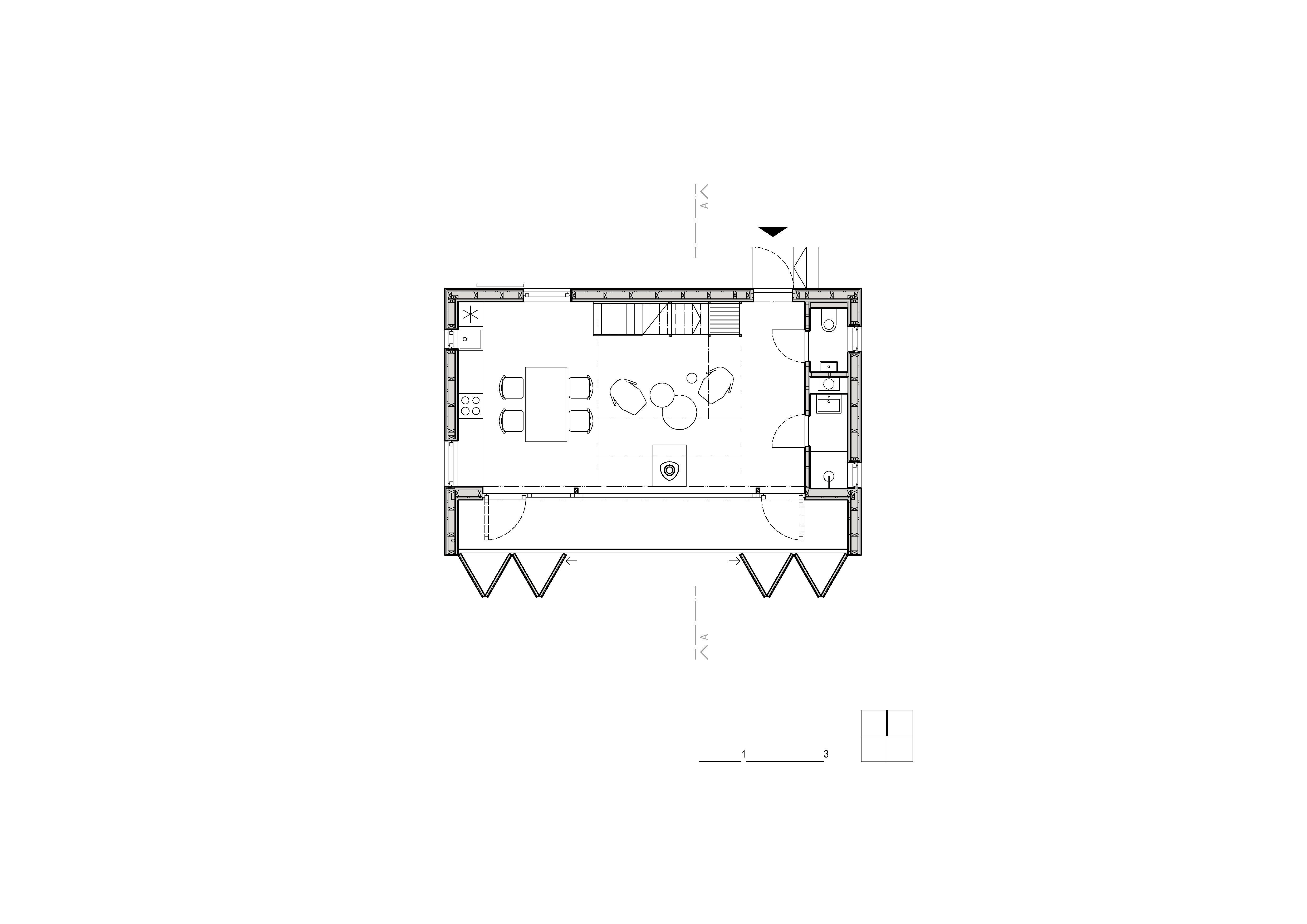
1층의 메인 공간은 복층 높이로 계획되어 강과 절벽을 연결하는 공간처럼 보인다. 전면은 유리로 열려 있으며, 테라스를 통해 강을 향해 확장되는 모양이다. 이 테라스는 폴딩도어로 닫을 수 있어, 여름 햇빛을 차단하거나 사용하지 않는 기간에는 외부로부터 완전히 차단된 건물로 사용할 수 있다.
작은 침실로 최소화한 상부 공간 덕분에, 하부 공용 공간은 더욱 넓게 사용할 수 있었다. 도시를 떠나 이곳을 찾는 이유는 결국 ‘자연과 함께 머무는 시간’이기 때문이다.












건축가 미모사 아키텍츠 (Mimosa Architects)
위치 체코, 프로세치니체
건축면적 69㎡
설계기간 2020
준공 2025
대표건축가 Petr Moráček, Jana Zoubková, Pavel Matyska, Dalibor Pospíšil
사진 Petr Polák
'Architecture Project > Single Family' 카테고리의 다른 글
| 단순함 속에서 질서를 만드는 단독주택 / 하울리누 실바 (0) | 2026.05.11 |
|---|---|
| 구조가 드러나는 집, 재료가 완성하는 풍경 / 얼터스튜디오 아키텍처 (0) | 2026.05.01 |
| 산의 능선이 흘러드는 집 / 카를렌 + 클레멘테 (0) | 2026.04.29 |
| 시선과 감정을 공간 안에 담아내는 전망대같은 주택 / 테트로 아키텍처 (0) | 2026.04.22 |
| 시간의 흐름을 간직하는 입면, 그 흐름을 품는 공간 / 에이치피에이 아르키테투라 에 인베스티멘투스 (0) | 2026.04.20 |









