
뉴빌리지 이후를 대비하는 TimeLess
서둔동은 현재 뉴빌리지 사업이 진행 중이지만, 향후 재개발 가능성 또한 배제할 수 없는 과도기적 상황에 놓여있다. 사업 방식에 따라 요구 프로그램은 달라질 수 있지만, 높이제한에 따른 저층규모, 서호천으로 연결되는 도시의 틈이라는 핵심 가이드라인을 유지한채, 단순히 단일 기능을 담는 시설이 아닌 도시의 흐름을 연결하는 열린 구조로 작동하는 공공건축의 지속가능한 틀을 제안하고자 한다. 따라서 현재의 노후 주택단지와 조화된 일시적 맥락의 디자인에 국한되지 않고 미래 고밀 주거로의 전환 이후에도 유효한 공간적 질서를 형성하여, 시간의 변화 속에서도 유지될 수 있는 절제된 물성과 명확한 공간구조를 통해 지속적인 존재감을 확보하고자 한다. 동시에 단순히 프로그램을 수용하는 건물을 넘어 도시의 이동과 일상을 매개하는 장치로서 세대를 관통하는 공공성의 구조를 제안한다.
경계심 없는 마음, 경계없는 대지
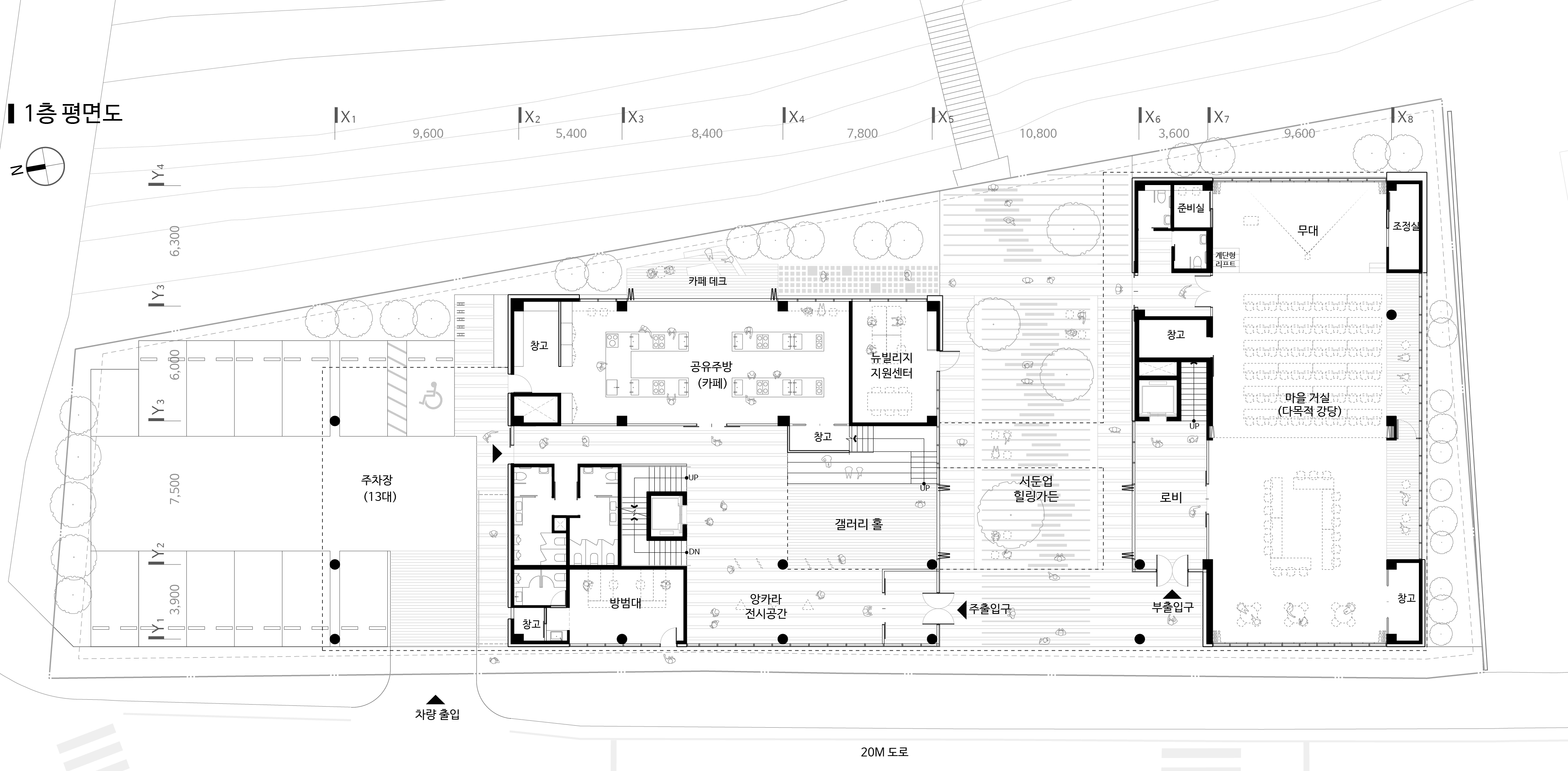
지역주민 공동 활용을 고려하여 강당과 주방을 1층에 배치하고 저층부의 열린 구성을 통해 대지 주변의 경계를 없애고자 하였다. 서호천 산책로를 열어 동선 흐름이 자연스럽게 건물로 스며들도록 하여 주민들이 일상속에서 쉽게 접할 수 있는 모두를 위한 공동체 시설이 된다. 열린 구조는 외부와 소통하고 필요에 따라 시선을 열고 닫는 가변적 장치들을 통해 변화하는 환경과 프로그램 변화에 대응할 수 있는 공간의 유연성을 조절하는 역할을 한다.








건축사사무소 들락
3등작_ 건축사사무소 들락(http://dllac.com/)
대표건축가 김현우
대지면적 1,715.00㎡
연면적 2,046.18㎡
건축면적 996.09㎡
건폐율 58.08%
용적률 110.88%
최고높이 13.97m
층수 지하 1층, 지상 3층
구조 철근콘크리트구조
대표건축가 김현우
조경면적 273.88㎡
주차대수 13대
발주처 수원시 도시재생과
'Plans' 카테고리의 다른 글
| 정선 테니스장 전천후 환경개선사업 간이공모_ 당선작 / 일공공 건축사사무소 (0) | 2026.04.22 |
|---|---|
| 신한울34호기 발전소사무실 신축 제안공모_ 3등작 / (주)유선엔지니어링건축사사무소 (0) | 2026.04.22 |
| 무안황토갯벌랜드 목재 오션타워 조성사업_ 당선작 / (주)솔토지빈건축사사무소 (0) | 2026.04.16 |
| 2024년 태학산자연휴양림 확장사업(숲속의집) 기본 및 실시설계용역 설계공모(제안공모)_ 당선작 / 슈퍼스트링 건축사사무소 (0) | 2026.04.16 |
| 캠프 그리브스 가족형 숙박시설 조성사업 건축설계용역 제안공모_ 3등작 / (주)건축사사무소 토우 (0) | 2026.04.15 |
