
자연과 공존하는 최소한의 집
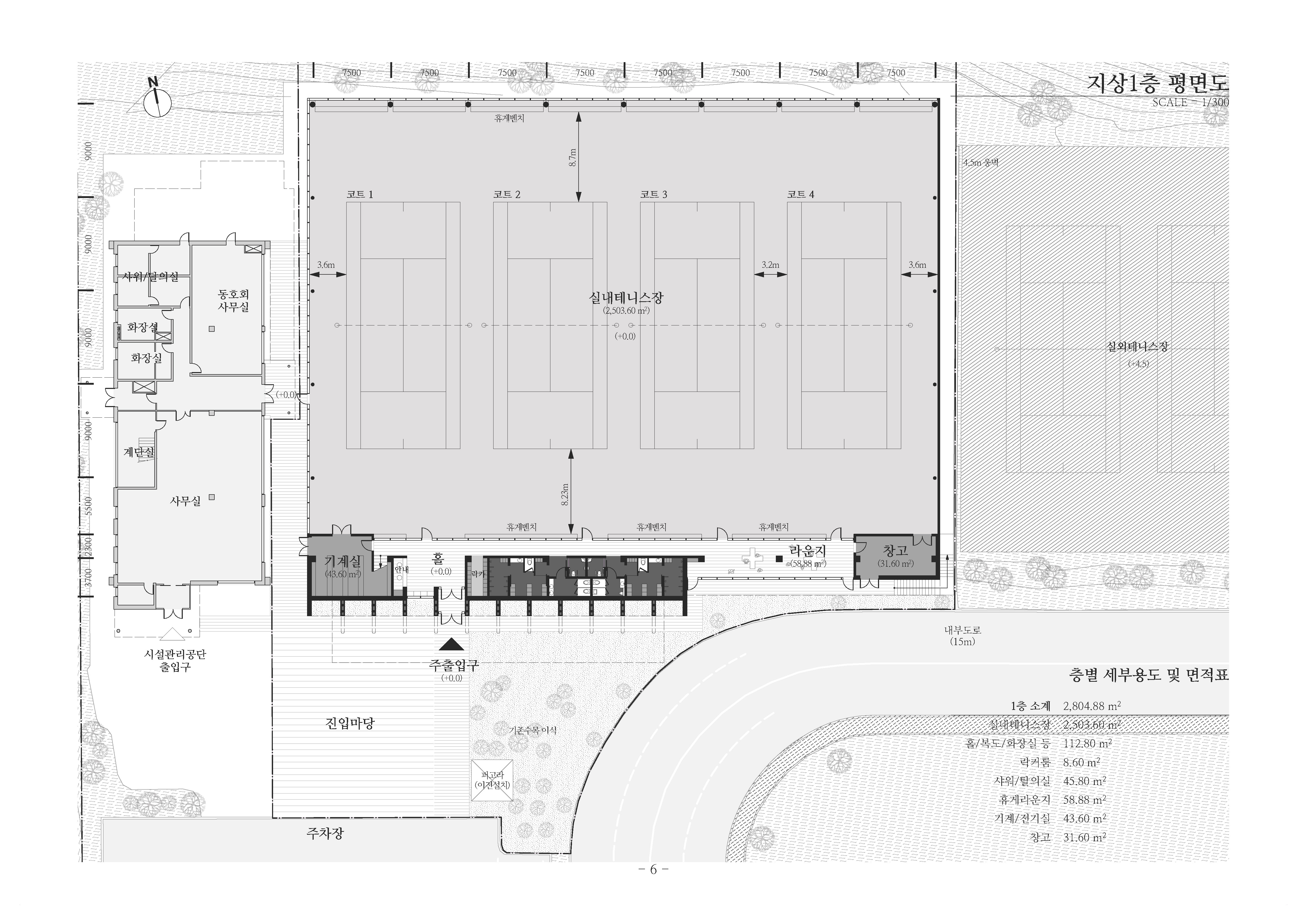
주변 자연과 정선종합경기장으로 이어지는 녹지와 철미산의 능선의 흐름을 존중하여 경사진 아치로 구성된 친환경 전천후 테니스장을 제안한다. 남측에 위치한 기존 태양광 시설물을 철거나 이전하지 않고, 하나의 디자인요소로 재해석하여 정면성을 확보하고 하부에 동선을 계획하여 처마와 수직벽으로 이루어진 커뮤니티시설로 구성하였다. 진입부분에서 낮추어진 매스는 인접 시설관리공단 건물과 스카이라인을 맞추어 실내운동시설이 갖는 위압감을 해소하고자 하였다.






일공공 건축사사무소
당선작_일공공 건축사사무소(https://www.instagram.com/architect_100_seoul/)
대표건축가 백민현
대지면적 177,698.40㎡ (중 사업면적 4,776.00)
연면적 2,804.88㎡
건축면적 2,804.88㎡
건폐율 1.58% (증가분)
용적률 1.58% (증가분)
최고높이 18.7m
층수 지하 0층, 지상 1층
구조 철골조 (막구조) + 철근콘크리트구조
대표건축가 백민현
주차대수 22_대
발주처 정선군청
'Plans' 카테고리의 다른 글
| 보령 빛돌숲 공원 지명설계공모_ 당선작 / (주)더시스템랩건축사사무소 (0) | 2026.04.22 |
|---|---|
| 캠프 그리브스 가족형 숙박시설 조성사업 건축설계용역 제안공모_ 5등작 / 류와 건축사사무소 + 즐거운건축사사무소 (0) | 2026.04.22 |
| 신한울34호기 발전소사무실 신축 제안공모_ 3등작 / (주)유선엔지니어링건축사사무소 (0) | 2026.04.22 |
| 서둔업센터 조성사업 건축 설계공모_ 3등작 / 건축사사무소 들락 (0) | 2026.04.16 |
| 무안황토갯벌랜드 목재 오션타워 조성사업_ 당선작 / (주)솔토지빈건축사사무소 (0) | 2026.04.16 |
마실와이드 | 등록번호 : 서울, 아03630 | 등록일자 : 2015년 03월 11일 | 마실와이드 | 발행ㆍ편집인 : 김명규 | 청소년보호책임자 : 최지희 | 발행소 : 서울시 마포구 월드컵로8길 45-8 1층 | 발행일자 : 매일



