
어떤 공간이든 시간이 흐르며 역사성을 갖게 된다.
특히 DMZ와 그 안의 캠프 그리브스는 아픔과 이념의 흔적이 공존하는 상징적인 장소이다.
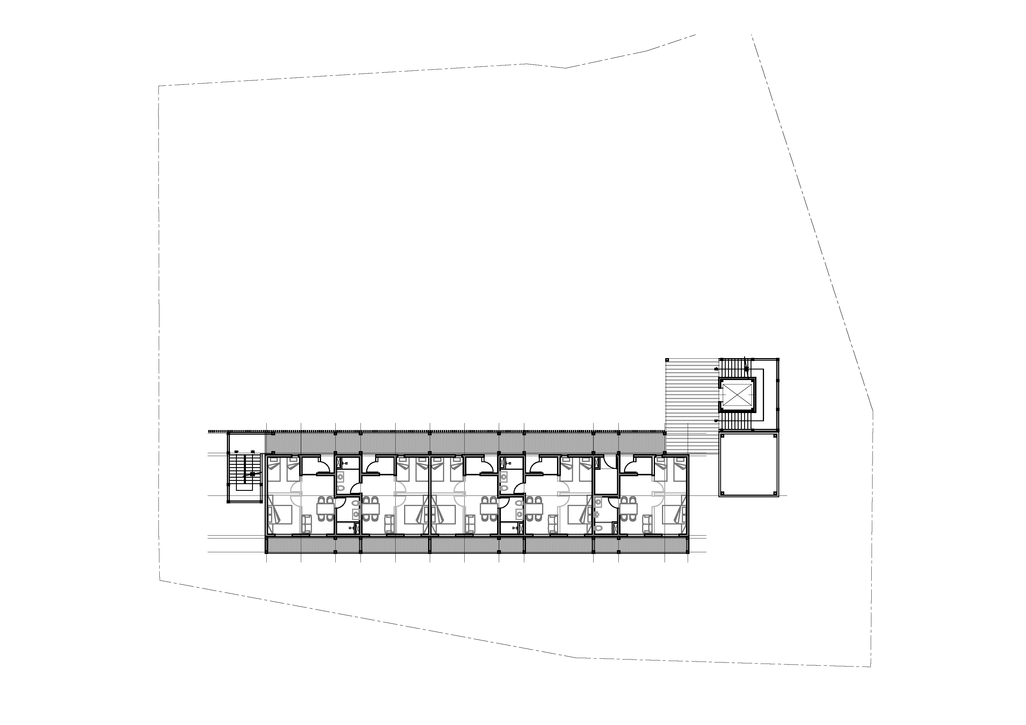
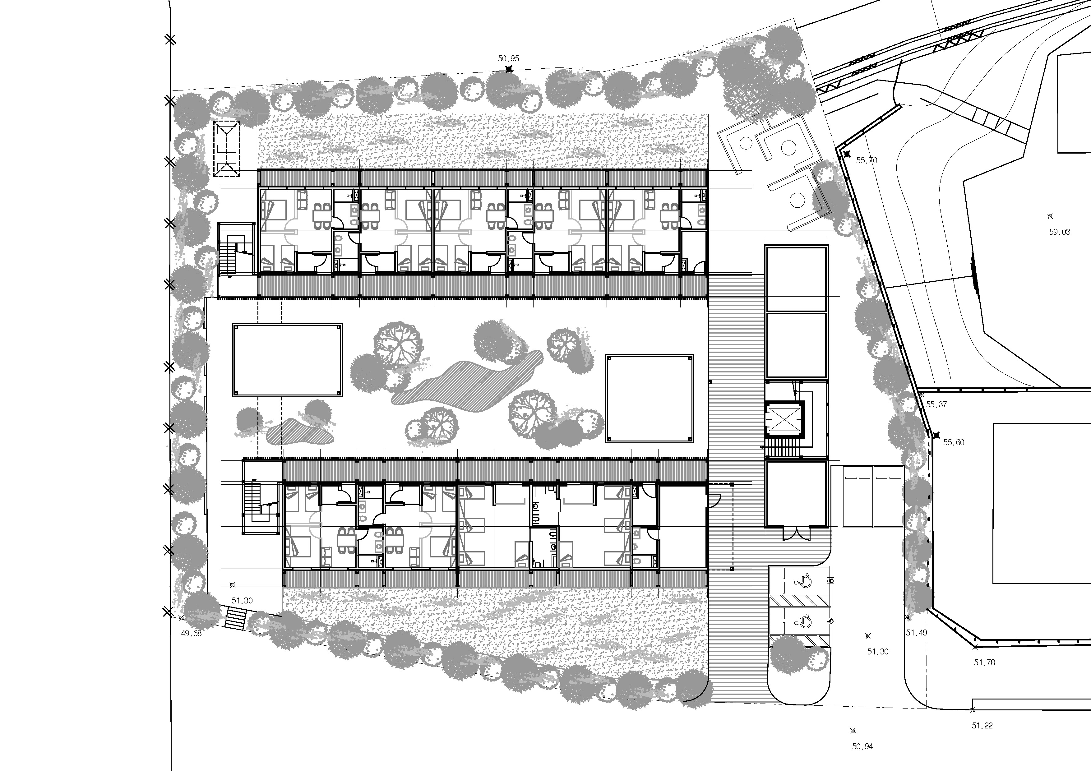
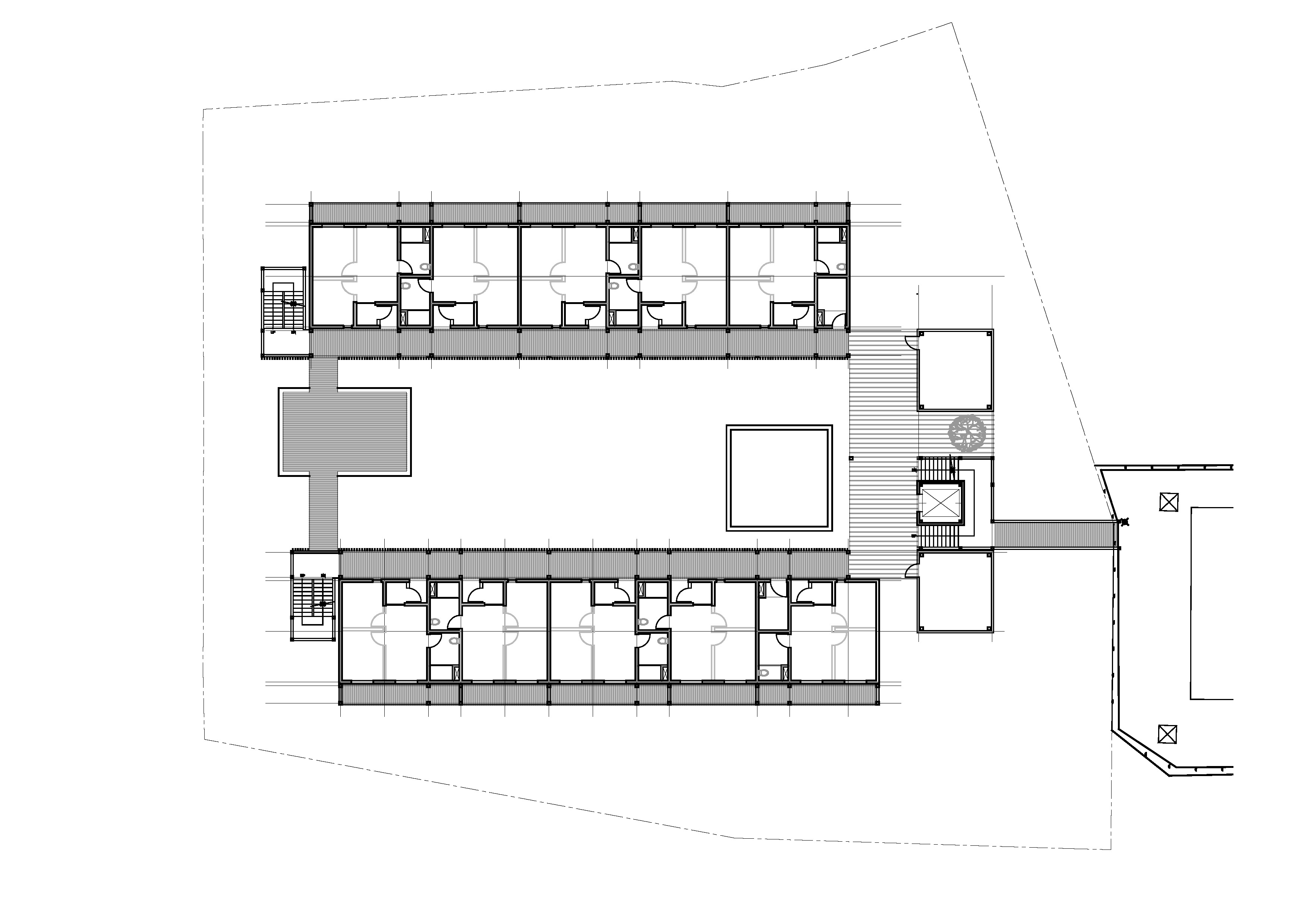
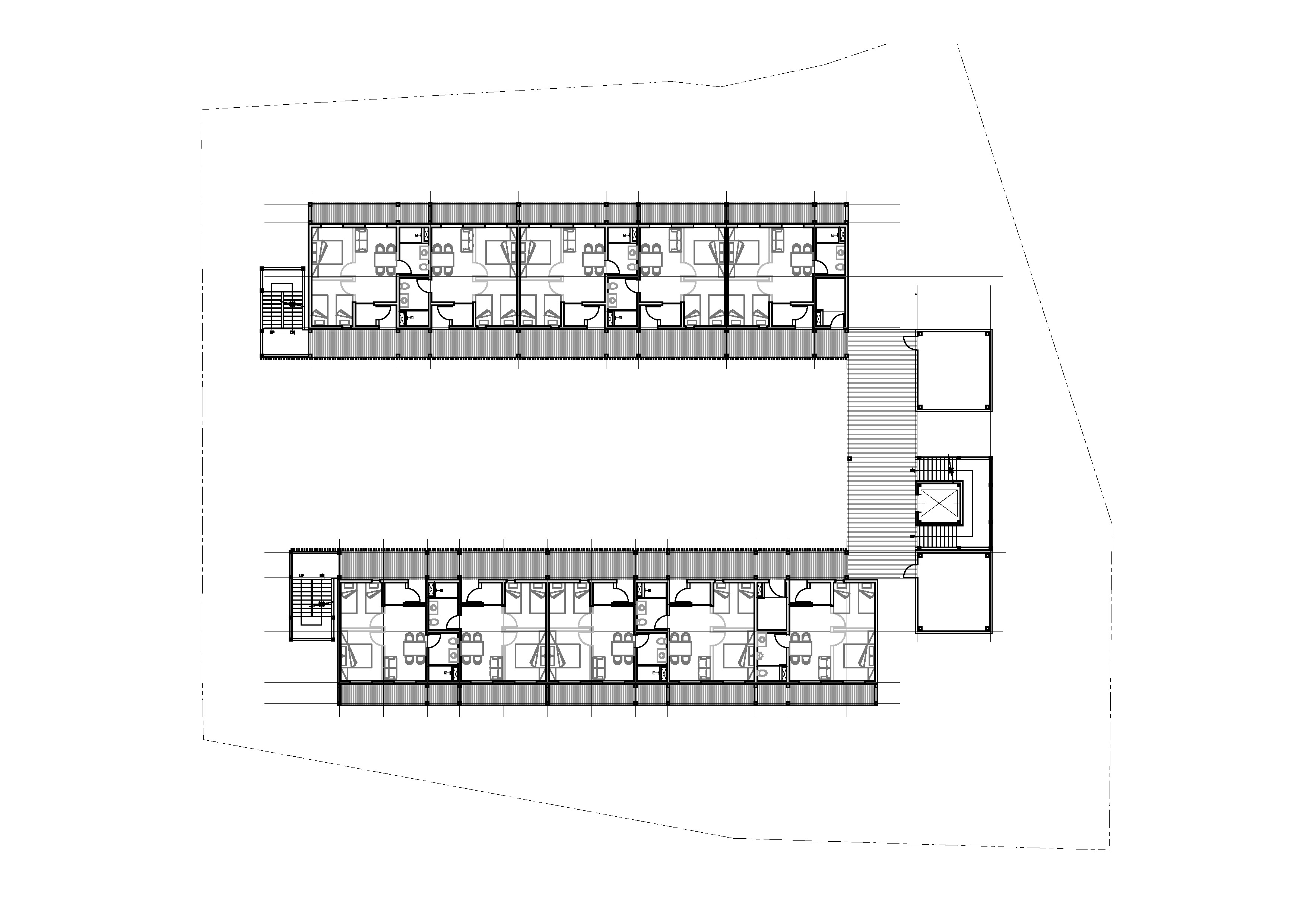
크게 세가지 특성을 지니고 있는데, 1) 장소적 희소성 - 민간인 통제선 내에 위치한 유일한 미군 반환 공여지로서, 한국전쟁 정전협정 이후 50여 년간 미 2사단 506 보병대대 주둔지이다. 2) 건축적 기록 - 퀀셋막사(Quonset hut), 탄약고, 사무실 등 군사 시설의 원형은 당시의 미군 주둔 문화와 냉전 시대의 상황을 보여주는 중요한 건축적·역사적 자산이다. 3) 평화의 상징성 - 대립과 긴장의 공간이었던 군 기지를 문화 재생을 통해 소통과 평화의 공간으로 전환함으로써, ‘단절에서 소통으로’라는 상징적 가치를 지니고 있다.
오늘날 예술가들은 레지던시와 전시 공간을 찾아 이동하고 있으며, 세계 각지에서는 유휴 공간을 문화예술 공간으로 재생해 화합과 지역 활성화를 이끌고 있다. 이러한 흐름 속에서 캠프 그리브스 역시 민간통제선이라는 특수성을 바탕으로, 문화적 가치와 평화의 메시지를 담는 공간으로 확장될 가능성을 지닌다.
나아가 이곳은 과거의 상처를 기억하는 데 그치지 않고, 예술을 매개로 서로 다른 시선과 이야기를 연결하며, 한반도와 세계를 잇는 ‘평화와 공존의 상징적 플랫폼’으로 자리매김할 수 있을 것이다.












(주)건축사사무소 토우
3등작_ (주)건축사사무소 토우(https://towooarchi.creatorlink.net)
대표건축가 홍성인
대지면적 118,714㎡
연면적 1,291.11㎡
최고높이 9.45m 이내
층수 지상 3층
대표건축가 홍성인
발주처 경기관광공사
'Plans' 카테고리의 다른 글
| 불로봉무·공산권 공공도서관 건립공사 건축 및 인테리어 설계용역_ 2등작 / 건축사사무소 서로가 + 아키미스트 (0) | 2026.04.15 |
|---|---|
| 한국보건복지인재원 교육관 증축사업 설계공모_ 당선작 / (주)제이티엠종합건축사사무소 (0) | 2026.04.15 |
| 남산1동 행정복지센터 건립 설계공모_ 당선작 / 건축사사무소 서로가 (0) | 2026.04.13 |
| 강릉시근로자종합복지관 건립 설계용역 일반설계공모_ 당선작 / (주)예송종합건축사사무소 (0) | 2026.04.13 |
| 동삭동 행정복지센터 및 동삭도서관 건립 기본 및 실시설계용역_ 3등작 / 미타 건축사사무소 + 플래니스 건축사사무소 (0) | 2026.04.13 |
마실와이드 | 등록번호 : 서울, 아03630 | 등록일자 : 2015년 03월 11일 | 마실와이드 | 발행ㆍ편집인 : 김명규 | 청소년보호책임자 : 최지희 | 발행소 : 서울시 마포구 월드컵로8길 45-8 1층 | 발행일자 : 매일



