
서문
본 프로젝트는 대학 통합이라는 전환점을 계기로, 노후 기숙사를 단순한 거주시설에서 벗어나 학습과 삶, 교류가 결합된 생활 공유 플랫폼으로 재구성하는 것을 목표로 한다.
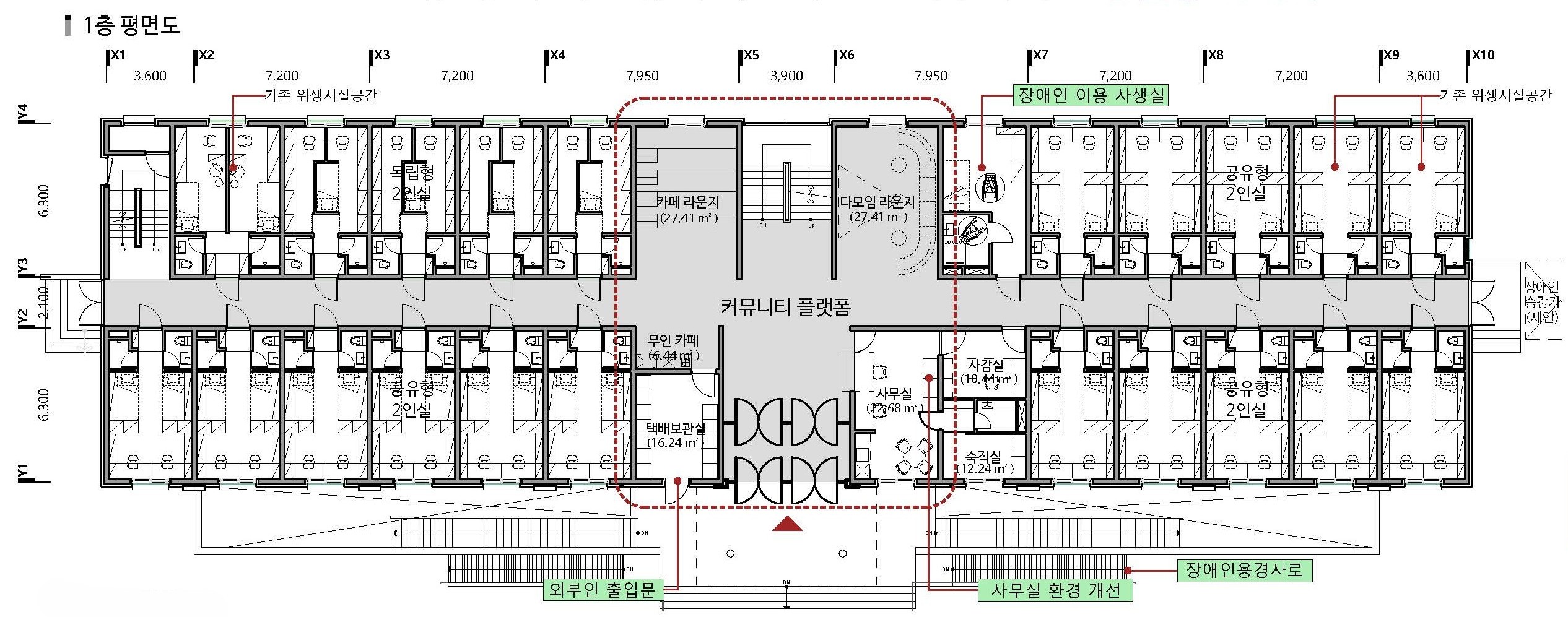
거주와 학습, 소통을 하나로 묶는 입체적 공유 플랫폼
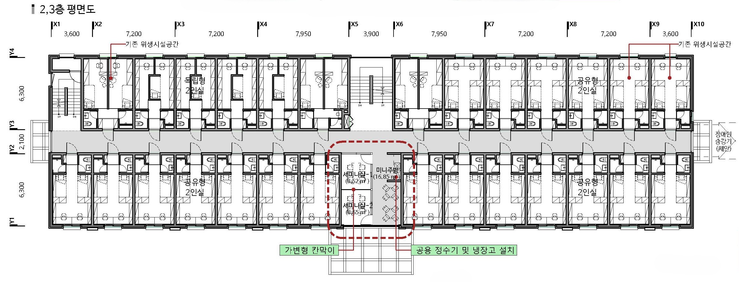
MZ세대가 지향하는 개인 프라이버시를 반영하여 상층부(2, 3층)는 사생실과 정적인 공용공간의 배치를 통해 개인 중심의 생활 환경을 조성하고, 1층과 지하 1층은 커뮤니티 기능을 집중시켜 활발한 교류가 이루어지는 ‘커뮤니티 중심축’으로 계획한다.
‘따로 또 같이’ 쓰는 사생실 유닛계획
최근 학생 주거문화는 개별성과 독립성을 중시하는 방향으로 변화하고 있다. 이에 대응하여, 1인실처럼 사용할 수 있는 2인실을 계획하여 공동생활과 개인 프라이버시를 동시에 충족하는 주거 환경을 제안한다.
A타입은 수납특화공간과 이층침대를 활용하여 좌우 영역을 분리한 독립형 유닛으로, 개인 영역을 확보하면서도 공동생활의 유연성을 유지한다. 또한 샤워실과 화장실을 분리하여 사용 효율을 높인다.
B타입은 A타입보다 750mm 확장된 유닛으로, 샤워실과 화장실을 공유하면서도 각자의 출입문을 갖는 독립형 개인실 구조를 적용한다. 거주자 간의 프라이버시는 철저히 보호하면서도 공간 활용도를 극대화하여, 기존 사생실 대비 한층 여유롭고 쾌적한 생활 공간을 구현한다.
남해의 ‘색채와 풍경’을 반영한 생활관 입면 계획
남해의 푸른 바다를 유영하는 물고기들의 역동적인 생명력을 건축적 언어로 재해석한다. 생활관 학생 개개인의 고유한 개성을 ‘서로 다른 규격과 형태의 창호’로 치환하고, 이를 입면에 반영함으로써, 단조로운 기존 건물에 입체적 리듬을 부여한다. 또한 옥빛(5BG 7/4) 계열의 색채를 적용하여 지역의 풍경과 정서를 건축에 반영한다.
학사일정을 고려한 단계별 생활관 리모델링 공사 전략
공정계획은 설계기간을 단축하여 조기 착공이 가능하도록 설정한다. 하계방학 기간 내 다솜관 공사를 완료하고, 한울관 준공 전까지 임시로 남녀 공동 생활관으로 운영하는 방안을 제안한다. 이후 한울관 준공 시점에 맞추어 다솜관을 2인실 체계로 전환함으로써 단계적 리모델링 전략을 완성한다.








탈건축사사무소 + 건축사사무소일상감각
4등작_ 탈건축사사무소 (https://tal2020.co.kr/) + 건축사사무소일상감각
대표건축사 최우린
대지면적 1,568.45㎡(전체 대지면적 66,895.00㎡내 일부)
연면적 리모델링 5,544㎡(한울관 3,054㎡ / 다솜관 2,490㎡)
건축면적 7,681.17㎡
최고높이 15.95m
층수 지하 1층, 지상 3층
구조 철근콘크리트조
주차 한울관 23대, 다솜관 17대(장애인주차 4대 포함)
대표건축사 최우린, 곽진영
디자인팀 이승윤, 조연승
'Plans' 카테고리의 다른 글
| 강릉시근로자종합복지관 건립 설계용역 일반설계공모_ 당선작 / (주)예송종합건축사사무소 (0) | 2026.04.13 |
|---|---|
| 동삭동 행정복지센터 및 동삭도서관 건립 기본 및 실시설계용역_ 3등작 / 미타 건축사사무소 + 플래니스 건축사사무소 (0) | 2026.04.13 |
| 예천군 보문면 행정복지센터 신축 공사 제안공모_ 4등작 / 장인수 건축사사무소 (0) | 2026.04.10 |
| 동구 구립요양원 건립 공사 설계공모_ 3등작 / (주)건축사사무소 티오피 (0) | 2026.04.10 |
| 성남면 행정복지센터 신축 기본 및 실시설계 용역 일반설계공모_ 당선작 / (주)스튜디오이즘건축사사무소 (0) | 2026.04.10 |
