
캐스케이드 / CASCADE
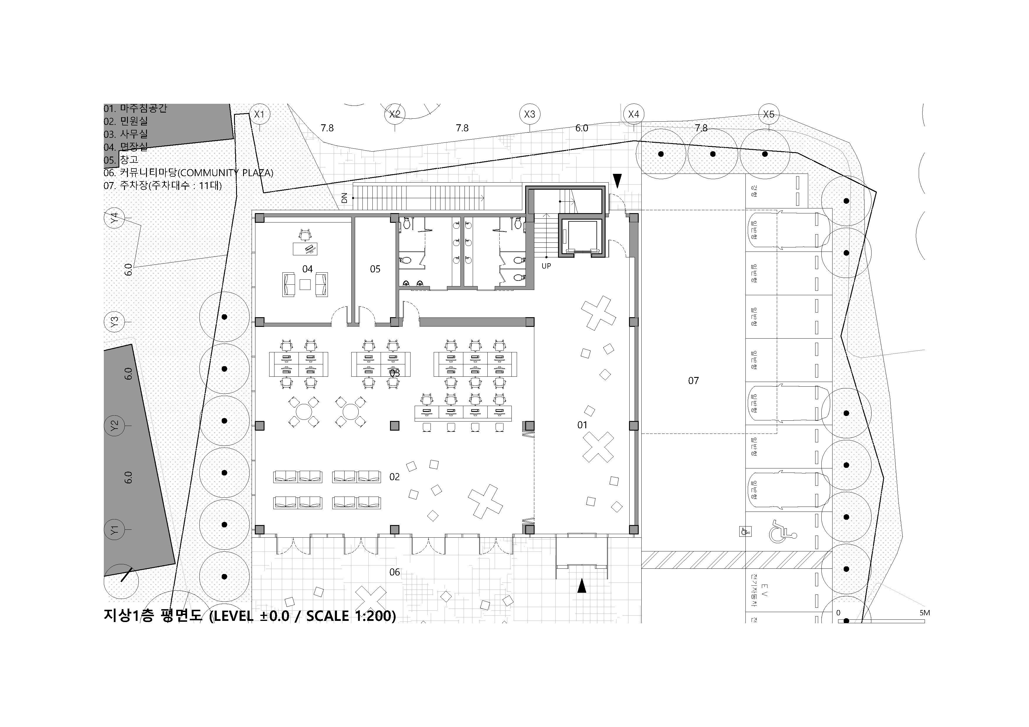
계획안의 핵심은 주변 지형을 따라 지면에서 건물로 상승하는 캐스케이드로 크기가 줄어드는 2개의 상자를 적층한 것이다. 계단식 적층은 지면의 확장으로서 커뮤니티 플랫폼-커뮤니티 광장, 커뮤니티 테라스, 커뮤니티 지붕-을 창출하는 동시에 주차장을 끌어들여 외부 공간과 새로운 건물을 하나로 엮는다. 위로 갈수록 점점 작아지는 상자는 주요 실의 채광을 확보하면서 인접 건물의 프라이버시를 존중하고, 이와 반대로 아래로 갈수록 점점 커지는 일련의 커뮤니티 플랫폼은 지면을 건물로, 건물을 지면으로 흘러 들어가게 한다. 주차장을 향한 8미터 길이의 극적인 캔틸레버는 기둥에서 자유로운 주차 공간을 만들기 위해 철골 트러스로 지지된다.
단순한 기하학의 동적 구성으로 출현한 행정복지센터는 주변과 건물을 부드럽게 연결하는 “캐스케이드(CASCADE)”로 대상지와 주변, 더 나아가 보문면을 재발견하고 새롭게 하는 시작을 알리며, 주변과의 열린 관계를 통해 대지와 건축의 공공성을 강화한다.












장인수 건축사사무소
4등작_ 장인수 건축사사무소
대표건축가 장인수
대지면적 1,309.00㎡
연면적 749.07㎡
건축면적 532.19㎡
건폐율 40.66%
용적률 57.22%
최고높이 12.90m
층수 지상 2층
구조 철근콘크리트조(RC)+철골조(S)+철골철근콘크리트조(SRC)
대표건축가 장인수
조경면적 203.31㎡
주차대수 11대
발주처 예천군
'Plans' 카테고리의 다른 글
| 동삭동 행정복지센터 및 동삭도서관 건립 기본 및 실시설계용역_ 3등작 / 미타 건축사사무소 + 플래니스 건축사사무소 (0) | 2026.04.13 |
|---|---|
| 경남도립남해대학(국립창원대학교 남해캠퍼스) 기숙사 현대화사업 제안공모_ 4등작 / 탈건축사사무소 + 건축사사무소일상감각 (0) | 2026.04.10 |
| 동구 구립요양원 건립 공사 설계공모_ 3등작 / (주)건축사사무소 티오피 (0) | 2026.04.10 |
| 성남면 행정복지센터 신축 기본 및 실시설계 용역 일반설계공모_ 당선작 / (주)스튜디오이즘건축사사무소 (0) | 2026.04.10 |
| 경북시청자미디어센터오천읍행정복지센터 복합청사 건립_ 당선작 / 건축사사무소 티오피 (0) | 2026.04.08 |
