
연리지(連理枝), 함께 꿈꾸는 미래
1. 설계 개념: 서로 엉켜 하나로 자라는 ‘연리지’
성남면 행정복지센터의 설계는 ‘뿌리가 다른 나뭇가지가 서로 엉켜 마치 한 나무처럼 자라는 현상’인 *연리지(連理枝)*를 모티브로 합니다. 이는 전통 농업 중심의 성남면 마을 공동체가 서로 교류하고 동화되며 하나의 미래를 만들어 나가는 모습을 상징합니다. 본 계획안은 다양한 계층의 시민이 어우러지는 ‘성남면 플라자’를 통해 이웃 간의 유대를 끈끈하게 맺어주는 화합의 장을 제안합니다.
2. 배치 및 동선 계획: 마을을 향해 열린 ‘어울림마당’
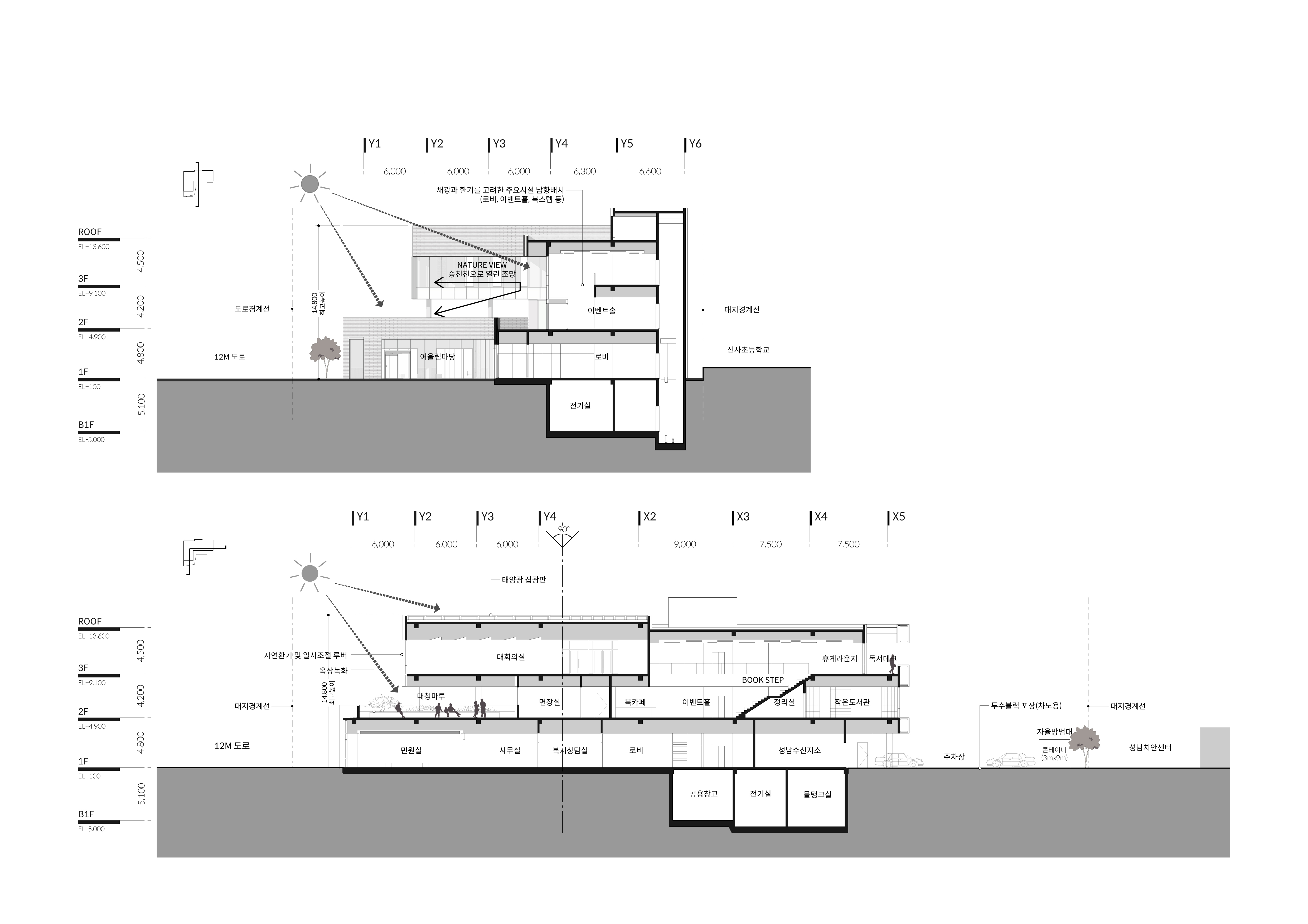
대지의 물리적 한계를 극복하고 이용자의 편의를 최우선으로 고려하여 최적의 배치를 실현했습니다. 남쪽의 ‘새터들’ 방향으로 열린 배치를 통해 우수한 채광과 조망을 확보하였으며, 전면도로와 접한 부분에 어울림마당을 배치하여 지역 주민의 자연스러운 유입을 유도합니다. 특히 보행 영역과 차량(서비스) 영역을 명확히 분리하여 안전성을 높이고, 주민 접근성을 극대화한 개방형 공간 구성을 완성했습니다.
3. 공간 특화 계획: 입체적인 소통의 공간
단순한 행정 업무 공간을 넘어, 주민들이 머물고 즐길 수 있는 문화 거점을 지향합니다.
1층(민원 및 업무): 로비와 직접 연계된 민원실은 주민들에게 투명하고 편리한 행정 서비스를 제공합니다.
2층(주민 교류): 어울림마당을 조망하는 작은도서관과 주민 공동체의 거실 역할을 하는 대청마루를 계획하여 세대 간 소통을 도모합니다.
3층(문화 및 행사): 대회의실과 연계된 독서데크는 실내외 공간을 유기적으로 연결하여 주민들에게 쾌적한 휴게 환경을 제공합니다.
내부의 ‘북스텝(Book Steps)’과 외부의 ‘오픈스텝(Open Steps)’은 각 층의 프로그램을 입체적으로 연결하며 활발한 교류를 이끌어냅니다.
4. 건축 입면 및 재료 계획: 마을의 풍경을 닮은 따뜻함
마을 풍경과 조화를 이루는 점토벽돌을 주재료로 선정하여 주민들에게 친근하고 따뜻한 이미지를 전달합니다. 벽돌의 다양한 쌓기 방식(치장쌓기, 영롱쌓기 등)을 통해 다채로운 표정을 연출하고, 에너지 효율을 높이는 동시에 현대적인 세련미를 더했습니다. 중첩되고 뻗어 나간 매스 디자인은 느티나무 그늘 아래처럼 편안한 쉼터를 제공하며, 성남면의 새로운 상징적 풍경이 될 것입니다.















(주)스튜디오이즘건축사사무소
당선작_ (주)스튜디오이즘건축사사무소
대표건축가 김일영
대지면적 1,948.44㎡
연면적 1,964.04㎡
건축면적 764.32㎡
건폐율 39.23%
용적률 89.17%
최고높이 14.80m
층수 지하 1층, 지상 3층
구조 철근콘크리트조구조
대표건축가 김일영
조경면적 231.74㎡
주차대수 총 21대 (옥외 자주식 주차장)대
발주처 천안시청
'Plans' 카테고리의 다른 글
| 예천군 보문면 행정복지센터 신축 공사 제안공모_ 4등작 / 장인수 건축사사무소 (0) | 2026.04.10 |
|---|---|
| 동구 구립요양원 건립 공사 설계공모_ 3등작 / (주)건축사사무소 티오피 (0) | 2026.04.10 |
| 경북시청자미디어센터오천읍행정복지센터 복합청사 건립_ 당선작 / 건축사사무소 티오피 (0) | 2026.04.08 |
| 휴천1동 행정복지센터 건립공사 설계공모_ 2등작 / 수와선건축사사무소 (0) | 2026.04.08 |
| 남산1동 행정복지센터 건립 설계공모 - 2등작 / (주)기단건축사사무소 (0) | 2026.04.08 |
마실와이드 | 등록번호 : 서울, 아03630 | 등록일자 : 2015년 03월 11일 | 마실와이드 | 발행ㆍ편집인 : 김명규 | 청소년보호책임자 : 최지희 | 발행소 : 서울시 마포구 월드컵로8길 45-8 1층 | 발행일자 : 매일



