
도시의 결을 읽고, 일상의 흐름을 역는 새로운 공공의 장
지역의 변화와 수요 속에서 공동체의 삶과 주민의 일상을 담아내고 분절된 건물의 결 사이로 이어지는 수평의 리듬이 도시 가로의 풍경속에 자연스럽게 스며드는 남산 1동 행정복지센터
남산 1동 행정복지센터의 진입공간
다양한 접근을 수용하는 진입로 계획으로 분리되는 보차로는 방문객의 안전한 접근을 확보하며, 열린 저층부는 가로변의 보행 흐름을 자연스럽게 유입하고 외부계단을 통해 입체적으로 연결되는 공공보행로를 형성한다.
열린공간으로 맞이하는 민원실
개방된 로비공간과 열린 민원공간은 사용자 중심의 유연한 동선을 제공하며, 단순하고 명확한 공간 배치로 효율적인 민원처리를 유도한다.
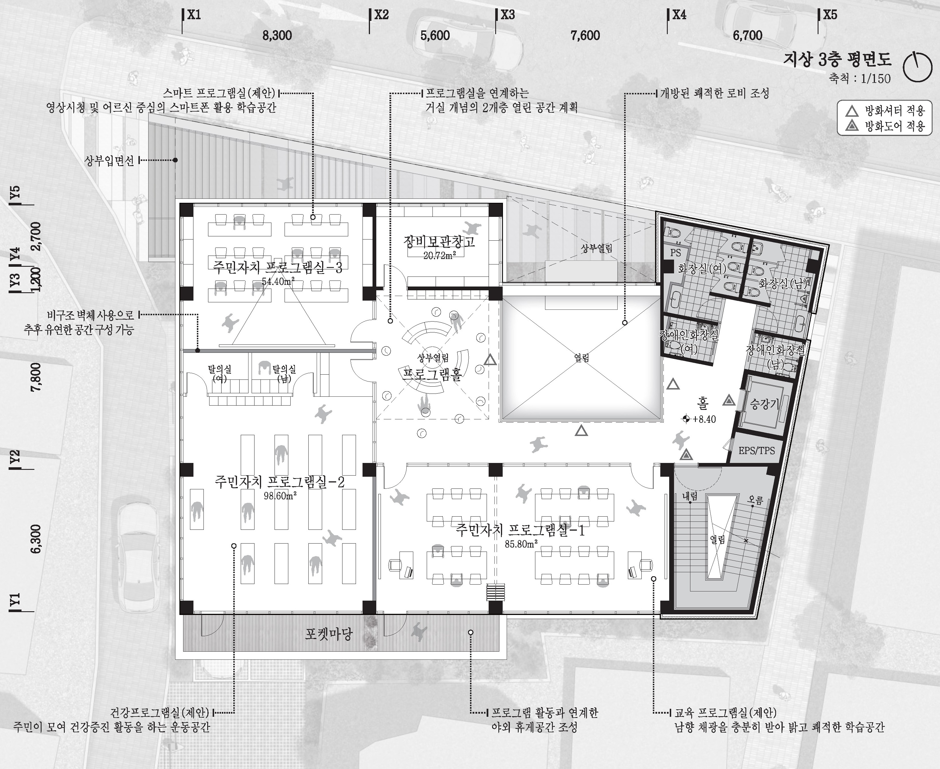
주민자치 프로그램의 소통 중심공간
운영과 연계를 고려한 프로그램홀을 중심으로 확산되는 주민자치 프로그램실. 2개층에 걸친 열린공간은 시각적 연계를 형성하고 자연스러운 소통이 이루어지는 커뮤니티 공간을 마련한다.
다양한 이야기의 주민자치 프로그램실
주민자치 프로그램은 가변되는 공간구성으로 다양한 활동을 가능하게 하고, 수직으로 열린 공간과 수평으로 확장되는 외부공간은 프로그램실에 개방감을 제공한다.
주민들의 요구를 충족하는 다목적실과 주민공유실
행사와 공연 등 다양한 활동을 수용하는 다목적실과 자유롭게 이용 가능한 주민공유실은 내외부 공간이 유연하게 연계되며 쾌적한 공간으로 구성된다.














(주)기단건축사사무소
2등작_ (주)기단건축사사무소 (https://kidan.kr/)
대표건축가 김기석, 손만영
대지면적 700㎡
연면적 1,174.98㎡
건축면적 522.64㎡
건폐율 74.66%
용적률 228.19%
최고높이 24.40m
층수 지하 1층, 지상 5층
구조 철근콘크리트구조
대표건축가 김기석, 손만영
디자인팀 이동수 실장, 김태우디자이너, 정주은 디자이너, 김다빈 디자이너, 김용성 디자이너
조경면적 79.57㎡
주차대수 17대(친환경주차1대, 장애인주차 1대)
발주처 대구광역시 중구청
'Plans' 카테고리의 다른 글
| 경북시청자미디어센터오천읍행정복지센터 복합청사 건립_ 당선작 / 건축사사무소 티오피 (0) | 2026.04.08 |
|---|---|
| 휴천1동 행정복지센터 건립공사 설계공모_ 2등작 / 수와선건축사사무소 (0) | 2026.04.08 |
| 「국우동 행정복지센터 건립공사」 건축설계공모_ 당선작/ 굳자인건축사사무소 (0) | 2026.04.07 |
| 탄방동 행정복지센터 건립사업 설계용역 설계공모_ 4등작/ (주)건축사사무소 아이피에이 (0) | 2026.04.07 |
| 중앙동 행정복지센터 이전 건립 건축설계공모_ 2등작/ 봄여름가을겨울 건축사사무소 (0) | 2026.04.07 |
마실와이드 | 등록번호 : 서울, 아03630 | 등록일자 : 2015년 03월 11일 | 마실와이드 | 발행ㆍ편집인 : 김명규 | 청소년보호책임자 : 최지희 | 발행소 : 서울시 마포구 월드컵로8길 45-8 1층 | 발행일자 : 매일



