
상권과 공동체의 공존, 일상이 교차하는 글로컬 플랫폼
진주시 상대지구 도시재생 사업의 3대 목표 중 하나인 글로벌 마켓사업은 자유시장과 다문화 외국인 상권이 공존하는 장소적 특성을 바탕으로 지역의 상업적 활력과 문화적 다양성을, 도시재생의 자산으로 확장하고자 한다. 그 중심에서 글로컬 어울림센터는 경제와 문화, 로컬과 글로벌이 일상 속에서 한데 어우러지는 글로컬 플랫폼이 되기를 제안한다.
대지는 기존 상권과 다문화 상권을 분리된 영역이 아닌, 서로 다른 일상이 교차하고 스며드는 구조로 해석한다. 건축은 특정 목적을 가진 시설이 아니라, 누구나 드나들며 머무를 수 있는 열린 장치로서 상권과 공동체 사이의 경계를 완화하고 관계 형성을 유도한다.
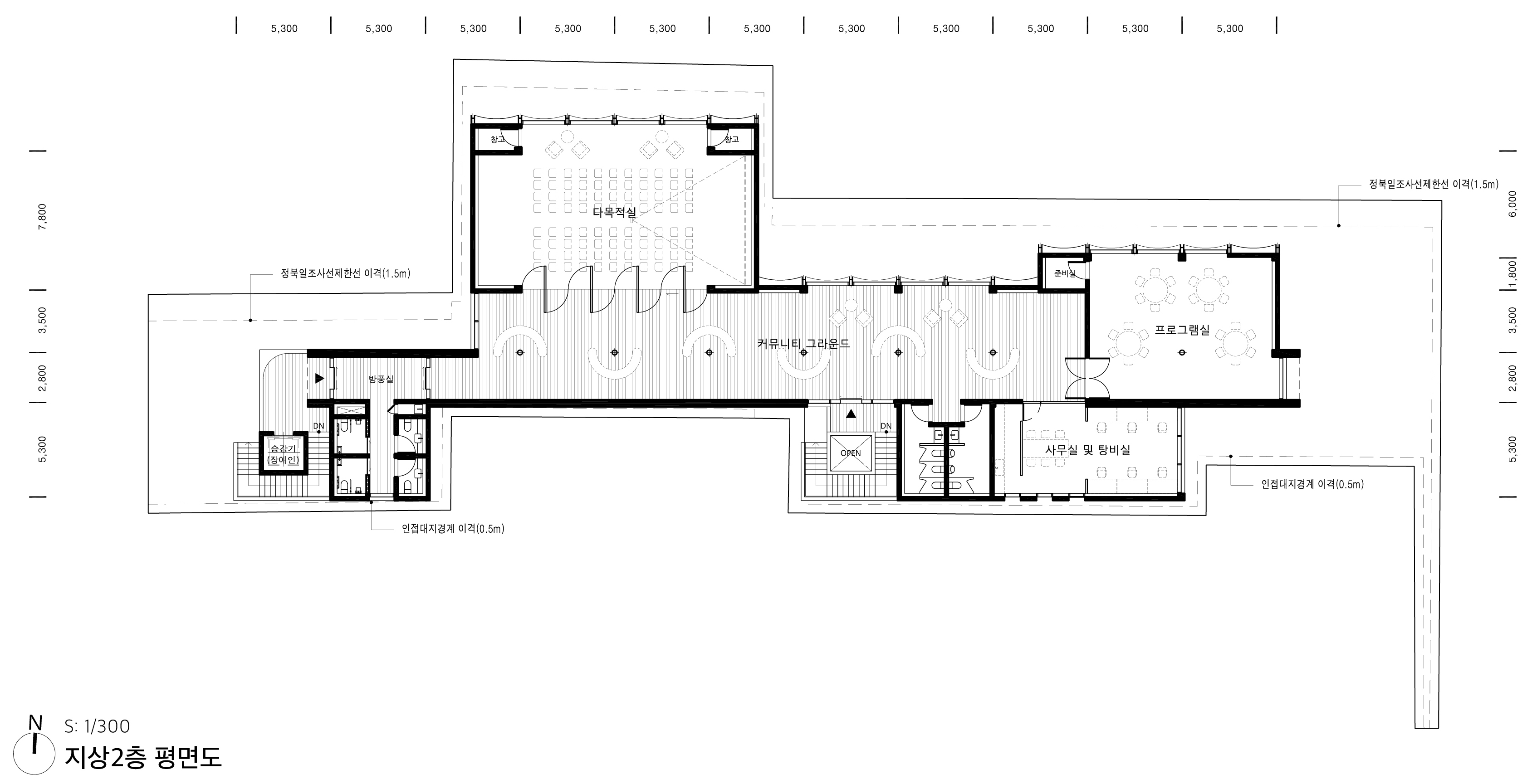
이러한 개념은 공용(로비,홀,복도), 휴게, 커뮤니티 공간을 통합한 커뮤니티 그라운드(Community Ground)를 통해 구체화된다. 커뮤니티 그라운드는 이동과 체류, 일상과 활동이 중첩되는 열린 공간으로, 일상 속 만남과 다문화 교류가 연속적이고 자연스럽게 이루어지는 소통의 중심이 된다.
글로컬 어울림센터는 기능의 집합보다 관계의 축적을 중시한다. 도시의 흐름이 건축을 통과하고, 건축에서 형성된 활동이 다시 도시로 확장되는 순환 구조를 통해, 상업 활동은 문화적 경험으로 전이되고 공동체의 연결망은 지속적으로 강화된다.
다문화는 상징적으로 드러나기보다 공간을 함께 사용하고 경험하는 과정 속에서 자연스럽게 인식된다. 이는 지역 상권의 지속 가능성과 공동체 활성화를 동시에 이끄는 도시재생의 실천적 장치로서, 글로컬 어울림센터를 상권과 공동체가 공존하는 진주의 새로운 도시 거점으로 자리매김하길 기대한다.









사분의삼 건축사사무소
2등작_ 사분의삼 건축사사무소(http://3q-architects.com/)
대표건축가 조현범
대지면적 1,208.10㎡
연면적 645.71㎡
건축면적 647.54㎡
건폐율 53.60%
용적률 53.45%
최고높이 11.4m
층수 지상 2층
구조 철근콘크리트조, 철골조
대표건축가 조현범
조경면적 65.27㎡
주차대수 34대
발주처 진주시
'Plans' 카테고리의 다른 글
| 054스페이스 조성사업 설계공모_ 5등작 / 건축사사무소공이일+그랑건축사사무소 (0) | 2026.03.04 |
|---|---|
| 공릉숲길 커피그라인더 전시관 디자인 설계 및 전시물 제작 · 설치 용역_ 당선작 / 사이다 건축사사무소+주식회사 디자인코드아이디+눈사람공장 (0) | 2026.02.26 |
| 건강증진형 장안보건지소 건립사업 설계공모_ 3등작 / 리얼스페이스 건축사사무소 (0) | 2026.02.25 |
| 창녕우포예술촌 조성사업 건축설계용역(건축설계공모)_ 2등작 / 비비빅건축사사무소 (0) | 2026.02.23 |
| 선인장 식물원 2차 리모델링 사업 설계용역 제안공모_ 2등작 / 건축사사무소 강희재 (0) | 2026.02.23 |
마실와이드 | 등록번호 : 서울, 아03630 | 등록일자 : 2015년 03월 11일 | 마실와이드 | 발행ㆍ편집인 : 김명규 | 청소년보호책임자 : 최지희 | 발행소 : 서울시 마포구 월드컵로8길 45-8 1층 | 발행일자 : 매일



