
공릉숲길 커피그라인더 전시관: 시장과 숲, 그 사이의 밀도를 감각하다
일상의 활기와 숲의 여유가 교차하는 틈새
서울 노원구 공릉동. 오랜 시간 지역의 삶을 지탱해온 도깨비시장과 사계절의 결을 따라 이어지는 경춘선 숲길이 만나는 지점에 ‘공릉숲길 커피그라인더 전시관’이 들어선다. 이번 공모의 당선작은 유휴 점포를 단순한 전시시설로 전환하는 데 머물지 않는다. 시장의 혼잡한 시각 언어와 숲길의 여유가 교차하는 이 틈새에서, 건축은 두 세계를 잇는 매개체가 된다. 전시관은 일상의 활기와 자연의 호흡 사이에서 새로운 문화적 밀도를 생성하는 장치로 제안되었다.
커피 그라인더, ‘밀도’의 공간적 해석
설계의 출발점은 단순한 도구를 넘어 그 시대를 고스란히 담고 있는 커피 그라인더였다. 단단한 원두가 잘게 부서지며 향을 품은 가루로 변화하는 과정, 즉 ‘밀도의 전환’은 이 전시관을 관통하는 핵심 언어다. 시장 골목의 소란을 잠재우며 마주하는 진입부는 단정하고 절제된 표정으로 방문객을 맞이한다. 내부로 들어설수록 전시의 밀도는 점차 높아지고, 시각적·촉각적 자극은 세밀하게 조율된다. 기계적 물성과 시간의 축적이 만들어낸 그라인더의 존재감은 전시대와 벽면, 거울 연출을 통해 입체적으로 드러난다.
경계를 허무는 감각의 전이
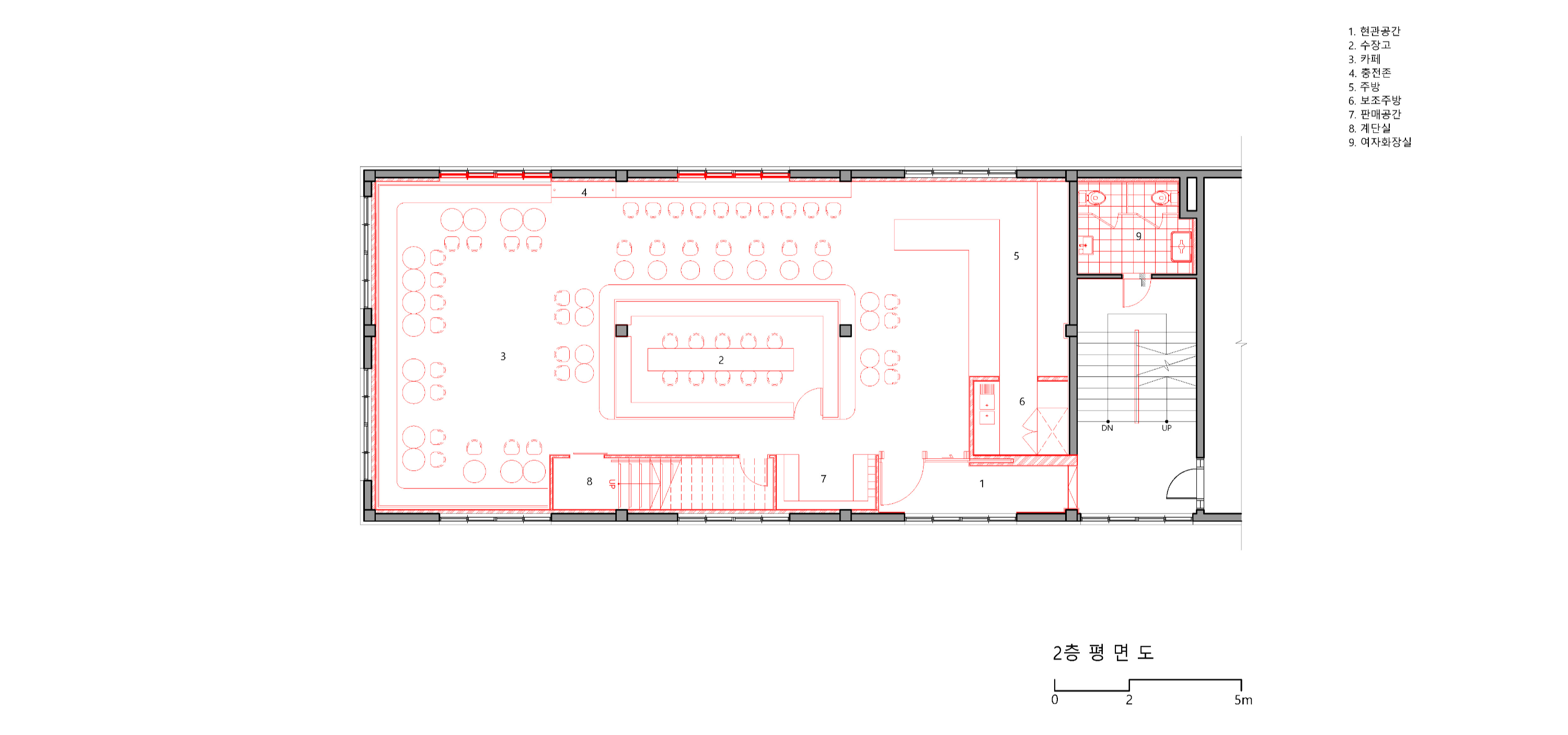
전시관은 2층과 3층을 오가는 수직적 동선을 따라 경험을 확장하며, 각 층은 물리적 벽체가 아닌 감각의 ‘흐름’으로 경계를 허문다.
2층은 ‘상호작용하는 감각의 레이어’다. 공간 중심에 위치한 시대의 정밀함이 응축된 열린 수장고를 따라 유기적으로 회전하는 순환 동선을 계획하여, 관람객이 경계 없이 공간을 유영하며 그라인더의 소리와 진동, 향을 오감으로 체득하게 했다. 반투시형 커튼은 보존과 전시의 경계를 유연하게 조절하며, 수리공방의 복원 과정은 그 자체로 살아있는 감각의 장면(Scene)이 된다.
3층은 보다 정적인 ‘몰입과 감각의 공간’이다. 전시관은 하나의 호흡으로 연결된 선형적 시퀀스를 구축하여, 전시의 시작부터 끝까지 자연스럽게 돌아 나오는 경계 없는 동선의 흐름을 완성했다. 깊은 정적을 머금은 어두운 배경 속 그라인더 자체의 모습을 부각하는 백색 전시대와 후면 거울 연출은 사물을 입체적 조형물로 드러내며 관람자와 오브제 사이의 거리감을 지우고 오직 사물의 물성과 감각에 집중하게 한다. 여기에 디지털 트윈 기반의 가상 전시가 더해지며, 물리적 공간은 온라인으로 연결되어 시공간의 제약을 넘어 이 밀도 높은 감각의 경험을 확장해 간다.
연결의 건축
이 프로젝트의 본질은 ‘연결’에 있다. 전시관은 도깨비시장 상인들에게는 자부심의 상징이 되고, 숲길을 찾은 이들에게는 우연한 발견의 장소가 된다. 인근 카페와 연계한 커피 맵과 지역 브랜딩 프로그램은 건축을 하나의 문화적 엔진으로 작동하게 한다. 공릉숲길 커피그라인더 전시관은 결국 한 잔의 커피가 만들어내는 작은 밀도로부터, 지역의 문화적 밀도를 확장해 나가는 공간적 실험이다.















사이다 건축사사무소+주식회사 디자인코드아이디+눈사람공장
당선작_ 사이다 건축사사무소(http://saidaa.kr/)+주식회사 디자인코드아이디+눈사람공장(https://www.snowmanfactory.kr/)
대표건축가 윤홍연
대지면적 743.10 ㎡
연면적 1,496.00㎡ (해당영역 2층182㎡, 3층182㎡ )
건축면적 364.00㎡
용도 근린생활시설
건폐율 48.98%
용적률 146.95%
층수 지하 1층, 지상 3층 (해당영역 지상2,3층 일부)
구조 철근콘크리트구조
대표건축가 윤홍연
디자인설계팀 사이다 건축사사무소(윤홍연, 이풍삼, 유지원, 남미연, 이현경, 김여경, 강다윤, 정원규)
제작설치팀 디자인코드아이디(서명심 장영완)
디지털설계팀 눈사람공장(백성진, 심현수, 이재욱)
발주처 노원구청
'Plans' 카테고리의 다른 글
| 검단 다목적 체육관(1호 체육공원) 건립사업 기본 및 실시설계 용역(공모)_ 4등작 / 오픈스튜디오 건축사사무소 (0) | 2026.03.04 |
|---|---|
| 054스페이스 조성사업 설계공모_ 5등작 / 건축사사무소공이일+그랑건축사사무소 (0) | 2026.03.04 |
| 글로컬 어울림센터 조성사업 설계공모(일반설계공모)_ 2등작 / 사분의삼 건축사사무소 (0) | 2026.02.25 |
| 건강증진형 장안보건지소 건립사업 설계공모_ 3등작 / 리얼스페이스 건축사사무소 (0) | 2026.02.25 |
| 창녕우포예술촌 조성사업 건축설계용역(건축설계공모)_ 2등작 / 비비빅건축사사무소 (0) | 2026.02.23 |
마실와이드 | 등록번호 : 서울, 아03630 | 등록일자 : 2015년 03월 11일 | 마실와이드 | 발행ㆍ편집인 : 김명규 | 청소년보호책임자 : 최지희 | 발행소 : 서울시 마포구 월드컵로8길 45-8 1층 | 발행일자 : 매일



