
장안보건지소는 진료의 기능과 더불어 건강증진 기능을 아우르며 행복센터와 함께 행정, 복지, 보건의 통합 거점으로써 기능할 것이기 때문에 단독건물로 설계하는 것이 아니라 행복센터와 하나의 단지로 생각하고 접근한다. 그렇기 때문에 신축중인 행복센터의 반복되는 바코드 타입 입면구성은 단지 전체를 통일시킬 수 있는 디자인 언어라고 생각하여 건물의 상당부분은 내부 기능을 고려해 바코드 타입으로 풀어나갔고 계단실과 일부 모서리부분은 곡선으로 처리하여 시각적 변주를 주었다.
행복센터의 화강석 마감과 비슷한 계열의 회색 벽돌을 주요 외장재로 채택하되 일부 매스에는 규화목 사이딩을 적용해서 주민들이 친근하게 느낄 수 있도록 공간적 질감을 부여했다. 이 재료는 시간이 지남에 따라 점차 은회색으로 변해가기 때문에 처음의 생경함이 점점 이 일대 공간의 톤과 자연스럽게 조화를 이루게 될 것을 고려했다.







리얼스페이스건축사사무소
3등작_ 리얼스페이스건축사사무소(https://www.instagram.com/real___space/)
대표건축가 이현승
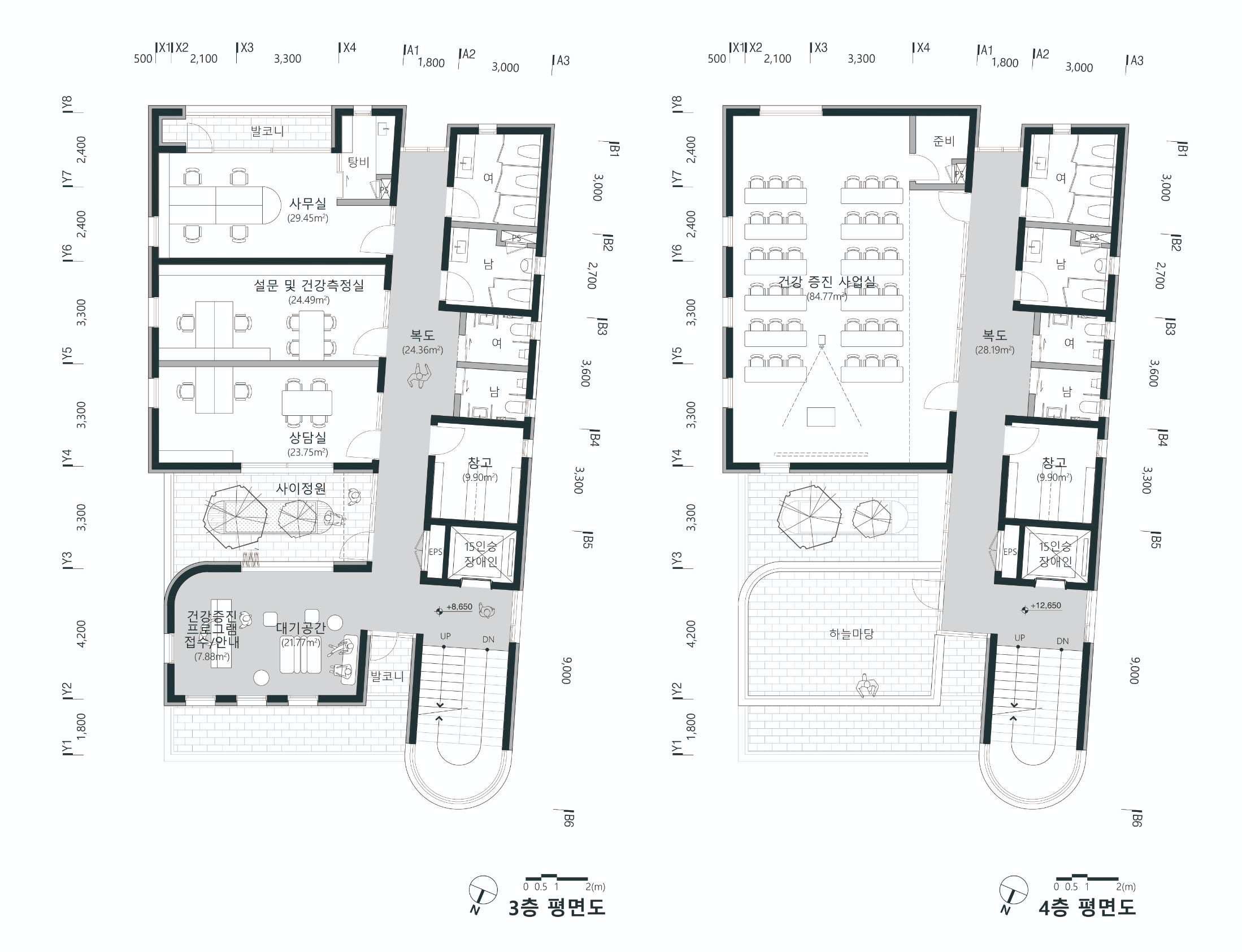
대지면적 491㎡
연면적 656.10㎡
건축면적 231.51㎡
건폐율 47.15%
용적률 133.63%
최고높이 18.05m
층수 지상 4층
구조 철근콘크리트구조
대표건축가 이현승
디자인팀 이현승
조경면적 48.34㎡
주차대수 6대(장애인 전용주차1대, 전기차 전용주차1대 포함)
발주처 부산광역시 기장군청
'Plans' 카테고리의 다른 글
| 공릉숲길 커피그라인더 전시관 디자인 설계 및 전시물 제작 · 설치 용역_ 당선작 / 사이다 건축사사무소+주식회사 디자인코드아이디+눈사람공장 (0) | 2026.02.26 |
|---|---|
| 글로컬 어울림센터 조성사업 설계공모(일반설계공모)_ 2등작 / 사분의삼 건축사사무소 (0) | 2026.02.25 |
| 창녕우포예술촌 조성사업 건축설계용역(건축설계공모)_ 2등작 / 비비빅건축사사무소 (0) | 2026.02.23 |
| 선인장 식물원 2차 리모델링 사업 설계용역 제안공모_ 2등작 / 건축사사무소 강희재 (0) | 2026.02.23 |
| 천연기념물 진도개 보존 관리센터 건립 건축설계(설계공모)_ 4등작 / 건축사사무소 하루 (0) | 2026.02.10 |
마실와이드 | 등록번호 : 서울, 아03630 | 등록일자 : 2015년 03월 11일 | 마실와이드 | 발행ㆍ편집인 : 김명규 | 청소년보호책임자 : 최지희 | 발행소 : 서울시 마포구 월드컵로8길 45-8 1층 | 발행일자 : 매일



