
환경의 재구성 - 진도개의 특성을 읽는 공간
대한민국 천연기념물 제53호인 진도개는 오랜 시간 인간의 삶과 가장 가까운 곳에서 함께해 온 존재다. 보호의 대상이자 문화의 일부로 인식되어 왔지만, 그들이 살아가는 환경은 대체로 관리와 효율의 언어로만 설명되어 왔다. 인간에게는 기능을 충족하는 공간이 충분해 보일지라도, 그 안에서 축적되는 긴장과 반복되는 자극, 시선과 소음이 남기는 감각은 쉽게 기록되지 않는다. 보이지 않는 불편은 계량되지 않지만 분명히 존재하며, 진도개의 하루와 리듬을 결정하는 중요한 조건이 된다. 이 계획은 그러한 보이지 않는 감각에 주목하며, 통제의 장치가 아닌 스스로의 질서를 회복할 수 있는 환경을 어떻게 구축할 것인가라는 질문에서 출발한다.
진도개를 위한 마을 만들기
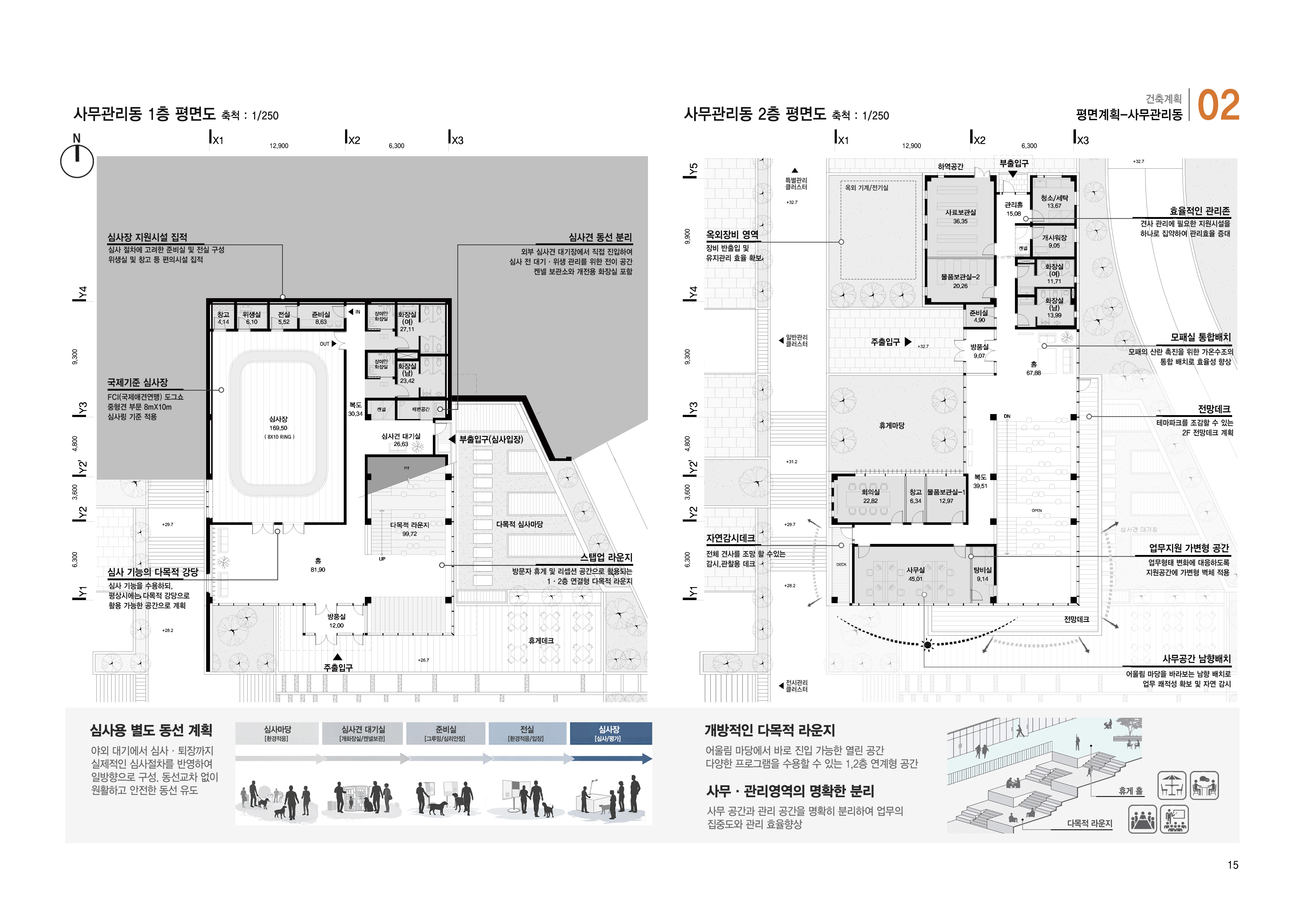
본 계획은 진도개를 보호의 대상이 아닌, 생활의 영역과 리듬을 가진 존재로 인식하는 데서 출발한다. 사육·번식·회복·관람·관리 기능을 단일 시설이 아닌 마을의 구성 요소로 재편해, 진도개의 성향과 생애주기에 대응하는 공간 체계를 구축한다. 대지의 단차와 레벨 차이를 활용해 클러스터 간 간섭을 줄이고, 명확한 조닝과 동선 분리를 통해 안전하고 효율적인 운영 환경을 형성한다. 이를 통해 본 시설이 하나의 관리센터가 아닌, 진도개의 삶이 지속되는 마을로 작동되길 기대한다.
진도개의 행동 특성을 고려한 환경 조율
진도개는 외부 자극에 민감하며, 시각·청각적 긴장의 축적은 개체 간 갈등과 스트레스로 이어진다. 따라서 개별 견사의 성능과 더불어 배치와 거리 등 환경 조율이 핵심이다. 지형의 단차를 활용한 클러스터 배치와 시야 분절을 통해 직접적인 마주침을 최소화하고, 자연스러운 바람길과 개구율을 조정해 심리적 안정과 환경 성능을 동시에 작동하는 사육 환경을 구축하고자 한다.
보안과 인지성을 고려한 접근 체계 설정
본 시설은 공공성을 가지면서도 관리·심사·보존 기능을 포함하는 보안이 요구되는 공간이다. 대상지는 지형적 특성으로 인해 접근성이 낮아, 명확한 진입 체계와 공간 인지가 중요하게 작용한다. 이에 외부 방문 동선과 관리 동선을 명확히 분리하고, 지형을 따라 단계적으로 위계를 설정하여 공공시설로서의 인지성과 시설의 보안성을 확보한다.
주변 맥락을 반영한 클러스터 전략
대상지는 진도개 테마 시설이 집중된 초입부에 위치하지만 일부 시설에 한해 개방해야 하는 어려움이 있다. 이에 본 계획은 견사 클러스터를 기본 단위로 설정하여, 관람·브리딩·격리 기능이 상호 간섭 없이 연계되고 운영 변화에도 대응 가능한 안정적이고 지속적인 보존관리 환경을 제시하고자 한다.
[Open Square]_모두에게 열린 진도개 보존센터
전면 광장을 보존센터의 주요 진입 결절점으로 설정해 외부 동선과 시설 내부를 명확히 연결함. 광장은 집결·대기·분산 기능을 수행하며, 전시 동선과 직접 연계되어 방문 흐름을 단계적으로 내부 프로그램으로 유도
[Safety Zoning]_명확한 조닝으로 안전한 보존센터
관람·관리·사육·번식·회복 영역을 기능별로 명확히 분리해 동선의 교차를 최소화함. 접근 단계에 따른 조닝과 통제 체계를 통해 운영 효율을 확보하고, 진도개와 방문자 모두의 안전을 구조적으로 확보
[Multi-Level Clusters]_지형을 활용한 용도별 클러스터
대지의 단차를 활용해 기능별 클러스터를 레벨별로 배치함. 높이 차이를 통해 영역간 간섭을 줄이고, 각 클러스터가 독립적으로 운영되면서도 전체 시설의 관리·이동 체계와 유기적으로 연결되도록 계획











건축사사무소 하루
4등작_ 건축사사무소 하루
대표건축가 정승철
대지면적 12,263㎡
연면적 1,564.53㎡
건축면적 1,236.58㎡
건폐율 10.08%
용적률 12.76%
층수 지상2층
구조 사무관리동 : SRC기둥 + 철골보 / 견사 : 콘크리트 벽식구조
대표건축가 정승철
디자인팀 정승철, 박유정
주차대수 25대 (일반 22 / 장애인 3)
발주처 진도군
'Plans' 카테고리의 다른 글
| 고성군 통합건강관리지원센터 조성사업 설계 용역 제안공모_ 3등작 / 그랑건축사사무소 (0) | 2026.02.10 |
|---|---|
| 창녕우포예술촌 조성사업 건축설계용역(건축설계공모)_ 당선작 / 건축사사무소 모노그램 (0) | 2026.02.10 |
| 청계면 도시재생 두드림 스토어 신축공사 건축 설계공모_ 5등작 / 프라임건축사사무소 (0) | 2026.02.03 |
| 영월 서부시장 주차환경 개산사업 기본 및 실시설계 용역 공모_ 4등작 / (주)건축사사무소우정씨앤씨 (0) | 2026.02.03 |
| 경주시 복합문화도서관(가칭) 건립 국제설계공모_ 4등작 / (주)선진엔지니어링종합건축사사무소+적재적소 건축사사무소 (0) | 2026.01.29 |
마실와이드 | 등록번호 : 서울, 아03630 | 등록일자 : 2015년 03월 11일 | 마실와이드 | 발행ㆍ편집인 : 김명규 | 청소년보호책임자 : 최지희 | 발행소 : 서울시 마포구 월드컵로8길 45-8 1층 | 발행일자 : 매일



