
FLOWING CONNECTION : 사람과 공간이 자유롭게 넘나드는 곳
청도군 청도전통시장 초입부에 계획된 054스페이스는 유휴 대지를 청년 창업과 창작, 그리고 시장 활성화를 위한 복합지원 거점으로 재구성한 프로젝트이다.
계획은 5일장이 열리는 하루를 제외하면 상대적으로 활력이 약화되는 시장의 시간 구조를 읽고, 그 공백을 메우는 일상적 플랫폼을 만드는 데서 출발했다. 시장과 분리된 독립 시설이 아닌, 시장의 흐름을 확장하는 장치로서의 건축을 목표로 했다.
대상지는 시장 아케이드와 인접해 있으나, 보행과 차량 동선이 혼재될 가능성이 높고 프로그램 이용 성격 또한 서로 다른 복합적 조건을 지닌 곳이었다. 이에 배치 계획에서는 북측 도로로 차량을 유도해 보행 동선과 분리하고, 시장과 전면도로에서는 자연스럽게 유입될 수 있도록 다중 진입체계를 구성했다. 이용 목적에 따라 자유로운 이동 동선과 목적 지향적 동선을 명확히 구분해 혼선을 최소화했다.
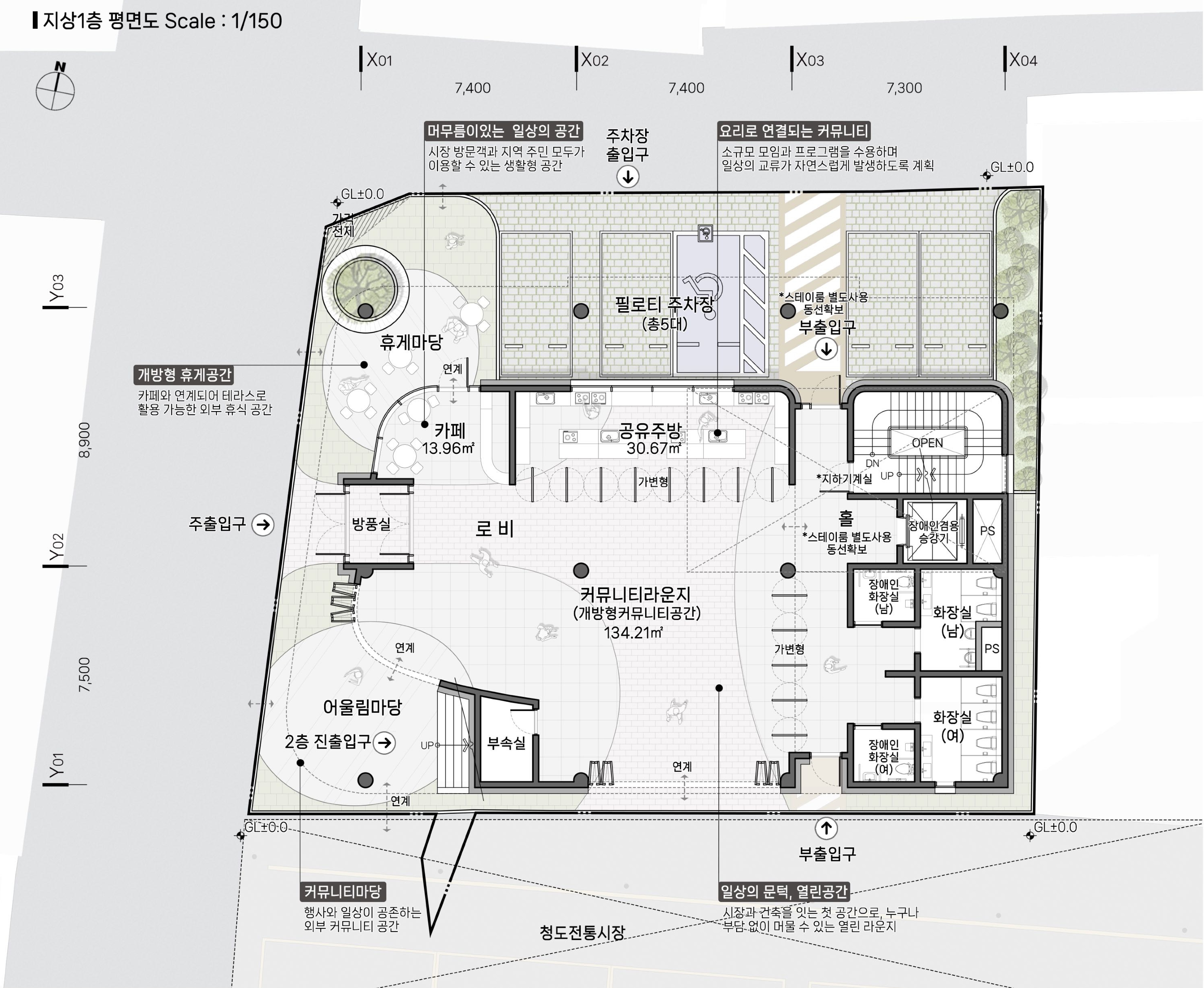
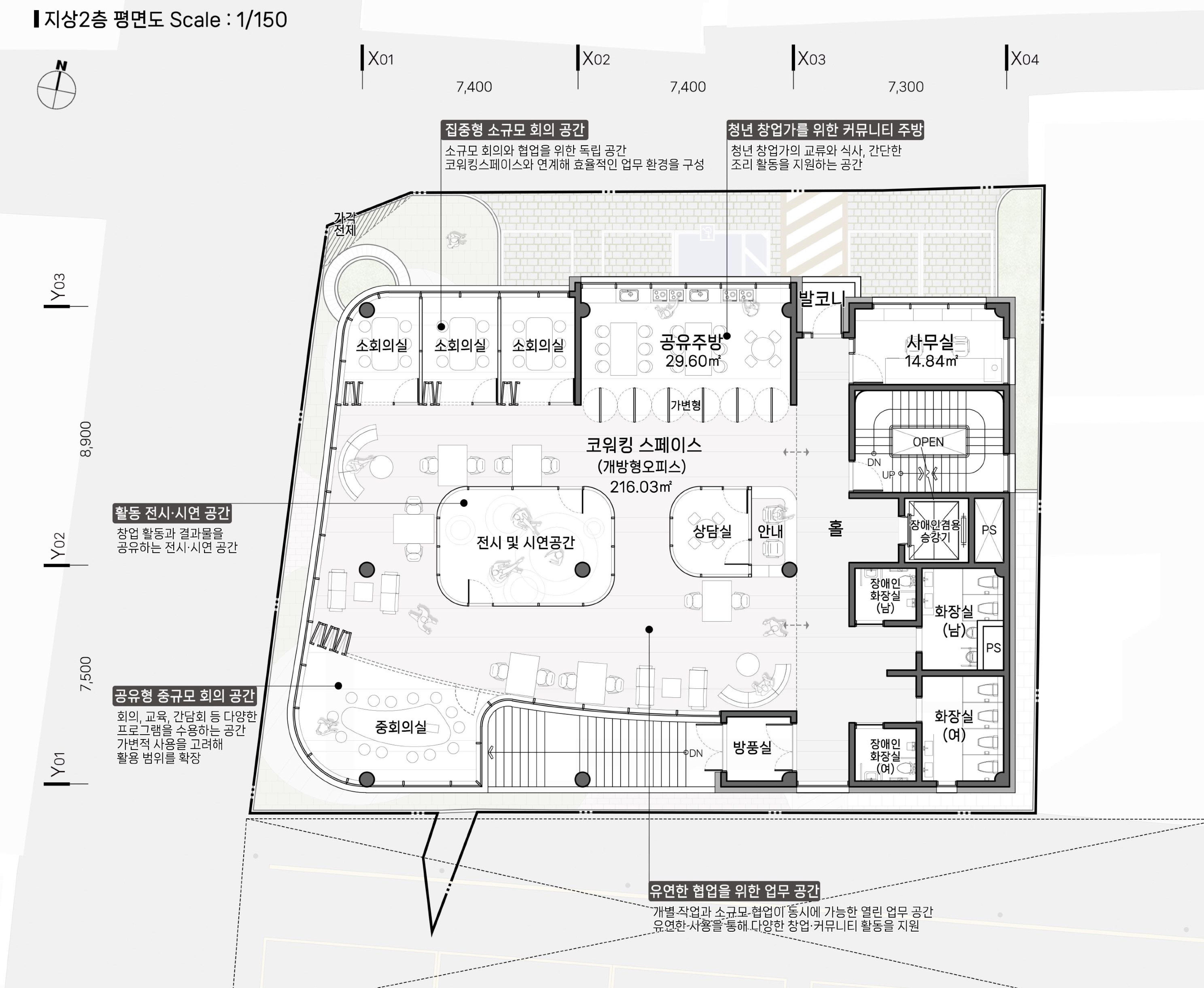
1층과 2층은 지역과 적극적으로 소통하는 개방형 공간으로 계획했다.
1층 커뮤니티 라운지는 팝업스토어, 프리마켓, 전시, 조리 이벤트 등 다양한 활동을 수용할 수 있는 가변적 공간으로 구성하고, 시장 방향으로 열린 연계 공간과 전면도로 측 ‘어울림마당’을 통해 내부 프로그램이 외부로 확장되도록 했다. 어울림마당을 통해 진입하는 계단은 2층 코워킹스페이스와 직접 연결되어, 창작 활동과 이벤트가 수직적으로 이어지는 구조를 만든다.
2층은 청년 창업가를 위한 코워킹스페이스를 중심으로 구성했다. 개방형 레이아웃 안에 다양한 좌석 유형과 소규모 회의실, 상담실, 전시·시연 공간을 배치해 협업과 교류가 자연스럽게 발생하도록 했다. 1층과 직접 연결되는 동선을 통해 전시와 프리마켓이 즉각적으로 이루어질 수 있도록 연계성을 강화했다.
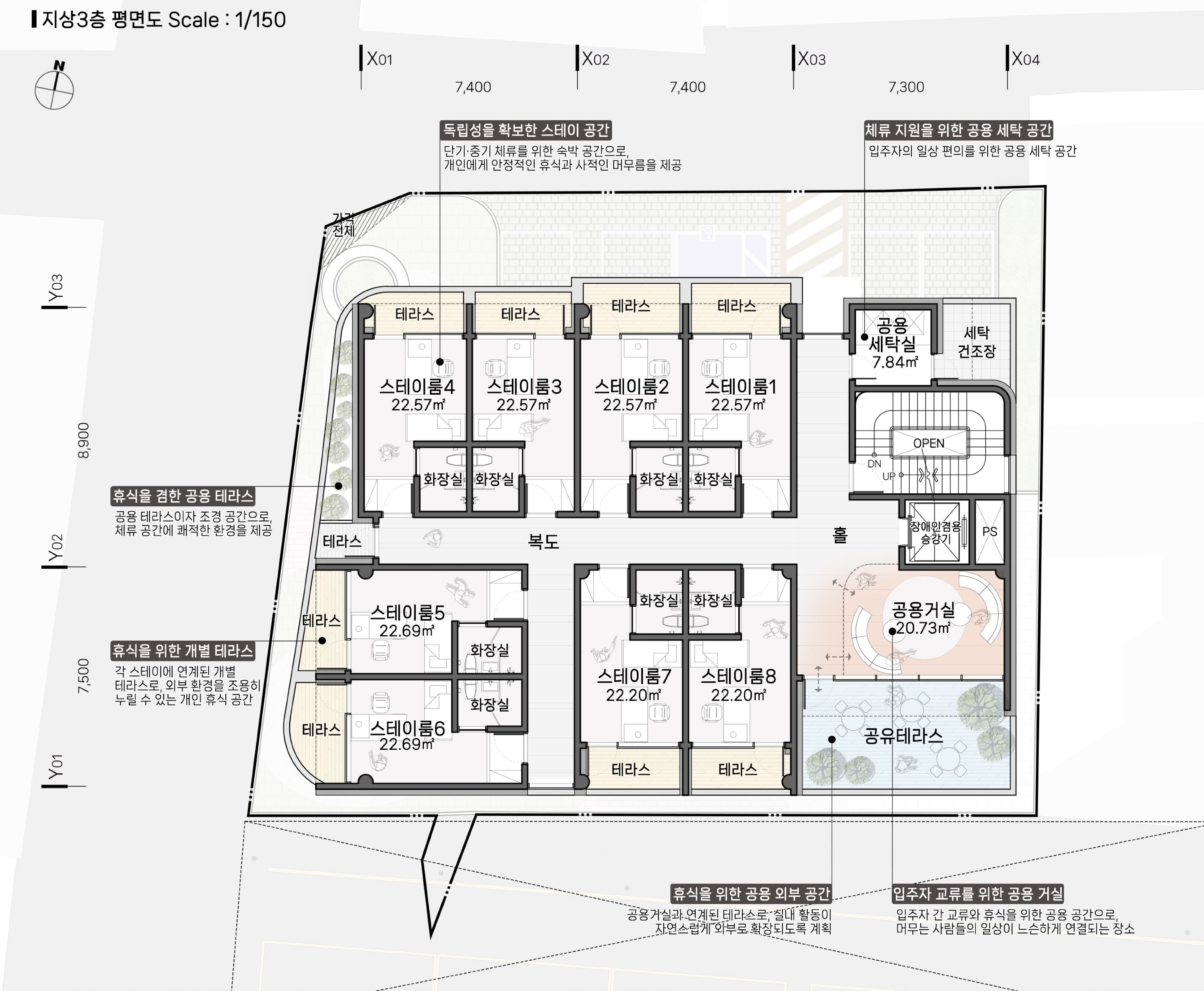
3층은 청년 창업자의 거주 공간인 스테이룸과 공용거실로 구성해 프라이버시와 휴식의 질을 확보했다. 주차장에서 별도 진입이 가능하도록 동선을 분리해 개방 공간과의 혼선을 방지하고, 각 실에는 전용 테라스를 두어 채광과 환기를 확보했다. 남향 공용거실과 공유 테라스는 입주자 간의 교류를 유도하면서도 쾌적한 생활 환경을 제공한다.
입면 계획은 시장 초입부의 상징성과 인지성을 고려해 구성했다.
저층부는 투명하게 열어 내부의 활동이 외부로 드러나도록 했고, 유려한 곡선을 적용해 보행 흐름을 자연스럽게 끌어들인다. 내부의 다채로운 프로그램과 색채가 외부로 비쳐 보이도록 계획해, 건물이 하나의 장면이 되도록 했다.
054스페이스는 시장을 방문한 사람이 자연스럽게 유입되고, 청년의 창작 활동이 다시 시장으로 확장되는 순환 구조를 만드는 플랫폼이다. 건축은 이 흐름을 조직하는 틀로 작동한다.
이 프로젝트는 상징적 이미지보다 ‘작동하는 공간’에 초점을 둔다.
특정한 행사에만 빛나는 공간이 아니라, 평범한 어느 날에도 문이 열려 있고, 시장의 리듬 위에서 청년과 지역이 함께 시간을 쌓아가는 장소가 되기를 기대한다.
054스페이스가 청도군의 일상 속에서 서서히 스며들어, 오랫동안 지역의 생기를 지탱하는 거점으로 자리 잡기를 제안한다.












건축사사무소공이일+그랑건축사사무소
5등작_ 건축사사무소공이일 (https://www.archistudio021.com/)+ 그랑건축사사무소 (https://blog.naver.com/gran2024)
대표건축가 송호승, 김주영
대지면적 561.00㎡
연면적 997.43㎡
건축면적 380.07㎡
건폐율 68.11%
용적률 168.46%
최고높이 14.15m
층수 지상 4층
구조 철근콘크리트구조
대표건축가 송호승, 김주영
디자인팀 송호승, 김주영, 윤한민
조경면적 27.90㎡
주차대수 5대
발주처 청도군
'Plans' 카테고리의 다른 글
| 옥포대첩정 궁도장 건립_ 3등작 / 무위건축사사무소 + 엠플레이건축 (0) | 2026.03.11 |
|---|---|
| 검단 다목적 체육관(1호 체육공원) 건립사업 기본 및 실시설계 용역(공모)_ 4등작 / 오픈스튜디오 건축사사무소 (0) | 2026.03.04 |
| 공릉숲길 커피그라인더 전시관 디자인 설계 및 전시물 제작 · 설치 용역_ 당선작 / 사이다 건축사사무소+주식회사 디자인코드아이디+눈사람공장 (0) | 2026.02.26 |
| 글로컬 어울림센터 조성사업 설계공모(일반설계공모)_ 2등작 / 사분의삼 건축사사무소 (0) | 2026.02.25 |
| 건강증진형 장안보건지소 건립사업 설계공모_ 3등작 / 리얼스페이스 건축사사무소 (0) | 2026.02.25 |
마실와이드 | 등록번호 : 서울, 아03630 | 등록일자 : 2015년 03월 11일 | 마실와이드 | 발행ㆍ편집인 : 김명규 | 청소년보호책임자 : 최지희 | 발행소 : 서울시 마포구 월드컵로8길 45-8 1층 | 발행일자 : 매일



