
TerraSense Mountain Charm Retreat
포르투갈 세라 다 에스트렐라 자연공원의 깊숙한 산자락, 광활한 하늘과 광물성 풍경이 맞닿는 지점에 테라센스 마운틴 참 리트리트가 자리한다. 이 프로젝트는 오랫동안 방치되어 있던 두 채의 기존 건물을 되살려, 단순한 숙박 시설을 넘어 ‘머무는 경험’ 자체를 제안하는 산악 리트리트로 재구성한 사례이다. 설계는 폐허를 복원하는 데서 그치지 않고, 장소가 지닌 시간과 기억을 현재의 건축 언어로 다시 엮어내는 데서 출발했다.
설계를 맡은 아틀리에 디알케이(Atelier DRK)는 이 프로젝트를 전통 산악 주거의 단순한 재현이 아닌, ‘산의 집’을 현대적으로 재해석하는 작업으로 정의했다. 기존 건물의 형태와 스케일을 존중하되, 지역을 상징하는 편암(쉬스트)을 주재료로 사용해 원형을 재구성하고, 여기에 절제된 현대적 개입을 더했다. 과거를 모방하기보다 그 흔적에 귀 기울이며, 현재의 시간을 분명히 드러내는 방식이다.
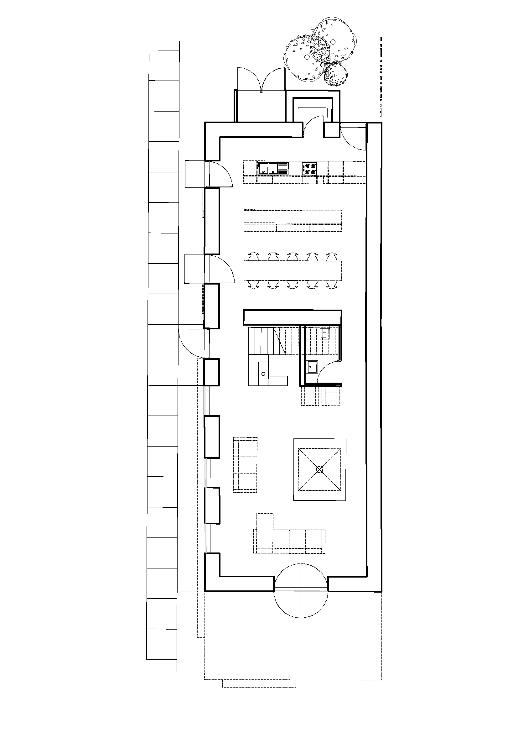
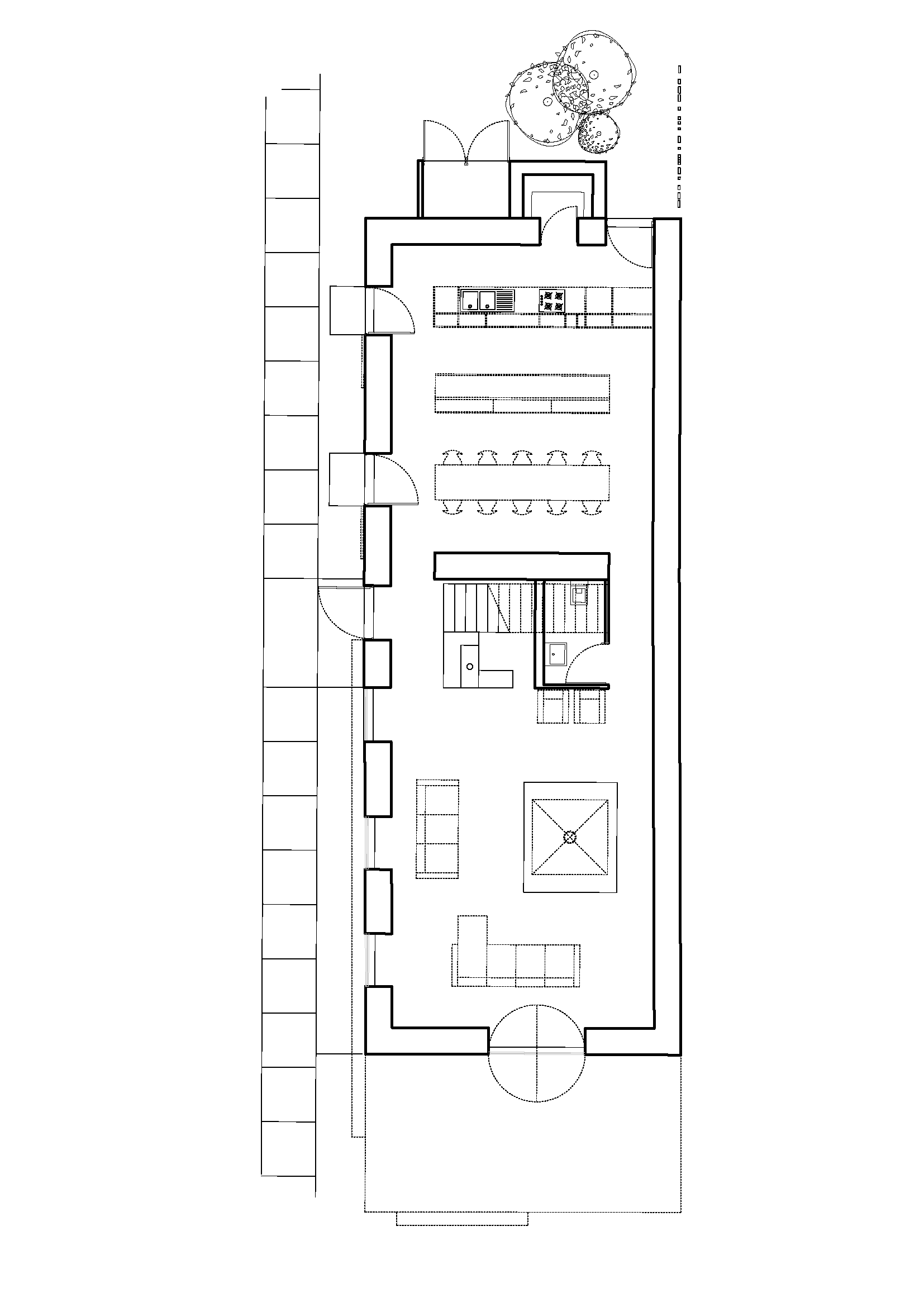
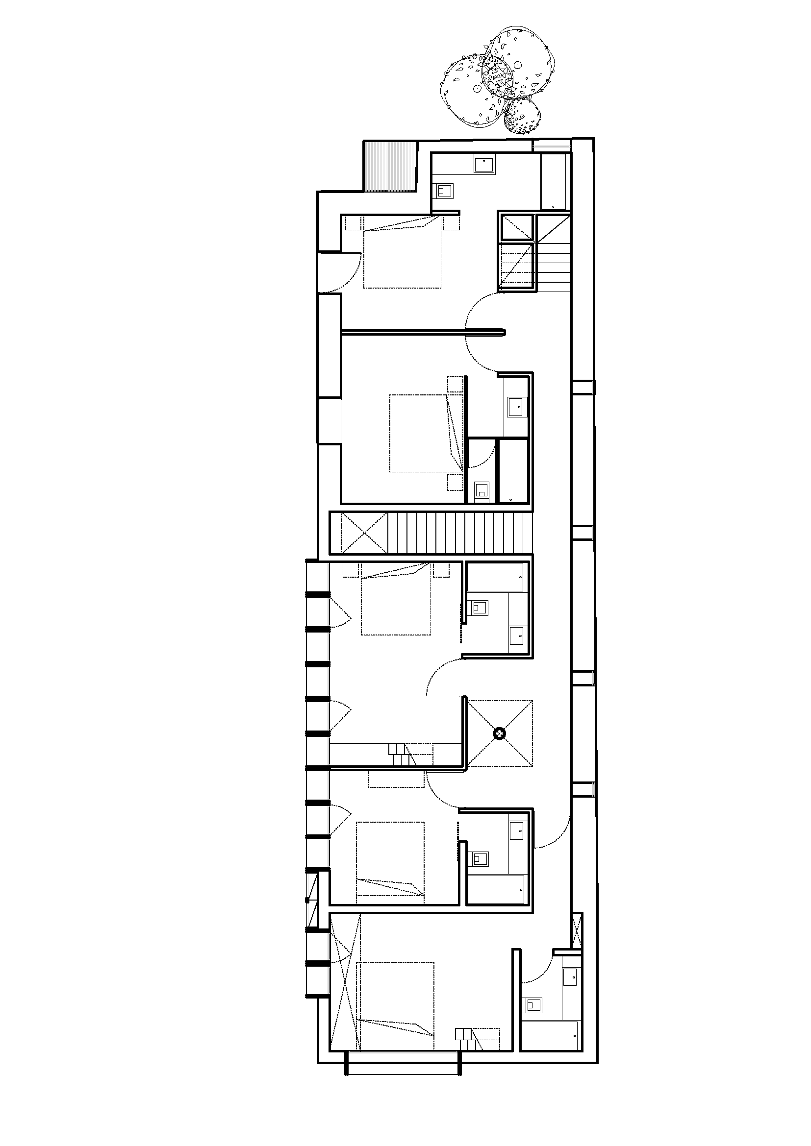
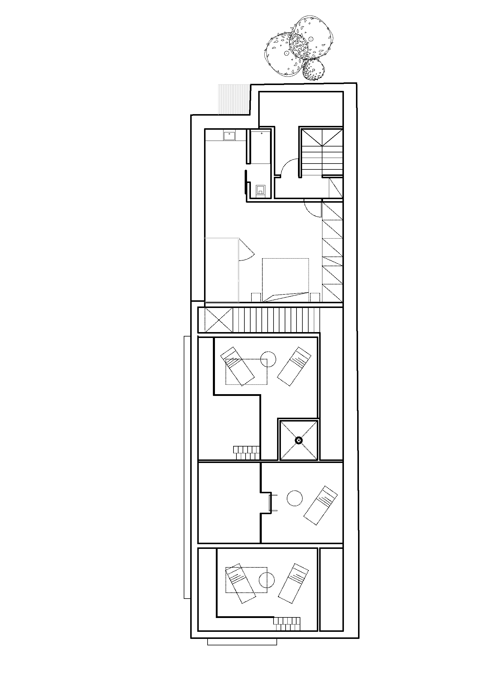
내부 공간은 기존 주거의 잔향을 은근히 품고 있으면서도, 새로운 공간적 관계와 동선을 통해 완전히 다른 경험을 만들어낸다. 각 숙소 유닛은 하나의 ‘작은 세계’처럼 독립적으로 구성되며, 메인 건물과 별동 빌라 모두 고유한 성격과 분위기를 갖는다. 공간은 분절되기보다 교차하고 겹치며, 빛과 시선, 이동의 흐름 속에서 유기적으로 연결된다. 머무는 이들은 동일한 풍경 안에서도 서로 다른 방식으로 산을 경험하게 된다.
자연 보호 구역이라는 엄격한 제약은 오히려 설계의 동력이 되었다. 건축은 전통적 편암 매스를 기반으로 하되, 노출 콘크리트로 이루어진 캔틸레버 볼륨을 통해 현재성을 드러낸다. 이 부유하는 듯한 구조는 풍경을 향해 과감하게 열리며, 산의 윤곽을 프레임처럼 끌어들인다. 빛과 공기, 냄새와 소리가 실내 깊숙이 스며들며, 건축과 자연의 경계는 느슨해진다.
이곳은 잠시 머무는 호텔이 아니라, 시간을 천천히 체감하는 장소에 가깝다. 건축은 자신을 과시하지 않고, 산의 존재를 증폭시키는 배경으로 물러난다. 테라센스 마운틴 참 리트리트는 침묵과 고요 속에서 풍경을 해석하고, 자연을 중심에 둔 거주의 방식을 건축으로 풀어낸 프로젝트이다.




















건축가 아틀리에 디알케이(Atelier DRK)
위치 포르투갈, 비도멘트, 과르다
용도 숙박시설, 농촌관광
연면적 510㎡
준공 2023
대표건축가 Diogo Aguiar Almeida
구조엔지니어 Egisete, lda
인테리어 Artspazios, lda
시공 Manteivias, S.A.
사진작가 Ivo Tavares Studio
'Architecture Project > Hospitality' 카테고리의 다른 글
| 타트라 산맥 아래에서 되살아난 산업 유산, 프라디아렌 케주마로크 / 비프 아르키텍티 (0) | 2026.01.21 |
|---|---|
| 숲 속에 세워진 단단한 쉼의 구조, 모놀리스 로지 / 헬로우드 (0) | 2026.01.19 |
| 번개 이후의 재건, 지역을 다시 묶는 목구조 온천 / 야노 아오야마 아키텍처 디자인 (0) | 2025.12.18 |
| 프라하의 현대를 품은 복원, ‘페어몬트 골든 프라하’로 다시 태어난 브루탈리즘 호텔/ 타크 아키텍츠 (0) | 2025.11.12 |
| 결합의 공간, 반지를 닮은 웨딩 베뉴/ 에이에스더블유에이 (0) | 2025.10.30 |
마실와이드 | 등록번호 : 서울, 아03630 | 등록일자 : 2015년 03월 11일 | 마실와이드 | 발행ㆍ편집인 : 김명규 | 청소년보호책임자 : 최지희 | 발행소 : 서울시 마포구 월드컵로8길 45-8 1층 | 발행일자 : 매일



