
슬로바키아 타트라 산맥 기슭의 도시 케주마로크에 자리한 Pradiareň Kežmarok은 19세기 산업 유산을 동시대의 생산·문화 공간으로 재구성한 프로젝트이다. 1860년 카롤 바인(Karol Wein)에 의해 설립된 이 방적 공장은 한때 오스트리아-헝가리 제국에서 가장 진보된 섬유 공장 중 하나로 평가받았다. 고타트라 지역에서 섬유 산업이 활발히 전개되던 시기, 이곳은 지역 산업의 중심지로 기능했다.
공장은 1946년까지 생산을 이어갔으나, 이후 국유화와 산업 구조 변화 속에서 점차 기능을 상실했다. ‘타트라란(Tatraľan)’이라는 이름으로 기계식 아마 방적·직조 공장으로 운영되며 최대 2,500명의 노동자를 고용하기도 했지만, 1989년 이후 체제 전환과 함께 생산은 완전히 중단되었다. 오랜 시간 방치된 복합 단지는 심각한 훼손 상태에 놓였고, 그럼에도 불구하고 건축적 가치를 인정받아 주요 생산동은 국가 문화재로 지정되었다.
새로운 발주자가 이 부지를 인수했을 당시, 건물은 구조적·환경적으로 매우 불안정한 상태였다. 건물 하부를 가로지르는 개천과 부식된 목재 말뚝 기초, 반복된 침수로 인한 조적벽과 바닥, 천장의 손상은 대대적인 구조 보강과 보존 작업을 불가피하게 만들었다. 이러한 조건 속에서 프로젝트는 단순한 리노베이션을 넘어, 역사적 건축을 오늘의 도시 맥락 속에 다시 위치시키는 작업으로 설정되었다.
2019년, 발주자는 유명 증류주 제조사를 위한 현대적인 생산·행정 시설을 목표로 건축 공모를 개최했다. 설계를 맡은 **BEEF ARCHITEKTI**는 산업 유산과 새로운 기능 층위 사이의 관계에 주목했다. 기존 구조를 닫힌 유산으로 보존하는 대신, 공공에 다시 열리는 복합 공간으로 재해석하는 것이 핵심 전략이었다.
비록 대상지는 케주마로크 외곽의 산업 지대에 위치하지만, 설계는 이곳을 새로운 도시적 거점으로 전환하는 가능성을 제시한다. 서로 단절되어 있던 건물들을 공공 동선과 외부 공간으로 연결하고, 복합 단지 전체를 하나의 열린 영역으로 재구성함으로써 주민과 방문객 모두가 접근할 수 있는 장소로 탈바꿈시켰다. 생산, 문화, 여가, 사회적 프로그램이 공존하는 구성은 과거 단일 기능에 머물렀던 산업 시설의 성격을 확장한다.
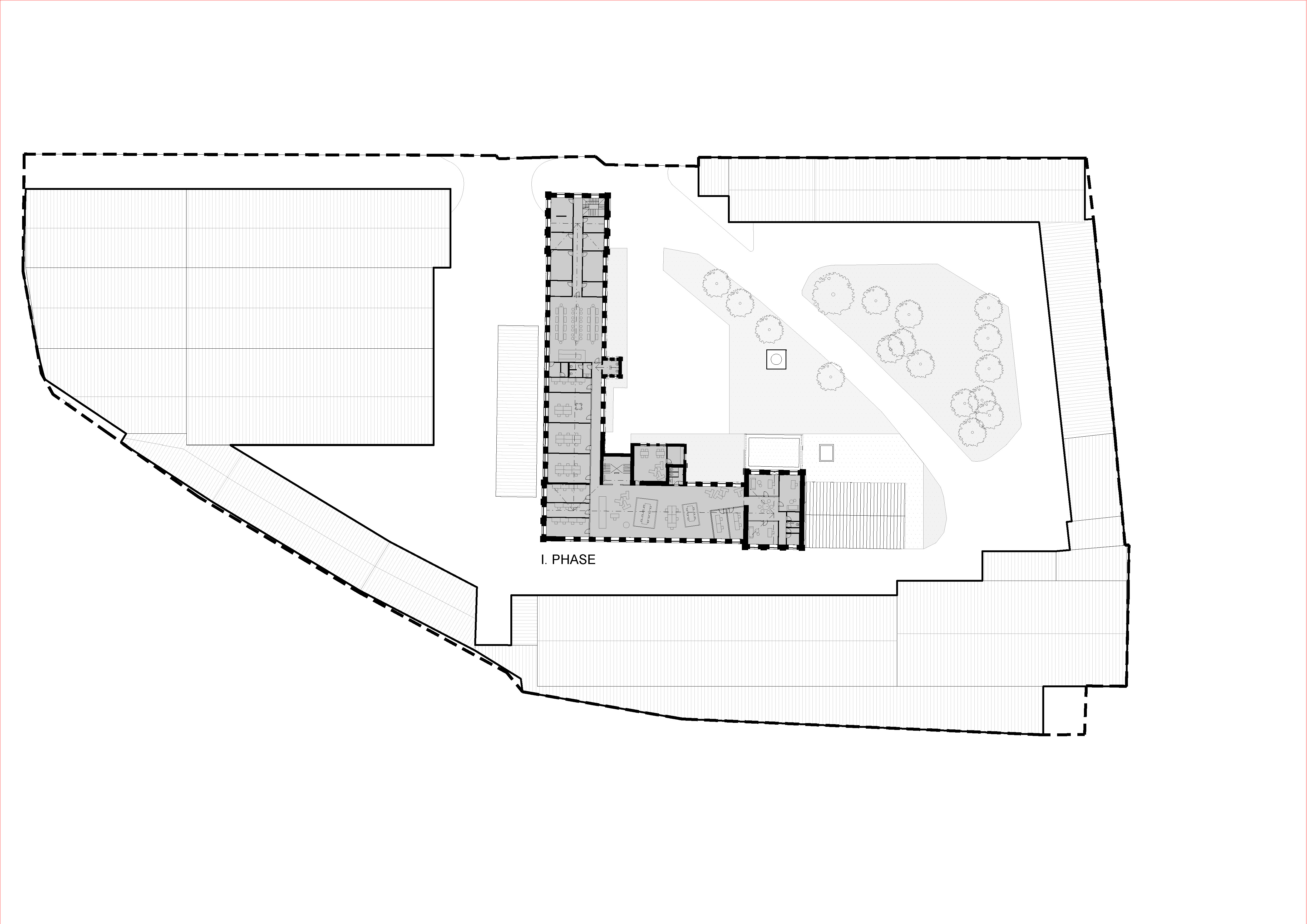
현재 완료된 1단계에서는 기존 본관의 복원과 재사용에 집중했다. 생산 시설과 사무 공간, 테이스팅 룸, 게스트 아파트가 이 안에 배치되었으며, 향후 조성될 신축 동의 1층에는 카페와 기업 매장, 아마 가공의 역사를 다루는 박물관이 들어설 예정이다. 이는 공장의 기억을 단절 없이 현재의 도시 생활로 이어가기 위한 장치이다.
문화재 건축물이라는 조건 아래, 설계는 문화유산청과의 긴밀한 협업을 통해 진행되었다. 주철 보강재에 남아 있는 아마꽃 문양, 기존 벽돌 굴뚝과 같은 세부 요소들은 세심하게 보존되었으며, 굴뚝은 향후 타트라 산맥을 조망할 수 있는 전망 타워로 전환될 계획이다. 반면, 원형의 비례와 실루엣을 훼손했던 보일러실과 같은 후대 증축물은 철거되어 건물의 본래 매스가 회복되었다.
재료 전략 역시 신구의 관계를 절제된 방식으로 드러낸다. 노출된 주철 구조와 테라코타 바닥, 밝은 톤의 미장 마감이 기존 구조의 물성을 강조하고, 새로 삽입된 요소들은 중립적인 태도로 이를 보완한다. 내부에서는 주철 기둥과 벽돌 볼트, 반볼트 천장이 드러나며, 새로운 바닥과 난간, 조명은 구조를 방해하지 않는 방식으로 배치되었다.
기술적으로 가장 큰 과제는 알코올 생산과 저장을 수반하는 프로그램에 대응한 방재 계획이었다. 모든 설비 개입은 시각적 영향을 최소화하는 방향으로 정밀하게 설계되었으며, 이는 역사적 공간의 분위기를 유지하는 데 중요한 역할을 했다.
Pradiareň Kežmarok의 가치는 새로운 기능을 부여하면서도 건축의 ‘영혼’을 잃지 않았다는 점에 있다. 이 프로젝트는 기념비적 보존에 머무르지 않고, 산업 유산을 살아 있는 장소로 전환한다. 한때 폐쇄적이었던 공장은 이제 공공을 맞이하는 열린 공간으로, 산업의 기억과 현대 도시 생활이 교차하는 새로운 장면을 만들어낸다.





































건축가 비프 아르키텍티(BEEF ARCHITEKTI)
위치 슬로바키아, 케주마로크
용도 복합시설
대지면적 12,199 m²
연면적 4,622 m²
설계기간 1단계 2022 / 2단계 2025 - 2026
준공 2024
대표건축가 Rado Buzinkay, Andrej Ferenčík
프로젝트건축가 Lukáš Valenčin
발주자 Karloff
사진작가 Jakub Čaprnka
'Architecture Project > Hospitality' 카테고리의 다른 글
| 풍경 뒤로 물러난 건축, 사덱 가든 / 피에이유 아키텍츠 (0) | 2026.03.10 |
|---|---|
| 산의 시간을 안는 건축, 테라센스 마운틴 참 리트리트 / 아틀리에 디알케이 (0) | 2026.02.10 |
| 숲 속에 세워진 단단한 쉼의 구조, 모놀리스 로지 / 헬로우드 (0) | 2026.01.19 |
| 번개 이후의 재건, 지역을 다시 묶는 목구조 온천 / 야노 아오야마 아키텍처 디자인 (0) | 2025.12.18 |
| 프라하의 현대를 품은 복원, ‘페어몬트 골든 프라하’로 다시 태어난 브루탈리즘 호텔/ 타크 아키텍츠 (0) | 2025.11.12 |
마실와이드 | 등록번호 : 서울, 아03630 | 등록일자 : 2015년 03월 11일 | 마실와이드 | 발행ㆍ편집인 : 김명규 | 청소년보호책임자 : 최지희 | 발행소 : 서울시 마포구 월드컵로8길 45-8 1층 | 발행일자 : 매일



