
Three Shades of Home
프라하 홀레쇼비체 지역의 1950년대 아파트 건물에 자리한 Three Shades of Home은 젊은 가족을 위한 주거 리노베이션 프로젝트이다. 기존 아파트는 면적에 비해 동선이 비효율적이고, 작은 방들이 나뉘어 있어 답답한 인상을 주고 있었다. 이번 개입의 목표는 구조적 잠재력을 최대한 활용해, 폐쇄적인 평면을 개방적이고 유연한 생활 공간으로 전환하는 데 있었다.
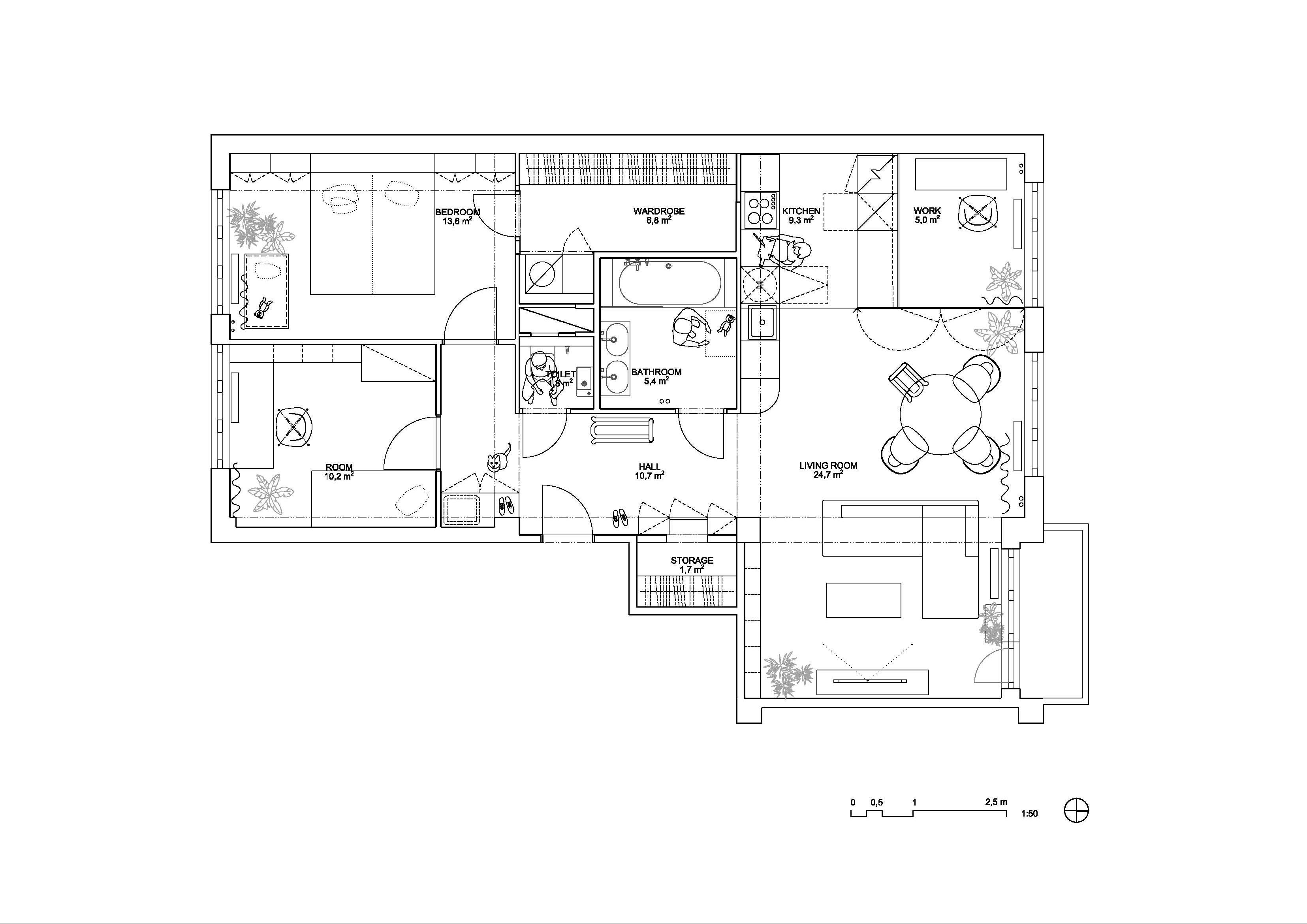
설계를 맡은 비 스퀘어드 아키텍처는 기존 구조를 드러내는 방식으로 공간을 재조직했다. 대부분의 비내력벽을 철거하고, 기둥과 보로 이루어진 골조를 실내의 주요 요소로 끌어들였다. 이를 통해 거실과 주방, 다이닝이 하나의 큰 공간으로 연결되며, 도시를 향한 시야와 자연광이 깊숙이 유입된다. 평면은 한눈에 읽히되, 기능은 명확하게 구분된다.
이 주택의 중심에는 녹색으로 마감된 ‘중앙 코어’가 놓인다. 워크인 클로젯과 욕실, 화장실이 이 코어 안에 집약되어 있으며, 하루의 동선과 생활 리듬을 조율하는 기준점으로 작동한다. 이 코어를 중심으로 주요 생활 공간이 펼쳐지고, 침실과 아이 방은 비교적 조용한 안뜰 방향으로 배치되어 사적인 영역의 성격을 유지한다.
색채는 공간을 구획하는 핵심 도구이다. 녹색 코어와 함께 서재와 라이브러리 공간에는 푸른색 빌트인이 적용되어, 각 영역의 성격을 부드럽게 구분한다. 전체 색 구성은 녹색, 파랑, 분홍의 세 가지 톤을 중심으로 조율되며, 과하지 않으면서도 공간에 생기를 더한다. 여기에 오크 마루 바닥과 시멘트 마감, 콘크리트의 질감이 더해져 재료 간의 균형이 형성된다.
재료 선택 역시 기존 건물의 성격을 존중하는 방향으로 이루어졌다. 구조를 이루는 콘크리트는 숨기지 않고 드러내되, 기존 보의 거친 인상은 시멘트 스크리드로 정리해 천장이 낮아 보이지 않도록 조정했다. 욕실과 일부 공간에는 시멘트 마감과 타일이 사용되었고, 생활 공간 전반에는 따뜻한 질감의 목재 바닥이 깔렸다. 구리 소재는 수전, 도어 핸들, 맞춤 제작 조명 등에 사용되어 공간에 은은한 포인트를 더한다.
투명한 파티션으로 구성된 작업 공간은 시각적 개방감을 유지하면서도 집중을 가능하게 한다. 수납은 화이트 빌트인 가구로 정리되어, 공간의 질서를 해치지 않으면서 충분한 저장 공간을 제공한다. 이처럼 기능적 요소들은 전면에 드러나기보다, 전체 공간의 흐름 속에 자연스럽게 흡수된다.
Three Shades of Home은 구조와 색, 재료가 서로 경쟁하지 않고 조율된 주거 공간이다. 이 집은 리노베이션을 통해 단순히 새로워진 것이 아니라, 기존 건축이 지닌 잠재력을 드러내며 오늘날의 생활 방식에 맞게 다시 정렬되었다. 색채는 장식이 아니라 공간의 리듬을 만드는 도구가 되고, 집은 가족의 일상에 맞춰 유연하게 반응하는 그릇이 된다.














건축가 비 스퀘어드 아키텍처(B² Architecture)
위치 체코, 프라하, 홀레쇼비체
용도 주거
연면적 85㎡
설계기간 2024
준공 2025
대표건축가 Barbara Bencova, Zuzana Bartasová
사진작가 Alexander Dobrovodský
'Interior Project > Residential' 카테고리의 다른 글
| 조지안 주택의 틀 위에 확장한 일상, 해크니 뮤스 하우스 / 아키텍처 포 런던 (0) | 2026.02.10 |
|---|---|
| 농촌의 리듬으로 지은 집, 카사 알 프라뎃 / 클라라 크라우스 아르키텍투라 (0) | 2026.02.09 |
| 빛과 재료가 머무는 집, 니브리티 / 아이2에이 아키텍츠 스튜디오 (1) | 2026.02.02 |
| 곡선으로 이어진 가족의 일상, dP 아파트먼트 하우스 / 트리탄&준 (0) | 2026.01.26 |
| 타트라 산맥 자락에서 되살아난 주거 건축 / 아트리움 아르키텍티 (0) | 2026.01.20 |
마실와이드 | 등록번호 : 서울, 아03630 | 등록일자 : 2015년 03월 11일 | 마실와이드 | 발행ㆍ편집인 : 김명규 | 청소년보호책임자 : 최지희 | 발행소 : 서울시 마포구 월드컵로8길 45-8 1층 | 발행일자 : 매일



