
창원지방법원 통영지원 별관 증축은 법원이 지닌 공공성과 제도적 질서를 바탕으로, 시민과 자연이 보다 자연스럽게 어우러지는 '열린 사법 공간'을 지향한다. 바다와 산이 겹겹이 스며든 통영의 도시적·자연적 맥락을 존중하며, 법원이 지역 사회 속에서 신뢰받는 일상적 공공건축으로 자리할 수 있는 공간적 해법을 모색하였다.
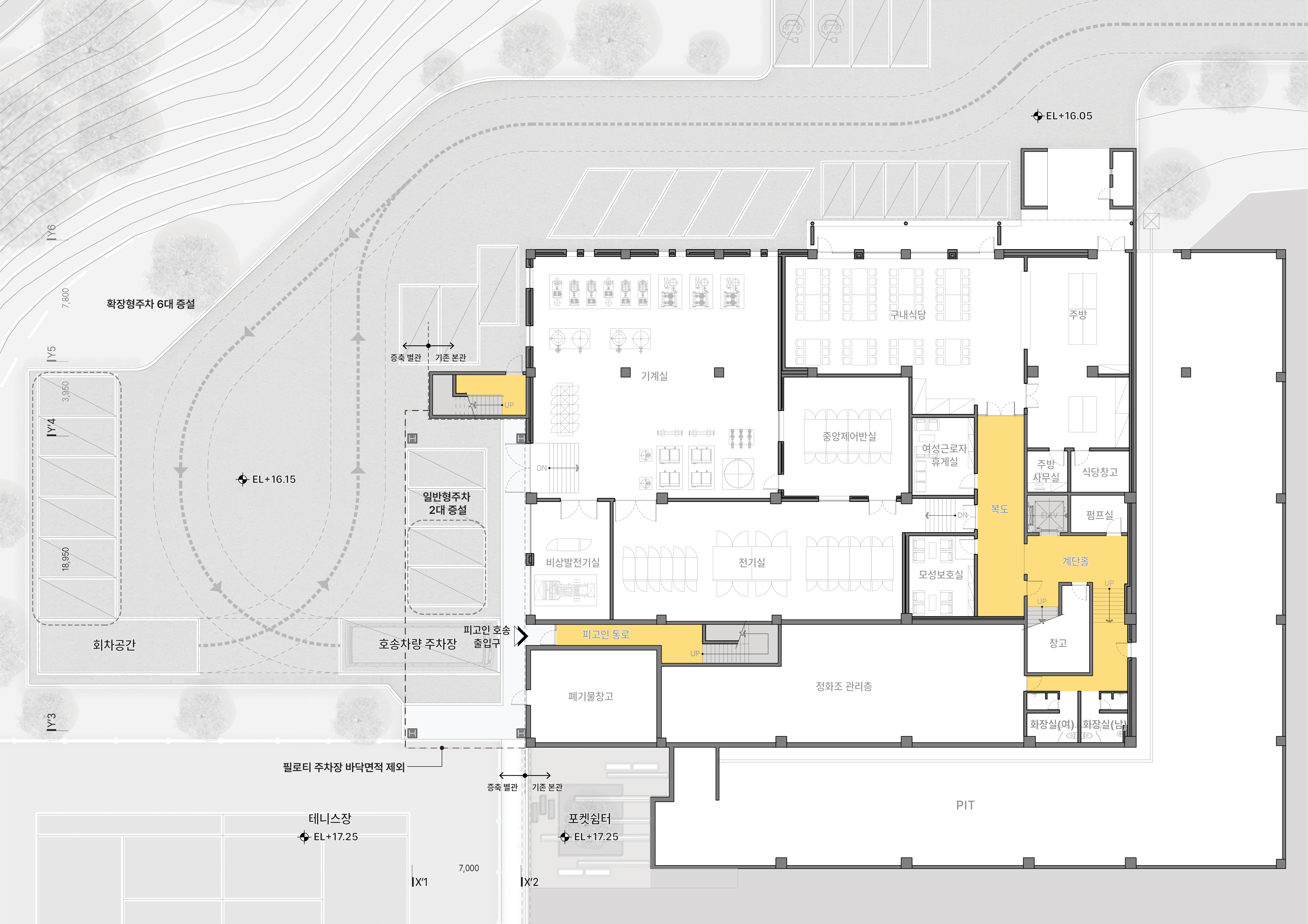
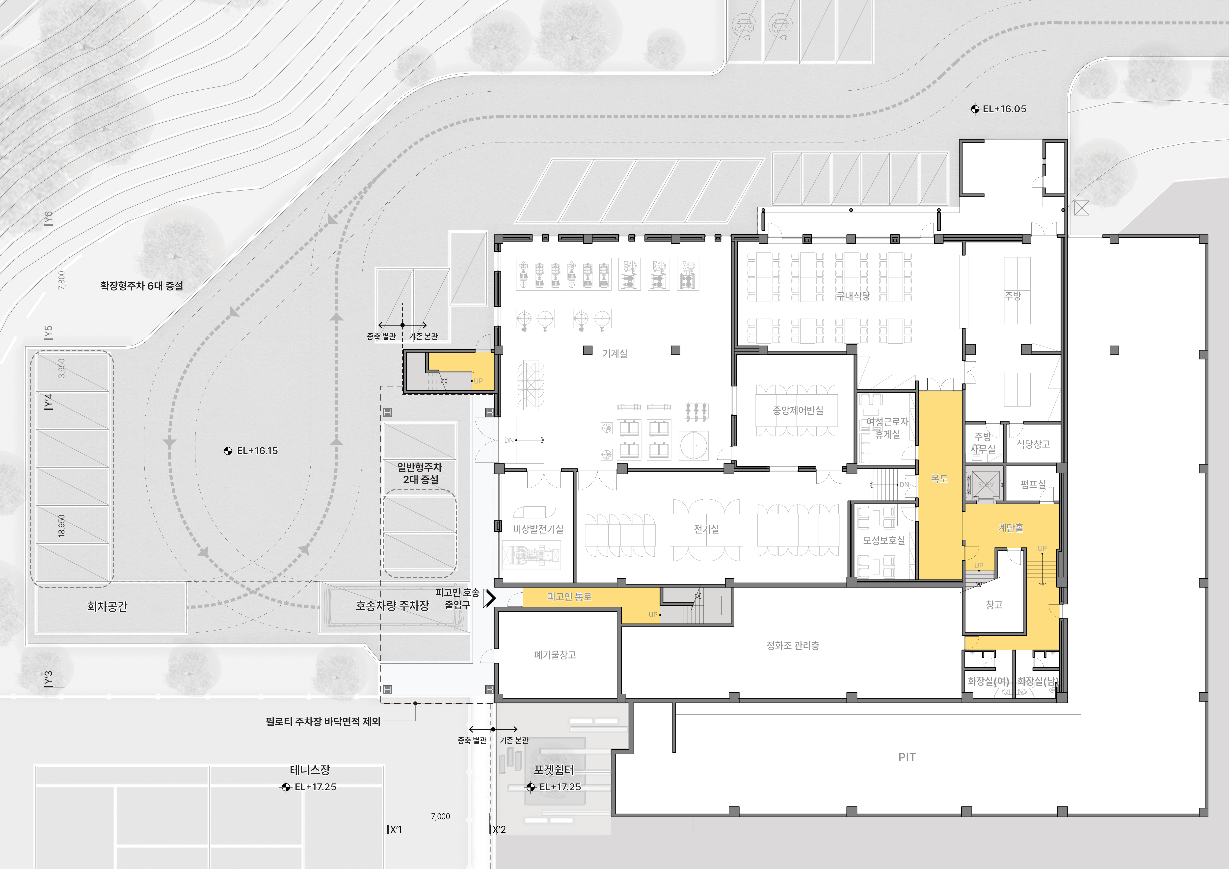
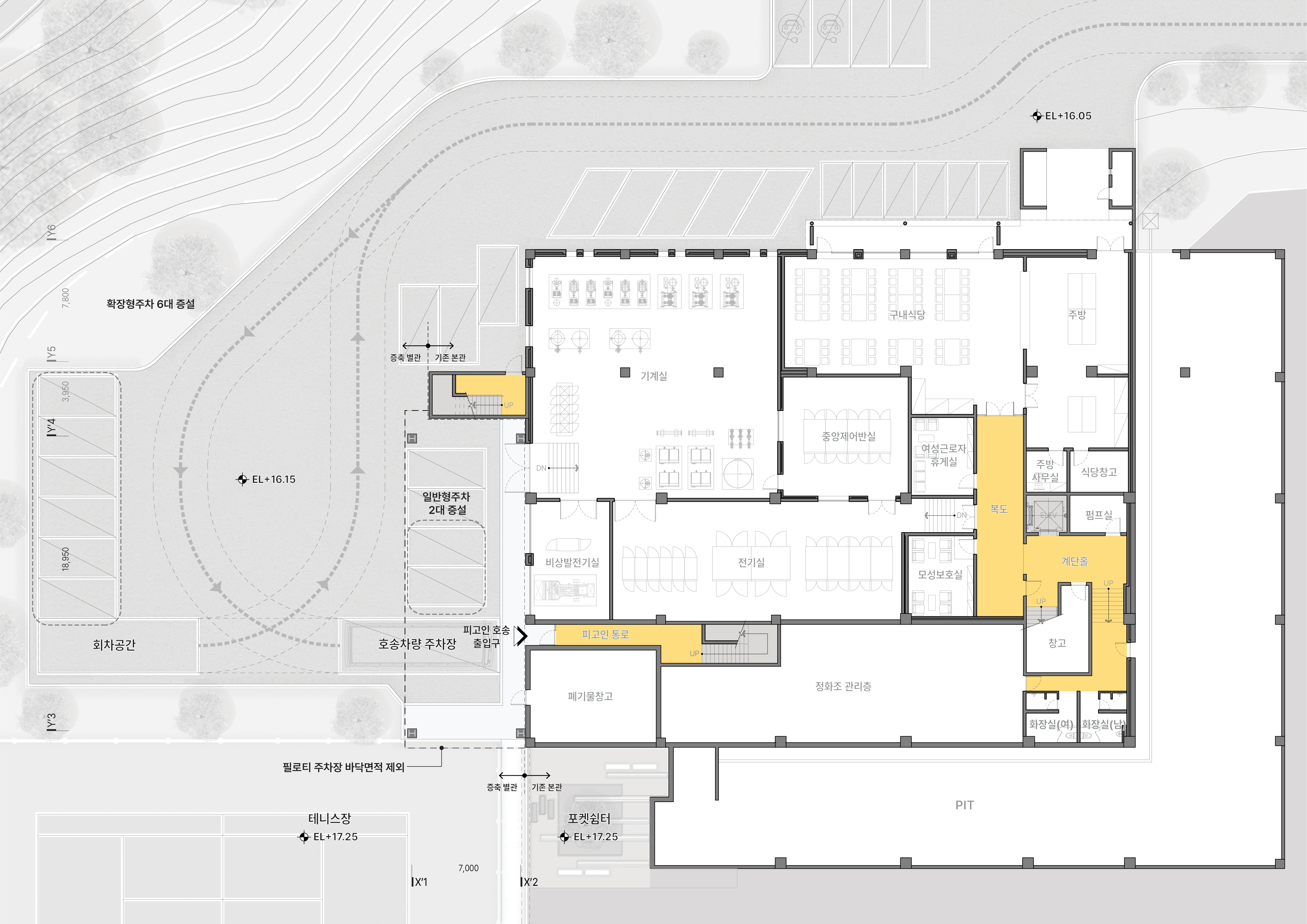
기존 본관은 법정과 법관 / 민원실과 민원인의 동선 분리가 명확했다. 이번 증축 계획의 핵심은 기존 법관 동선과 민원인 동선을 유지하여 별동 배치계획이 아닌 수평증축 계획을 하였다. 기존 동선을 유지하고 증축으로 인해 추가되는 동선을 최소화하여 계획하였다. 본관이 형성해온 축과 질서를 존중하여 이격 배치를 통해 본관의 입면 훼손과 기능적 간섭을 최소화하였다. 동시에 명확한 매스 정렬을 통해 독립적인 인지성을 확보하였다. 이용자(민원인·직원·사법) 동선은 체계적으로 분리하여 보안과 운영 효율을 높였으며, 특히 민원 동선은 단순하고 직관적으로 구성하여 이용자의 편의성을 극대화하였다.
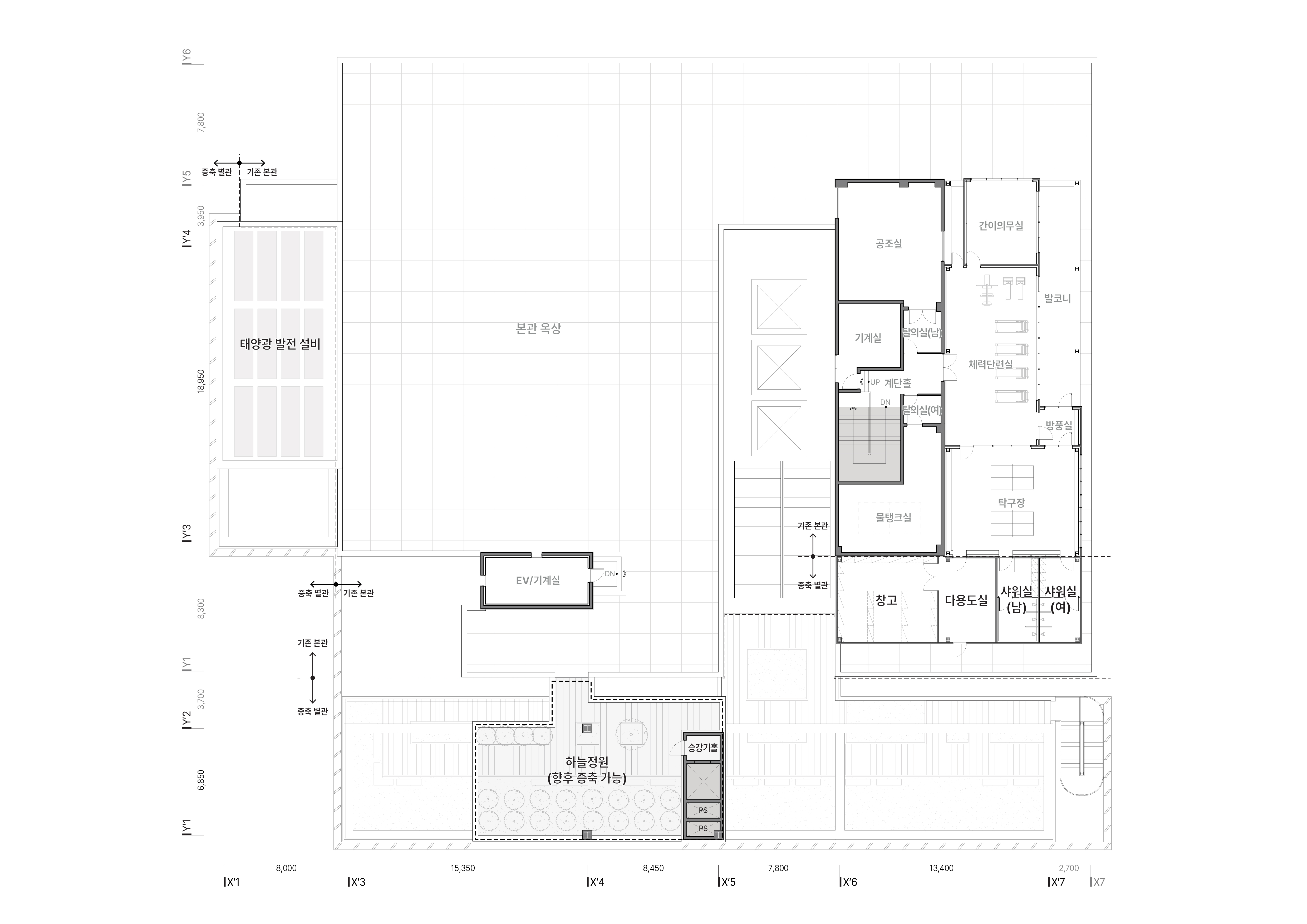
저층부의 개방적인 진입 공간과 맞이마당은 시민에게 친근한 법원의 첫인상을 형성한다. 중층부와 옥상에 배치된 다층적인 열린 정원과 힐링 정원은 긴장감이 감도는 사법 공간 속에서 휴식과 여유를 제공하는 완충 지대 역할을 한다. 내부 공간은 법정, 사무, 민원 지원 기능이 유기적으로 연계되도록 계획하였으며, 자연채광과 조망을 적극적으로 도입하여 업무와 방문객 모두에게 쾌적한 실내 환경을 조성하였다.
철골 장스팬 구조를 적용한 별관은 향후 기능 변화와 증축 가능성을 고려한 유연한 시스템을 갖추었다. 외부 입면은 해안 도시의 특성을 고려하여 염해에 강한 석재 패널과 세라믹 루버, 로이복층유리를 적용하였다. 이는 기존 본관과의 시각적 연속성을 유지하면서도, 현대적인 투명함과 가벼운 인상을 더해 사법의 권위보다는 열린 소통의 의지를 상징한다.
본 증축안은 단순한 시설의 확장을 넘어 연결·개방·포용이라는 핵심 가치를 통해 사법의 질서와 시민의 일상이 맞닿는 접점을 재구성하는 시도이다. 자연과 건축, 제도와 사람이 조화롭게 공존하는 통영지원은 지역사회 속에서 오래도록 신뢰받고 머무는 공공건축의 새로운 장면을 만들어낸다.
















(주)보성종합건축사사무소
당선작_ (주)보성종합건축사사무소
대표건축가 이정우
대지면적 16,054.5㎡
연면적 7,871.62㎡
건축면적 2,480.34㎡
건폐율 15.44%
용적률 49.03%
최고높이 18.5m
층수 지하 1층, 지상 4층
구조 철근콘크리트구조, 철골구조
대표건축가 이정우
디자인팀 양은미, 김여영, 김호성, 이성민, 박범수, 김지수, 문나은
주차대수 94대
발주처 대법원 창원지방법원 통영지원
'Plans' 카테고리의 다른 글
| 건강증징형 장안보건지소 건립사업 설계공모_ 당선작 / 마린종합건축사사무소 (0) | 2026.01.21 |
|---|---|
| 경주시 복합문화도서관(가칭) 건립 국제설계공모_ 3등작 / (주)제제합건축사사무소+(주)포스코에이앤씨건축사사무소 (0) | 2026.01.21 |
| 충남도립파크골프장 클럽하우스 건립 설계공모_ 4등작 / (주)이도아이디건축사사무소 (0) | 2026.01.20 |
| 영덕 U&I 수산복합주거 플랫폼 조성사업 건축설계 제안공모_ 4등작 / 사이플러스 건축사사무소 (0) | 2026.01.20 |
| 경주시 복합문화도서관(가칭) 건립 국제설계공모_ 당선작 / (주)해안종합건축사사무소 (0) | 2026.01.16 |
마실와이드 | 등록번호 : 서울, 아03630 | 등록일자 : 2015년 03월 11일 | 마실와이드 | 발행ㆍ편집인 : 김명규 | 청소년보호책임자 : 최지희 | 발행소 : 서울시 마포구 월드컵로8길 45-8 1층 | 발행일자 : 매일



