
구봉산의 기억을 쌓다 : 적층된 풍경과 시간의 회랑
본 계획안은 구봉산의 완만한 능선과 구룡천의 물줄기가 어우러진 목가적 풍경 속에 자연스럽게 순응하며 과거 구봉광산의 역사적 흔적을 현대적 감각으로 재해석한 ‘적층된 시간의 클럽하우스’를 제안합니다.
1. 배치 및 입면계획: 자연과 역사의 맥락적 수용
구봉산의 수평적 풍경을 깨지 않도록 가로로 긴 매스를 배치하여 시각적 안정감을 확보했습니다. 과거 광산의 기억을 상징하는 무게감 있는 하부 콘크리트(과거), 아픈 기억의 켜를 담은 중간부의 거친 질감, 그리고 건강한 미래를 상징하는 상부 골강판(미래)을 적층하여 대지의 정체성을 입면화했습니다.
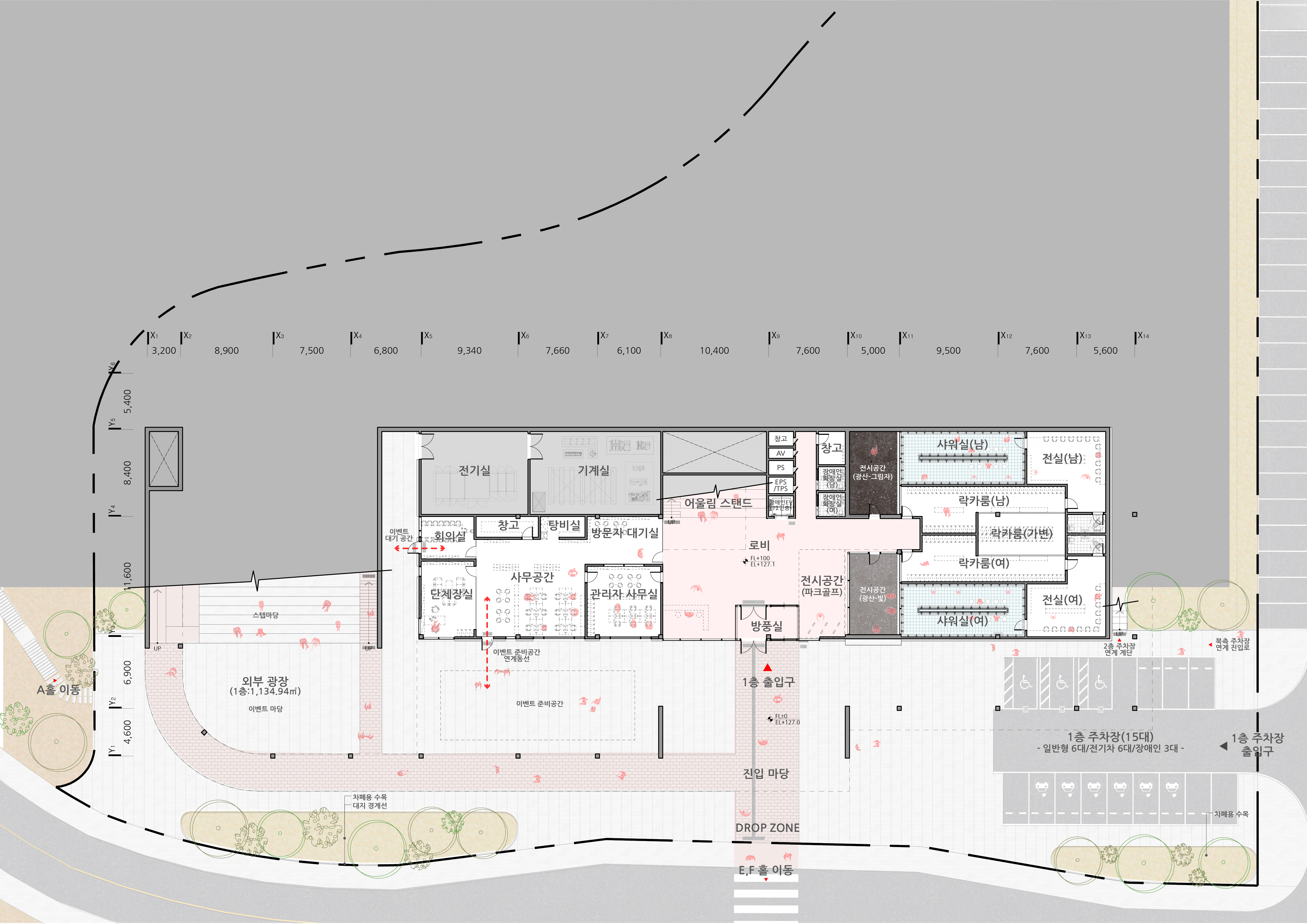
2. 공간 및 동선계획: 연속된 시퀀스와 무장애 환경
커뮤니티 시퀀스: 긴 매스의 특성을 활용해 내부 공간이 확장되는 연속적인 시각 경험을 제공하며 1·2층을 잇는 스탠드형 계단은 두 층의 유기적인 소통을 돕습니다.
유기적 동선: 경사지형을 활용해 1, 2층 모두 보행 진입이 가능하도록 계획했으며 휠체어 접근로와 회랑, 평상을 배치하여 시니어 이용객을 배려한 무장애(Barrier-free) 환경을 구축했습니다.
외부공간의 변주: 이벤트 광장, 순환형 산책로, 테라스 식당 등 각 섹터별로 점진적인 성격을 부여해 풍부한 야외 활동을 지원합니다.
3. 특화 계획: 빛과 어둠의 전시, 하이브리드 목조
구봉광산의 굴뚝을 모티프로 한 전시 공간은 ‘빛의 전시(미래)’와 ‘그림자의 전시(과거)’로 이원화하여 역사적 서사를 담았습니다. 이 굴뚝은 자연채광과 통풍을 유입하는 기능적 장치로도 작용합니다. 구조적으로는 목재-콘크리트 하이브리드 시스템을 적용하여 1층의 견고함과 2층 목구조의 따뜻함을 조화시켜 자연 속에 머무는 듯한 편안한 치유 공간을 완성했습니다.














(주)이도아이디건축사사무소
4등작_ (주)이도아이디건축사사무소
대표건축가 이재호
대지면적 8,377.80㎡
연면적 2,764.21㎡
건축면적 3,274.04㎡
건폐율 39.08%
용적률 32.99%
최고높이 13m
층수 지상 2층
구조 철근콘크리트, 목구조
대표건축가 이재호
디자인팀 이재호, 이재호, 박대근, 손수진, 구기현, 최우진
조경면적 1,405.89㎡
주차대수 48대
발주처 충청남도
'Plans' 카테고리의 다른 글
| 경주시 복합문화도서관(가칭) 건립 국제설계공모_ 3등작 / (주)제제합건축사사무소+(주)포스코에이앤씨건축사사무소 (0) | 2026.01.21 |
|---|---|
| 창원지방법원 통영지원 별관 증축 설계용역_ 당선작 / (주)보성종합건축사사무소 (0) | 2026.01.20 |
| 영덕 U&I 수산복합주거 플랫폼 조성사업 건축설계 제안공모_ 4등작 / 사이플러스 건축사사무소 (0) | 2026.01.20 |
| 경주시 복합문화도서관(가칭) 건립 국제설계공모_ 당선작 / (주)해안종합건축사사무소 (0) | 2026.01.16 |
| 서산보원사지 방문자센터 건립사업 건축설계공모_ 2등작 / 건축사사무소 강희재 (0) | 2026.01.16 |
마실와이드 | 등록번호 : 서울, 아03630 | 등록일자 : 2015년 03월 11일 | 마실와이드 | 발행ㆍ편집인 : 김명규 | 청소년보호책임자 : 최지희 | 발행소 : 서울시 마포구 월드컵로8길 45-8 1층 | 발행일자 : 매일



