
RESTORATION : 오래된 풍경에 자리잡기
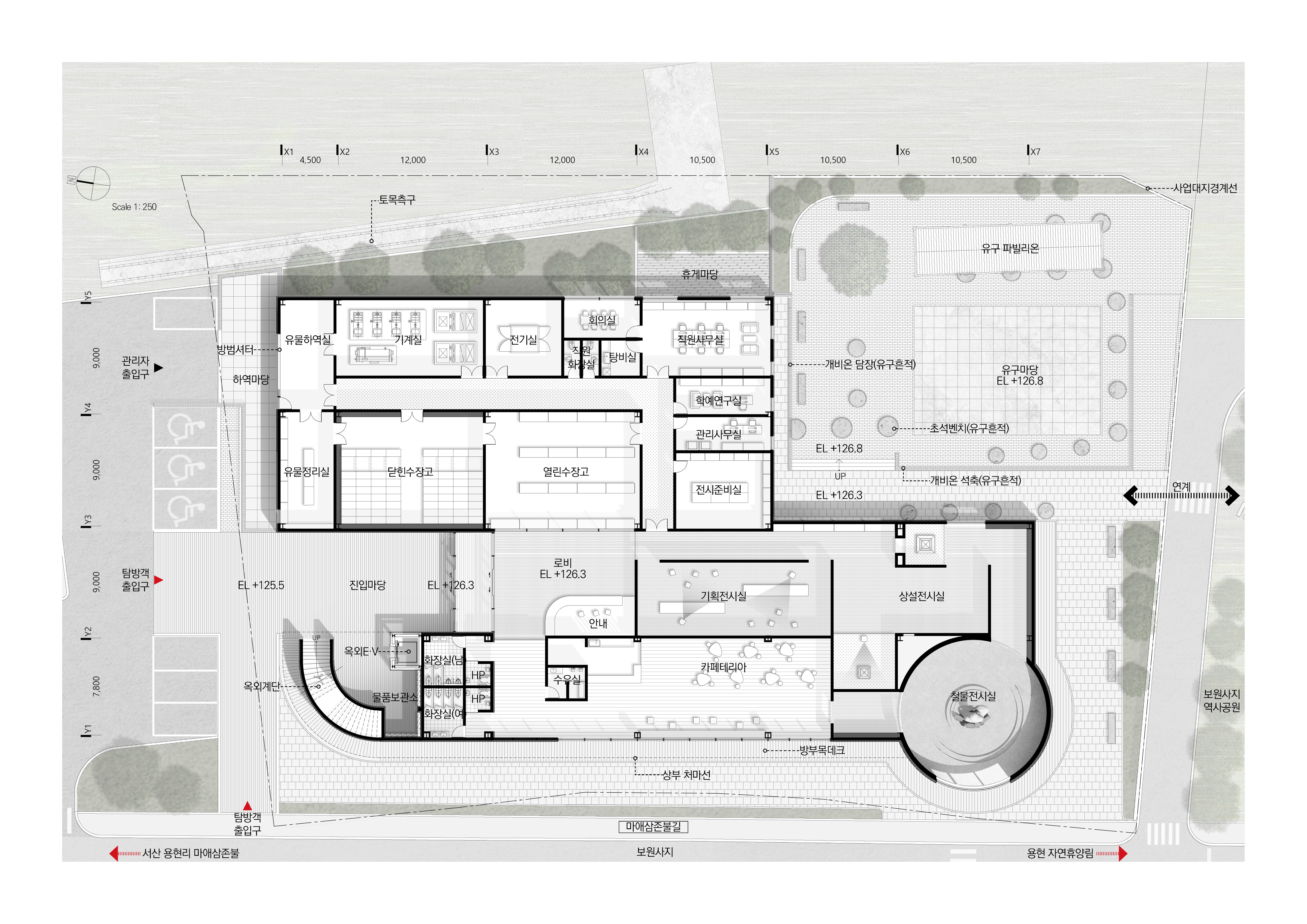
고요히 존재하는 보원사지의 풍경 속 일부로 자리하는 방문자센터는 수장, 전시의 기능적 요구를 수용하며 방문자를 환대하는 모습으로 존재한다. 방문자센터는 오래된 풍경 속 하나이며, 동시에 보원사지 현재의 풍경을 응시하는 공간으로 사용된다.
오래된 풍경에 앉힌 건축
빈 채로 남겨진 보원사 절터는 조용한 수평적 이미지와 고고(高古)히 존재하여 당간지주, 석축, 탑, 부도가 이루는 석조물은 수직적 형상을 이룬다. 이러한 오래된 풍경에 자리하는 방문자센터는 낮고 너른 형태로 수평성을 강조하고, 철불이 위치한 원형의 공간은 강건한 형태로 절터의 석조물과 어우러진다.
땅의 시간을 존중
보원사지와 대상지 내 승방터로 추정되는 발굴유구를 존중하는 계획을 수립한다. 발굴유구와 방문자센터의 바닥레벨을 고려하여 유구깊이가 낮은 유구 전면부에 건물을 계획하되 유구를 고려한 기초, 보호층을 형성한다. 유구깊이가 높은 유구 배면부는 건축행위를 지양하며 외부공간으로 계획한다. 이 공간은 발굴 건물지, 석축을 표현하는 조경시설로 옛 땅의 쓰임을 상기하고 현재의 열린 공간으로 활용한다.
중첩되는 현재의 풍경
환지본처되는 철불과 보원사지의 당간지주, 석탑, 금당지가 하나의 축을 이루는 관람 시퀀스를 구성하여 보원사지의 오래된 풍경 위로 비로소 돌아온 철불의 형상을 덧입혀지게 한다. 건물의 최대높이는 보원사지를 존중해 오층석탑 보다 낮게 계획한다.
철불전시실에서의 경험
철불전시실은 돌아온 철불의 상시 전시를 위한 공간으로 낮은 층고의 전이공간을 지나 원형의 공간으로 진입한다. 높은 층고와 천창을 통해 자연의 빛이 철불을 비추고 마침내 돌아온 본처(本處)와 중첩된 풍경 속 일부가 되는 전시공간을 연출한다. 이 공간은 높이 차, 채광과 전시조명, 소리의 울림, 벽과 바닥에서 느껴지는 질감의 변화 등의 요소로 극적인 순간을 제공한다.
열린 외부공간 계획
가야산 탐방루트의 거점시설로 이용될 서산 보원사지 방문자센터를 위해 센터 개방시간에 구애받지 않는 모두에게 열린 유구마당과 전망정원을 계획한다. 발굴 유구를 보호한 후 조성되는 유구마당은 발굴유구를 은유하는 유구 파빌리온, 초석벤치 등 조경시설을 통해 땅의 기억을 드러내고 남측의 보원사지 역사공원과 연계된다. 옥외계단과 엘리베이터를 통해 닿는 전망정원은 누구에게나 열린공간으로 다양한 시간의 보원사지 전망을 즐기는 공간으로 사용될 수 있도록 하였다.













건축사사무소 강희재
2등작_ 건축사사무소 강희재(https://www.gangheejae.com)
대표건축가 강성원
대지면적 9,000.00㎡
연면적 1,581.63㎡
건축면적 1,700.00㎡
건폐율 18.89%
용적률 17.57%
최고높이 8.00m
층수 지상 1층
구조 철근콘크리트조+철골 구조
대표건축가 강성원
디자인팀 김소희, 노희광
조경면적 해당사항 없음(자연녹지지역)
주차대수 해당사항 없음(기존주차장사용)
발주처 서산시
'Plans' 카테고리의 다른 글
| 영덕 U&I 수산복합주거 플랫폼 조성사업 건축설계 제안공모_ 4등작 / 사이플러스 건축사사무소 (0) | 2026.01.20 |
|---|---|
| 경주시 복합문화도서관(가칭) 건립 국제설계공모_ 당선작 / (주)해안종합건축사사무소 (0) | 2026.01.16 |
| 수산기자재 시험인증센터 구축 건축 설계공모_ 3등작 / (주)라움건축사사무소 (0) | 2026.01.15 |
| 서부산스마트밸리 청년문화센터 건립사업 설계공모_ 당선작 / 희가 건축사사무소+건축사사무소 마온 (0) | 2026.01.15 |
| 서산 보원사지 방문자센터 건립사업 건축설계(기본 및 실시설계) 용역_당선작 / (주)한창 건축사사무소 (0) | 2026.01.15 |
마실와이드 | 등록번호 : 서울, 아03630 | 등록일자 : 2015년 03월 11일 | 마실와이드 | 발행ㆍ편집인 : 김명규 | 청소년보호책임자 : 최지희 | 발행소 : 서울시 마포구 월드컵로8길 45-8 1층 | 발행일자 : 매일



