
Backyard Community Club
가나 아크라의 오수(Osu)는 공공 여가 공간에 대한 투자가 제한적이고, 녹지가 점차 사라지고 있는 도시 지역이다. Backyard Community Club은 이러한 맥락 속에서 테니스 코트를 중심으로 한 커뮤니티 스포츠 시설을 제안하며, 공유된 시민 생활을 위한 새로운 모델을 제시한다. 이 프로젝트는 DeRoche Projects가 설계했으며, 가나 최초로 프리캐스트 다짐흙(precast rammed earth) 시스템을 적용한 사례이다. 지역의 전통적 재료를 현대적으로 재해석한 이 건축은 지역의 랜드마크이자 반복 가능한 프로토타입으로서, 공공성, 환경적 책임, 문화적 정체성에 대한 질문에 건축적으로 응답한다.
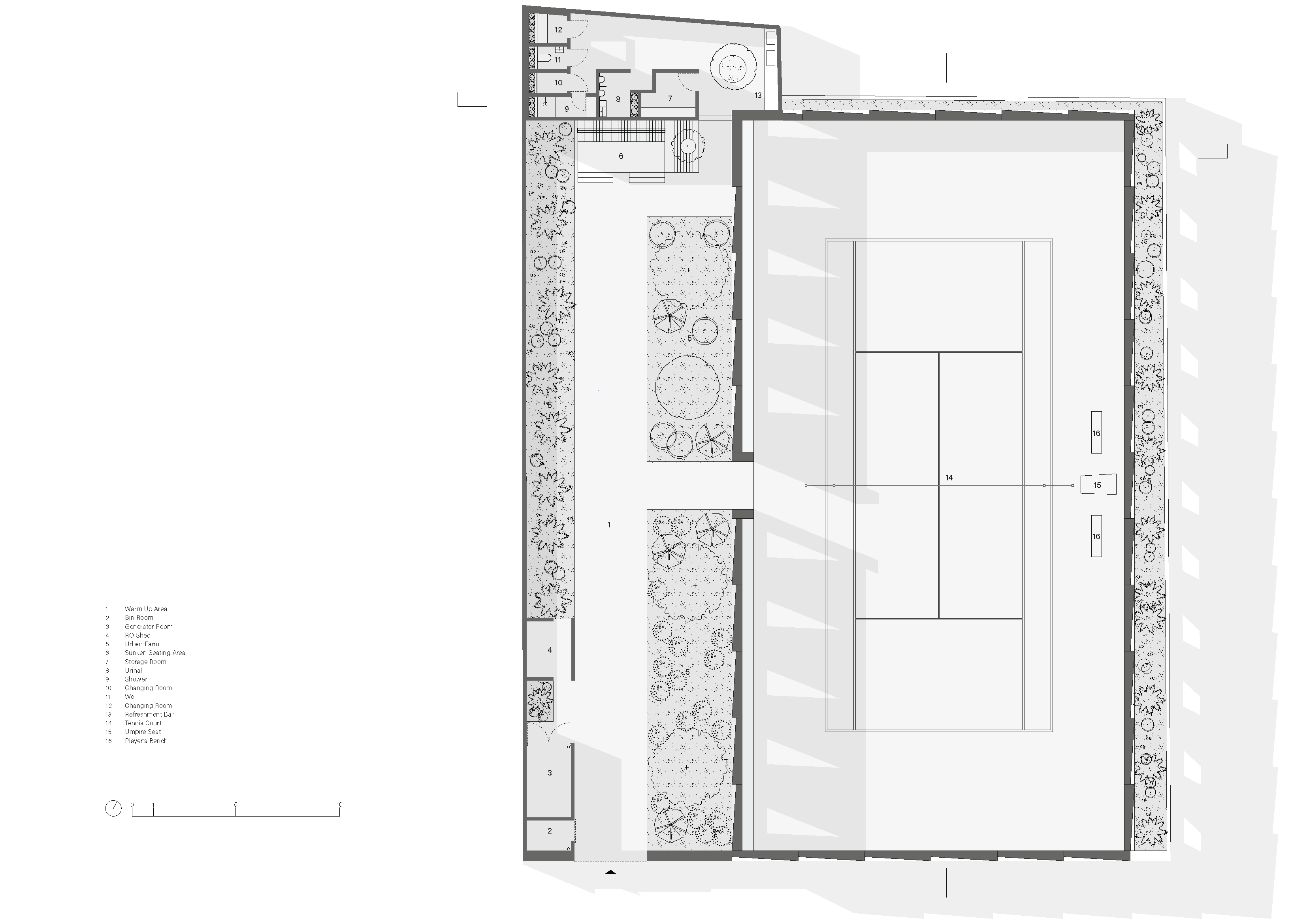
밀집된 주거지인 오수의 소규모 대지에 들어선 이 시설은 단순한 스포츠 공간을 넘어선다. Backyard Community Club은 훈련과 재배, 모임과 학습이 동시에 이루어지는 청소년 커뮤니티 공간으로 작동한다. 스포츠 활동과 생태적 실천을 연결함으로써, 이 프로젝트는 사회적 교류와 환경적 책임, 지속 가능한 자원 사용을 지원하는 공공 공간의 한 모델을 구축했다.
국제 기준에 맞춰 조성된 클레이 테니스 코트는 18세 이하 선수들을 위한 전문적인 복식 훈련 환경을 제공한다. 동시에 지역 아동을 대상으로 한 무료 레슨을 통해 스포츠에 대한 접근성을 넓힌다. 코트 가장자리에 설치된 그늘진 플로팅 벤치는 선수와 관람객 모두가 휴식하거나 훈련을 되돌아볼 수 있는 장소로 활용된다. 탈의실과 그늘진 좌석, 야외 조리대, 바비큐 공간 등 부속 시설은 대지 안에 절제된 방식으로 통합되었으며, 자연 채광이 들어오는 샤워 공간에는 식재된 틈을 두어 일상적인 휴식의 순간에도 풍경이 스며들도록 했다.
코트는 높이 약 4미터의 프리캐스트 다짐흙 패널로 둘러싸여 있다. 이 외피는 보호와 개방이라는 상반된 성격을 동시에 지니며, 프라이버시를 확보하면서도 시각적 소통을 차단하지 않는다. 리듬감 있게 반복되는 패널은 횡풍을 완화하고, 시간에 따라 이동하는 그림자를 만들어 공간에 생동감을 더한다. 구조는 조형적 존재감을 드러내면서도 과도한 표현을 피하며, 절제된 조형미를 유지한다.
테니스 코트를 둘러싼 약 230㎡ 규모의 자급 정원은 이 프로젝트의 또 다른 핵심 요소이다. 이곳에는 관상 목적이 아닌 기능을 기준으로 선정된 20여 종의 식용 및 약용 식물이 재배된다. 구아바, 바나나, 레몬그라스, 페퍼민트, 사워솝, 코코넛, 블루피 플라워 등은 선수들의 건강과 회복을 돕는 식재로 구성되었다. 청소년들은 훈련과 함께 토지를 가꾸고 수확하는 과정을 경험하며, 수확물은 주스와 간식, 커뮤니티 식사로 이어진다. 재배 행위는 놀이와 훈련의 리듬 속에 자연스럽게 스며들며, 자립성과 책임감, 생태적 인식을 일상의 일부로 만든다.
훈련 외의 시간에도 이 공간은 지역 사회를 위해 개방된다. 운동과 정원 가꾸기, 농산물 교환, 저녁 모임이 이루어지며, 때로는 야외 상영 공간으로 전환되어 국제 테니스 대회 중계나 스포츠 교육 프로그램을 제공한다. 이는 인프라의 한계로 접근하기 어려웠던 경험을 지역 안으로 끌어들이는 장치로 작동한다.
Backyard Community Club은 기존 스포츠 시설의 전형적인 설계 방식과는 다른 대안을 제시한다. 재료의 정직성, 지역 지식, 사회적 목적에 기반한 이 건축은 초기 단계부터 지역 건축가, 시공자, 선수, 교육자와의 긴밀한 협업을 통해 완성되었다. 이는 특정 프로그램을 담는 건축을 넘어, 공동체를 지지하는 구조를 만드는 과정이었다.
지속가능성은 프로젝트 전반에 걸쳐 핵심 전략으로 작동한다. 클레이 코트와 외부 공간에는 보어홀 시스템과 우수 재활용을 통해 물을 공급하며, 이는 상수도 의존도를 낮추고 가뭄에 강한 식재 환경을 조성한다. 마감에는 시멘트 대신 흙 슬러리 마감을 적용해 투습성과 환경 부담을 줄였다. 부속 건물은 공조 설비 없이 자연 환기와 풍부한 채광에 의존하며, 굴뚝 효과를 활용해 에너지 사용을 최소화한다.
이 프로젝트는 가나에서 처음으로 프리캐스트 다짐흙 패널을 본격적으로 적용한 사례이기도 하다. 전통적인 다짐흙 공법이 가진 시공 속도와 기후 의존성의 한계를 극복하기 위해, 오프사이트 제작 방식을 도입해 품질 관리와 구조적 정밀도를 높였다. 모듈화된 시스템은 현지 운송과 노동 환경에 맞게 조정되었으며, 콘크리트 대비 현저히 낮은 탄소 배출로 구현되었다. 이는 단순한 시공 기술을 넘어, 지역의 토양 자체를 건축 자원으로 활용하는 새로운 구축 방식의 제안이다.
Backyard Community Club은 혁신적인 재료 시스템을 통해 지속 가능한 도시 생활의 가능성을 확장하며, 동시에 지역의 문화적 가치와 환경적 원칙을 지켜내는 건축적 실천을 보여준다.














건축가 드로슈 프로젝트(DeRoche Projects)
위치 가나, 아크라
용도 문화시설
준공 2025
사진작가 Julien Lanoo
'Architecture Project > Cultural' 카테고리의 다른 글
| 페즈 : 골목에서 시작되는 여정, 문화를 키우는 도시 / 아이티엠 유이화건축사사무소 (0) | 2025.12.22 |
|---|---|
| 지형처럼 솟은 마운드와 공중에 떠 있는 갤러리, 아부다비 자이드 국립박물관 / 포스터 + 파트너스 (0) | 2025.12.17 |
| 마장과 갤러리가 만나는 지점, 관찰과 움직임의 복합 건축 / 씨유 오피스 (0) | 2025.12.12 |
| 경사지에 놓인 산악 커뮤니티 허브: 확장과 보존이 공존하는 호르엘 센터 / 에이디알 (0) | 2025.12.10 |
| 가벼운 구조로 다시 태어난 ‘모듈러 극장형 서점’ 백화서실 리뉴얼 / 칭티엔메이킹 (0) | 2025.12.09 |
마실와이드 | 등록번호 : 서울, 아03630 | 등록일자 : 2015년 03월 11일 | 마실와이드 | 발행ㆍ편집인 : 김명규 | 청소년보호책임자 : 최지희 | 발행소 : 서울시 마포구 월드컵로8길 45-8 1층 | 발행일자 : 매일



