
백화서실, 모듈러 구조로 다시 태어난 ‘극장형 서점’
1993년에 설립된 백화서실은 중국곤곡박물관 산하에서 가장 오래된 서점 가운데 하나로, 오랜 기간 곤곡 문화의 일부로 기능해 왔다. 하지만 시간이 지나며 약 65㎡ 규모의 노후한 별관으로 축소되었고, 단순 개보수를 넘어 공간적 재해석이 필요한 상황에 놓였다. 이번 리뉴얼 프로젝트는 이 서점을 박물관의 문화 생태계 속에 다시 위치시키는 경량 모듈러 리테일의 실험적 사례로 진행되었다.
Tangmingdan(당밍단)에서 추출한 건축적 원리
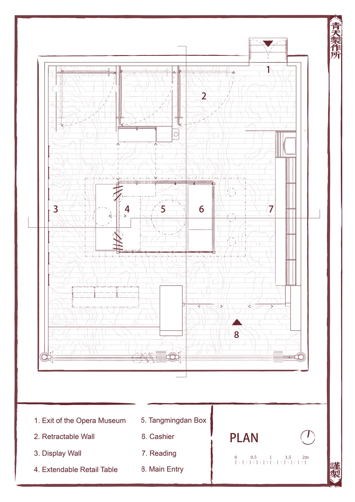
디자인의 출발점은 박물관 소장품 중 하나인 ‘당밍단’—중국 남방 지역의 전통 오페라가 이동공연에 사용하던 휴대식 무대 파사드였다. 이 장치는 가벼운 구조, 조립과 해체가 가능한 구성, 이동을 전제로 한 유연성이 특징이다. 본 프로젝트는 당밍단의 형식을 모방하는 대신, 그 구조적 사고방식을 현대적 공간 장치로 번역한다. 서점의 중심에는 약 7㎡ 규모의 새로운 당밍단을 배치했다. 네 개의 서로 다른 재료를 사용한 파사드가 상징적 경계를 형성하며, 책방 내 다양한 프로그램(전시, 낭독회, 소규모 공연)을 유연하게 수용하는 핵심 장치로 작동한다.
극장의 작동 논리를 공간으로 전환
전통 공연단의 운영 방식은 ‘보이는 것과 숨겨지는 것’, ‘조립과 해체’, ‘가변적 배열’이라는 특징을 지닌다. 이러한 작동 원리가 서점 공간에도 그대로 이식되었다.
- 모든 진열장은 이동형 모듈로 설계
- 벽체는 자석 기반의 탈착형 패널 시스템으로 구성
- 커튼과 가림막은 상황에 따라 조정 가능한 접이식 구조 적용
- 간판과 정보 패널은 모듈형 그래픽 시스템으로 제작
가장 눈에 띄는 요소는 북측 벽면의 삼륜 이동식 목재 진열판으로, 벽에서 중앙으로 이동시키면 임시 공연 무대를 형성할 수 있다. 서점 내부에 자연스럽게 ‘앞무대–뒷무대’의 관계가 생성되는 방식이다.
재료를 통한 서사의 구축
당밍단 북측 파사드는 기존 공간에서 발견된 헌 목재문을 탄화 기법으로 가공해 새로운 질감을 입혔다. 손때 묻은 목질의 온기를 드러내는 방식이다. 반면 남측 파사드는 도금 천공 강판으로 구성해 전통성과 현대성이 대비되는 표정을 만든다. 천공 패턴은 곤곡 배우의 초승달 장식을 추상화한 형태로, 가까이에서 보면 서예적 리듬감을 지닌다. 기존 건물의 조각창은 장식적 보존이 아닌, 새로운 구조 속에서 의미를 갱신하는 서사적 요소로 재배치되었다.
‘완결된 디자인’이 아닌, 다시 쓰기를 전제로 한 공간
65㎡라는 제한된 규모, 모호한 공공성, 적은 예산이라는 조건 속에서, 본 프로젝트는 최소개입을 원칙 삼아 진행되었다. 중심 장치를 기반으로 공간을 반복적으로 다시 써 나갈 수 있는 구조를 만드는 데 집중한 것이다. 이러한 전략을 통해 백화서실은 전통과 현대, 서점과 극장, 기억과 창작이 겹겹이 공존하는 작은 문화 플랫폼으로 재탄생했다.
























건축가 칭티엔메이킹 (Tsing-Tien Making)
위치 중국, 쑤저우
용도 서점
프로젝트면적 65㎡
규모 지상 1층
프로젝트디자이너 Freja Bao
디자인팀 Liu Shucen, Yang Zuming, Zhu Hongxuan, Feng Yuyou (Intern), Yang Jiayi (Intern)
시공 Shanghai Zhonggeng Decoration Co., Ltd.
발주자 Suzhou Bureau of Culture and Tourism, China Kunqu Opera Museum
사진작가 Wen Studio
'Architecture Project > Cultural' 카테고리의 다른 글
| 마장과 갤러리가 만나는 지점, 관찰과 움직임의 복합 건축 / 씨유 오피스 (0) | 2025.12.12 |
|---|---|
| 경사지에 놓인 산악 커뮤니티 허브: 확장과 보존이 공존하는 호르엘 센터 / 에이디알 (0) | 2025.12.10 |
| 공장에서 극장으로, 달리의 도시 단면을 재구성한 헤테로토피아 / 아틀리에 알터 아키텍츠 (1) | 2025.12.02 |
| 음악과 도시의 경계가 흐르는 장소, 심포니 오케스트라 파월 홀 / 스노헤타 (0) | 2025.11.21 |
| 전통의 회랑을 재해석한 건축, 쑤저우의 시간과 물 위의 미술관 / 비아이지 (0) | 2025.11.12 |
마실와이드 | 등록번호 : 서울, 아03630 | 등록일자 : 2015년 03월 11일 | 마실와이드 | 발행ㆍ편집인 : 김명규 | 청소년보호책임자 : 최지희 | 발행소 : 서울시 마포구 월드컵로8길 45-8 1층 | 발행일자 : 매일



