
Antriya
건축가는 2021년, 사친 아가왈과 니틴 아가왈 형제로부터 ‘삼대가 함께 사용하는 주말 주택’을 설계해 달라는 요청을 받았다. 세대별로 다른 사용 방식과 기대치를 이해하기 위해 여러 차례 논의를 진행했고, 건축가는 가족 구성원 모두의 요구와 생각을 기록한 서면 브리프를 요청했다. 이를 통해 세대별 공간적 필요뿐 아니라 각자의 여행 경험, 손실과 성취, 가족의 기억까지—이 집이 어떤 ‘정서적 역할’을 해야 하는지에 대한 중요한 실마리를 얻었다.
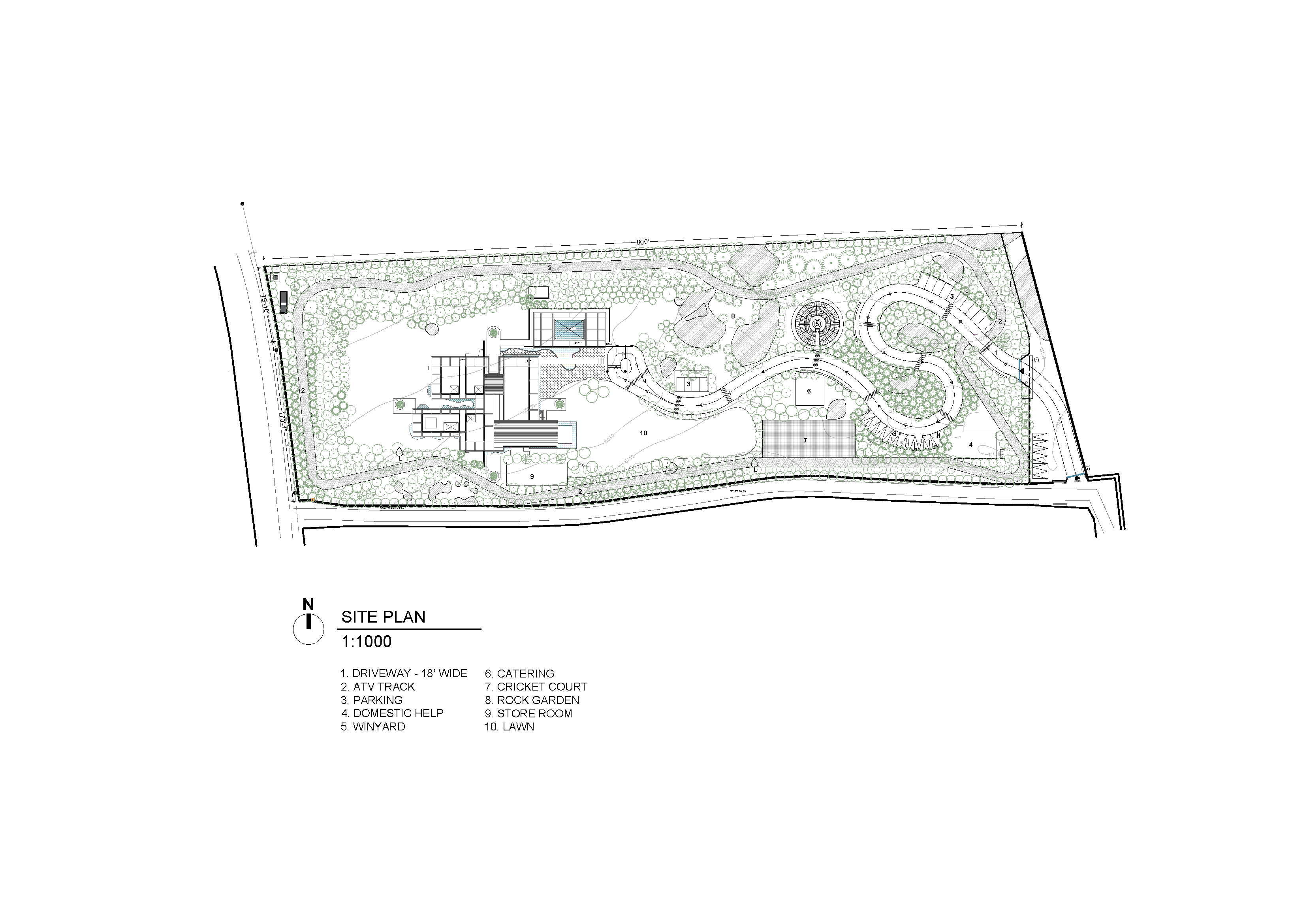
대지는 하이데라바드 남쪽 외곽의 조용한 마을 무친탈에 있다. 이곳은 가족이 운영 중인 철강 공장으로 향하는 길목에 있어 주말용 별장 이상으로 자주 사용될 가능성이 높았다. 5에이커 규모의 길고 좁은 대지는 식생이 거의 없었으나, 서쪽에 자리한 큰 피팔나무가 강한 장소성을 제공했다. 건축가는 기반암이 없는 서측 영역에 건물을 배치하고, 진입도로를 구불구불 흐르도록 설계해 이동 과정에서 풍경이 점층적으로 드러나는 경험을 만들었다. 드라이브웨이 주변에는 가족의 기억과 취향을 담은 프로그램들이 배치된다. 어린 시절 포도밭 경험을 되살린 작은 포도원, 젊은 세대를 위한 스포츠 네트와 ATV 트랙, 바위 지형을 살린 록가든, 반야외 주방 등이 그러한 구성이다.
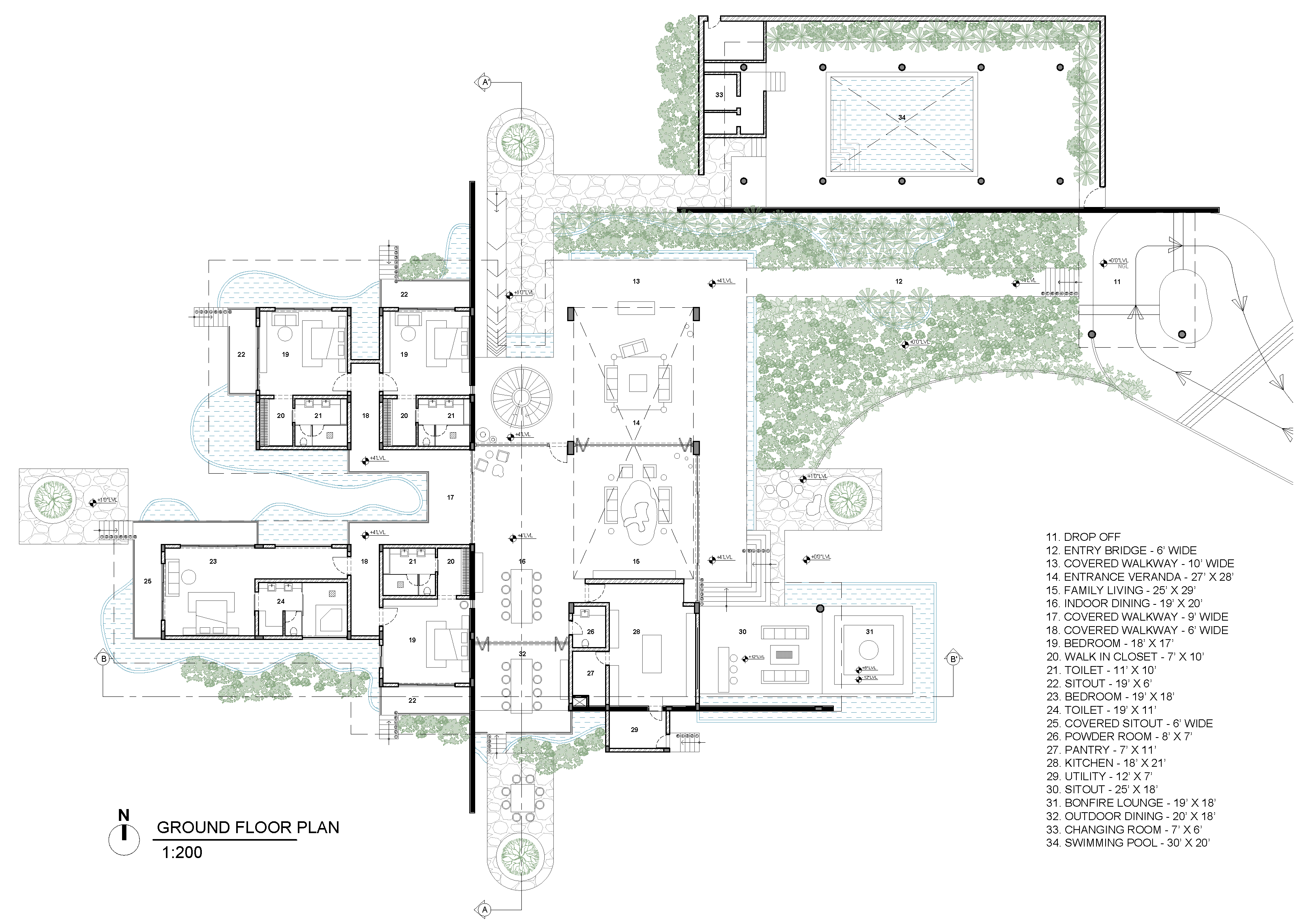
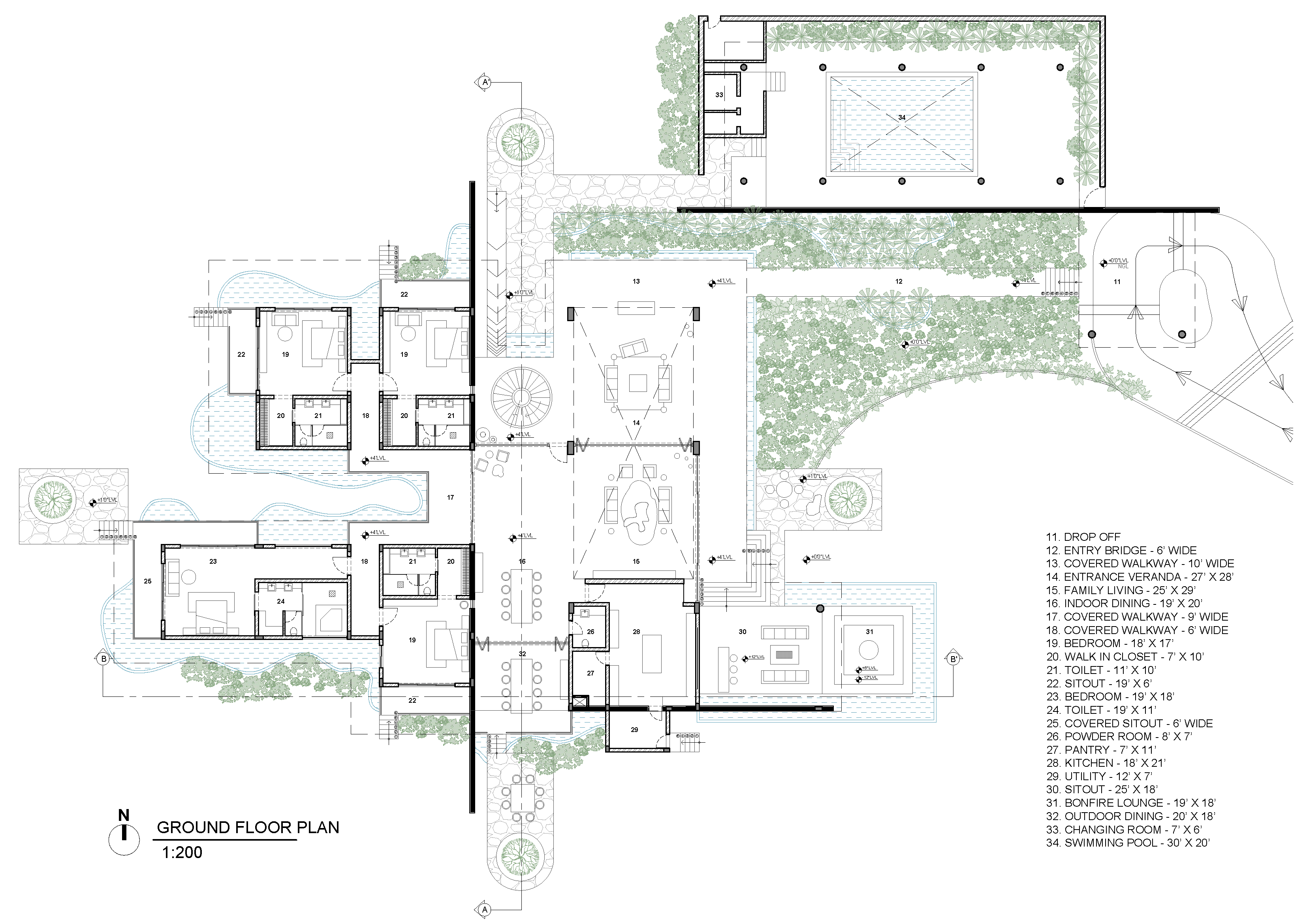
주택은 ‘긴 선형 석재벽’ 세 개가 전체 공간의 성격을 규정한다. 첫 번째 벽은 드롭오프에서부터 시작해 반야외 베란다로 이끄는 방향성을 만들고, 동시에 수영장 영역을 가려 사생활을 확보한다. 사용자가 어떤 시간대든 편안히 머물 수 있도록, 수영장은 벽과 지붕 사이의 틈과 개구부를 통해 하늘·바람·식재가 자연스럽게 스며드는 구조로 계획했다.
메인 하우스에 들어서면 두 번째 석재벽이 공용 영역과 침실 영역을 분절한다. 내부는 15피트의 층고로 통일하고, 10피트 높이에 둘러싼 중간 슬래브가 전체의 비례감을 잡아준다. 집 전체를 감싸는 8~10피트 깊이의 캔틸레버 처마는 유리창을 완전히 그늘지게 하면서 클리어스토리를 통해 위쪽 식재의 그림자와 빛이 실내에 드리워지도록 했다.
주택의 또 하나의 핵심은 ‘떠 있는 바닥’이다. 바닥 슬래브는 물과 식재가 흐르는 수로 위로 살짝 띄워져 있어, 마치 건물이 물 위에 떠 있는 듯한 인상을 준다. 이는 자연 서식 생물의 접근을 막는 기능적 역할까지 수행한다. 외곽으로는 40피트의 완충녹지를 비워 바람이 사방에서 집으로 드나들게 했고, 넓은 잔디 마당은 열 축적을 줄이며 가족이 자주 여는 대규모 모임의 기반이 된다. 일부 코코넛 나무와 처마에서 늘어지는 덩굴식물이 집의 스케일을 부드럽게 조절하며, 빛과 그림자가 드리워지는 시간의 흐름을 더 느리게 만든다.
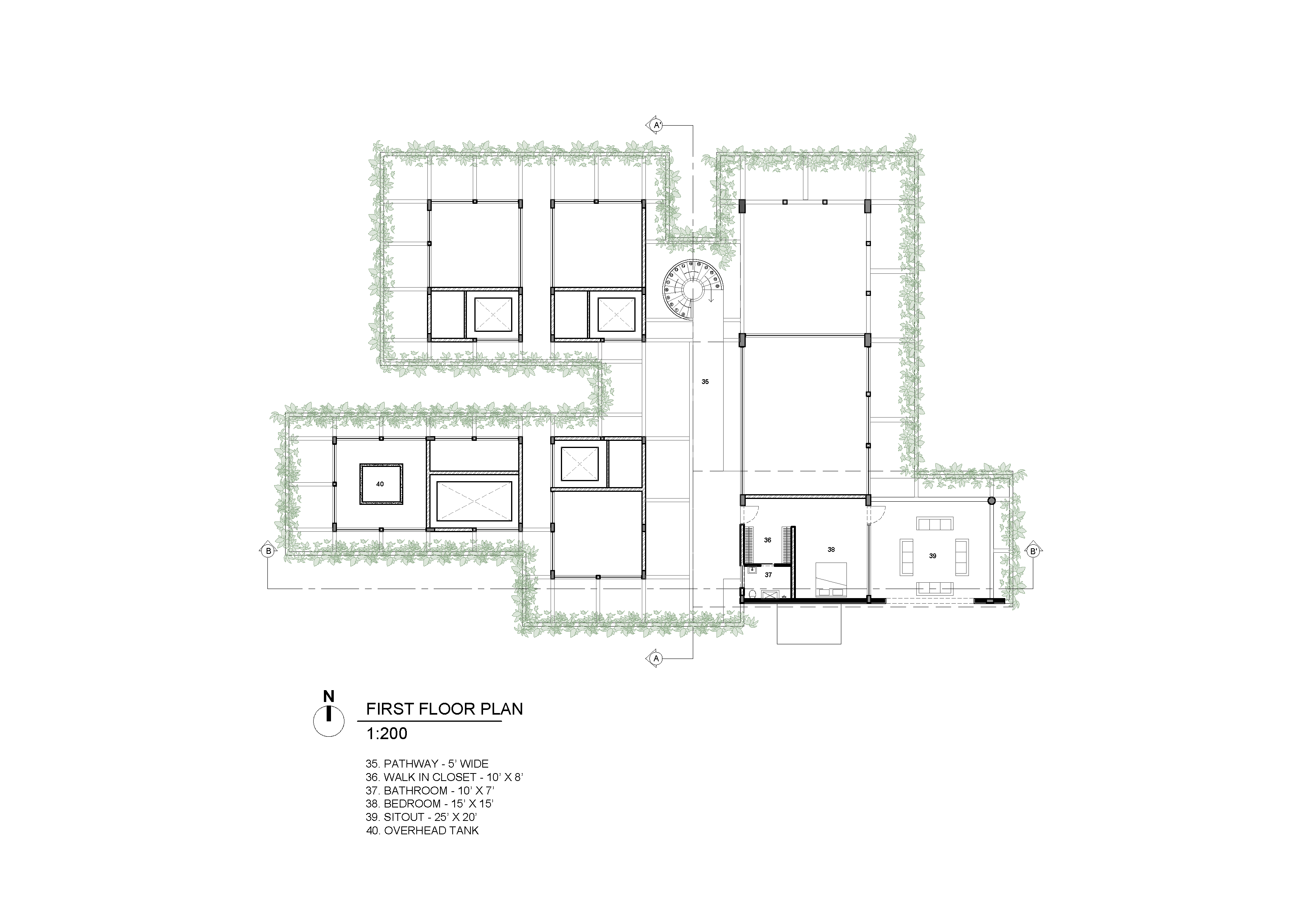
반야외 베란다는 조각적 계단을 배경으로 삼아 실내 거실과 하나의 파빌리온처럼 확장된다. 세 번째 석재벽은 서비스 영역을 시야에서 감추고, 전체 구성을 정리하는 경계 역할을 한다. 1층에 네 개의 침실을 배치해 집이 땅과 가깝게 ‘앉는’ 감각을 유지했고, 2층의 단 하나의 침실은 대지 전체를 조망하는 전망을 제공한다.
재료는 ‘가공되지 않은 자연의 질감’을 중심으로 구성된다. 벽체는 연한 회색의 라임 플라스터, 주요 구조벽은 카마밈 브라운 사암, 바닥은 마카푸람 슬레이트를 사용해 텔루구 지역의 재료성을 적극 반영했다. 거친 사암벽은 덩굴이 뿌리내릴 수 있는 표면을 제공하고, 슬레이트 바닥은 울퉁불퉁한 질감 덕분에 맨발로 걸을 때 자연의 촉감을 느낄 수 있다. 재활용 티크 목재, 러프한 우드 슬랩, 주트 러그, 블랙 메탈 액센트가 절제된 팔레트를 완성한다.
이 집은 세대가 함께 머무르고 관계를 회복하며 자연을 곁에 두는 ‘재집합의 장소’다. 기억에서 출발해, 삶의 리듬을 담고, 자연과 호흡하며, 시간의 흐름과 온도를 품은 공간이다.
이러한 맥락에서, 집은 자신을 되돌아보며 자연과 하나 되는 장소—‘안트리야(Antriya)’, ‘열려 있으면서도 친밀한 공간’이라는 이름을 갖게 되었다.
















건축가 23 디그리스 디자인 시프트 (23Degrees Design Shift)
위치 인도, 샴샤바드·하이데라바드
용도 단독주택
연면적 14,530㎡
규모 지상 2층
준공 2024
대표건축가 Srikanth Reddy, Neelesh Kumar
전기엔지니어 Sahitya Varma
조명 Love of Light (LOL)
시공 ID Structural Consultants
발주자 Sachin Agrawal and Nithin Agrawal
사진작가 Shamanth Patil
'Architecture Project > Single Family' 카테고리의 다른 글
| 지붕의 직선과 곡선으로 만드는 다층적 주택 / 위안쉬완 아키텍트 앤 어소시에이츠 (0) | 2025.12.03 |
|---|---|
| 시간을 품은 집 / 지상 스페이스 디자인 (0) | 2025.12.01 |
| 중정으로 삶을 구성하는 지중해형 주거 실험 / 투보 아키텍투라 (0) | 2025.11.28 |
| 산업화된 목구조와 기후 감각, 모듈러 바이아 프로젝트 / 우나 바르바라 이 발렌팀 (0) | 2025.11.27 |
| 강물과 산세를 품은 주거 공간, 자연과 시선이 이어지는 집 / 지상 스페이스 디자인 (0) | 2025.11.27 |
마실와이드 | 등록번호 : 서울, 아03630 | 등록일자 : 2015년 03월 11일 | 마실와이드 | 발행ㆍ편집인 : 김명규 | 청소년보호책임자 : 최지희 | 발행소 : 서울시 마포구 월드컵로8길 45-8 1층 | 발행일자 : 매일



