
건축가는 중국 원저우의 강 한가운데 자리한 프로젝트를 통해, 주변의 물과 산세가 지닌 에너지를 실내 공간 속으로 깊게 끌어들이는 작업을 시도했다. 사방이 물로 둘러싸인 이 독특한 입지는 건축가에게 주요한 영감의 원천이었다. 그는 자연 환경의 형식과 감성을 설계의 출발점으로 삼아, 절제되면서도 감각적인 주거 공간을 새롭게 구축했다.
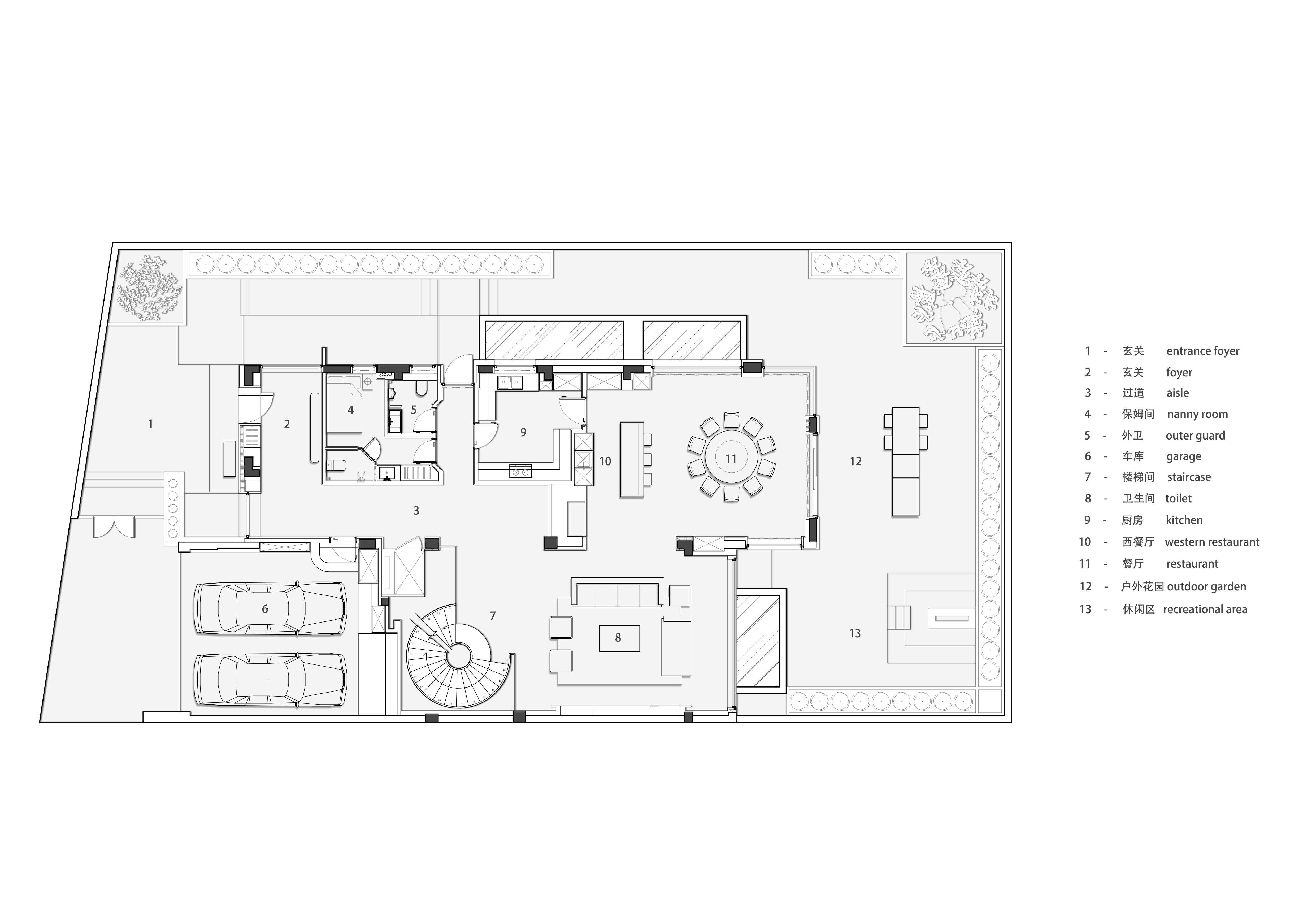
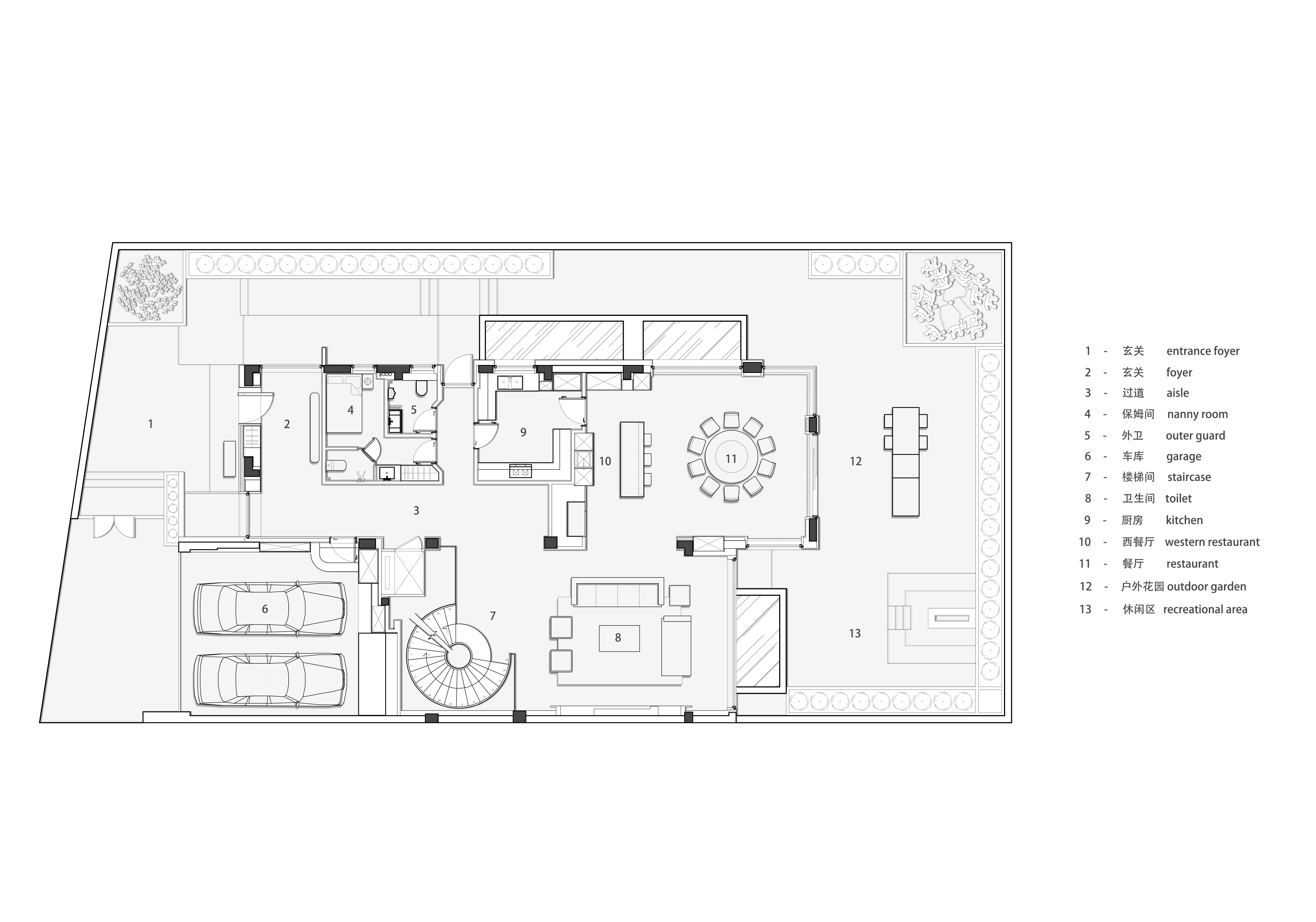
원래 건물은 1000㎡ 규모의 유럽식 저택으로, 과도하게 나뉜 공간 구성 때문에 주변 자연과 충분히 연결되지 못했다. 건축가는 내부 구조와 외관을 과감히 열어젖히며 빛, 바람, 경관이 흘러들 수 있는 동선을 만들었다. 큰 창을 도입해 실내와 자연을 시각적으로 연결했고, 폐쇄적인 방들을 유기적인 흐름을 가진 공간으로 재편했다. 이 리노베이션은 2020년 설계를 시작해 2023년 1월 완공됐다.
빛과 그림자가 이어지는 입구
외부를 감싸는 티크 패널을 지나 실내로 들어서면, 오크 바닥과 목질 벽면이 시선을 자연스럽게 내부 깊숙이 이끈다. 길고 좁게 열린 창들은 외부 풍경을 프레임처럼 담아내며, 공간 자체는 절제된 비례와 재료 조합으로 선명한 질서를 유지한다. 구조가 공간 구성을 스스로 규정하는 방식 덕분에 기능은 명확해지고, 층위 있는 리듬감이 생겨났다.
건축가는 디테일까지 치밀하게 조정하며 미학적 절제와 장인적 완성도를 추구했다. 넓은 오픈 플로어는 빛과 공기의 자연스러운 순환을 허용하며, 실내 곳곳에 외부의 기운을 스며들게 한다.
자연과 이어지는 생활
강바람이 스치고, 저녁 빛이 낮아지고, 나비가 날아드는 순간들—식당의 전면 유리창은 하나의 책 표지처럼 바깥 풍경을 실내로 불러오며 일상 속 이야기를 만들어낸다.
집의 공간 구조는 유기적인 실로 엮여 있는 듯 자유롭게 열리고 닫힌다. 문을 열면 실내와 자연이 하나의 장면으로 이어지고, 닫으면 사적인 세계가 만들어진다.
2층의 거실은 큰 창을 통해 강과 산을 한 폭의 화면처럼 끌어들이며, 내부와 외부의 경계가 거의 사라진다. 루이스 칸이 말한 “빛과 그림자 사이를 여행하는 감각”이 이 공간에서 자연스럽게 구현된다.
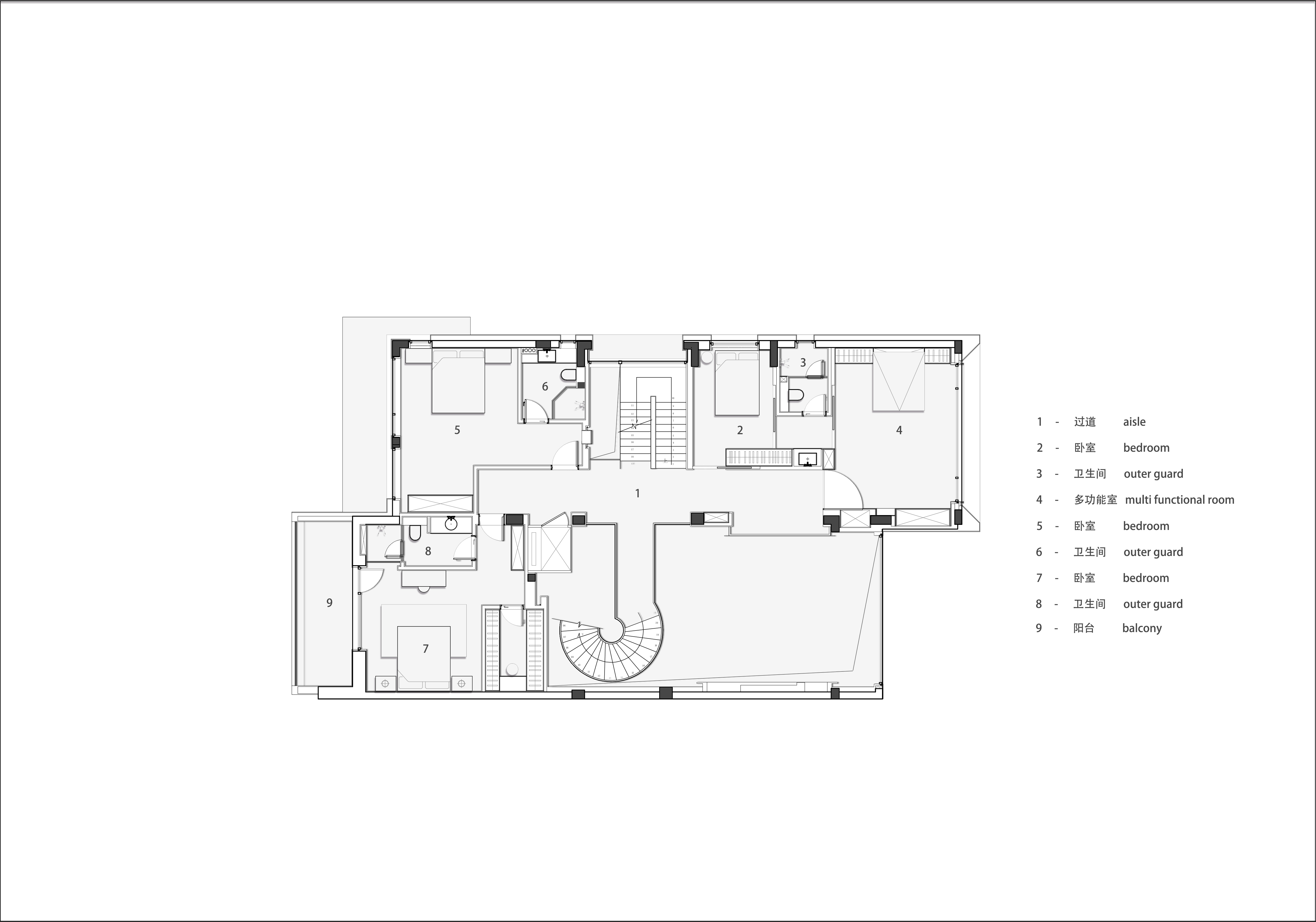
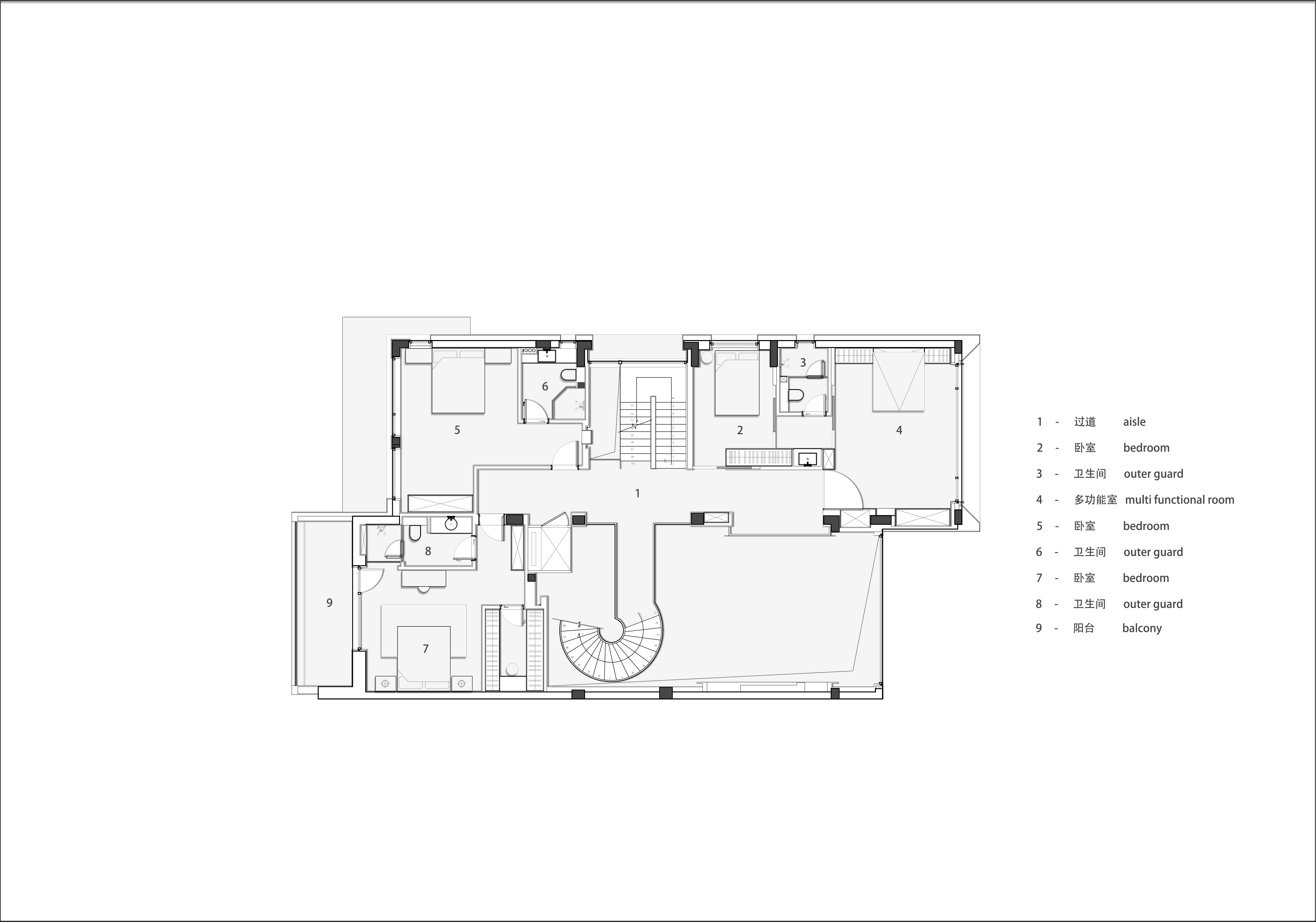
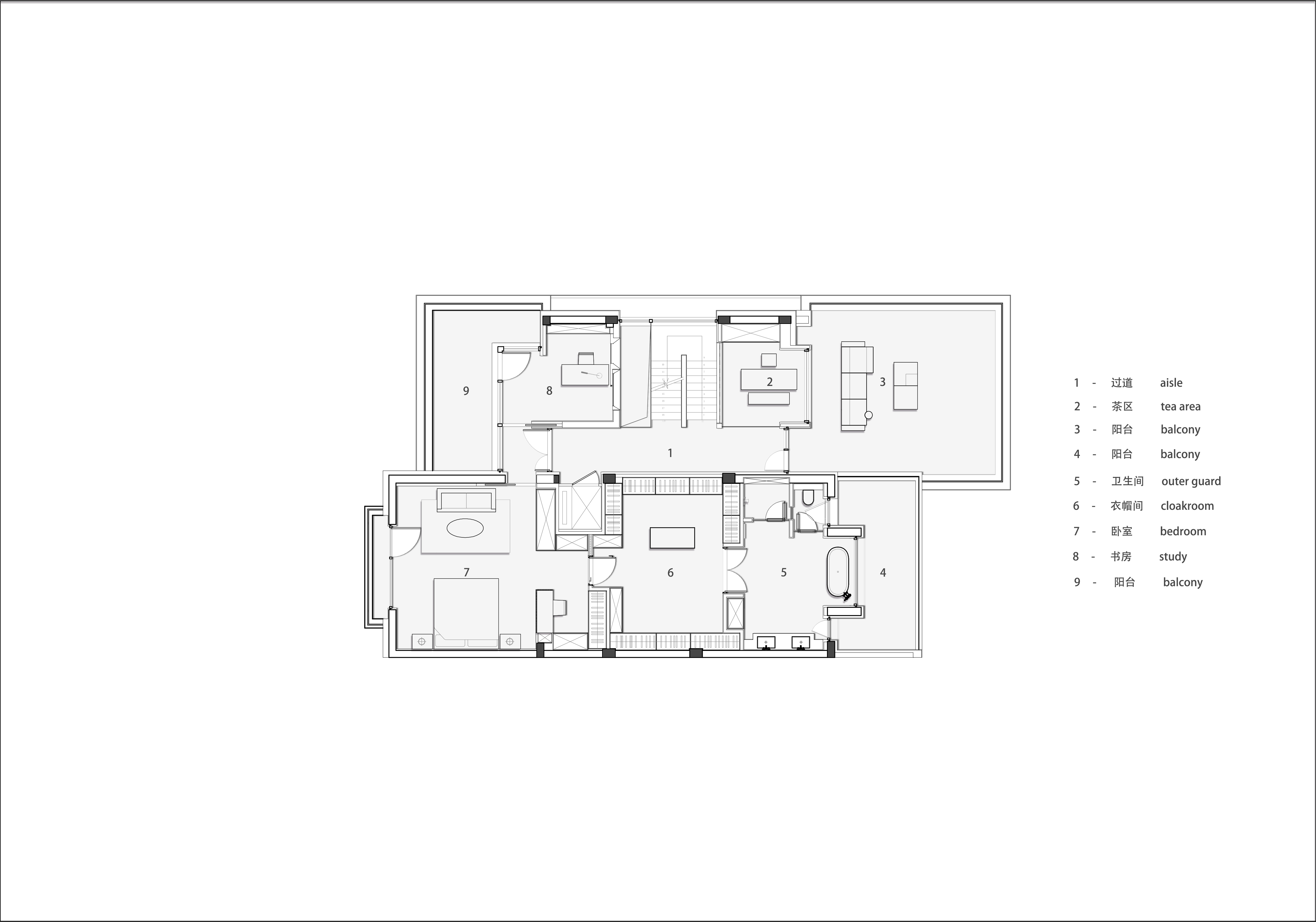
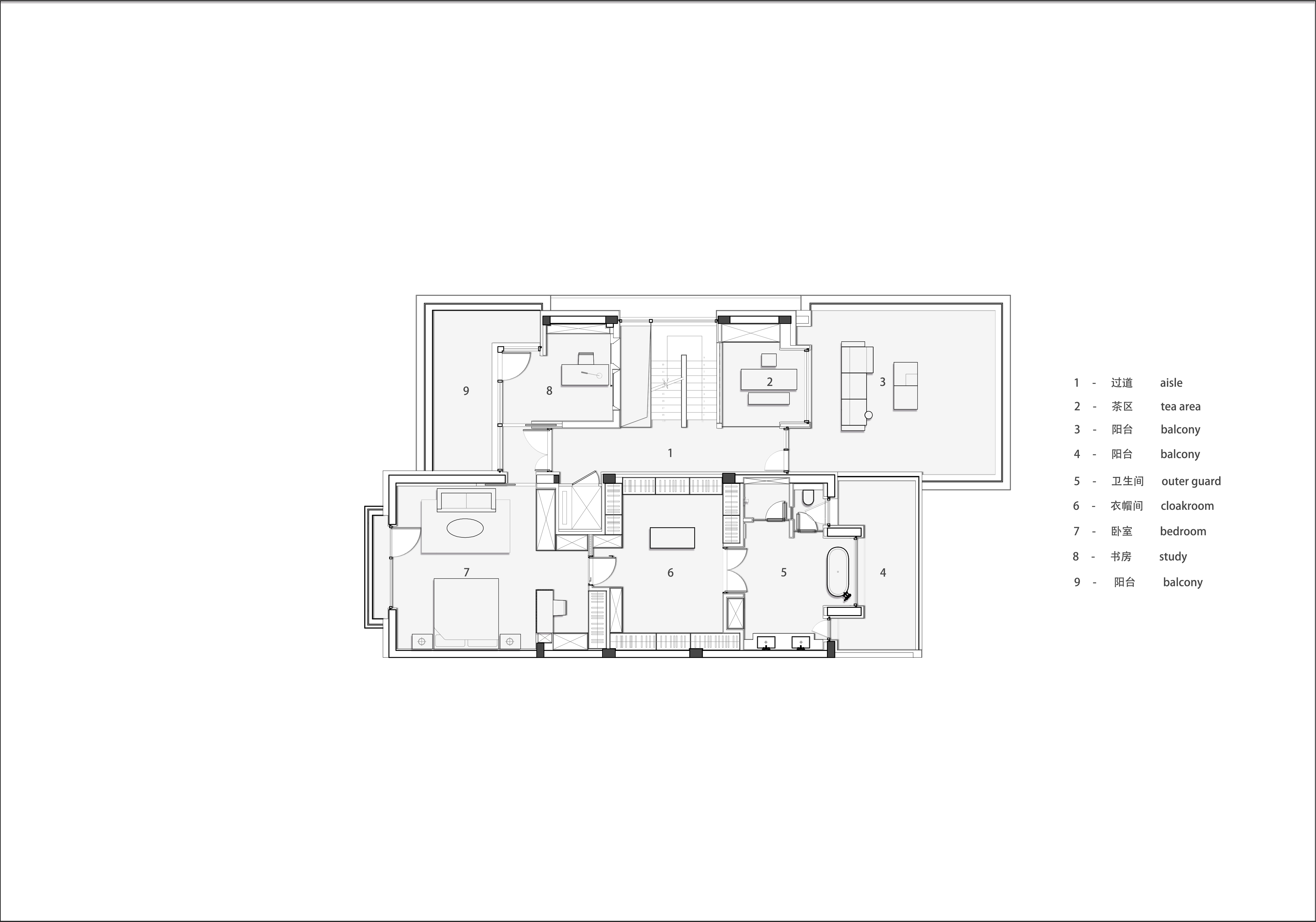
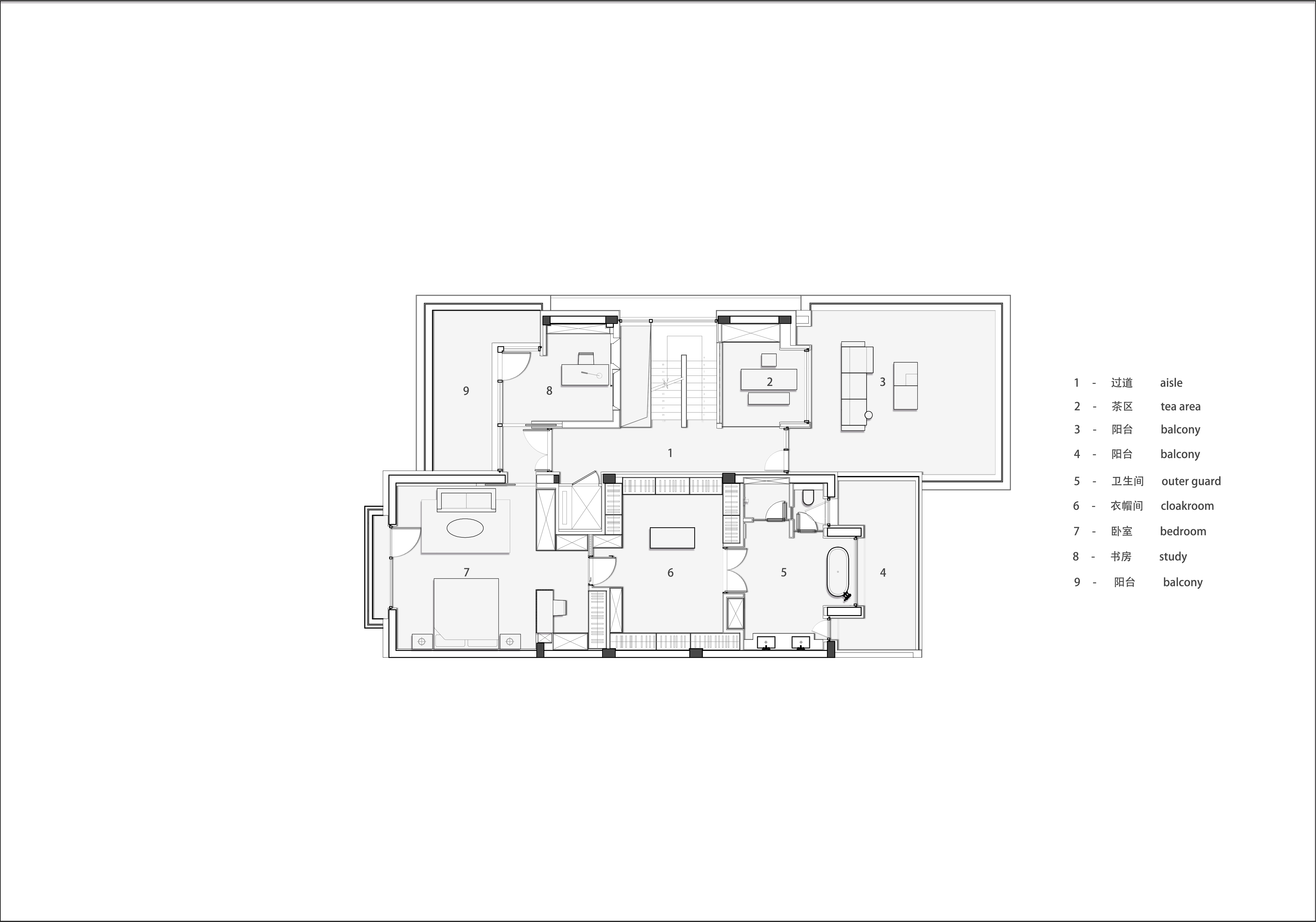
구조가 조형물이 되는 계단
중앙의 나선형 계단은 단순한 수직 동선이 아니라 건축적 조형 요소로서 실내의 흐름과 질서를 시각화한다. 2층과 3층을 연결하는 십자형 계단 역시 빛과 시야를 가리지 않으며 공간의 중심적 장면을 형성한다.
조용한 안식의 공간
마스터 침실은 꾸밈을 최소화하고 빛과 안개의 결을 담아내는 차분한 분위기로 연출되었다. 얇은 흰 커튼이 바람에 흔들리며 그 자체로 섬세한 장면을 만든다. 서재와 다실은 기능적 공간임과 동시에 사용자의 취향과 정신적 여유를 담아내는 장소로 계획됐다.
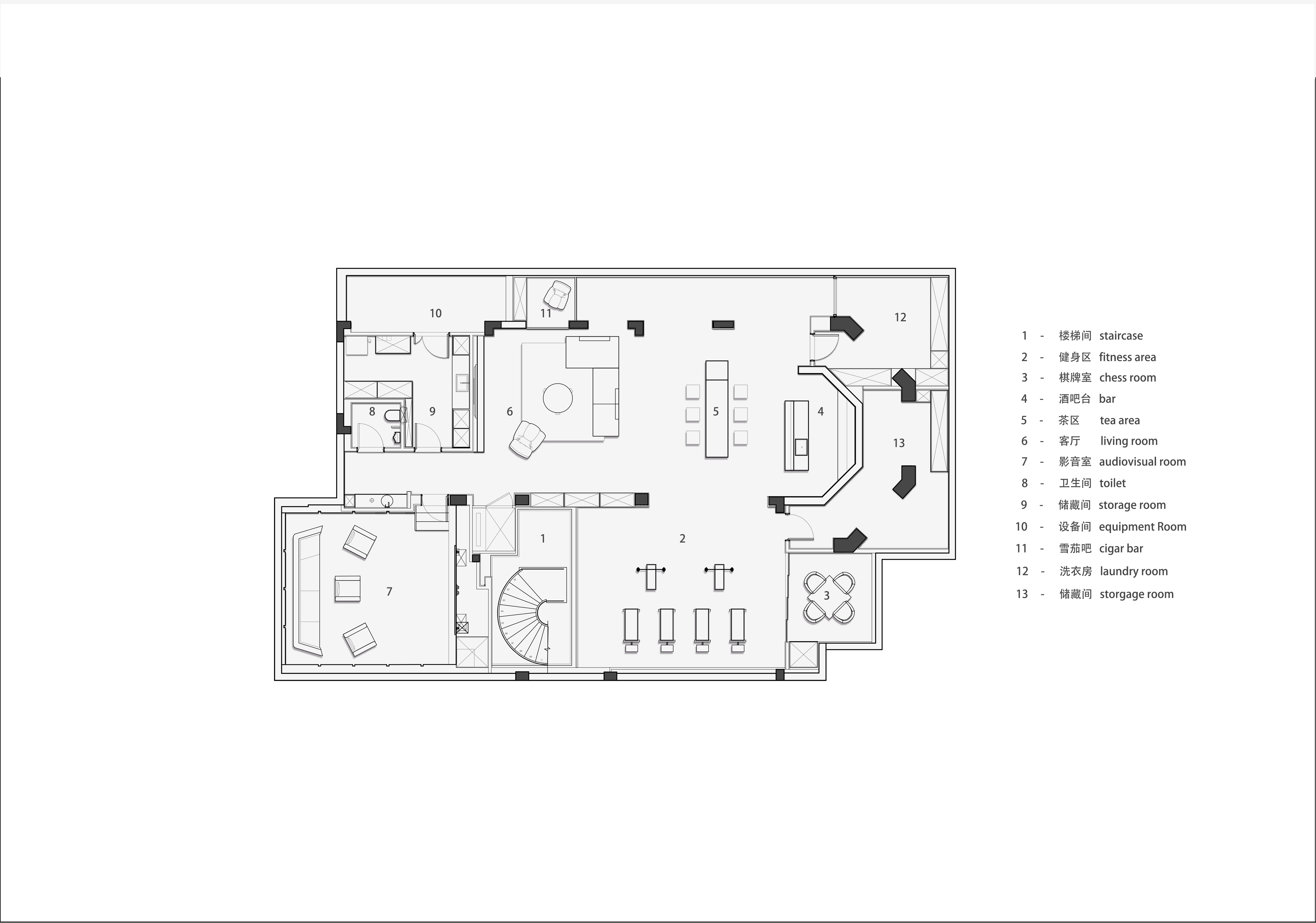
빛이 관통하는 집
지하층까지 연결되는 천창은 이 집의 핵심 장치다. 빛은 수직으로 떨어지며 자연과 가까워지는 감각을 만들고, 공기 흐름을 개선하며 공간의 깊이를 확장한다. 지하는 마이크로 시멘트 마감으로 통일해 밝은 빛이 부드럽게 반사되도록 했으며, 개인 체육실·바·라운지가 배치돼 실용성과 개방성이 공존한다. 야외 안뜰은 간결한 선형 디자인과 조명, 식재, 그리고 중앙 화덕으로 구성되며, 밤이 되면 빛과 불이 공간의 분위기를 완성한다. 빠르고 복잡한 현대의 삶 속에서 건축가는 사람들이 자연 속에서 잠시 속도를 늦추고 자신을 회복할 수 있는 공간을 만들고자 했다. 이 강섬의 집은 그에 대한 하나의 해답이다.


























건축가 지상 스페이스 디자인 (Jishang Space Design)
위치 중국, 원저우, 저장
용도 단독주택
연면적 1,000㎡
규모 지하 1층, 지상 3층
설계기간 2020
준공 2023
사진작가 Hanmo Visual - Ye Song, A‘xuan
'Architecture Project > Single Family' 카테고리의 다른 글
| 중정으로 삶을 구성하는 지중해형 주거 실험 / 투보 아키텍투라 (0) | 2025.11.28 |
|---|---|
| 산업화된 목구조와 기후 감각, 모듈러 바이아 프로젝트 / 우나 바르바라 이 발렌팀 (0) | 2025.11.27 |
| 두 가족을 위한 하나의 집, 회랑이 만드는 머무름의 건축 / 투닷 아키텍츠 앤 파트너스 (0) | 2025.11.26 |
| 사막의 고요함을 프레임에 담는 목조 주택 / 라이언 라이드너 아키텍처 (0) | 2025.11.25 |
| 강변 지형을 품은 패시브 하우스의 실험 / 워크에이시 (0) | 2025.11.25 |
마실와이드 | 등록번호 : 서울, 아03630 | 등록일자 : 2015년 03월 11일 | 마실와이드 | 발행ㆍ편집인 : 김명규 | 청소년보호책임자 : 최지희 | 발행소 : 서울시 마포구 월드컵로8길 45-8 1층 | 발행일자 : 매일



