
자연과 연결되는 배움의 정원
EDU-GARDEN
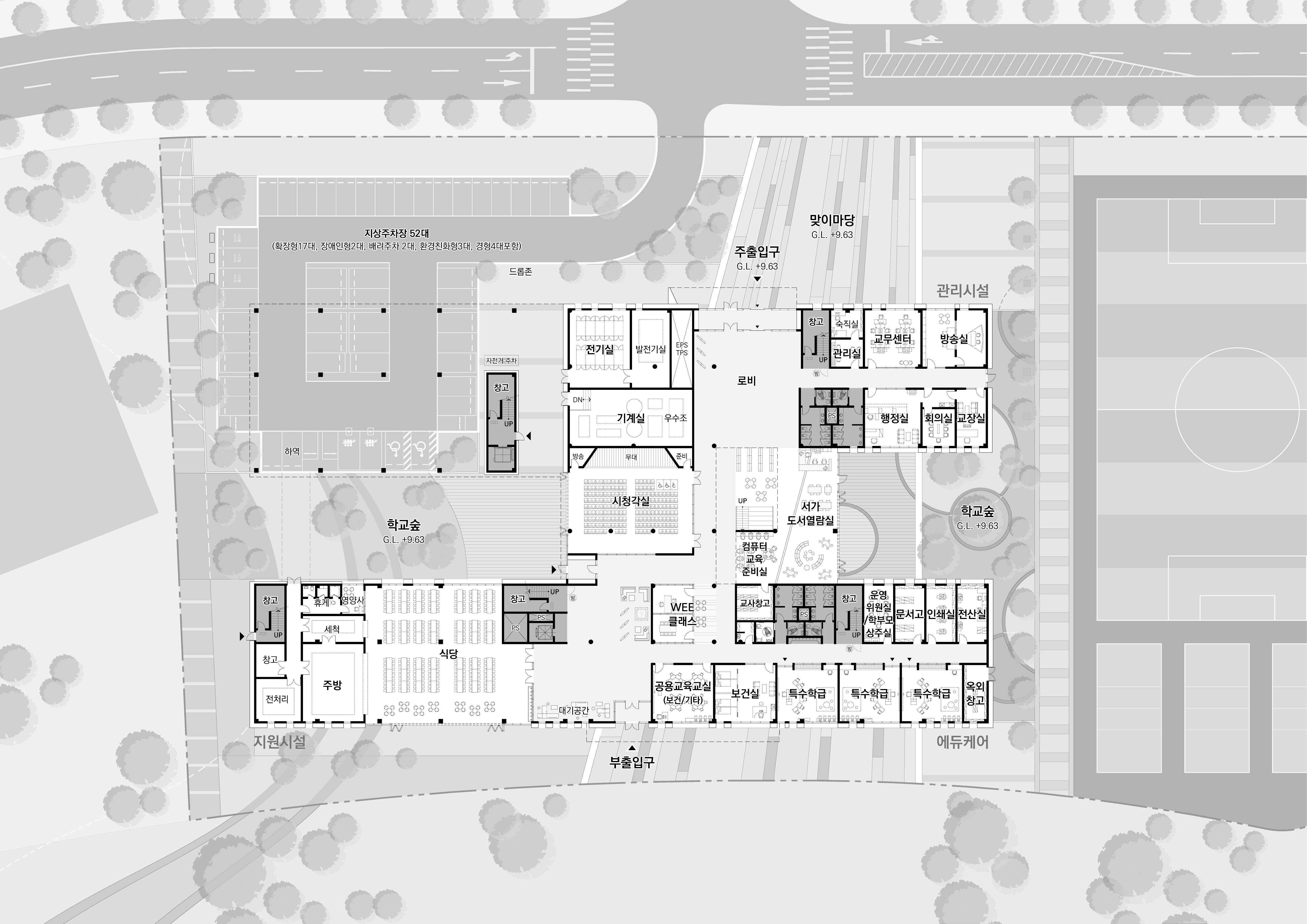
새롭게 개발되는 시흥거모 공공주택지구 내에 위치하는 거모1중학교는 남측과 동측에 공원으로 둘러싸여있다. 대상지의 형상을 반영한 매스는 공원을 향해 양방향 열려있어 어디서나 공원조망이 가능한 교육공간을 계획하였다. 도시의 맥락을 따라 열린 주민개방시설은 학교숲과 연계하여 다채로운 커뮤니티 환경을 제공하고 자연과 함께하는 실내광장을 통해 학생들이 건강한 꿈을 키울 수 있는 자연친화적인 학교 “EDU-GARDEN”을 계획하였다.
CULTURE GARDEN_ 지역주민과 학생의 교류를 이끄는 학교
주거단지와 공원을 연결하는 보행로에서 내어주는 개방공간(도서실, 시청각실, 식당 등)계획으로 지역사회와 교류하고 일상을 연결하는 학교 계획
GREEN GARDEN_ 자연과 조화롭게 하나되는 학교
남측 체육공원과의 적극적인 연계와 학교숲 배치로 녹음을 끌어들이고 자연 속 다채로운 교육 환경을 만드는 자연친화적 공간 마련
CREATIVE GARDEN_ 다채로운 교류를 담은 커뮤니티 학교
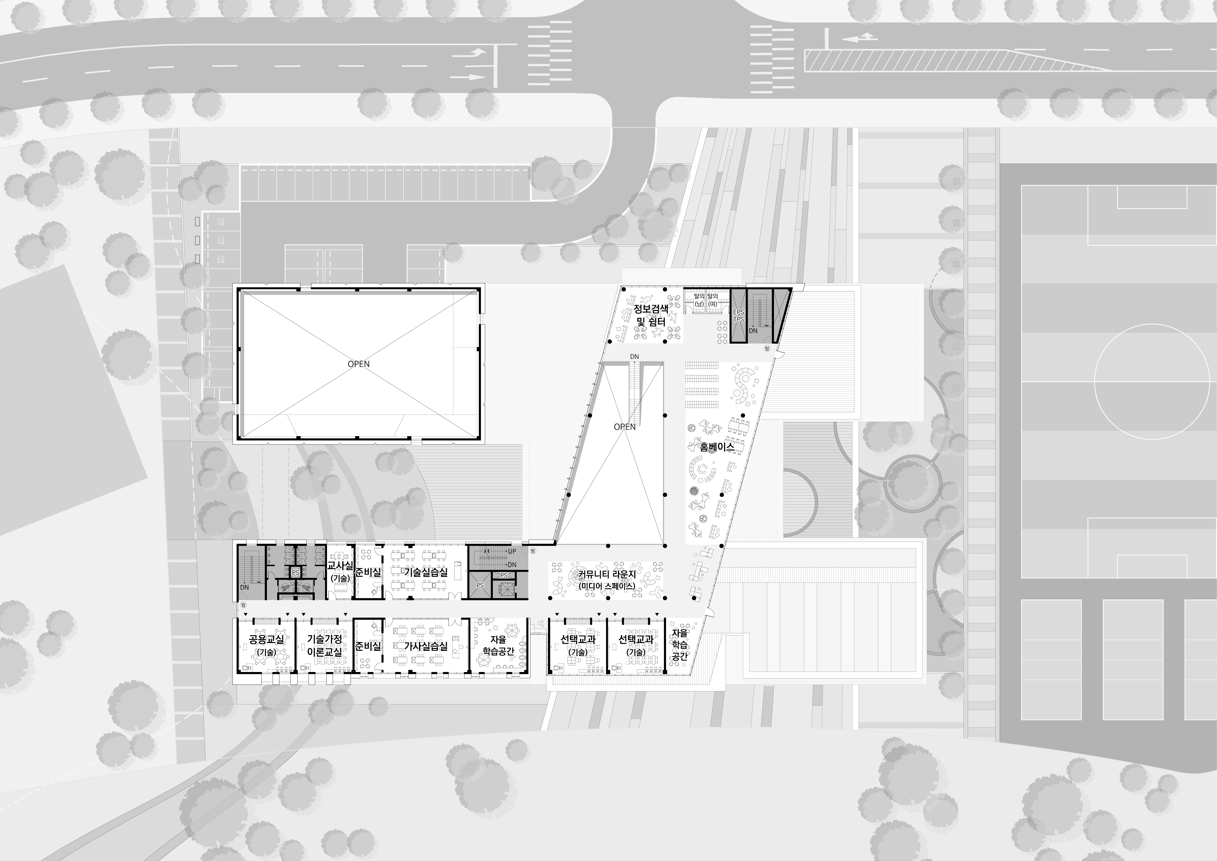
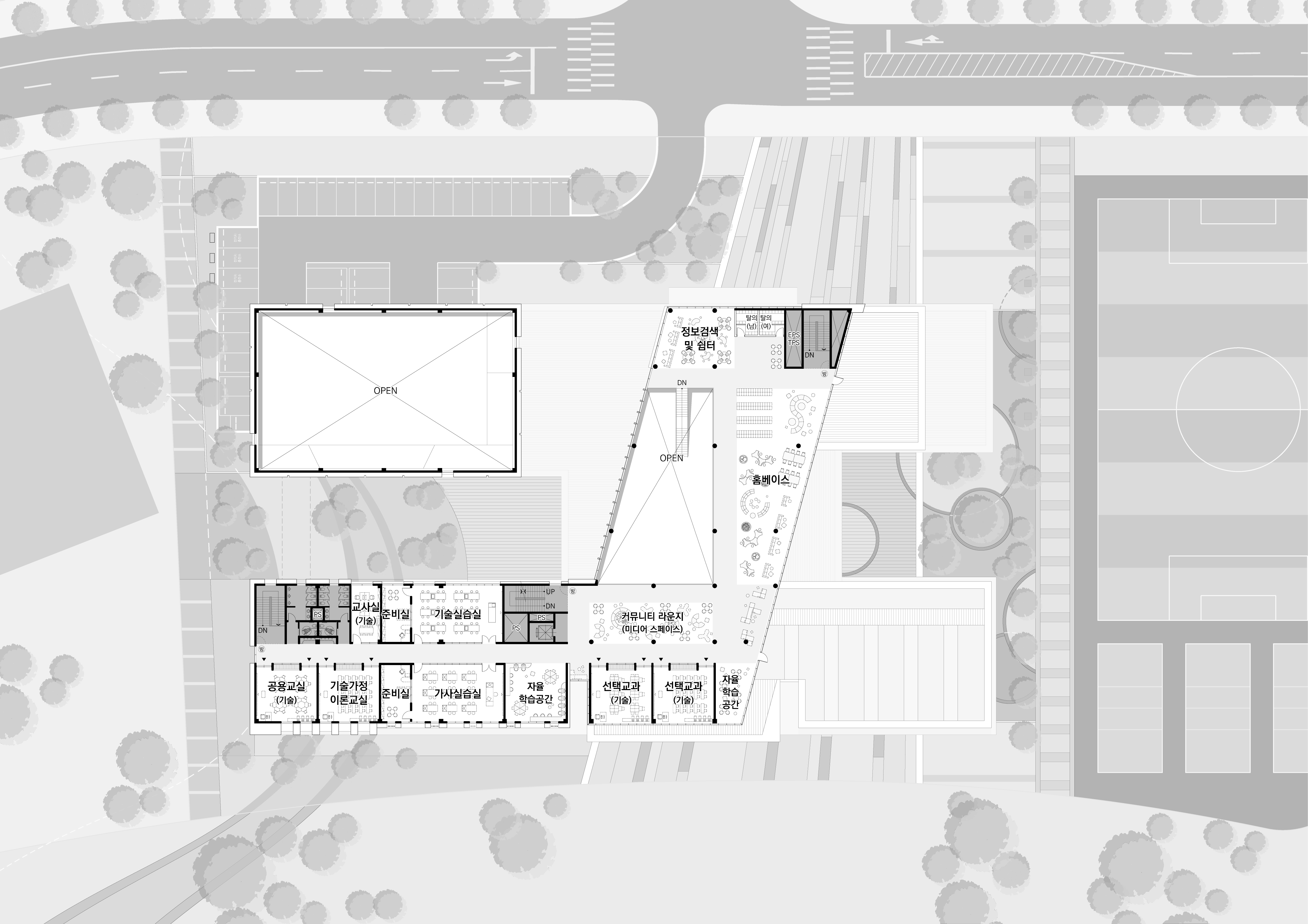
1층부터 4층까지 연결하는 계단과 열린 아트리움, 체육공원을 바라보는 홈베이스 계획으로 쾌적하고 다양한 커뮤니티를 제공하는 실내광장 조성
동측의 공원에서 시작되는 프레임 디자인은 자연의 흐름을 유입하며, 도시 스케일을 반영한 입면의 분절로 주변 환경과 조화로운 입면을 조성하였다. 교과교실 입면 패턴의 모듈화계획과 리듬감 있는 루버 디자인은 안정적인면서도 다채로운 학습공간을 표현하였으며, 교과교실과 특별교실 중심의 열린 홈베이스는 다채로운 공감간과 열린 조망을 가진 공간을 제공한다.











(주)인오건축사사무소
당선작_ (주)인오건축사사무소(https://www.inoarc.co.kr)
대표건축가 오세숙
대지면적 14,000.00㎡
연면적 10,429.08㎡
건축면적 4,173.47㎡
건폐율 29.81%
용적률 74.49%
최고높이 17.40m
층수 지상 4층
구조 철근콘크리트구조, 철근철골콘트리트구조
대표건축가 오세숙
디자인팀 오세숙, 하설휘, 박세리, 고병국, 노유진
조경면적 2,494.43㎡
주차대수 52대
발주처 경기도교육청
'Plans' 카테고리의 다른 글
| (가칭)학곡초등학교 신축공사 설계용역 제안공모_ 당선작 / 건축사사무소 이름 (0) | 2025.11.24 |
|---|---|
| 첫 대전시청사 보존 및 활용을 위한 복원보수 공사 설계공모(제안공모)_ 3등작 / 바운더리스 건축사사무소 (0) | 2025.11.24 |
| 익산시 다이로운-모아복합센터 건립사업_ 3등작 / 레이어스건축사사무소 (0) | 2025.11.21 |
| 우신고등학교 강당 겸 체육관 증축사업_ 5등작 / 사이공간건축사사무소 (0) | 2025.11.17 |
| 조정훈련장 조성사업 기본 및 실시설계 공모_ 2등작 / 건축사사무소 미션오브젝트 (0) | 2025.11.17 |
마실와이드 | 등록번호 : 서울, 아03630 | 등록일자 : 2015년 03월 11일 | 마실와이드 | 발행ㆍ편집인 : 김명규 | 청소년보호책임자 : 최지희 | 발행소 : 서울시 마포구 월드컵로8길 45-8 1층 | 발행일자 : 매일



