
“적층과 병치”
증축은 건물이 지니고 있는 컨텍스트에서 시작된다. 기존 건축이 어떤 배치를 지니고 있는지, 어떻게 연결될 수 있는지, 어떤 재료를 감싸고 있는지가 설계의 시작점이자 주안점이다. 좋은 증축은 새로운 매스의 적층에 따라 비로소 완벽해지고, 그렇지 못할 경우 덧붙여진것 처럼 부각되고 볼썽사나워진다.
최초 건물이 지어지고, 추가로 연결통로가 만들어지며 체육관 건물은 이미 많은 재료들이 사용되었다. 이에 새로운 재료를 사용하기 보다는, 기존의 재료와 조화를 이루면서 일부는 투명하게 병치되어 보여지길 의도했다. 수직/수평적으로 펼쳐지는 엘리베이터와 연결통로는 최대한 투명하게 주변을 감싸안으며 조화롭게 결합되고 벽돌의 매스는 적층되어 볼륨감을 완성시키고자 했다. 역설적으로 증축에 따라 완성된 건축을 상상해 본다.
“증축과 결합”
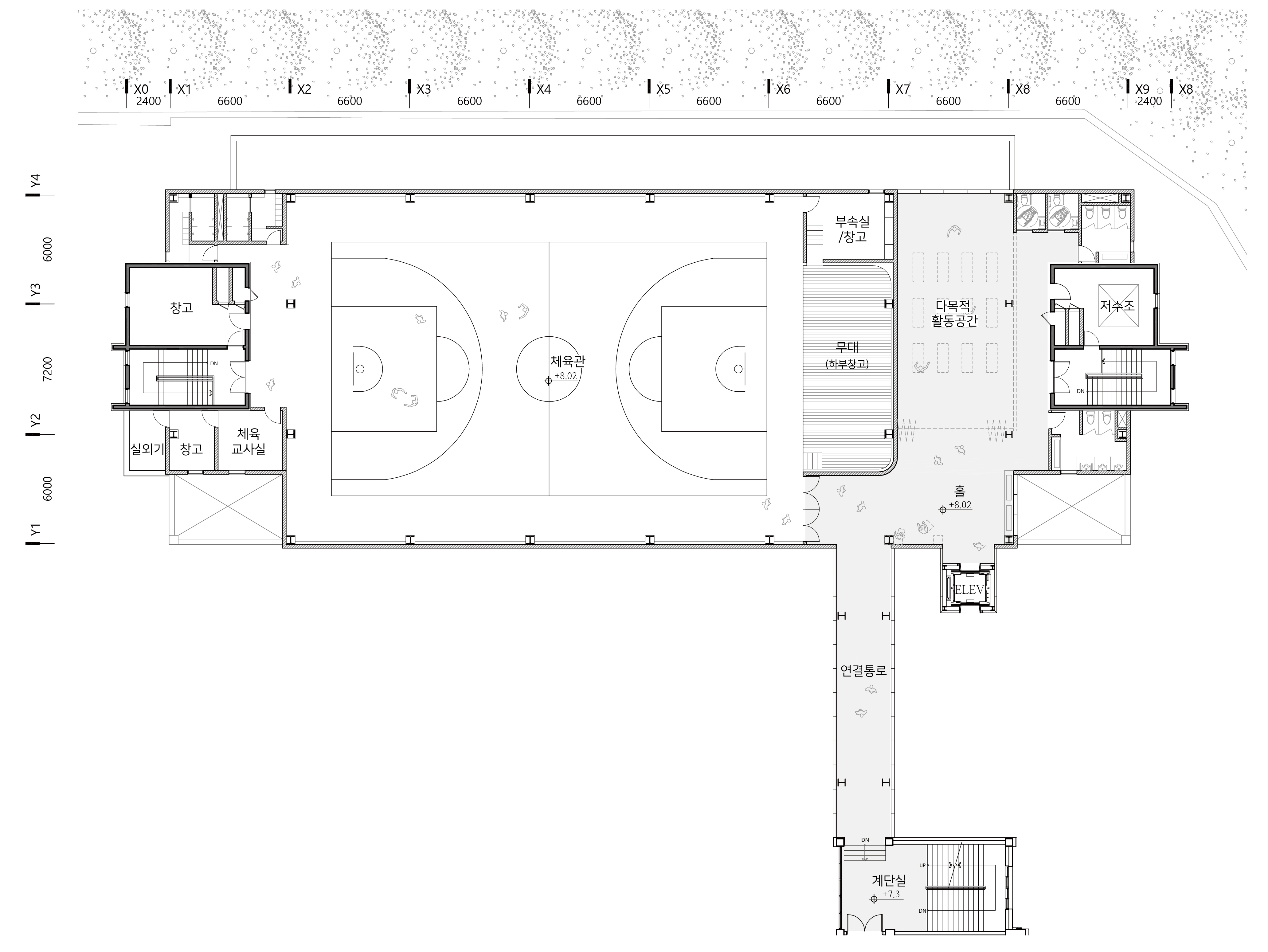
현대 학교 건축에 있어 결합은 필수적이다. 도서관과 식당이 결합되기도 하고 체육관과 교실이 결합되기도 한다. 우신중고등학교는 조금씩 증축을 거듭하여 분동으로 배치되어 있으며, 금번 증축공사에서는 식당과 교실 위에 체육관이 결합된다. 엘리베이터와 연결통로를 신설하여 기존학교와 연결하고, 투명한 외피로 하여금 개방감 있고 조화롭게 계획하였다.






사이공간건축사사무소
5등작_ 사이공간건축사사무소(https://ibspace.kr/)
대표건축가 서성민
대지면적 56,694㎡
연면적 20,369.26(증축 974.07)㎡
건축면적 6,779.16㎡
건폐율 11.95%
용적률 35.92%
최고높이 17m
층수 지상 3층
구조 철근콘크리트+철골구조
대표건축가 서성민
주차대수 증축 5대
발주처 우신고등학교
'Plans' 카테고리의 다른 글
| (가칭)거모1중 신축 설계공모_ 당선작 / (주)인오건축사사무소 (0) | 2025.11.21 |
|---|---|
| 익산시 다이로운-모아복합센터 건립사업_ 3등작 / 레이어스건축사사무소 (0) | 2025.11.21 |
| 조정훈련장 조성사업 기본 및 실시설계 공모_ 2등작 / 건축사사무소 미션오브젝트 (0) | 2025.11.17 |
| 김제 힐스타운 시암 커뮤니티센터 조성사업 건축설계 제안공모_ 2등작 / 포치건축사사무소 (0) | 2025.11.14 |
| 사천시 공공산후조리원 건립사업 설계공모_ 2등작 / 아우트 건축사사무소 (0) | 2025.11.14 |
마실와이드 | 등록번호 : 서울, 아03630 | 등록일자 : 2015년 03월 11일 | 마실와이드 | 발행ㆍ편집인 : 김명규 | 청소년보호책임자 : 최지희 | 발행소 : 서울시 마포구 월드컵로8길 45-8 1층 | 발행일자 : 매일



