
Rarin, the wedding venue
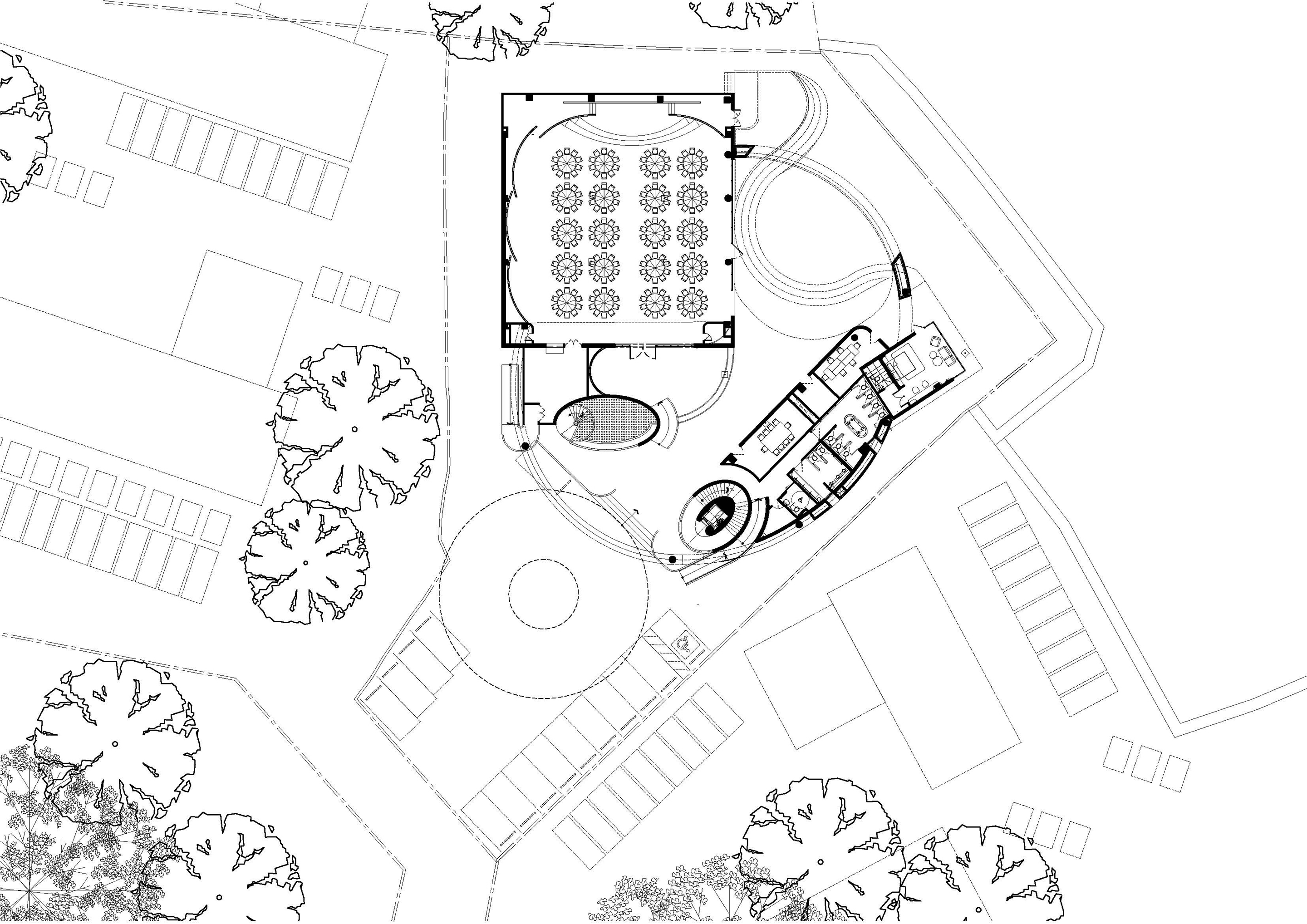
강변에 자리한 웨딩 베뉴 ‘더 라린(The Rarin)’은 결혼반지를 형상화한 원형 건축으로, 결합과 조화의 상징성을 공간에 담았다. 매끄럽게 이어지는 곡선형 입면은 유려한 시각적 리듬을 만들며, 두 개의 중정이 서로 엮이듯 연결되어 마치 반지의 연결고리처럼 공간을 이어준다.
메인 입구를 지나면 자연광이 가득한 타원형 중정이 방문객을 맞이한다. 하늘로 열린 큰 보이드가 지상층부터 천장까지 빛을 끌어들이며, 따뜻하고 평온한 분위기를 형성한다. 중앙에는 우아한 곡선의 나선형 계단이 자리해 시선의 중심이자 상층으로의 동선을 자연스럽게 유도한다. 이 중정을 따라 올라가면 약 80석 규모의 레스토랑과 약혼식을 위한 공간이 이어지며, 차오프라야 강을 180도로 조망할 수 있다. 레스토랑은 파노라마 뷰를 유지한 채 이벤트 공간으로도 전환 가능하다.
지상층에서는 반지 형태의 복도를 따라 천장 조명의 흐름이 길을 안내하며 메인 홀로 이어진다. 넓고 개방적인 메인 홀은 다이닝과 댄스가 동시에 이루어질 수 있는 유연한 공간으로, 각 웨딩의 개성을 살릴 수 있는 아늑한 분위기를 유지한다. 건물의 후면에는 넓은 야외 중정이 펼쳐져 있으며, 잔디와 가벼운 가구 배치로 실내와 실외가 자연스럽게 이어진다. 이곳은 하늘 아래에서의 예식이나 리셉션이 가능하도록 설계되었다.
옥상에는 애프터파티 루프탑 바가 계획되어 있으며, 2025년 말 완공을 목표로 하고 있다. ‘더 라린’의 전체 형태와 공간은 사랑을 상징하는 반지의 구조와 감정에서 출발했다. 편안하면서도 잊히지 않는 경험을 제공하도록 세심하게 설계된 이 웨딩 베뉴는, 가족과 친구가 함께하는 사랑의 순간을 위한 성소이자 기념의 장소이다.











































건축가 에이에스더블유에이 (ASWA, Architectural Studio of Work-Aholic)
위치 태국, 방콕
용도 웨딩베뉴, 레스토랑, 바
프로젝트면적 2,000 ㎡
규모 지상 2층
준공 2025
디자인팀 Phuttipan Aswakool, Chotiros Techamongklapiwat, , Puwan Wattanajarungrat, Ananya Rakaphai, Peerada Porkaew, Napasorn Luengkiattikhun
인테리어 ASWA
사진작가 SkyGround architectural film & photography
'Architecture Project > Hospitality' 카테고리의 다른 글
| 번개 이후의 재건, 지역을 다시 묶는 목구조 온천 / 야노 아오야마 아키텍처 디자인 (0) | 2025.12.18 |
|---|---|
| 프라하의 현대를 품은 복원, ‘페어몬트 골든 프라하’로 다시 태어난 브루탈리즘 호텔/ 타크 아키텍츠 (0) | 2025.11.12 |
| 토착 재료와 현대적 감각이 만난 고지대 쉼터 / 피티에이에이 (0) | 2025.09.29 |
| 태국의 빛과 패턴으로 물든 시암 스퀘어의 호텔 / 에이에스더블유에이 (0) | 2025.09.26 |
| 여백으로 만드는 공간, 문화가령 / 백에이 어소시에이츠 (0) | 2025.09.25 |
마실와이드 | 등록번호 : 서울, 아03630 | 등록일자 : 2015년 03월 11일 | 마실와이드 | 발행ㆍ편집인 : 김명규 | 청소년보호책임자 : 최지희 | 발행소 : 서울시 마포구 월드컵로8길 45-8 1층 | 발행일자 : 매일



