
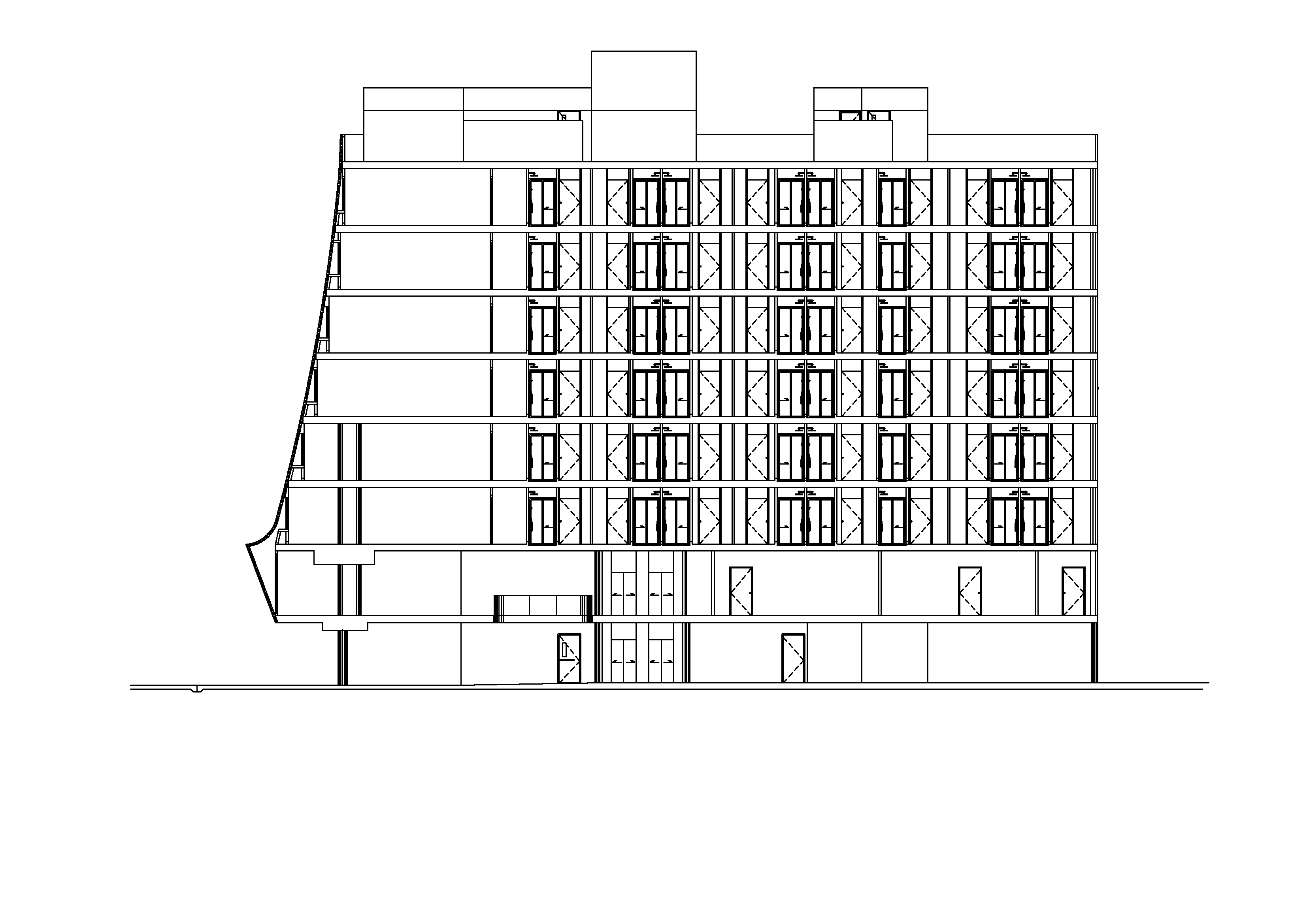
Vela be Siam hotel
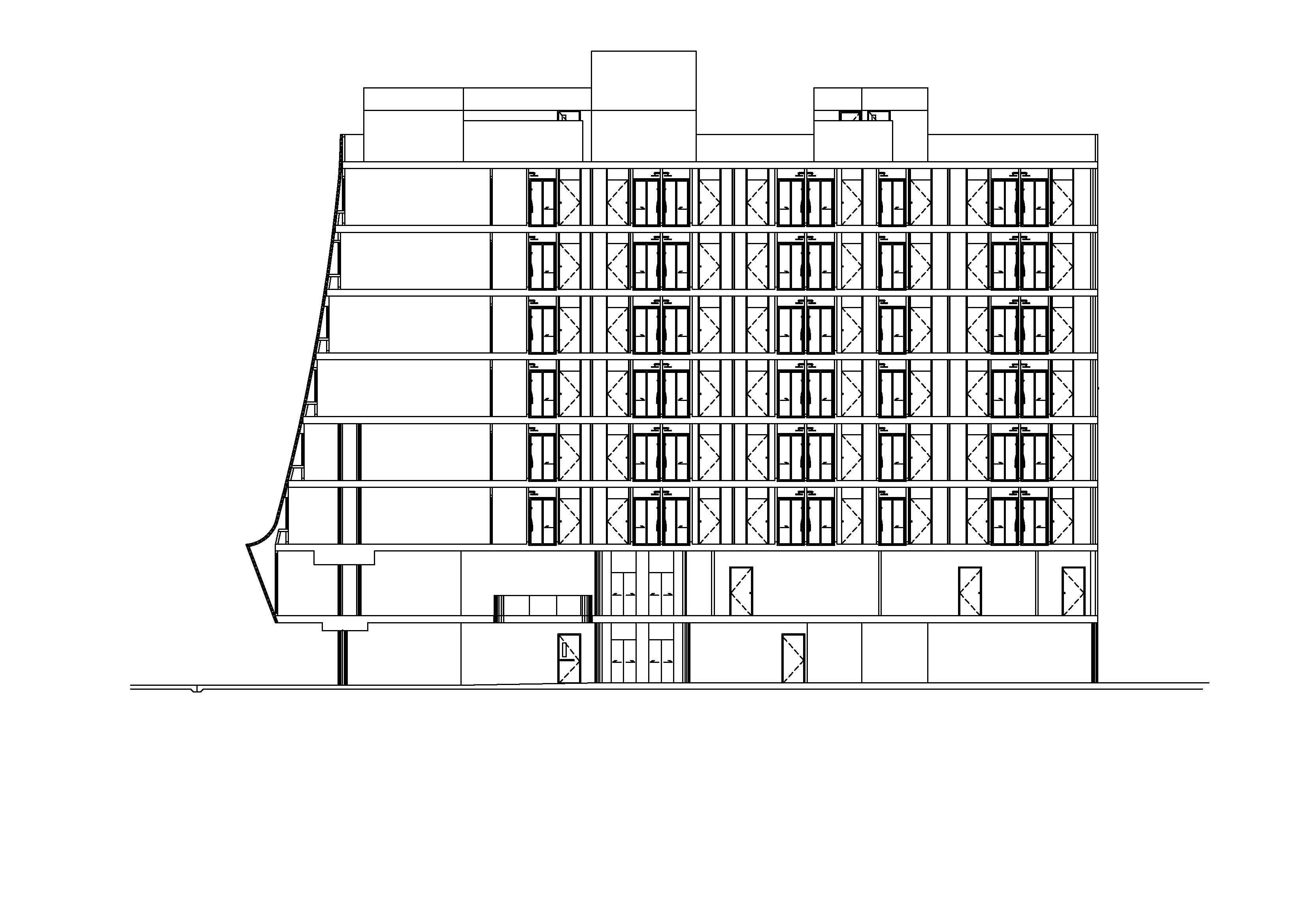
방콕 시암 스퀘어의 중심부에 새로운 디자인 호텔이 문을 열었다. 시암 스퀘어는 다채로운 문화적 결이 뒤섞인 역동적인 장소로, 이 호텔은 그 맥락 속에서 전통 태국 건축 요소와 현대적 해석을 절묘하게 결합한 파사드로 주목받는다. 특히 태국 전통 가옥에 사용되던 정교한 조각 장식 ‘푼-롬(Pun-Lom)’을 적용해 지역적 유산을 상징했으며, 외관에는 스테인리스 스틸 체인 링크를 더해 현대적 감각을 표현했다. 이는 과거 태국 가정에서 모기장을 침대 위에 드리우던 풍습을 기념하는 장치로, 과거와 현재를 잇는 건축적 대화가 된다.
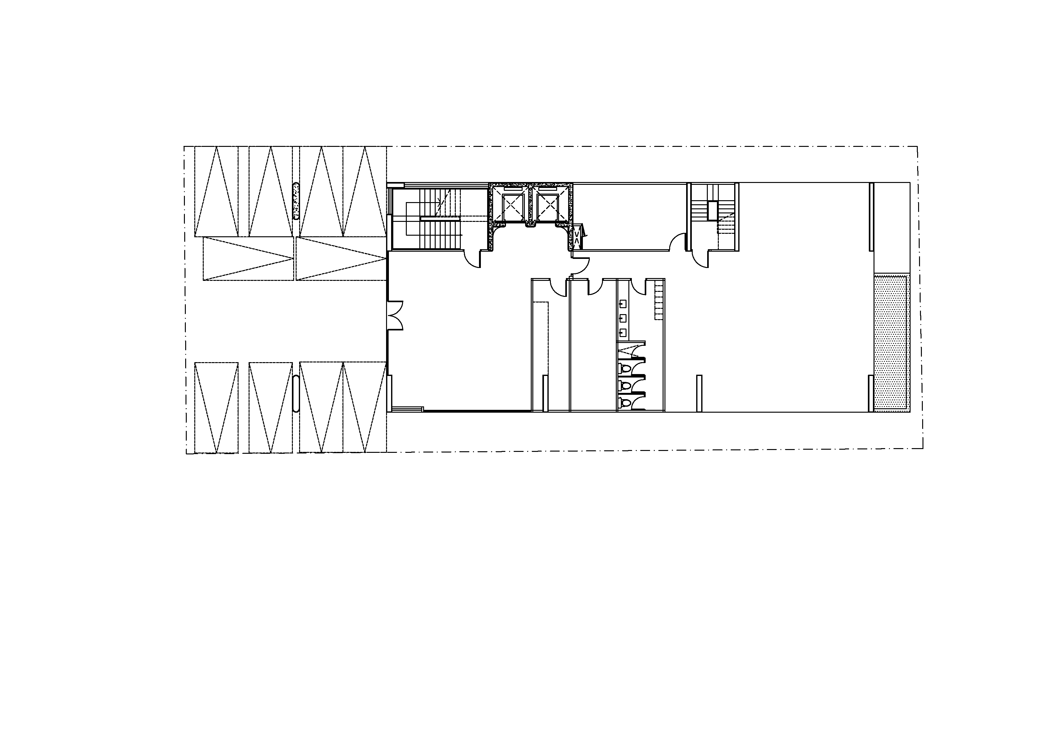
실내에 들어서면 태국의 본질을 담은 생동감 넘치는 색채 팔레트가 펼쳐진다. 공용 공간은 특히 화려한 색과 무늬로 꾸며져, 활기를 불어넣고 사람들 간의 교류를 촉진하는 장으로 작동한다. 로비는 초록색 배경 앞에 주황색 자갈 모양의 리셉션 데스크가 놓여 시각적 긴장감을 자아내며, 이중 높이의 천장은 공간을 시원하게 열어 위층의 노랑과 검정 톤의 커먼 에리어를 자연스럽게 드러낸다. 2층의 다목적 공간은 업무, 식사, 휴식이 모두 가능한 구성으로 호텔의 공동체적 성격을 강화한다.
로비 뒤편에는 수영장 바가 위치해 있다. 울창한 녹지와 물의 요소가 어우러진 이곳은 도심 속 오아시스 같은 고요함을 제공하며, 활기찬 호텔 내부 분위기와 극적인 대조를 이룬다.
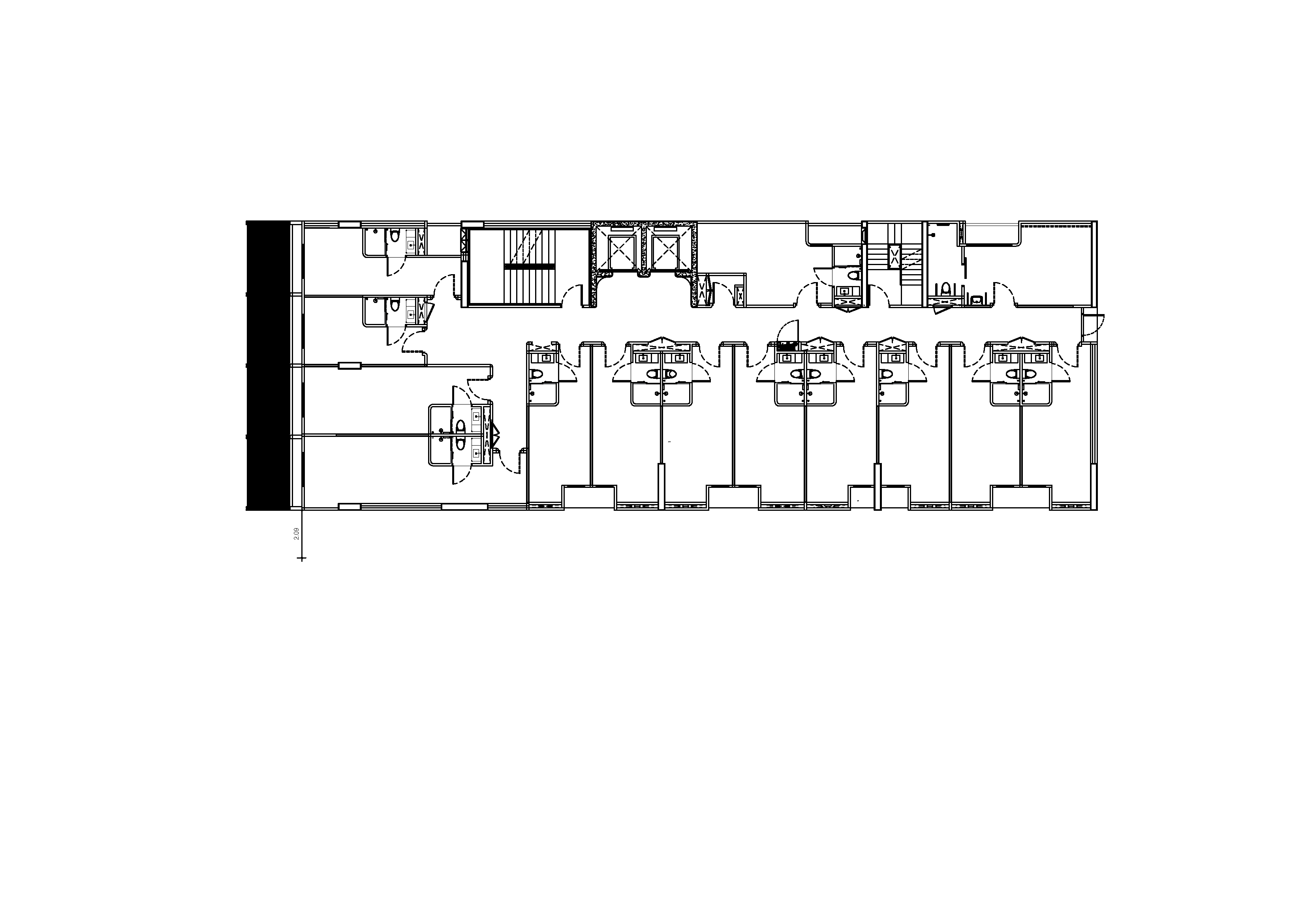
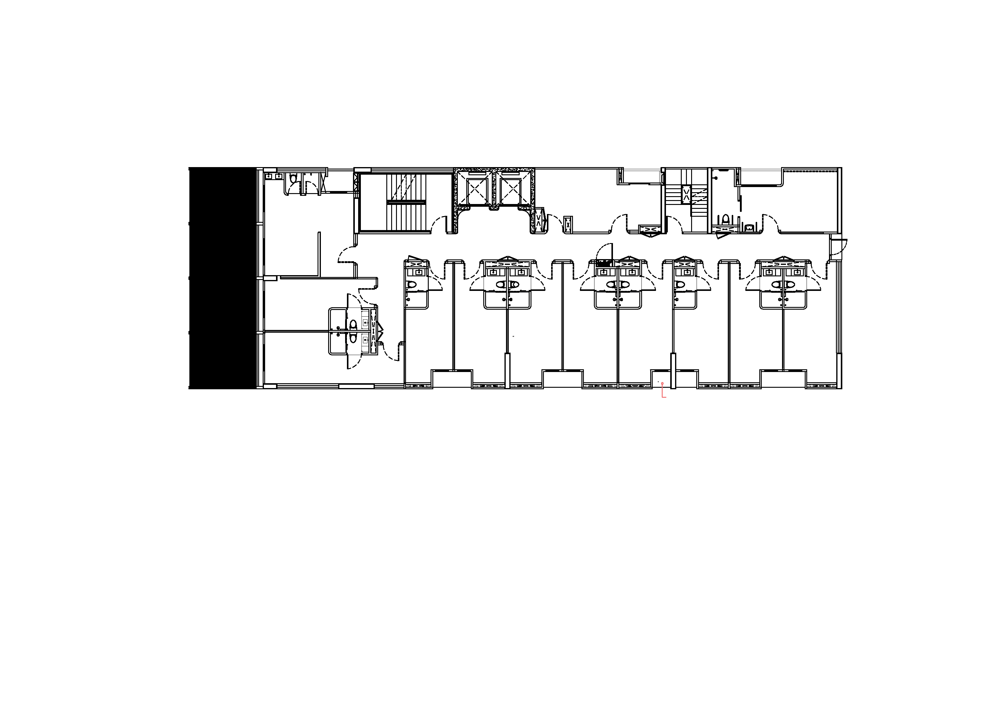
각 층은 층수를 표시하는 고유한 색으로 디자인된 엘리베이터 홀을 통해 개성을 드러낸다. 객실에 가까워질수록 색은 점차 차분하고 은은하게 전환되며, 숙면을 위한 안정적인 분위기를 조성한다. 그러나 차분함 속에서도 장난스러운 요소는 이어진다. 욕실 외벽은 다채로운 타일 패턴으로 마감되어 즐거운 리듬감을 공간에 불어넣는다.
이 호텔은 활기와 평온, 두 상반된 기운을 조화롭게 결합시킨다. 투숙객은 머무는 동안 생동감 넘치는 경험과 편안한 휴식을 동시에 누리며, 도시의 맥락을 새롭게 체험하게 된다.



























































건축가 에이에스더블유에이 (ASWA, Architectural Studio of Work - Aholic)
위치 태국, 방콕
용도 호텔
건축면적 2,500㎡
규모 지상 9층
준공 2025
인테리어 ASWA (Architectural Studio of Work - Aholic)
사진작가 Soopakorn Srisakul
'Architecture Project > Hospitality' 카테고리의 다른 글
| 결합의 공간, 반지를 닮은 웨딩 베뉴/ 에이에스더블유에이 (0) | 2025.10.30 |
|---|---|
| 토착 재료와 현대적 감각이 만난 고지대 쉼터 / 피티에이에이 (0) | 2025.09.29 |
| 여백으로 만드는 공간, 문화가령 / 백에이 어소시에이츠 (0) | 2025.09.25 |
| 강바람을 품은 경계의 여행자 센터 / 아틀리에 타오+씨 (0) | 2025.09.24 |
| 풍경과 호응하는 집의 집합체, 콘도미니엄 호텔 / 니켄 세케이 (0) | 2025.09.23 |
마실와이드 | 등록번호 : 서울, 아03630 | 등록일자 : 2015년 03월 11일 | 마실와이드 | 발행ㆍ편집인 : 김명규 | 청소년보호책임자 : 최지희 | 발행소 : 서울시 마포구 월드컵로8길 45-8 1층 | 발행일자 : 매일



