
FACTORY HQ
디자인 개념
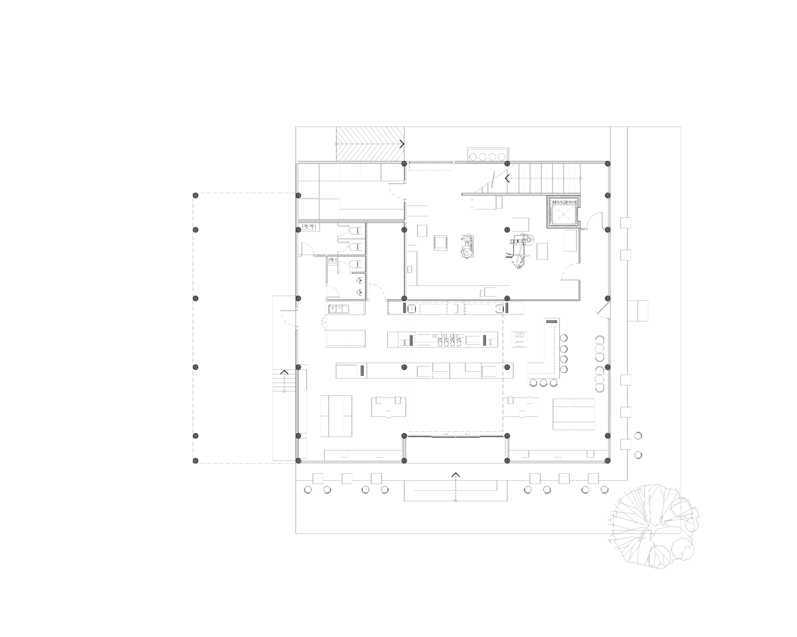
팩토리 HQ는 산업공장의 미학에서 영감을 받아, 노출된 재료와 현대적 디자인 요소를 조화롭게 결합한 공간이다. 중심에는 효율적인 동선을 고려한 카운터 바가 자리하며, 그 뒤편에는 유리벽으로 둘러싸인 로스팅실이 있어 고객이 커피 로스팅 과정을 직접 볼 수 있다. 이 개방적인 구조는 브랜드의 핵심인 ‘Factory’ 아이덴티티를 강조하며, 그린 포인트 컬러와 콤팩트 라미네이트 소재를 통해 견고하고 진정성 있는 분위기를 구현했다. 또한, 폴리카보네이트 패널을 통해 자연광이 부드럽게 유입되어, 에너지 효율을 높이면서도 밝고 환기된 공간감을 완성한다.
공간의 재해석
이전에는 폐쇄적이고 답답했던 구조가, 세 면의 벽을 개방하고 외관 전체를 반투명 폴리카보네이트로 감싸는 방식으로 재탄생했다. 이 소재는 햇빛을 부드럽게 확산시키는 동시에 우수한 단열 성능을 갖추고 있다. 2층에는 천창 형태의 개구부(보이드) 를 만들어, 자연광이 1층 카운터까지 깊게 스며들도록 하여 구조적 효율성과 공간적 개방감을 모두 확보했다.
기능성과 투명성의 결합
카운터 영역은 커피 바의 실제 운영 동선에 맞춰 세심하게 설계되었다. 그 뒤의 유리벽 로스팅 구역에서는 고객이 원두가 볶이는 과정을 시각적으로 경험할 수 있어, 브랜드의 품질과 장인정신을 직접적으로 느끼게 한다.
층간의 연결과 경험의 확장
2층은 워크숍과 오피스 공간으로, 다양한 커피 머신이 전시되어 있다. 이 개방적 구조는 단순한 카페를 넘어, 커피 문화를 배우고 체험할 수 있는 교육적 공간으로서의 정체성을 강화한다.
형태와 기능의 조화
팩토리 HQ는 산업적 디자인 언어를 현대적으로 재해석하여, 기능성과 미적 완성도를 모두 갖춘 공간이다. 브랜드의 정체성이 자연스럽게 공간 속에 스며들며, 커피 제조 과정의 ‘공정미’를 감각적으로 드러낸다. 이곳은 단순한 커피숍이 아니라, 브랜드 스토리가 공간으로 구현된 하나의 ‘플랫폼’이다

























건축가 테이스트 스페이스 (Taste Space Co., Ltd.)
위치 태국, 방콕, 팝플라, 왕통랑, 프라딧마누탐 로드 2
용도 카페, 업무시설
프로젝트면적 580㎡
준공 2024. 6. 8.
사진작가 Mr.Jinnawat Borihankijanan
'Architecture Project > Retail' 카테고리의 다른 글
| 세 개의 비대칭 지붕이 만든 새로운 캠퍼스 중심지, HEYDAY / 에이에스더블유에이 (0) | 2025.12.03 |
|---|---|
| 파동과 지붕의 미학: 자연을 끌어안은 티하우스 / 6717스튜디오 (0) | 2025.11.25 |
| 머무름의 여정을 위한 공간, 스테이모어 플래그십 스토어/ 스테이 아키텍츠 건축사사무소 (0) | 2025.09.03 |
| 과자의 모양을 담은 공간, 로아커 플래그십 스토어/ 모더스아키텍츠 (0) | 2025.05.30 |
| 물결치는 박공지붕 사이로 나무가 자라는 카페 / 아이딘 아키텍츠 컴퍼니 리미티드 (0) | 2025.05.14 |
마실와이드 | 등록번호 : 서울, 아03630 | 등록일자 : 2015년 03월 11일 | 마실와이드 | 발행ㆍ편집인 : 김명규 | 청소년보호책임자 : 최지희 | 발행소 : 서울시 마포구 월드컵로8길 45-8 1층 | 발행일자 : 매일



