
Loacker Galaxy
Loacker Galaxy는 오스트리아 하인펠스에 위치한 로아커 본사 플래그십 스토어의 전면 리모델링 프로젝트로, 브랜드 100주년을 기념하여 매장, 카페, 생산 공간, 야외 시설까지 전반적으로 새롭게 구성되었다.



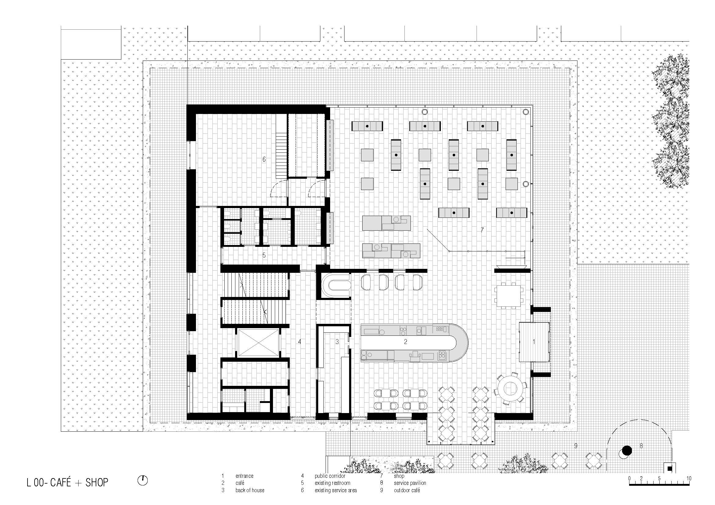
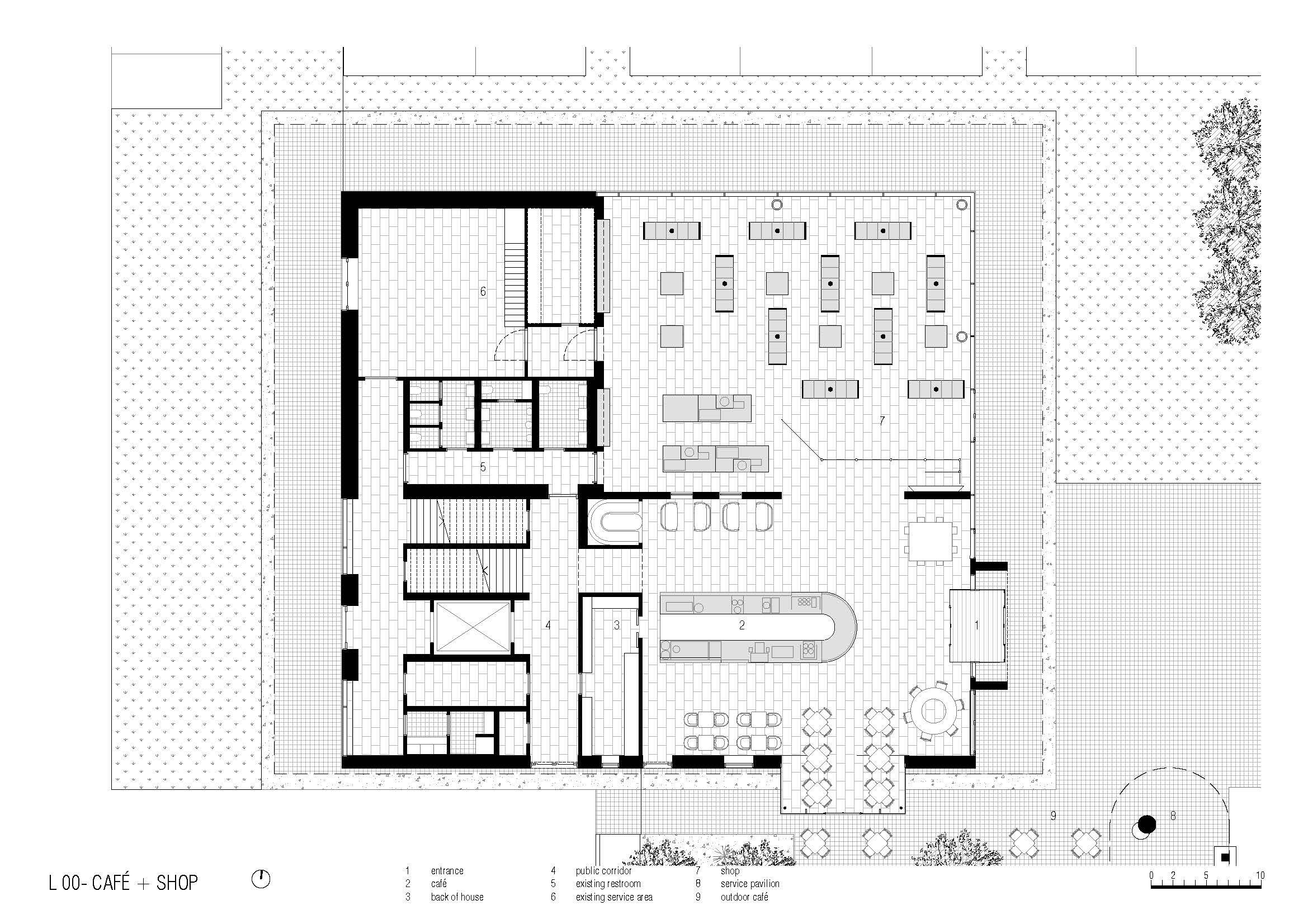
1층의 카페와 매장은 목재와 스테인리스 스틸을 중심으로 구성되었으며, 천장에는 웨하스 패턴에서 착안한 격자형 목재 천장이 설치되어 바닥의 기존 석재와 대비를 이룬다. 입구에는 조각 형태의 스테인리스 카운터가 중심을 이루며, 매장 내부에는 높이 2.5m가 넘는 회전형 선반 토템 10개가 배치되어 다양한 제품을 진열하는 유연한 구조를 제공한다. 이 토템 뒤편에는 수직 형태의 픽 앤 믹스 디스플레이가 설치되어 색상과 제품의 다양성을 강조한다.




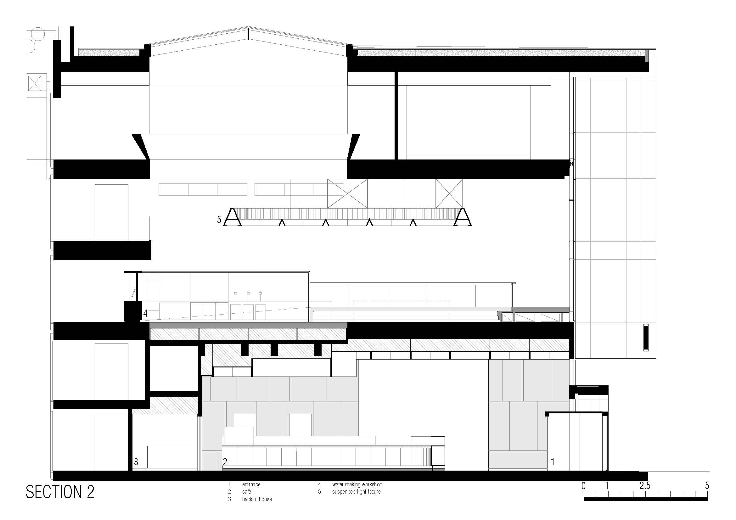
2층에는 직접 웨하스를 제작할 수 있는 체험형 작업장이 마련되었으며, 타원형 조형의 조리대와 대형 원형 조명이 중심을 형성해 극적인 공간감을 연출한다. 바닥은 붉은 타일로 마감되고, 주변은 블랙 밀워크로 테두리 처리되어 조리 공간과 관람 공간이 분리된다. 야외 공간은 유리 전실을 통해 연결되며, 향후 개장 예정인 헤이즐넛 정원과 어린이 놀이터와 이어진다. 야외 파빌리온은 주차 공간과 카페 사이의 경계를 형성하며, 내부 공간의 재료와 조형을 외부에 미리 보여주는 장치로 작용한다. 전체 프로젝트는 브랜드의 정체성과 생산 철학을 반영하면서도 새로운 관람 경험을 제공하는 디자인 공간으로 완성되었다.






건축가 모더스아키텍츠 (MoDusArchitects)
위치 오스트리아, 하인펠스, 판첸도르프 196, 9919
연면적 780㎡
설계기간 2023 - 2024
준공 2024
디자인팀 Sandy Attia, Matteo Scagnol, Camilla Cormanni, Leonardo Franzini, Martina Salmaso
발주자 Loacker Moccaria International Gmbh
사진작가 Marco Cappelletti
'Architecture Project > Retail' 카테고리의 다른 글
| 기능과 미학의 조화, 팩토리 HQ 카페 & 오피스 / 테이스트 스페이스 (0) | 2025.10.16 |
|---|---|
| 머무름의 여정을 위한 공간, 스테이모어 플래그십 스토어/ 스테이 아키텍츠 건축사사무소 (0) | 2025.09.03 |
| 물결치는 박공지붕 사이로 나무가 자라는 카페 / 아이딘 아키텍츠 컴퍼니 리미티드 (0) | 2025.05.14 |
| 디제이아이 플래그십 스토어 / 베리어스 어소시에이츠 (0) | 2025.05.02 |
| 산불의 아픔을 기억하는 땅, 탄목원 / 유저 + 나우엑스랩 + 이지 건축사사무소 (0) | 2025.04.04 |
마실와이드 | 등록번호 : 서울, 아03630 | 등록일자 : 2015년 03월 11일 | 마실와이드 | 발행ㆍ편집인 : 김명규 | 청소년보호책임자 : 최지희 | 발행소 : 서울시 마포구 월드컵로8길 45-8 1층 | 발행일자 : 매일


