
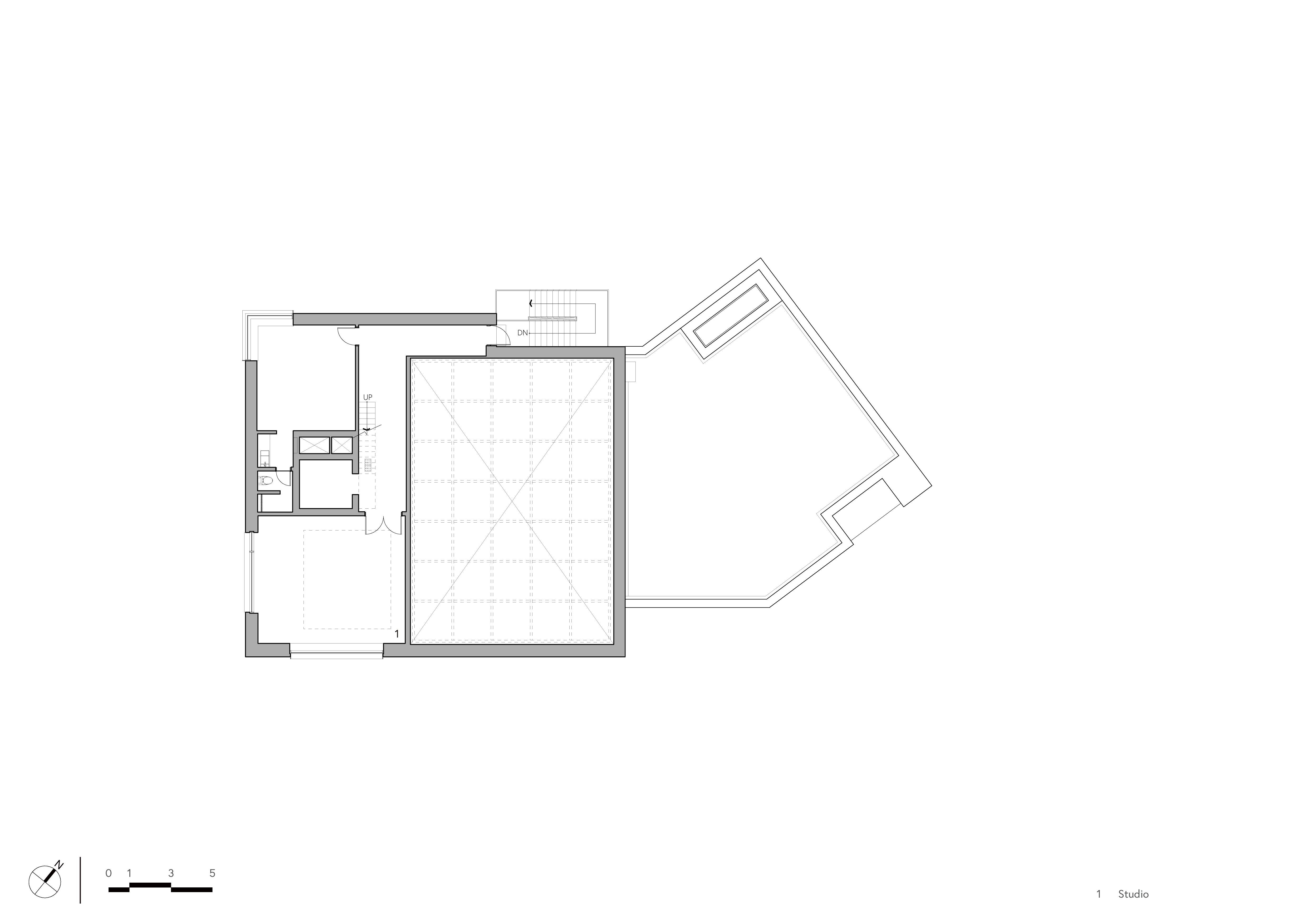
스테이모어 플래그쉽 스토어는 전면으로 수원천을 따르는 보행공원과 그 너머로 전철이 지나가는 풍경이 보이는 대지에 위치한다. 세개의 도로가 만나는 코너에 위치한 300평 남짓한 대지는 반듯하지 않은 사다리꼴 형상이었다. 편안한 침실 생활을 제안하는 브랜드의 특성을 반영하여 건축물을 최대한 낮고 넓게 계획하였고 건축물은 자연스럽게 최대한의 건폐율을 따라 다각형의 매스로 도출되었다. 결과적으로 건축물은 개발률이 높지 않은 낮은 주변 풍경과 수원천 보행공원과도 위화감 없이 어우러지며 관찰자는 서있는 시점에 따라 서로 다른 건축물의 얼굴을 경험하게 된다.
가장 먼저 해결해야 했던 부분은 대지를 둘러싸고 있는 두 개의 도로였다. 남측의 전면 도로는 대지와 접하고 있는 듯 했지만 그 사이에는 캠코가 관리하는 국유지가 껴있어 접도를 인정받지 못하였으며 대지의 동측은 오래된 측량자료를 토대로 수원천 공원이 개발된 탓에 대지의 일부를 아스팔트 포장하여 도로로 사용되고 있었다. 게다가 구청에서 수십년 동안 통행로로 사용되어온 동측도로를 현행도로로 인정하지 않으면서 삼거리에 위한 대지는 졸지에 맹지가 되어버렸다. 이를 해결하기 위해 캠고와 수개월 동안 국유지 매입을 협의하였지만 대부계약을 하는 것으로 마무리되었고 구청과 협의하여 접도인정을 받아 맹지에서 벗어났다. 동측도로는 도로가 아니므로 도로제척 없이 사유지로 인정하되 기존 통행을 고려하라는 협의결과에 따라 통행로를 확보하고 아스팔트 포장을 교체하여 사유지임을 표시하였다.
설계 초기단계부터 건축물의 관리자와 방문자의 동선을 다양하게 시뮬레이션해본 뒤, 최종 안을 선정하였다. 사옥과 쇼룸 두가지 용도를 모두 충족시키기 위해 관리자와 고객의 동선을 분리하고 각 사용자에게 필요한 동선을 만드는 작업이 필요했는데, 대지의 서측 대문을 통해 길게 우회하는 고객 진입여정을 형성하고 건축물 정면인 남측으로는 주차장에서 바로 진입 가능한 관리자 출입구를 계획하였다. 고객은 건축물의 가장 넓은 남측 정면을 처음 마주하며 서측 대문을 통해 대지를 우회하면서 건축물의 날카로운 입면을 조망한다. 대문을 통해 부지 내로 진입한 뒤에는 프라이빗한 정원을 거닐며 건축물을 한바퀴 둘러본 후 건축물 후면의 로비로 향하게 된다.
침실과 같은 쇼룸 조성을 위해서 내부공간은 인공조명을 최소화하는 자연채광과 창호를 통해 유입되는 풍경 계획에 집중하였다. 1층에서는 외부의 풍경을 끌어들이면서도 밖에서는 들여다보이지 않는 것이 중요했다. 이런 이유로 외부에 접하는 1층 입면에는 창호를 두지 않았으며 진입 정원을 바라볼 수 있도록 북측 입면에 창호를 계획하였다. 바닥면적이 100평이 넘어가는 2층에 는 고측창과 천창을 두어 공간에 골고루 채광이 될 수 있도록하였고 공간이 외부로 드러나지 않으면서도 버드나무와 하늘이 보이도록 의도하였다. 3층은 전체 프로그램에서 가장 중요한 공간으로 극적인 공간 경험이 이루어지는 곳이다. 2.3m의 진입부 천정고가 5m로 크게 변화하며 높이 4.5m가 넘는 대형창호를 통해 옥상조경과 그 너머의 자연이 오버스케일로 실내로 유입되어 강렬한 브랜드 경험을 제공한다.
플래그쉽 스토어는 브랜드를 표현하는 집합체가 되어야 하기에 스테이모어라는 브랜드를 반영 할 수 있는 외부 마감재를 고민하였다. 스테이모어에서 제품에 사용하는 주요 재료를 공유받아 색감과 질감을 파악하고 최종적으로 회색을 띄는 미색의 거친 벽돌과 노출콘크리트, 목재를 선정 하여 브랜드 이미지가 건축물에 투영되도록 하였다. 주재료인 벽돌은 너무 깨끗하지 않은, 이색과 질감이 있는 점토질 벽돌로 계획하여 넓은 입면이 따뜻한 덩어리로 보이도록 하였다. 또한 건축물의 규모에도 불구하고 단독주택과 같이 최대한 낮게 깔리는 매스로 읽히도록 건축의 입면을 따라 콘크리트 띠를 두르고 벽돌의 질감을 나누어 건축물의 수평성을 강조하였다. 1층의 입면은 내부가 들여다보이는 창이 없기 때문에 온전한 벽으로 느껴진다. 보행자가 가장 가까이 마주하는 면에 촉감을 자극하고 보행의 즐거움을 주기 위해서 바닥에서부터 1층 상단의 띠까지 벽돌을 반으로 쪼개 시공하여 질감을 극대화하였고 1층 입면이 끝나는 지점에 있는 대문은 목재로 마감하고 전면에 보행자가 볼 수 있는 작은 조경을 두었다.

































건축가 스테이 아키텍츠 (STAY architects)
위치 대한민국, 경기도, 수원시
대지면적 891㎡
건축면적 428.25㎡
연면적 1,159.57㎡
규모 지상 4층
준공 2023
프로젝트건축가 Junghee Hong, Jungseok Ko
디자인팀 Pansu Kim, Youngdo Kim, Moongyem Kim
사진작가 Kiwoong Hong
'Architecture Project > Retail' 카테고리의 다른 글
| 파동과 지붕의 미학: 자연을 끌어안은 티하우스 / 6717스튜디오 (0) | 2025.11.25 |
|---|---|
| 기능과 미학의 조화, 팩토리 HQ 카페 & 오피스 / 테이스트 스페이스 (0) | 2025.10.16 |
| 과자의 모양을 담은 공간, 로아커 플래그십 스토어/ 모더스아키텍츠 (0) | 2025.05.30 |
| 물결치는 박공지붕 사이로 나무가 자라는 카페 / 아이딘 아키텍츠 컴퍼니 리미티드 (0) | 2025.05.14 |
| 디제이아이 플래그십 스토어 / 베리어스 어소시에이츠 (0) | 2025.05.02 |
마실와이드 | 등록번호 : 서울, 아03630 | 등록일자 : 2015년 03월 11일 | 마실와이드 | 발행ㆍ편집인 : 김명규 | 청소년보호책임자 : 최지희 | 발행소 : 서울시 마포구 월드컵로8길 45-8 1층 | 발행일자 : 매일



